Grundriss Sanierung

4,00 Stern(e) 3 Votes
Zuletzt aktualisiert 19.11.2025
Sie befinden sich auf der Seite 4 der Diskussion zum Thema: Grundriss Sanierung
>> Zum 1. Beitrag <<

kbt09

kbt09

Drei Stufen hoch zum Wohnraum .. ok ... aber, paßt das dann mit der Kellertreppe? Ist der Keller im "Altbau" jetzt also nur ca. 200 cm hoch? Gibt es vielleicht mal einen genaueren Kellergrundriss und vielleicht einen Schnitt an der STelle (sollten Architekten eigentlich machen)?
--------------------------

Hmm,

dagegen:


Das ist ziemliches Flurgewurschtel um die beiden Eingänge zu den Räumen planunten zu realisieren und, es ist verschenkter Raum von ca. 1,5 qm. Das Kinderzimmer ist kleiner als in meiner Variante und daher für die Zwischenphase von 2 Kindern in einem Raum eher schlechter geeignet. Und, es geht zur Terrasse, was ja eher ungünstig ist, wenn ihr im Sommer abends noch draußen sitzen wollt und die Kinder dann in ihren Zimmern sind.

Das Schrankzimmer .. na ja, finde ich wirklich in der Konstellation unpraktisch, es ist einfach zu eng. Wessen Sachen sollen dort eigentlich rein? Eltern? Ist auch ein ziemliches Hin- und Hergelaufe morgens.

Es entfällt der Stauraum, den ich noch im Gang geschaffen habe.

Das Schlafzimmer ist jetzt im Grunde nicht Fisch noch Fleisch. Es könnte sogar eng werden mit der Tür.

Und dann hast du im Souterrain dafür 30 qm .. was soll da sein? Denn der Gästeraum, jetzt im EG, der Raum ist ja nun wirklich nicht riesig.

In meiner Variante könntest du die Kinder nach und nach "umschichten" ;). Das 16 qm große Zimmer im EG kann am Ende der Umschichtung doch sehr gut als Home-Office mit einer tollen Couch (zum Schlafen für Gäste) genutzt werden. Wenn du Gäste hast, wirst du ja nicht gerade so intensiv arbeiten müssen, und selbst wenn mal, dann können sich die Gäste tagsüber auch toll im Ess/Koch/Wohnbereich aufhalten und du kannst arbeiten. Und solange Home-Office mit schlafcouch noch im Souterrain ist, geht das auch.

Ich habe übrigens auch ein Home-Office mit Schlafcouch .. auf 12 qm. Ist eine Supercouch, die ausgefahren zu einer Bettfläche von 160x220 wird, und ansonsten kreative Gedanken zuläßt ;).
 
kbt09

kbt09

Könntest du deinen Plan mal mit noch ein paar mehr Maßen einstellen? Ich habe mich ja einfach mal an den Fensterbreiten orientiert und das maßstabsgerecht umgerechnet.

Ich komme da nämlich beim Anbau sogar auf gut 35 qm.
 
K

Kerba

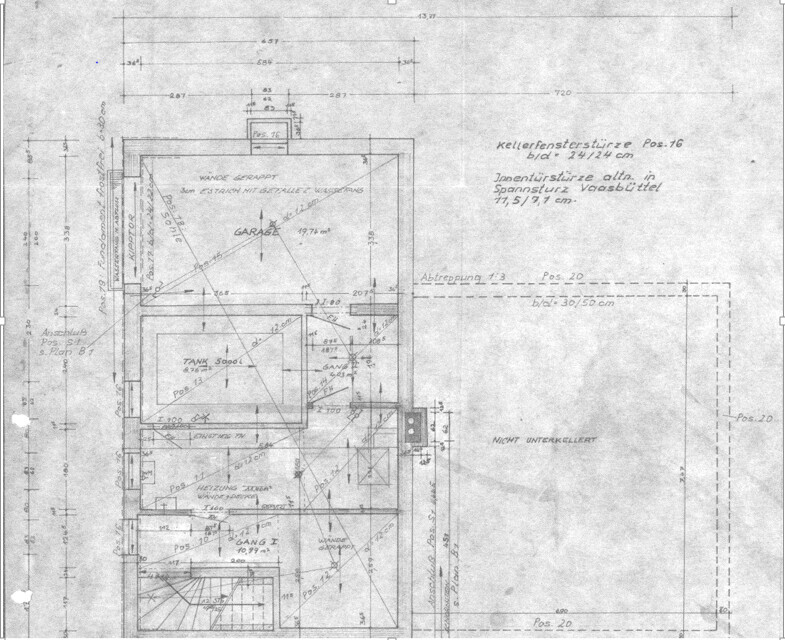
Der Keller ist im Moment nur ca. 200 hoch und wir haben ein Problem mit dem Abgraben unten für unseren Anbau. Haben wir gerade ausführlich mit der Architektin telefoniert, aber wahrscheinlich helfen uns die Stufen ohnehin nicht und wir müssten trotzdem Unterfangen. Das nächste Thema mit dem Keller ist, dass wir unten kein Bad oder WC machen können/wollen, weil wir sonst noch eine zweite Pumpe fürs Abwasser aus dem Keller installieren müssten, was total unwirtschaftlich ist. Eine haben wir schon, weil das Abwasser oben an der Straße liegt. Deswegen bin ich auch skeptisch damit die Kinderzimmer oder das Schlafzimmer runter zu legen, wenn es dort nichtmal ein WC gibt. .

Hier ist der Grundriss vom "alten" Keller, den haben wir bisher nicht neu gezeichnet mit Anbau dran. Den Durchbruch wollen wir direkt im ersten Fenster neben der Treppe machen.


Grundrissplan eines Hauses mit Garage, Keller und Treppen


Ich glaube jetzt muss ich einfach mal weiter nachdenken. Ganz vielen Dank für die guten Tipps und Ideen!!! Aber das ist doch so weit weg von unseren bisherigen Gedanken, das muss ich jetzt erstmal verarbeiten.
 
kbt09

kbt09

Ja, das glaube ich gerne ;)


Wo sitzt denn die bisherige Hebeanlage im Keller? Könnte man da nicht etwas kombinieren? Nur so, damit du noch etwas zum Nachdenken hast.
 
K

Kerba

Hallo,

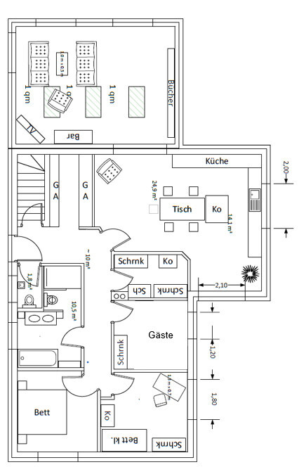
jetzt habe ich mich eine Weile nicht mehr gemeldet, weil wir einiges umplanen mussten. Den Anbau auf Kellerniveau / Souterrain können wir leider statisch nicht machen, daher werden wir jetzt größer auf EG Ebene anbauen. So haben wir zumindest alles auf einer Wohnfläche. Unser Grundrissplan sieht jetzt so aus:


Grundrissplan eines Hauses mit Küche, Essbereich, Wohnzimmer, Schlafzimmer, Bad und Terrasse.


Wir planen zunächst ein Kinderzimmer, ein Schlafzimmer, ein Gästezimmer eine Ankleide und ein Büro. Sobald wir dann ein zweites Kinderzimmer brauchen, kommt das Büro in die Ankleide und das Gästezimmer ins jetzige Büro (oder umgekehrt, mal sehen)

Würde mich nochmal über eure Meinung freuen!

Liebe Grüße
Kerba
 
Zuletzt aktualisiert 19.11.2025
Im Forum Grundrissplanung / Grundstücksplanung gibt es 2536 Themen mit insgesamt 87979 Beiträgen


Ähnliche Themen zu Grundriss Sanierung
Nr.ErgebnisBeiträge
1Entwurf Einfamilienhaus mit 3 Kinderzimmer, Keller und Grenzbebauung 32
2Grundriss Einfamilienhaus 155m², ohne Keller, 3 Kinderzimmer, 1 Büro 38
3Kinderzimmer und Schlafzimmer - Welche Größe ist zu empfehlen? - Seite 256
4Grundriss Schlafzimmer mit Bad und Ankleide 62
5Grundriss Einfamilienhaus Hanglage mit Keller 19
6Fußbodenheizung in Kinderzimmer? Einige Räume ohne Fußbodenheizung geplant? Luft-Wasser-Wärmepumpe raus? 48
7Einfamilienhaus Hanglang mit Keller für 2 Personen inkl. Home Office und Hobbyräume 80
8Grundriss Doppelhaushälfte mit Gästezimmer 53
9Wir planen einen Anbau - Seite 224
10Grundrissplanung Einfamilienhaus (Stadtvilla) ca.140m² (3 Kinderzimmer) - Seite 742
11Keller für kleines Tonstudio, oder doch ein Anbau? - Seite 216
12Einfaches Einfamilienhaus hofft auf Tipps zur Optimierung 31
13Schlafzimmer im Keller 13
14Grundriss Einfamilienhaus ohne Keller, 3 Kinderzimmer und Büro 18
15Größe vom Schlafzimmer und Kinderzimmer - Seite 238
16Schallschutztür Schlafzimmer / Kinderzimmer 23
17Pfiffige Schlafzimmer Idee mit Ankleide gesucht 19
18Grundriss Schlafzimmer, Ankleide und Bad en Suite - Seite 336
19Häuser ohne Keller: Stauraum Hobby-Keller? - Seite 349
20Ideen zu Entwurf für Einfamilienhaus mit Keller - Seite 647

Oben