ᐅ Ausreichend Licht im Flur? Bitte um Meinung
Erstellt am: 02.05.19 23:17
Hallo,
wir haben einen recht großen Flur ( ca. 3 x 5,5 m), davon 2 x 2 m Treppenloch. Wir haben nur 1 Doppelflügelfenster 74 x 118 cm eingeplant. Die Sparren sind so angeordnet, dass es außen an der einen Wand, außen an der anderen Wand oder mittig sein kann.
Nun ist meine Frage, ob der Raum nicht zu dunkel wird. Ich sehe wegen der Symmetrie nur noch 3 Fenster als Möglichkeit oder was sagt ihr dazu?
Danke schon mal.
Als Anmerkung vielleicht noch, der Flur im EG ist auch nicht besonders hell, da wir kein festes Seitenteil neben der Tür haben, sondern nur ein kleines Extra Fenster, der würde sich auch über Licht von oben freuen...
Meine Ideen zur Zeit:
1) 2 Fenster über dem Treppenloch zu platzieren, so dass es quasi symmetrisch zumindest mit dem Loch da ist. Über der Galerie würde ich dann keins machen
2) 1 Fenster mittig
3) 3 schmalere Fenster

wir haben einen recht großen Flur ( ca. 3 x 5,5 m), davon 2 x 2 m Treppenloch. Wir haben nur 1 Doppelflügelfenster 74 x 118 cm eingeplant. Die Sparren sind so angeordnet, dass es außen an der einen Wand, außen an der anderen Wand oder mittig sein kann.
Nun ist meine Frage, ob der Raum nicht zu dunkel wird. Ich sehe wegen der Symmetrie nur noch 3 Fenster als Möglichkeit oder was sagt ihr dazu?
Danke schon mal.
Als Anmerkung vielleicht noch, der Flur im EG ist auch nicht besonders hell, da wir kein festes Seitenteil neben der Tür haben, sondern nur ein kleines Extra Fenster, der würde sich auch über Licht von oben freuen...
Meine Ideen zur Zeit:
1) 2 Fenster über dem Treppenloch zu platzieren, so dass es quasi symmetrisch zumindest mit dem Loch da ist. Über der Galerie würde ich dann keins machen
2) 1 Fenster mittig
3) 3 schmalere Fenster
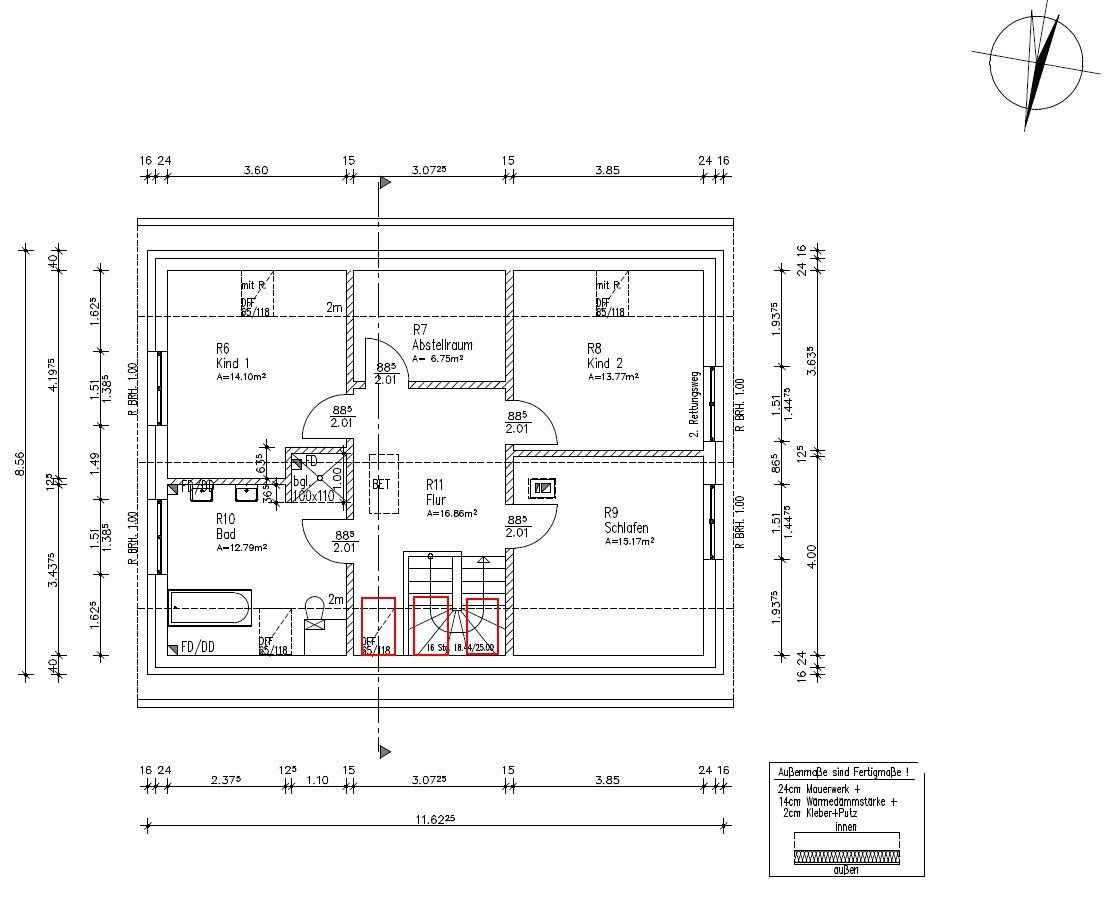
Ich weiß ehrlich gesagt mit der Zeichnung nichts anzufangen. Ist das ne Draufsicht? Ansicht? Von was? Wand? Ok, ich seh die Flurmasze...
Es wäre auch grundsätzlich nicht angebracht, ein Rat hinsichtlich notwendiger? Symmetrie zu geben, wenn man den Rest nicht kennt.
Soll das von innen symmetrisch werden? Warum? Der Flur wird doch sicherlich nicht symmetrisch möbliert, noch hat er symmetrische Türen... Treppe ist auch nicht symmetrisch...
Es wäre auch grundsätzlich nicht angebracht, ein Rat hinsichtlich notwendiger? Symmetrie zu geben, wenn man den Rest nicht kennt.
Soll das von innen symmetrisch werden? Warum? Der Flur wird doch sicherlich nicht symmetrisch möbliert, noch hat er symmetrische Türen... Treppe ist auch nicht symmetrisch...
Entschuldige die Skizze..es war gestern spät
Anbei noch mal der Grundriss OG mit den möglichen Fensterpositionen, wie sie die Sparren zulassen. Laut Architekt war nur ein Doppelflügelfenster über der Galerie geplant, aber das finde ich mittlerweile zu sehr an die Wand gequetscht. Wenn dann würde ich es eher mittig machen.
Oder eben 2 Fenster, aber über Galerie und Treppe sieht blöd aus finde ich, wenn dann zwei über der Treppe, da ja dort eh schon ein Treppenloch ist, könnte es gut aussehen.
Maximale Fenstergröße ist 74 x 118 cm.

Anbei noch mal der Grundriss OG mit den möglichen Fensterpositionen, wie sie die Sparren zulassen. Laut Architekt war nur ein Doppelflügelfenster über der Galerie geplant, aber das finde ich mittlerweile zu sehr an die Wand gequetscht. Wenn dann würde ich es eher mittig machen.
Oder eben 2 Fenster, aber über Galerie und Treppe sieht blöd aus finde ich, wenn dann zwei über der Treppe, da ja dort eh schon ein Treppenloch ist, könnte es gut aussehen.
Maximale Fenstergröße ist 74 x 118 cm.
ypg schrieb:
So sieht es aber ganz nett und sinnvoll aus, das ganze. Auch in der Symmetrie zur Flurbreite.
Wahrscheinlich werden einige das Putzen monieren, ich kann dazu sagen, dass unser Doppelflügelfenster sich irgendwie von selbst reinigt Du meinst mit "so" 3 Fenster? Finde ich etwas zu viel eigentlich. Ich hatte eher an eins oder zwei gedacht...dann stellt sich eben die Frage der Position(en).Wie gesagt bei einem Fenster dann mittig oder bei 2 Fenster mittig und rechts (also über der Treppe).
Bei 3 Fenstern würde ich eher auf ne schmale Breite gehen, statt 74 dann 65 oder sogar 54 nur...??
chrisw81 schrieb:
Du meinst mit "so" 3 Fenster? Finde ich etwas zu viel eigentlich. Ich hatte eher an eins oder zwei gedacht...dann stellt sich eben die Frage der Position(en).
Wie gesagt bei einem Fenster dann mittig oder bei 2 Fenster mittig und rechts (also über der Treppe).
Bei 3 Fenstern würde ich eher auf ne schmale Breite gehen, statt 74 dann 65 oder sogar 54 nur...?? Breite halte ich jetzt nicht diskussionswürdig.Aber drei Fenster über die Breite ist halt ein Highlight - davon wird das EG ja noch etwas von haben. Die Wirkung ist halt wie ein Glasdach. Die Wirkung hättest Du mit einem oder zwei Fenstern nicht.
Ähnliche Themen