ᐅ Grundrissplanung: Flur im EG breit genug?
Erstellt am: 26.07.19 21:20
Hallo Zusammen,
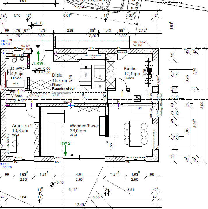
wir sind mit unserer Grundrissplanung für ein Einfamilienhaus bereits relativ weit vorangeschritten (siehe Bild des EG).
Nun meinte ein Freund von uns, dass der Durchgang im Flur zu Küche/Wohnbereich im EG mit Rohbaumaß 1,07 bzw. 1,16 m aus seiner Sicht deutlich zu schmal ist und wir doch das Haus noch mal mindestens 25 cm breiter machen sollen, um hier mehr Spielraum zu haben. Das wollen wir eigentlich mit Blick auf die Kosten nicht unbedingt tun, da das Haus mit rund 9,0 x 12,5 m ohnehin bereits recht groß wird und unser gewünschtes Raumprogramm vollständig abdeckt.

Seht Ihr hier einen substantiellen Punkt, dass die Durchgangsbreite in der Diele zu schmal ist und wir deshalb noch mal umplanen sollten?
Vielen Dank und Viele Grüße
ufr
wir sind mit unserer Grundrissplanung für ein Einfamilienhaus bereits relativ weit vorangeschritten (siehe Bild des EG).
Nun meinte ein Freund von uns, dass der Durchgang im Flur zu Küche/Wohnbereich im EG mit Rohbaumaß 1,07 bzw. 1,16 m aus seiner Sicht deutlich zu schmal ist und wir doch das Haus noch mal mindestens 25 cm breiter machen sollen, um hier mehr Spielraum zu haben. Das wollen wir eigentlich mit Blick auf die Kosten nicht unbedingt tun, da das Haus mit rund 9,0 x 12,5 m ohnehin bereits recht groß wird und unser gewünschtes Raumprogramm vollständig abdeckt.
Seht Ihr hier einen substantiellen Punkt, dass die Durchgangsbreite in der Diele zu schmal ist und wir deshalb noch mal umplanen sollten?
Vielen Dank und Viele Grüße
ufr
Das sieht mir irgendwie nach Gussek Haus Siebenbrunn in abgespeckter Variante mit Zusatzzimmer aus.
Ich schließe mich Deinem Freund an. Insbesondere die Treppe sollte nach hinten versetzt werden, da man sonst schwungvoll an die Wand "geklatscht" wird, wenn man herabschwebt.
Der Sinn dieser Küchentür um die Ecke erschließt sich mir gar nicht - das würd ich sofort begradigen. Auch dass das WZ keine eigene Tür hat, ist vielleicht für den Höhlenmenschen auf den ersten Blick beschaulich, aber im Alltag der reinste Nervenkrieg. Diese Miniabstellkammer hinter dem WC ist ja auch eher eine Verzweiflungstat, um sich daran vorbei ins Büro zu hangeln. Recht unelegant, wie ich finde und finster wie in der Nacht hinter diesem schrank-"Turm".
Schnellste Lösung wäre wohl von Podesttreppe auf einfach 1/2 gewendelte zu wechseln. Und bitte, bitte diesen Schlängelweg-Knoten aus der Küche löschen. Tür ins WZ - dann wäre das schlimmste beseitigt.
Ich schließe mich Deinem Freund an. Insbesondere die Treppe sollte nach hinten versetzt werden, da man sonst schwungvoll an die Wand "geklatscht" wird, wenn man herabschwebt.
Der Sinn dieser Küchentür um die Ecke erschließt sich mir gar nicht - das würd ich sofort begradigen. Auch dass das WZ keine eigene Tür hat, ist vielleicht für den Höhlenmenschen auf den ersten Blick beschaulich, aber im Alltag der reinste Nervenkrieg. Diese Miniabstellkammer hinter dem WC ist ja auch eher eine Verzweiflungstat, um sich daran vorbei ins Büro zu hangeln. Recht unelegant, wie ich finde und finster wie in der Nacht hinter diesem schrank-"Turm".
Schnellste Lösung wäre wohl von Podesttreppe auf einfach 1/2 gewendelte zu wechseln. Und bitte, bitte diesen Schlängelweg-Knoten aus der Küche löschen. Tür ins WZ - dann wäre das schlimmste beseitigt.
haydee schrieb:
Die Diele ist ein Tanzsaal und da wo es darauf ankommt ist sie zu schmal.
Ja der Durchgang ist zu schmal
Am EG kann noch einiges verbessert werdenO. k. vielen Dank schon mal für Euer konstruktives Feedback!
@haydee: Freue mich gerne auf weiteres Feedback, was aus Deiner Sicht sonst noch optimiert werden kann. Danke!
Mein fotografisches Gedächtnis fühlt sich an einen älteren Thread erinnert, vielleicht bringt der Link Dich ein bißchen weiter: https://www.hausbau-forum.de/threads/Grundriss-laengliches-efh-integrierte-Garage-kein-Keller.25006/ - die Treppenlage war anders, aber die Anordnung Küche / Wohn-Esszimmer, der schmale Flur und ein paar kleine weitere Details kommen dort ähnlich vor.
https://www.instagram.com/11antgmxde/
https://www.linkedin.com/company/bauen-jetzt/
https://www.instagram.com/11antgmxde/
https://www.linkedin.com/company/bauen-jetzt/
Ähnliche Themen