
11ant
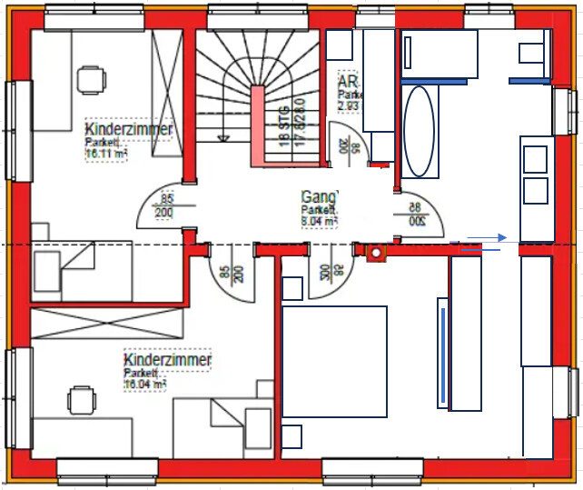
Ich sehe hier weder schon Fallrohre eingezeichnet, noch daß sich da ein Problem ergäbe. "Mein" Fallrohr läge in der Ecke der WC-Vorwand. Die Schränke im Bad halte ich auch für Schränke.Verstehe ich das richtig: Die Abflüsse von Dusche und Badewanne können nicht per Fallrohr gerade nach unten geleitet werden, weil darunter der Garderobenbereich ist? Die Lösung wäre eine Positionierung rund um die Ecke nordöstlich über Technikraum?
Oder sind die Symbole für Fallrohr die beiden Quadrate mit X neben dem Waschbecken? - die hätte ich als Schränke interpretiert.
Das Quadrat mit O ist der Wäscheschacht, der nicht ideal positioniert ist mMn.