HAR/Technik ausreichend dimensioniert ?

5,00 Stern(e) 7 Votes
Zuletzt aktualisiert 26.12.2025
Sie befinden sich auf der Seite 2 der Diskussion zum Thema: HAR/Technik ausreichend dimensioniert ?
>> Zum 1. Beitrag <<

K

KonstantinW

Zuführung unter der Garage.
Das mögen die meisten Versorger nicht, entweder werden dann zusätzliche Maßnahmen notwendig oder es wird gar nicht zugelassen.
Klär das unbedingt vorher ab.

MSP achte auf die Positionen der Medien, Wasser und Gas sollten möglichst weit auseinander sein damit die Zähler nicht in Konflikt geraten.

Fußbodenheizung schau wie groß der HKV wird bzw wieviel Kreise dran hängen.

Platzier die Heizung so das kurze Wege ohne Winkel möglich sind.
vielen dank dafür :)

Keine Kontrollierte-Wohnraumlüftung ?
nein, ist nicht geplant.
 
K

KonstantinW

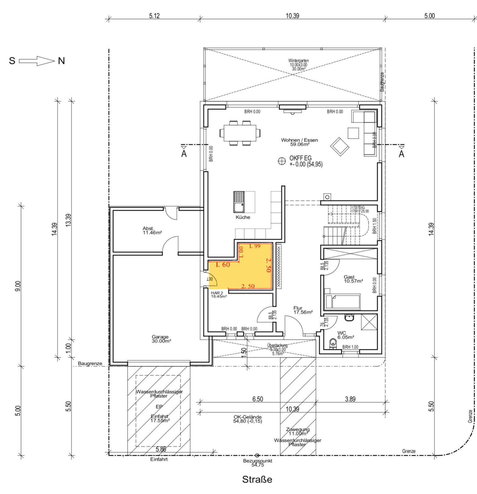
Ich hab den Hauswirtschaftsraum/HAR Jetzt nochmal angepasst.
Technik soll jetzt in den markierten Bereich kommen.
Wären jetzt so ca. 7,3 m².

Was meint ihr nun zur Fläche. Kann man damit planen ?

Grundriss eines Einfamilienhauses mit Wohn-/Essbereich, Küche, Flur, Gästezimmer, Garage.
 
Y

ypg

Für die Anschlüsse ist aber nur der markierte Bereich gedacht.
Technik soll jetzt in den markierten Bereich kommen.
Nein. Das wird kein Heizungsmonteur machen. (Zumindest bei uns nicht) Und Du als Bauherr solltest das nicht so wollen.
Die Verbraucher kommen direkt auf kurzem Wege von der Außenwand ins Haus. Das ist wirklich das vernünftigste. Also an die Garagen- oder Flurwand. Ich würde Dir zur Flurwand raten und die Heizung dann mit einer Garderobennische (60 tief) abschotten.
Ansonsten gefällt mir das Haus. Schön großzügig. Allerdings würde ich mal reell möblieren, das kommt ja mit der TV-Ecke gar nicht hin. Und möbliere mal die recht dunkle Küche.
Tipp: nutze die Außenwand, dort noch ein Fenster, dann eine Tür zum Hauswirtschaftsraum (Speisersatz genau dort, wo Du jetzt die Heizung geplant hast ;)
 
K

KonstantinW

Nein. Das wird kein Heizungsmonteur machen. (Zumindest bei uns nicht) Und Du als Bauherr solltest das nicht so wollen.
Die Verbraucher kommen direkt auf kurzem Wege von der Außenwand ins Haus. Das ist wirklich das vernünftigste. Also an die Garagen- oder Flurwand. Ich würde Dir zur Flurwand raten und die Heizung dann mit einer Garderobennische (60 tief) abschotten.

Ja stimmt. Hab da irgendwie nur halb weiter gedacht :D
also wird die Mauer anders gezogen.
ok danke für den Tipp, bzw. deiner Meinung. Finde es aber nicht so schön wenn man in den Hauswirtschaftsraum/HAR kommt direkt die ganze Technik sieht.
würde dann die GaragenSeite dazu nehmen.



Ansonsten gefällt mir das Haus. Schön großzügig. Allerdings würde ich mal reell möblieren, das kommt ja mit der TV-Ecke gar nicht hin. Und möbliere mal die recht dunkle Küche.
Tipp: nutze die Außenwand, dort noch ein Fenster, dann eine Tür zum Hauswirtschaftsraum (Speisersatz genau dort, wo Du jetzt die Heizung geplant hast ;)
Danke:cool:
Das mit der TV-Ecke ist auch nur so dahergezeichnet vom Architekten. TV bleibt sowieso weg. Höchstens ein Beamer.
Das mit der Küche und den Fenstern ist bekannt. Aber da wo das Stückchen Wand ist, kommt die Insel dran. Und Mittags Steht die Sonne so das das Licht dann grade in die Küche fällt durchs Esszimmerfenster an der Seite.
Ich stell mal noch paar Bilder in den Anhang.

Erdgeschoss-Grundriss: Wohnzimmer, Küche, Flur, Bad, Garage.


Moderner Wohnraum mit Kamin, Leinwand und Filmprojektor, Posaune, Sofa und Poster.


Isometrische Küche mit Kochinsel, Ofenwand, Esstisch für vier, Spüle und Pflanze.
 
Y

ypg

Glaub mir, die wird duster.
Ich habe ein Ostfenster/Fensterband an der Zeile... und ab Nachmittags muss ich Licht machen. Meine Insel ist auch ca. 3 Meter von einer Terra-Doppeltür entfernt - trotzdem Licht an... :(
 
Zuletzt aktualisiert 26.12.2025
Im Forum Bauplanung gibt es 5080 Themen mit insgesamt 100905 Beiträgen


Ähnliche Themen zu HAR/Technik ausreichend dimensioniert ?
Nr.ErgebnisBeiträge
1Speisekammer vs. größere Küche vs. Hauswirtschaftsraum 13
2Geschlossene Küche planen mit Durchgang zum Hauswirtschaftsraum - Seite 318
3Heizung in Küche "notwendig"? - Seite 235
4 2 Vollgeschosse, Durchgang Garage, Hauswirtschaftsraum unter Treppe - Seite 225
5Heizungsanlage passt nicht wie geplant in den Hauswirtschaftsraum 27
6Grundriss Einfamilienhaus 1 Vollgeschoss Technik und Tageslicht - Seite 3194
7Grundrissvorschläge - Was geht was fällt durch? - Seite 16286
8Bien-Zenker Wohlfühlklima Heizung plus / Proxon, Kosten und Leistung - Seite 1598
9Wohnen/Essen/Küche: Wie wohnt ihr oder werdet ihr wohnen? - Seite 852
10Technik / Hauswirtschaftsraum im OG Meinungen? - Seite 327
11Küche: geschlossen oder offen? Welche Raumaufteilung? - Seite 1486
12Grobe Schnitzer im Grundriss? Küche zu klein? - Seite 439
13Reicht der Hauswirtschaftsraum auch als Abstellkammer aus? 22
14Grundriss Bungalow 150qm geschlossene Küche, überdachte Terrasse - Seite 240
15Müllentsorgung in der Küche / Wanddurchbruch - Seite 542
16Wie Hauswirtschaftsraum im Keller sinnvoll in die thermische Hülle? 15
17Hausanschlusssäule im Garten vs. Hausanschluss direkt im Hauswirtschaftsraum 35
18Zugang von der Garage in den Hauswirtschaftsraum - Seite 549
19Ikea Pax Hauswirtschaftsraum/Waschküche System? - Was habt ihr? 64
20Hauswirtschaftsraum vorstreichen - frischer Estrich 10

Oben