Jepp, am Technikraum wird es hapern...
und an der Toilette im OG, die müsste nur etwas nach vorn gezogen werden.
Gedankenansatz: vlt mal damit spielen, die Treppe etwas in den Raum zu ziehen, die Mauern zum Essbereich weg, dafür zum Wohnbereich abgrenzen und Garderobe versetzen. Den Raum hinter der Treppe dem Technikraum zuschustern. Allerdings ergibt sich dann oben ein anderes Bild, zB Bad auch hinter die Treppe mit einbinden. Eventuell ergeben sich dann im OG auch gleichwertig grosse Räume...
Aber eher funktioniert es nicht... dann muss eine andere Lösung daher. Technik braucht Platz! 🙂
und an der Toilette im OG, die müsste nur etwas nach vorn gezogen werden.
Gedankenansatz: vlt mal damit spielen, die Treppe etwas in den Raum zu ziehen, die Mauern zum Essbereich weg, dafür zum Wohnbereich abgrenzen und Garderobe versetzen. Den Raum hinter der Treppe dem Technikraum zuschustern. Allerdings ergibt sich dann oben ein anderes Bild, zB Bad auch hinter die Treppe mit einbinden. Eventuell ergeben sich dann im OG auch gleichwertig grosse Räume...
Aber eher funktioniert es nicht... dann muss eine andere Lösung daher. Technik braucht Platz! 🙂
P
PeterLustig4909.10.13 10:52Besten Dank für Anregungen. Freut mich und hilft mir sehr.
Ich werde die Änderungen gleich diese Woche noch mit unserem Architekt besprechen und dann hier erneut posten.
EG:
Toilette an die Stelle der Küche, Hauswirtschaftsraum vergrößern.
Küche weiter nach rechts ziehen.
Essplatz an den untegenutzen Raum hinter die Couch.
Eine Schiebetür die je nach Stellung entweder die Küche oder den Flur zum Wohnzimmer zu macht (zwei Fliegen mit einer Klappe).
OG:
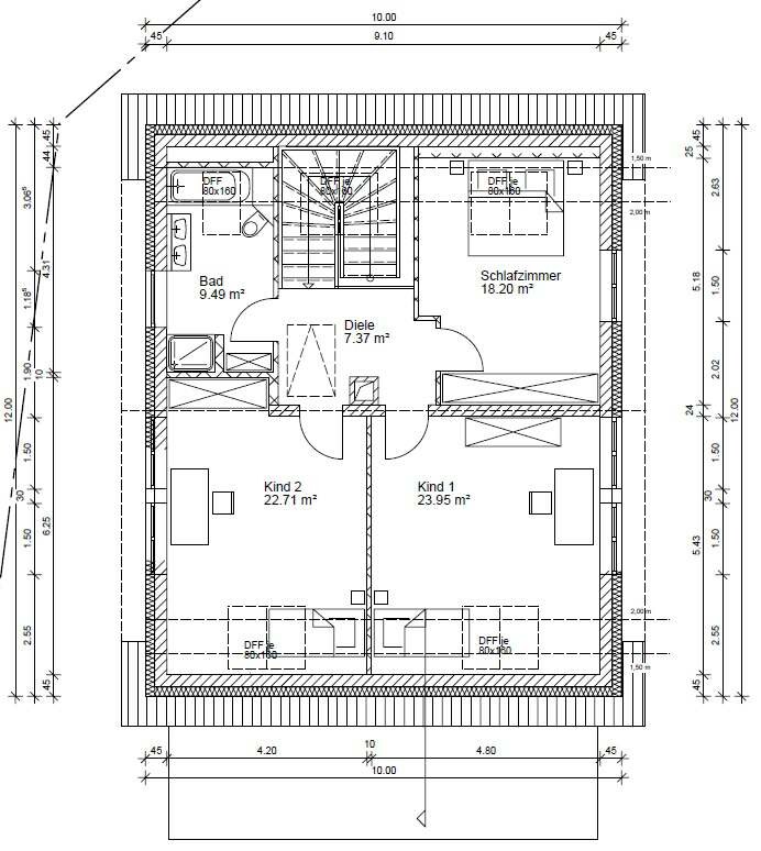
Kinderzimmer mit Schlafzimmer tauschen.
Evtl. noch eine Art Balkon ins lange Süddach bauen (toller Ausblick).
P.S.: Wir 31 und 34 sowie keine Kinder (bisher) ;o)
Höher bauen wird wohl nicht gehen, da max. 1 Vollgeschoss erlaubt ist.
Ich werde die Änderungen gleich diese Woche noch mit unserem Architekt besprechen und dann hier erneut posten.
EG:
Toilette an die Stelle der Küche, Hauswirtschaftsraum vergrößern.
Küche weiter nach rechts ziehen.
Essplatz an den untegenutzen Raum hinter die Couch.
Eine Schiebetür die je nach Stellung entweder die Küche oder den Flur zum Wohnzimmer zu macht (zwei Fliegen mit einer Klappe).
OG:
Kinderzimmer mit Schlafzimmer tauschen.
Evtl. noch eine Art Balkon ins lange Süddach bauen (toller Ausblick).
P.S.: Wir 31 und 34 sowie keine Kinder (bisher) ;o)
Höher bauen wird wohl nicht gehen, da max. 1 Vollgeschoss erlaubt ist.
P
PeterLustig4909.10.13 10:54ypg schrieb:
Jepp, am Technikraum wird es hapern...
und an der Toilette im OG, die müsste nur etwas nach vorn gezogen werden.
Gedankenansatz: vlt mal damit spielen, die Treppe etwas in den Raum zu ziehen, die Mauern zum Essbereich weg, dafür zum Wohnbereich abgrenzen und Garderobe versetzen. Den Raum hinter der Treppe dem Technikraum zuschustern. Allerdings ergibt sich dann oben ein anderes Bild, zB Bad auch hinter die Treppe mit einbinden. Eventuell ergeben sich dann im OG auch gleichwertig grosse Räume...
Aber eher funktioniert es nicht... dann muss eine andere Lösung daher. Technik braucht Platz! 🙂Diesen Ansatz werde ich auch mal in einen Grundriss einarbeiten lassen. Besten Dank.
E
Erdbeerschnitt15.10.13 21:08Hallo!
Und wo ist jetzt der neue Entwurf?? Bin schon gespannt :-)
Und wo ist jetzt der neue Entwurf?? Bin schon gespannt :-)
P
PeterLustig4912.11.13 20:46so....
nun ist der nächste Entwurf fertig.
Es hat sich einiges getan, aber es werde noch ein paar Änderung vorgenommen.
Die Dusche im EG werden wir irgendwie anders platzieren. Evtl. ein Teil vom Büro anknipsen.
Hierzu auch gleich eine Frage. Kann ich den Hauswirtschaftsraum und das Büro einfach tauschen?
Unser Architekt meinte, dass wäre schlecht da der Hausanschluss in den Hauswirtschaftsraum geführt werden muss und dieser an der Straße liegen sollte...
Im Bad oben werden wir die Toilette noch anders platzieren. Evtl. hinter die Tür, dort wo der Schrank steht und das Bad an der Stelle etwas vergrößern.
Eine Dachgaube würde dem Haus von außen noch eine schönere Ansicht eben. Allerdings kommen wir dann laut Architekt über die erlaubte Größe für das OG. Es ist nur ein Vollgeschoss erlaubt.
Bitte um Feedback
Besten Gruß





nun ist der nächste Entwurf fertig.
Es hat sich einiges getan, aber es werde noch ein paar Änderung vorgenommen.
Die Dusche im EG werden wir irgendwie anders platzieren. Evtl. ein Teil vom Büro anknipsen.
Hierzu auch gleich eine Frage. Kann ich den Hauswirtschaftsraum und das Büro einfach tauschen?
Unser Architekt meinte, dass wäre schlecht da der Hausanschluss in den Hauswirtschaftsraum geführt werden muss und dieser an der Straße liegen sollte...
Im Bad oben werden wir die Toilette noch anders platzieren. Evtl. hinter die Tür, dort wo der Schrank steht und das Bad an der Stelle etwas vergrößern.
Eine Dachgaube würde dem Haus von außen noch eine schönere Ansicht eben. Allerdings kommen wir dann laut Architekt über die erlaubte Größe für das OG. Es ist nur ein Vollgeschoss erlaubt.
Bitte um Feedback
Besten Gruß
Ich habe nur ein paar wenige Anmerkungen zu dem Entwurf.
Die Platzierung der Toiletten ist so überhaupt nicht meine Sache. Einerseits zwar praktisch (gemeinsame Nutzung der Leitungen), aber andererseits. Naja, ich glaube meine Frau hätte was dagegen, wenn sie in der Wanne ist und ich dann dringend „ansitzen“ müsste :p. Ähnliches siehe Duschbad.
Gibt es einen bestimmten Grund für die beiden Schiebetüren? Macht aus meiner Sicht wenig Sinn – außer zusätzlichen Kosten. Eine reicht.
Wollt Ihr später das Dach noch ausbauen? Ansonsten sind, denke ich, bei einer hinterlüfteten Dacheindeckung, die Fenster im Spitzboden unnötig (so wurde es uns von unserer Baufirma + Architektin erklärt). Ich hoffe, dass ich es richtig verstanden habe. Wir haben uns dann nur für die Dachausstiegsluke entschieden, da der Dachboden später nur für Lagerzwecke genutzt wird. Mal abgesehen davon, dass Fenster-Sonderanfertigung ganz gut ins Geld gehen.
Schöner Entwurf mit viel Licht. Ich könnte so etwas allerdings nicht realisieren. Da würde meine Frau wegen dem Fenster putzen streiken 🙁. Oder ich müsste dafür eine Firma engagieren.
Die Platzierung der Toiletten ist so überhaupt nicht meine Sache. Einerseits zwar praktisch (gemeinsame Nutzung der Leitungen), aber andererseits. Naja, ich glaube meine Frau hätte was dagegen, wenn sie in der Wanne ist und ich dann dringend „ansitzen“ müsste :p. Ähnliches siehe Duschbad.
Gibt es einen bestimmten Grund für die beiden Schiebetüren? Macht aus meiner Sicht wenig Sinn – außer zusätzlichen Kosten. Eine reicht.
Wollt Ihr später das Dach noch ausbauen? Ansonsten sind, denke ich, bei einer hinterlüfteten Dacheindeckung, die Fenster im Spitzboden unnötig (so wurde es uns von unserer Baufirma + Architektin erklärt). Ich hoffe, dass ich es richtig verstanden habe. Wir haben uns dann nur für die Dachausstiegsluke entschieden, da der Dachboden später nur für Lagerzwecke genutzt wird. Mal abgesehen davon, dass Fenster-Sonderanfertigung ganz gut ins Geld gehen.
Schöner Entwurf mit viel Licht. Ich könnte so etwas allerdings nicht realisieren. Da würde meine Frau wegen dem Fenster putzen streiken 🙁. Oder ich müsste dafür eine Firma engagieren.
Ähnliche Themen