Hausbau - Ratgeber
Bauherrenhilfe
- Bauherrenhilfe vor Vertragsabschluss
-- Warum einen unabhängigen Baubetreuer?
-- Vertragsgrundlagen
-- Bausumme
-- Zahlungsplan zur Kostenkontrolle
-- Pflichten des Bauherren vor Vertragsabschluss
-- Unterlagen beim Hausbau vor Vertragsabschluss
- Bauherrenhilfe nach Vertragsabschluss
-- Bauantrag bei Behörden
-- Bau-Genehmigungsverfahren bei Baubehörden
-- Bauspezifische Versicherungen
-- Bauzeitenplan
-- Baubeginn - die Letzten Pflichten der Bauherrschaft
- Bauherrenhilfe während der Bauzeit
- Gewährleistungsansprüche
- Bauabnahme
Baufinanzierung
- Baufinanzierung - Allgemeine Fragen
- Kreditarten
- Kredit-Konditionen
- Bausparen
- Staatliche Förderungen
- Verkehrswert
- Haushaltsrechnung und Bonität
Hausbau Planung
- Haustypen
- Hausbau Vorbereitungsarbeiten
- Das Baugrundstück
- Baugrund beim Hausbau
- Baurecht
- Gebäudeschutz
- Erdarbeiten und Wasserhaltung
- Stützmauern
- Einfriedung
- Untergeschoss
- Kanalisation
- Tragende Elemente
- Nichttragende Innenwände
- Fundation / Fundament
- Deckenkonstruktionen
- Dächer
- Kaminanlagen
- Treppen Rampen Leitern
- Dachbeläge und Spengler
- Fenster
- Sonnen und Wetterschutz
- Aussenputze
- Einbauten, Küchen, Türen
- Bodenbeläge und Unterlagsböden
- Parkett
- Gips, Wand, Decke
Haustechnik und Energie
- Heiztechnik
- Lüftung und Klimatechnik
- Sanitärtechnik
- Elektrotechnik
- Erneuerbare Energie
Whirlpools / Jacuzzi
Hausbau Magazin
- Baufinanzierung trotz Krise?
- Das Blockhaus
- Moderne Dämmstoffe im Vergleich
- Erker Vor- und Nachteile
- Glasflächen beim Hausbau
- Günstig ein Haus Bauen
- Mediterraner Hausbaustil
- Mehrgenerationenhaus
- Moderne Architektur
- Gartengestaltung leicht gemacht
- Traditioneller Ziegelbau
- Villa als höchster Traum
- Im Eigenheim Ruhestand geniessen
- Altbau sanieren
- Kauf einer Holzgarage
- Immobilienmakler
- Arbeitshandschuhe für den Winter
- Zuhause verschönern
- Outdoor-Plissees
- Schlafzimmer planen
- Terrassenüberdachung
- Wohngebäudeversicherung
- Zaunarten und Eigenschaften
- Hauseingang gestalten
- Der perfekte Grundriss
- Sparsamer heizen im Altbau
- Einfamilienhaus smart finanzieren
- Planung einer PV-Anlage
- Neues Haus
- Immobilienfinanzierung
- Installation einer Photovoltaikanlage
- Asbest erkennen und entfernen
- Gartenpflege im Frühling – worauf achten
- Sauna im Fokus - Wellness zuhause
- Erfolgreich vermieten
- Die perfekte Winterbekleidung
- Das Niedrigenergiehaus
- Der April und seine Stürme
- Architektonische Vielfalt
- Ökologisch und nachhaltig bauen
- Das perfekte Schlafzimmer
- Nachhaltige Energieversorgung
- Zukunftsorientiert bauen
- Nachhaltigkeit beim Hausbau
- Tiny Houses
- Wärmepumpen als nachhaltige Heizvariante
- Maßgeschneiderten Kleiderschrank
- Der richtige Baukredit
- Ratgeber für erfolgreichen Hausbau
- Haus als Altersvorsorge
Do-it-yourself Anleitungen
- Verlegeanleitung für Bodenbeläge und Parkett
- Bodenbeläge und Parkett reinigen und pflegen
- Malerarbeiten am Haus
- Garten Tipps
- Umzug und Reinigung

ᐅ Grundriss NRW am Hanggrundstück

Erstellt am: 09.11.15 10:18
M
m_l_r_s
M
m_l_r_s
09.11.15 10:18
Hallo zusammen,



ich würde gerne den ersten Entwurf unseres Grundrisses zur Diskussion stellen.

Entstanden ist er grob in Eigenregie, wurde dann angepasst vom Planer eines Bauunternehmers. Generell gefällt er uns echt gut.



Zum Grundstück: Es ist ein Hanggrundstück in einem Neubaugebiet. Unter uns (Süden) bleibt unbebaut, wir haben also freie Sicht.

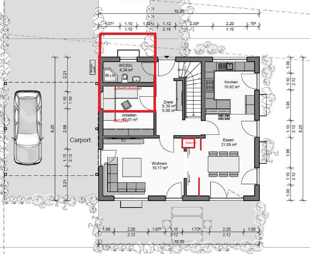
Da wir eine ebenerdige Terrasse wollen, werden wir anschütten und der Keller soll nicht im Süden, sondern im Osten teilweise frei liegen. Auf den Ansichten wurde das leider nicht so richtig ersichtlich. Arbeitszimmer und Gästezimmer sind im Keller aber an der richtigen Stelle eingezeichnet.
Da das Arbeitszimmer im EG zu klein ist (Frau Lehrerin und es soll im Alter als Schlafzimmer dienen), haben wir überlegt, ob wir nicht vorm Haus eine Art Anbau/Erker planen und das Arbeitszimmer mit gem Gästebad tauschen. Das hätte zusätzlich den Vorteil, dass das AZ ein Fenster nach vorne bekommt und nicht nur unter dem Carport und dadurch sehr dunkel ist. (In Bild EG2 habe ich versucht das mit Paint zu zaubern 😉 )
Wenn man das Dach dann abschleppt, könnte man das auch noch etwas weiter richtig Hausmitte ziehen und dadurch eine Eingangsüberdachung schaffen.
Da wir aber schon preislich am Limit sind, steht die Frage nach den Kosten im Raum. Jemand Anlehnung was man dafür ungefähr rechnen kann?

Was haltet ihr davon? Für Anregungen bin ich dankbar.


Bebauungsplan/Einschränkungen
Größe des Grundstücks: 767qm
Hang: Ja, ca 2,5m im Baufenster abfallend
Grundflächenzahl: 0,4
Geschossflächenzahl: 0,7
Anzahl Stellplatz: 2
Geschossigkeit: 1,5
Dachform: SD
Stilrichtung: Klassisch
Ausrichtung: SSW
Maximale Höhen/Begrenzungen: FH 9m über Straße


Anforderungen der Bauherren
Stilrichtung, Dachform, Gebäudetyp: SD
Keller, Geschosse: Keller, EG, DG
Anzahl der Personen, Alter: Momentan 2, später 4
Büro: Familiennutzung oder Homeoffice? Homeoffice im EG (min 14m², Lehrerin, soll später evtl mal als Schlafzimmer im Alter dienen)
Schlafgäste pro Jahr: 15-20
offene oder geschlossene Architektur, eher geschlossen
konservativ oder moderne Bauweise: Konservativ
offene Küche, Kochinsel: Küche + Essen, WZ getrennt durch Schiebetür
Anzahl Essplätze: 6
Kamin: ja
Balkon, Dachterrasse: nein
Garage, Carport: Doppelcarport, evtl später falls zu teuer


Hausentwurf
Von wem stammt die Planung:
-Planer eines Bauunternehmens
-Do-it-Yourself von Euch (Wir haben den Grundstück grob vorgegeben, Planer des Bauunternehmens hats ins Reine gebracht.
Was gefällt besonders?

- Gefällige Ansichten, klare Struktur, Symmetrie

- Aufteilung der Raume

- Unsere Küche passt rein 😉

Was gefällt nicht?

- Kamin fehlt noch

- Treppe direkt im Eingangsbereich

- Arbeitszimmer zu klein

- Fenster Ostseite passen noch nicht. (Hier wird der Keller freiliegen, daher eher normale statt bodentiefe Fenster

- Im Keller noch kein Ausgang nach draußen (Südostecke am liebsten)

Preisschätzung lt Architekt/Planer: 280.000
Persönliches Preislimit fürs Haus, inkl Ausstattung: am liebsten weniger als die 280.000
favorisierte Heiztechnik: Wohl Luft-Wasser-Wärmepumpe

3D-Ansicht eines weissen Einfamilienhauses mit Carport und rotem Auto


Weiße zweistöckige Hausfassade mit dunklem Satteldach, großen Fenstern und grünem Garten.


Weißes modernes Haus mit Carport, Garten und Terrasse in 3D-Visualisierung


Grundrissplan eines oberen Stockwerks mit Schlafzimmern, Bad, Flur und Ankleide


2D-Grundriss eines Hauses mit Wohnzimmer, Küche, Essbereich und Carport


Grundriss eines Einfamilienhauses mit Wohnbereich, Küche, Essen und Carport.


Grundriss eines Hauses mit Keller, Arbeitsräumen und Flur im Untergeschoss.
M
Manu1976
09.11.15 18:14
Würde WC und Arbeitszimmer tauschen und zwar unabhängig davon, ob ihr nach vorne noch ein Stück vergrößert oder nicht. Durch den Carport geht dem Arbeitszimmer sonst recht viel Licht verloren und WC, Eingang und Treppe so eng einander könnte zu einem Engpass führen.
Der Eingangsbereich könnte etwas knapp werden.
Flur im OG ohne tageslicht ist auch nicht so das Wahre. Warum nicht noch ein Dachfenster über der Treppe?
So wie im Moment das WC im Bad eingezeichnet ist, könnte das öfters zu Kopfschmerzen führen.
Wenn im Keller ein Gästezimmer geplant ist, dann würde ich auch noch ein kleines Gäste-WC evtl. mit Dusche einplanen. So kann später auch mal das pubertierende Kind in den Keller ziehen, wenn es möchte ;-)

Habt ihr mal überlegt, den Grundriss zu spiegeln? Finde den Carport auf der Küchenseite ganz praktisch. Dann könntet ihr die Terrassentür mit einem Schloss versehen und mit den Einkäufen da direkt rein.
M
m_l_r_s
09.11.15 18:28
Danke für deine Rückmeldung!
Manu1976 schrieb:
Würde WC und Arbeitszimmer tauschen und zwar unabhängig davon, ob ihr nach vorne noch ein Stück vergrößert oder nicht. Durch den Carport geht dem Arbeitszimmer sonst recht viel Licht verloren und WC, Eingang und Treppe so eng einander könnte zu einem Engpass führen.
Ja, tauschen werden wir so oder so.
Der Eingangsbereich könnte etwas knapp werden.
Knapp wegen Gäste-WC und Treppe gegenüber, oder generell knapp?
Flur im OG ohne tageslicht ist auch nicht so das Wahre. Warum nicht noch ein Dachfenster über der Treppe?
Gute Idee. Danke! 🙂
Über die Badewanne kommt ebenfalls noch ein Dachfenster.
So wie im Moment das WC im Bad eingezeichnet ist, könnte das öfters zu Kopfschmerzen führen.
Guter Einwand, werde ich ansprechen
Wenn im Keller ein Gästezimmer geplant ist, dann würde ich auch noch ein kleines Gäste-WC evtl. mit Dusche einplanen. So kann später auch mal das pubertierende Kind in den Keller ziehen, wenn es möchte ;-)
Wir hatten mal kurz angeregt dort zumindest die Leitungen vorzubereiten dass wir das später nachrüsten können. Im Moment aus Kostengründen gestrichen.
Habt ihr mal überlegt, den Grundriss zu spiegeln? Finde den Carport auf der Küchenseite ganz praktisch. Dann könntet ihr die Terrassentür mit einem Schloss versehen und mit den Einkäufen da direkt rein.
Bisher noch nicht drüber nachgedacht, werden mal tun. Danke.
S
Scratchi
09.11.15 20:03
Der EG Umriss gefällt mir ganz gut!
Der Flur im OG ist mM doch recht eng eben gerade, weil keine Fenster vorhanden sind und somit auch Dunkelheit vorherrschen wird.

Sportlich finde ich einen Preis von 280.000 für 3 Etagen + Büroausbau. Sollen Baunebenkosten da bereits enthalten sein?
M
m_l_r_s
09.11.15 20:10
Warum 3 Etagen + Büro?
KG (incl zwei ausgebauten Räumen)
EG
DG

Ohne Baunebenkosten. Reiner Hausbaupreis.
Bauexperte hatte mal vor einigen Monaten in einem Thread von mir ein Drei-Giebel-Haus incl Nutzkeller bei gleicher Größe auf 274.000€ geschätzt. Von daher finde ich 280.000, ohne dritten Giebel, dafür mit zwei ausgebauten Räumen im Keller i.O.
B
Bauexperte
09.11.15 23:49
Guten Abend,
m_l_r_s schrieb:

Bauexperte hatte mal vor einigen Monaten in einem Thread von mir ein Drei-Giebel-Haus incl Nutzkeller bei gleicher Größe auf 274.000€ geschätzt. Von daher finde ich 280.000, ohne dritten Giebel, dafür mit zwei ausgebauten Räumen im Keller i.O.
Einen Keller zum Wohnraum auszubauen, ist etwas anderes und sehr viel teurer, als ebenerdig einen 3. Giebel zu erstellen 😉

Du wirst mit Deinen TEUR 280 für das Haus incl. Nutzkeller in der Variante Schlüsselfertig (ohne Malerarbeiten + Bodenbeläge) wie das Carport imho hinkommen. Der Ausbau des Kellers wird teurer, als ein 3. Giebel, soll er von Anfang an zu einem Wohnkeller ausgebaut werden.

Dazu sollte die Kellerhöhe auf 2.50 m im Lichten angehoben werden (übliche Nutzkeller haben eine Rohbauhöhe von 2.30 m). Dann muß die Kellerdämmung erhöht werden, auf gute 120 mm. Eine Bodenebene sollten die Kellerräume sicher auch haben; auch, wenn Du lediglich 2 Räume als Wohnräume nutzen willst. Plus 2er Wohnraumfenster, Fußbodenheizung, plus eventuelle Mehrkosten sich ergebend aus einem Bodengutachten ... da kommt einiges auf Dich zu.

Du kannst aber auch "nur" die Kellererhöhung, die Dämmung, die Wohnraumfenster (an Fluchtweg denken!), 2 Niedertemperaturheizkörper sowie den Estrich kaufen; dazu läßt Du die erforderlichen Anschlüsse für Heizung und Strom in den Zimmer "Arbeiten" unter Putz ausführen. Das wird sich - vorbehaltlich eventueller Maßnahmen, sich ergebend aus dem Bodengutachten - gute TEUR 13/15 kosten. Bei dieser Variante mußt Du darauf achten, daß die Luft-Wasser-Wärmepumpe den Bedarf des Kellers an Wärme auch abdecken kann.

Da die Technik in den Keller soll, muß der Hauswirtschaftsraum zusätzlich gedämmt werden; sollte es beim reinen Nutzkeller bleiben.

Grüße, Bauexperte
gäste-wcnutzkellerarbeitszimmerdachfenstercarportplanertreppegiebelküchegrundstück