ᐅ Grundrissplanung Doppelhaushälfte für 1 Familie (4 Personen) auf kleinem Grundstück
Erstellt am: 01.08.24 00:05
P
philipp013P
philipp01301.08.24 00:05Hallo,
wir werden nächstes Jahr bauen, haben ein kleines Grundstück gefunden und gekauft und auch schon einen Hausanbieter (warten noch auf Fördermittel, daher geht es gerade nicht weiter) - Was die Planung angeht ist die "Vorplanung" des Bauberaters vom Fertighausanbieter in meinen Augen nur ein Vorschlag und noch weit weg von optimal, daher hoffe ich, dass ich vom kollektiven Wissen und von den Erfahrungen hier im Forum profitieren kann. Ich habe die Grundrisse (anonymisiert) als Bilder angehängt.
Meine Kernthemen gerade sind Folgenden:
Wie verteilen wir Kinder- und Elternschlafzimmer?
Wo kommt das Arbeitszimmer unter?
Wie bekommen wir zwei schöne Bäder auf engem Raum hin, eins mit Fokus für die Kinder, eins mehr für uns?
Welche Alternativen bei Koch-Wohn-Ess-Bereich gibt es, evtl. auch nicht-offen?
Hier weitere Informationen:
Bebauungsplan/Einschränkungen
Größe des Grundstücks: 270m² - 27x10m
Hang: nein, aber Böschung, Straße liegt ca. 1,4m höher als der Rest des Grundstücks.
Grundflächenzahl: 0,4
Baufenster, Baulinie und -grenze: 12x10m Baufenster, 3m von Straße, Skizze ist angehängt
Randbebauung verpflichtend, da Doppelhaushälfte (sh. Plan)
Anzahl Stellplatz: 2
Geschossigkeit: 2,5 (2 Vollgeschosse sind vorgeschrieben, 6,5m Traufhöhe sind auch verbindlich vorgeschrieben, ebenso maximal 10m Gebäudehöhe insgesamt (von Straßenniveau)
Dachform: 35° Satteldach
Stilrichtung: klassisch?
Ausrichtung: Nord-Süd
Maximale Höhen/Begrenzungen: sh. oben, 10m maximal, exakt 6,5m Traufhöhe
Anforderungen der Bauherren
Keller, Geschosse: Wegen Böschung der geringen Fläche möchten wir einen Nutzkeller haben, das DG möchten wir gerne ausbauen (jetzt oder später)
Anzahl der Personen, Alter: 2 Erwachsene, Ende 30, 2 Kinder (0 und 3)
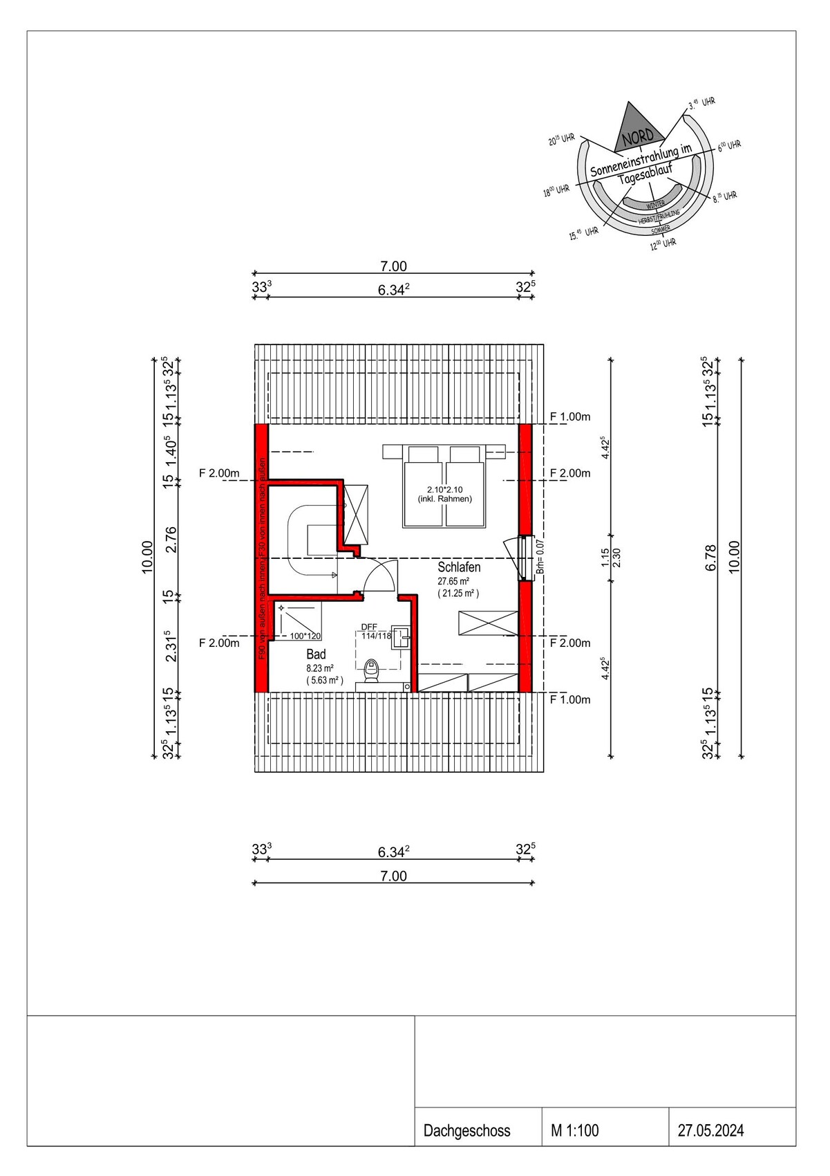
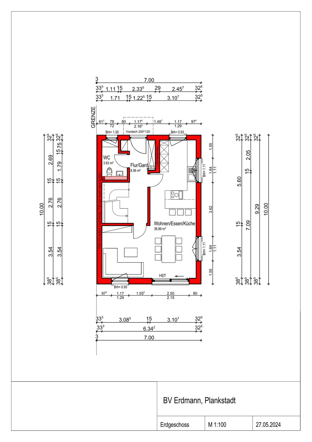
Raumbedarf im EG, OG: Keller: Wäsche- und Technikraum, Hobbyraum, evtl. mit Treppe nach draußen; EG Wohnen, Essen, Kochen, Gäste-WC, evtl. Arbeitszimmer, OG: 2 Kinderzimmer (möglichst 14-15 m² groß, Badezimmer, evtl. Arbeitszimmer oder Gästezimmer oder Elternschlafzimmer (halte ich für zu eng, aber bin für Vorschläge offen!), DG: zusätzliches Bad (unklar ist, ob im OG oder DG ein Wannenbad geschaffen werden sollte), Elternschlafzimmer, evtl. Arbeitszimmer (eigentlich brauchen wir kein riesiges Schlafzimmer, daher die Überlegungen. Durch das Alter der Kinder würden wir eigentlich bevorzugen mit ihnen auf einer Etage zu leben, bekomme aber keinen schönen Grundriss hin, der die drei Schlafzimmer und ein Bad unterbringt)
Büro: Familiennutzung oder Homeoffice? Homeoffice zwingend erforderlich, zumindest ein Kleines
offene oder geschlossene Architektur darf gerne offen sein, allerdings wollen wir bspw. trotz offenem Wohn-Koch-Ess-Bereich die Treppe getrennt haben, um mögliche Lärmbelästigung (durch Kinder bspw) oder Geruchsbelästigung zu vermeiden. Sind aber für Vorschläge offen!
konservativ oder moderne Bauweise: ich denke eher modern aber schlicht
offene Küche, Kochinsel: gerne offene Küche, haben an eine L-Form mit kleiner Theke gedacht. Kochen gerne und viel, daher wäre das schon ein wichtiger Ort
Anzahl Essplätze: 6-8 Plätze, ein Esstisch. Falls Küche und Wohn-Esszimmer getrennt sein sollten vermutlich 2. Essplatz in der Küche
Kamin: nein
Musik/Stereowand: braucht es nicht
Balkon, Dachterrasse: nein
Garage, Carport: Carport ist angedacht, evtl. mit Abstellraum
Nutzgarten, Treibhaus: nicht geplant
weitere Wünsche/Besonderheiten/Tagesablauf, gern auch Begründungen, warum dieses oder das nicht sein soll:
Da das zweite Kind gerade noch ungeboren ist, sind wir bzgl. Tagesablauf noch nicht 100%ig sicher, wie es sein wird, aktuell leben wir in einer 4-Zimmer-Wohnung. Wir würden eigentlich gerne alle Schlafzimmer in einem Geschoss haben (vermutlich könnten wir da auch umziehen, also würden wir dann evtl. nur die ersten Jahre auf einer Ebene wohnen und dann ins DG ziehen?!), meine Frau will unbedingt in dem Geschoss in dem wir schlafen ein WC oder lieber ein Duschbad haben. Wir verbringen viel Zeit in der Küche bzw. im Esszimmer, sitzen eigentlich nicht so oft auf dem Sofa, der Koch-Ess-Bereich fühlt sich zentraler für uns an als das Sofa.
Ich arbeite oft im Homeoffice, daher muss das auf jeden Fall mehr als nur eine Kammer sein, braucht aber nur einen Schreibtisch und ein wenig Stauraum für Ordner etc. Sollte aber auch die Möglichkeit bieten, mich zurückzuziehen (bspw. auch mal abends am PC oder so), meine Frau arbeitet zT auch zuhause (Lehrerin), daher wären 2 Schreibtische klasse, wir wissen aber, dass es knapp wird..
Hausentwurf
Von wem stammt die Planung: Hausverkäufer/"Planer" Fertighaus-Unternehmen
Was gefällt besonders? Warum?: die recht großen Kinderzimmer, weil die für uns wichtiger als das Elternschlafzimmer sind (da muss nur Bett und Schrank rein),
Ein Büro mit ausreichend Beleuchtung, damit die Arbeit einigermaßen Spaß macht.
Viele Fenster (vor allem im EG), hoffentlich ausreichend Licht dadurch.
Viel Platz im EG, weil sich da wohl viel Zeit unseres Familienlebens abspielen wird in den nächsten Jahren.
Was gefällt nicht? Warum?:
Das "große" Bad im OG falls wir im DG leben werden und eigentlich gerne die Gemütlichkeit durch die Badewanne hätten und das den Kindern vermutlich recht egal sein wird..
Das DG-Fenster auf der Südseite sollte weg, daher sollte auch das Bad auf die Nordseite wandern - die Südseite soll mit Photovoltaik voll gebaut werden. aktuell würde durch die Position der Treppe das Ganze dadurch verschoben werden, mir fehlt das Verständnis, wie die Räume danach aussehen könnten oder wie man es sonst lösen könnte.
Evtl. das Büro im OG, falls die Kinder dann mal laut sein sollten und ich Termine habe..
Das Gefühl, dass das weitläufige EG Platz verschwendet und evtl. dann keine Rückzugsorte oder sonstwas bieten könnte.
Preisschätzung laut Architekt/Planer: ca. 415.000 Euro
Persönliches Preislimit fürs Haus, inkl. Ausstattung: ca. 425.000 Euro
favorisierte Heiztechnik: Wärmepumpe, Luft-Luft, Innenaufstellung, Fußbodenheizung
Wenn Ihr verzichten müsst, auf welche Details/Ausbauten
-könnt Ihr verzichten: Gästezimmer, deutlich größeres Bad, riesen Büro, riesen Elternschlafzimmer
-könnt Ihr nicht verzichten: zwei Kinderzimmer mit mindestens ca. 14 m², zwei Dusch- oder Wannenbäder insgesamt, Gäste-WC,
Warum ist der Entwurf so geworden, wie er jetzt ist?
Stark am Standard orientiert mit ein paar Wünschen, wie bspw. die größeren Kinderzimmer. Insgesamt wurde hier aber noch gar nicht wirklich überlegt, was man wie sinnvoll machen kann, damit es sich auch gut anfühlt, dort zu leben.






wir werden nächstes Jahr bauen, haben ein kleines Grundstück gefunden und gekauft und auch schon einen Hausanbieter (warten noch auf Fördermittel, daher geht es gerade nicht weiter) - Was die Planung angeht ist die "Vorplanung" des Bauberaters vom Fertighausanbieter in meinen Augen nur ein Vorschlag und noch weit weg von optimal, daher hoffe ich, dass ich vom kollektiven Wissen und von den Erfahrungen hier im Forum profitieren kann. Ich habe die Grundrisse (anonymisiert) als Bilder angehängt.
Meine Kernthemen gerade sind Folgenden:
Wie verteilen wir Kinder- und Elternschlafzimmer?
Wo kommt das Arbeitszimmer unter?
Wie bekommen wir zwei schöne Bäder auf engem Raum hin, eins mit Fokus für die Kinder, eins mehr für uns?
Welche Alternativen bei Koch-Wohn-Ess-Bereich gibt es, evtl. auch nicht-offen?
Hier weitere Informationen:
Bebauungsplan/Einschränkungen
Größe des Grundstücks: 270m² - 27x10m
Hang: nein, aber Böschung, Straße liegt ca. 1,4m höher als der Rest des Grundstücks.
Grundflächenzahl: 0,4
Baufenster, Baulinie und -grenze: 12x10m Baufenster, 3m von Straße, Skizze ist angehängt
Randbebauung verpflichtend, da Doppelhaushälfte (sh. Plan)
Anzahl Stellplatz: 2
Geschossigkeit: 2,5 (2 Vollgeschosse sind vorgeschrieben, 6,5m Traufhöhe sind auch verbindlich vorgeschrieben, ebenso maximal 10m Gebäudehöhe insgesamt (von Straßenniveau)
Dachform: 35° Satteldach
Stilrichtung: klassisch?
Ausrichtung: Nord-Süd
Maximale Höhen/Begrenzungen: sh. oben, 10m maximal, exakt 6,5m Traufhöhe
Anforderungen der Bauherren
Keller, Geschosse: Wegen Böschung der geringen Fläche möchten wir einen Nutzkeller haben, das DG möchten wir gerne ausbauen (jetzt oder später)
Anzahl der Personen, Alter: 2 Erwachsene, Ende 30, 2 Kinder (0 und 3)
Raumbedarf im EG, OG: Keller: Wäsche- und Technikraum, Hobbyraum, evtl. mit Treppe nach draußen; EG Wohnen, Essen, Kochen, Gäste-WC, evtl. Arbeitszimmer, OG: 2 Kinderzimmer (möglichst 14-15 m² groß, Badezimmer, evtl. Arbeitszimmer oder Gästezimmer oder Elternschlafzimmer (halte ich für zu eng, aber bin für Vorschläge offen!), DG: zusätzliches Bad (unklar ist, ob im OG oder DG ein Wannenbad geschaffen werden sollte), Elternschlafzimmer, evtl. Arbeitszimmer (eigentlich brauchen wir kein riesiges Schlafzimmer, daher die Überlegungen. Durch das Alter der Kinder würden wir eigentlich bevorzugen mit ihnen auf einer Etage zu leben, bekomme aber keinen schönen Grundriss hin, der die drei Schlafzimmer und ein Bad unterbringt)
Büro: Familiennutzung oder Homeoffice? Homeoffice zwingend erforderlich, zumindest ein Kleines
offene oder geschlossene Architektur darf gerne offen sein, allerdings wollen wir bspw. trotz offenem Wohn-Koch-Ess-Bereich die Treppe getrennt haben, um mögliche Lärmbelästigung (durch Kinder bspw) oder Geruchsbelästigung zu vermeiden. Sind aber für Vorschläge offen!
konservativ oder moderne Bauweise: ich denke eher modern aber schlicht
offene Küche, Kochinsel: gerne offene Küche, haben an eine L-Form mit kleiner Theke gedacht. Kochen gerne und viel, daher wäre das schon ein wichtiger Ort
Anzahl Essplätze: 6-8 Plätze, ein Esstisch. Falls Küche und Wohn-Esszimmer getrennt sein sollten vermutlich 2. Essplatz in der Küche
Kamin: nein
Musik/Stereowand: braucht es nicht
Balkon, Dachterrasse: nein
Garage, Carport: Carport ist angedacht, evtl. mit Abstellraum
Nutzgarten, Treibhaus: nicht geplant
weitere Wünsche/Besonderheiten/Tagesablauf, gern auch Begründungen, warum dieses oder das nicht sein soll:
Da das zweite Kind gerade noch ungeboren ist, sind wir bzgl. Tagesablauf noch nicht 100%ig sicher, wie es sein wird, aktuell leben wir in einer 4-Zimmer-Wohnung. Wir würden eigentlich gerne alle Schlafzimmer in einem Geschoss haben (vermutlich könnten wir da auch umziehen, also würden wir dann evtl. nur die ersten Jahre auf einer Ebene wohnen und dann ins DG ziehen?!), meine Frau will unbedingt in dem Geschoss in dem wir schlafen ein WC oder lieber ein Duschbad haben. Wir verbringen viel Zeit in der Küche bzw. im Esszimmer, sitzen eigentlich nicht so oft auf dem Sofa, der Koch-Ess-Bereich fühlt sich zentraler für uns an als das Sofa.
Ich arbeite oft im Homeoffice, daher muss das auf jeden Fall mehr als nur eine Kammer sein, braucht aber nur einen Schreibtisch und ein wenig Stauraum für Ordner etc. Sollte aber auch die Möglichkeit bieten, mich zurückzuziehen (bspw. auch mal abends am PC oder so), meine Frau arbeitet zT auch zuhause (Lehrerin), daher wären 2 Schreibtische klasse, wir wissen aber, dass es knapp wird..
Hausentwurf
Von wem stammt die Planung: Hausverkäufer/"Planer" Fertighaus-Unternehmen
Was gefällt besonders? Warum?: die recht großen Kinderzimmer, weil die für uns wichtiger als das Elternschlafzimmer sind (da muss nur Bett und Schrank rein),
Ein Büro mit ausreichend Beleuchtung, damit die Arbeit einigermaßen Spaß macht.
Viele Fenster (vor allem im EG), hoffentlich ausreichend Licht dadurch.
Viel Platz im EG, weil sich da wohl viel Zeit unseres Familienlebens abspielen wird in den nächsten Jahren.
Was gefällt nicht? Warum?:
Das "große" Bad im OG falls wir im DG leben werden und eigentlich gerne die Gemütlichkeit durch die Badewanne hätten und das den Kindern vermutlich recht egal sein wird..
Das DG-Fenster auf der Südseite sollte weg, daher sollte auch das Bad auf die Nordseite wandern - die Südseite soll mit Photovoltaik voll gebaut werden. aktuell würde durch die Position der Treppe das Ganze dadurch verschoben werden, mir fehlt das Verständnis, wie die Räume danach aussehen könnten oder wie man es sonst lösen könnte.
Evtl. das Büro im OG, falls die Kinder dann mal laut sein sollten und ich Termine habe..
Das Gefühl, dass das weitläufige EG Platz verschwendet und evtl. dann keine Rückzugsorte oder sonstwas bieten könnte.
Preisschätzung laut Architekt/Planer: ca. 415.000 Euro
Persönliches Preislimit fürs Haus, inkl. Ausstattung: ca. 425.000 Euro
favorisierte Heiztechnik: Wärmepumpe, Luft-Luft, Innenaufstellung, Fußbodenheizung
Wenn Ihr verzichten müsst, auf welche Details/Ausbauten
-könnt Ihr verzichten: Gästezimmer, deutlich größeres Bad, riesen Büro, riesen Elternschlafzimmer
-könnt Ihr nicht verzichten: zwei Kinderzimmer mit mindestens ca. 14 m², zwei Dusch- oder Wannenbäder insgesamt, Gäste-WC,
Warum ist der Entwurf so geworden, wie er jetzt ist?
Stark am Standard orientiert mit ein paar Wünschen, wie bspw. die größeren Kinderzimmer. Insgesamt wurde hier aber noch gar nicht wirklich überlegt, was man wie sinnvoll machen kann, damit es sich auch gut anfühlt, dort zu leben.
Das erinnert mich an Goalkeeper, der Thread ist insgesamt lesenswert, auch wg. Problemen, die mit dem zweiten Bauherrn auftreten können: https://www.hausbau-forum.de/threads/grundrissplanung-reh-mit-ca-145qm.31278/
425000 Euro fürs Haus incl. Keller halte ich für sportlich.
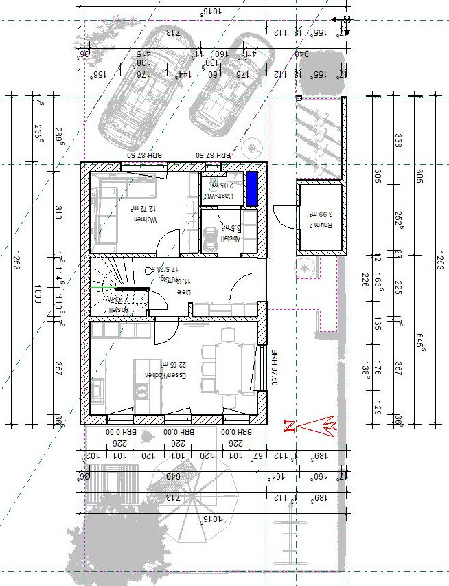
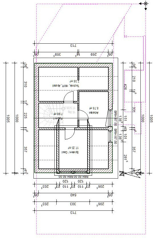
Für Goalkeeper hatte ich mal einen Entwurf gemacht, der die Technik im Dachboden vorsah, die Stellplätze schräg nebeneinander vorm Haus. Dafür rechts vom Haus auf der Grenze eine Art Gartenschuppen mit abschließbarem Vorbau für die Fahrräder.
Das macht vielleicht den Garten hinter dem Haus etwas kleiner, dann aber voll nutzbar. Und einen gut erreichbaren Platz für Fahrräder sollte man einplanen. Dafür liegt die Küche schön direkt am Garten und der Wohnbereich ist eher Rückzugsbereich für TV/Lesen etc.
Eingang seitlich ... hier einfach mal die Bilder ohne weiteren Kommentar.





425000 Euro fürs Haus incl. Keller halte ich für sportlich.
Für Goalkeeper hatte ich mal einen Entwurf gemacht, der die Technik im Dachboden vorsah, die Stellplätze schräg nebeneinander vorm Haus. Dafür rechts vom Haus auf der Grenze eine Art Gartenschuppen mit abschließbarem Vorbau für die Fahrräder.
Das macht vielleicht den Garten hinter dem Haus etwas kleiner, dann aber voll nutzbar. Und einen gut erreichbaren Platz für Fahrräder sollte man einplanen. Dafür liegt die Küche schön direkt am Garten und der Wohnbereich ist eher Rückzugsbereich für TV/Lesen etc.
Eingang seitlich ... hier einfach mal die Bilder ohne weiteren Kommentar.
H
hanghaus202301.08.24 12:27Gibt es denn den anderen Doppelhaushälfte Bauer schon?
philipp013 schrieb:
Das DG-Fenster auf der Südseite sollte weg, daher sollte auch das Bad auf die Nordseite wandernDie Verlegung des Bades nach planoben macht deshalb schon Sinn, weil Toiletten über das Dach entwässern (alle) und somit es günstiger ist, alle übereinander zu planen, außerdem will keiner das Abflussrohr im EG WZ haben.philipp013 schrieb:
Position der Treppe das Ganze dadurch verschoben werden,Die hat hier kaum Spiel! Wegen der Höhen des Daches. Ich würde sie dort lassen und entsprechend das Bad etwas anpassen.philipp013 schrieb:
keine RückzugsorteWieviel braucht Ihr? Ihr habt doch das DG für Euch?Allerdings würde ich das WZ mit Kü tauschen. Dafür das WC schmaler machen, Garderobe nach planlinks und den Raum als Rückzug planen. Küche wäre dann an der Terrasse und somit trennt man Lebebereich von Ruhebereich.
H
hanghaus202301.08.24 20:29ypg schrieb:
Die Verlegung des Bades nach planoben macht deshalb schon Sinn, weil Toiletten über das Dach entwässernDas meinst Du doch nicht wirklich. Oder ist das Autokorrektur. Eher entlüften.K
K a t j a03.08.24 20:59Das Budget ist äußerst knapp und passt m.E. nicht zu Euren Wünschen. Das merkt man auch daran, dass der Planer schon ganz knapp unter Eurem Maximum liegt und die untertreiben ja gern. Nach Adam Riese und Eva Zwerg reicht es imho gerade für 2 Etagen und Keller. Dach wird schon dünne. Wenn ich das richtig sehe, könntet Ihr eigentlich 7x12 bebauen aber die Kohle erlaubt nur 7x10, richtig? Das ist leider nicht sehr ermutigend. Unter diesen Umständen sehe ich auch keine 15qm Kinderzimmer. Die Skizzen zeigen ja sehr schön, dass man kaum noch irgendwo qm abknapsen könnte, um sie den Kindern zu geben. Ich finde allerdings 13qm für Kinder auch vollkommen okay.
Insgesamt hab ich die Befürchtung, dass Ihr Eure Ansprüche etwas runter schrauben müsst oder das Budget aufdrehen.
Insgesamt hab ich die Befürchtung, dass Ihr Eure Ansprüche etwas runter schrauben müsst oder das Budget aufdrehen.
Ähnliche Themen