Grundriss MGH 200QM - Bewertung Ideen

4,80 Stern(e) 5 Votes
Zuletzt aktualisiert 19.11.2025
Sie befinden sich auf der Seite 6 der Diskussion zum Thema: Grundriss MGH 200QM - Bewertung Ideen
>> Zum 1. Beitrag <<

O

os24laenger

Ich vermute, da wirst Du für die Visualisierung ein ähnlich ich sachsma nett "merkwürdiges" Rechenmodell der Treppe angenommen haben wie in der Zeichnung.
Ja die Stufen/Treppe sind symbolisch, ich habe nur die Winkel (30-35 grad, etwa 4 m Treppe Länge) berechnet und das ganze so gestretcht.
 
Hangman

Hangman

Die Eingangssituation funktioniert so deutlich besser, ist ggü dem tollen, offenen Koch/Wohn/Essbereich aber weiterhin irgendwie verbaut, sorry. Sofern es so bleiben sollte, könnte die Wand von Flur zu Technik bzw Schlafzimmer nach planrechts verschoben werden um mit der WC Wand abzuschliessen. Der Raum wohin die Türen derzeit öffnen kann ohnehin nicht genutzt werden, und so könntet ihr das WC unter die Treppe hängen und die Tür nach rechts verschieben. Ich bin mir aber nicht sicher, ob iterative Verbesserung überhaupt ausreichen, oder ob man das erste Drittel des EG zusammen mit dem OG denken, und ggf komplett umstellen sollte.
Ich bin z.B. noch immer kein Freund von diesem En-Suite Bad weil es viel Platz verbraucht und die flexible Raumnutzung des Schlafzimmer einschränkt. Ich verstehe aber, dass ihr nicht vom Schlafzimmer durch den Flur ins Bad wollt... warum also nicht Schlafen nach oben und unten ein kombiniertes Gast-/Arbeitszimmer? Ist zwar Standard, aber muß deshalb ja nicht schlecht sein. Zur Raumnutzung im Tagesablauf passt das jedenfalls besser.
Ebenfalls ein Befreiungsschlag wäre es, Anschlüsse und Haustechnik in die Garage zu verlegen (sofern möglich).
 
O

os24laenger

Ich bin z.B. noch immer kein Freund von diesem En-Suite Bad weil es viel Platz verbraucht und die flexible Raumnutzung des Schlafzimmer einschränkt. Ich verstehe aber, dass ihr nicht vom Schlafzimmer durch den Flur ins Bad wollt... warum also nicht Schlafen nach oben und unten ein kombiniertes Gast-/Arbeitszimmer? Ist zwar Standard, aber muß deshalb ja nicht schlecht sein.
Ja das haben wir Heute schon so, solange die Kinder noch klein (<20 Anno's) sind tut das auch gut, das dauert aber nicht mehr lange hier, dafür baue ich nicht. Wenn die mal mit ein Partner und oder Enkel ODER doch Oma/Opa oben wohnen dann brauchst du m.M.n die Trennung, sonst gibt es irgendwann Krieg.

kombiniertes Gast-/Arbeitszimmer? > Haben wir Heute auch so, bedeutet Aktuell das Gästen (Familie die länger bleiben) in unseres Schlafzimmer schlafen, wir im AZ weil ich auch arbeiten muss und die Gäste sonst kein rückzugsraum haben (Mittagschlaf oder so) oder auch nicht ausschlafen können, nicht optimal.

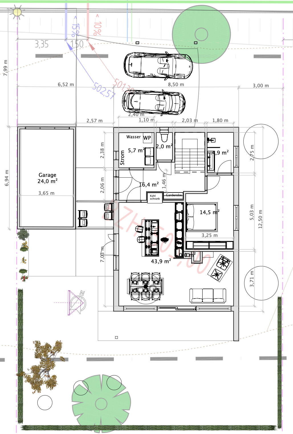
Habe es in die letzte Tage nochmal geändert, SpeiseK gestrichen, Bäder oben einander, Küche größer, Haus insgesamt 75cm kurzer (Ja Kosten sparen :) ). Flur immer noch Eng aber größer dann unsere jetzige Flur.

Grundriss eines Hauses: Garage mit zwei Autos, Balkon, verschiedene Zimmer, Garten.


Grundriss eines Hauses mit Garage, Einfahrt und Garten; Wohn-, Ess- und Schlafräume.
 
O

os24laenger

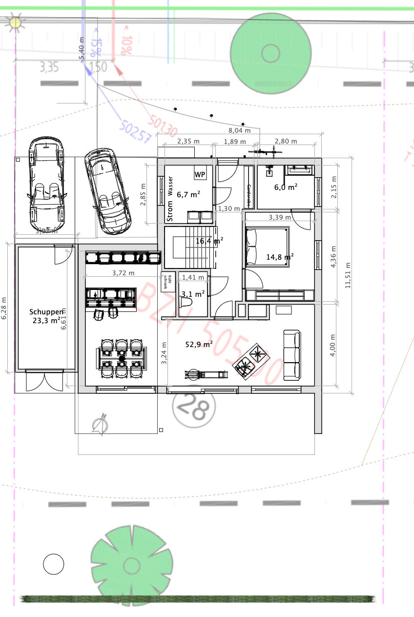
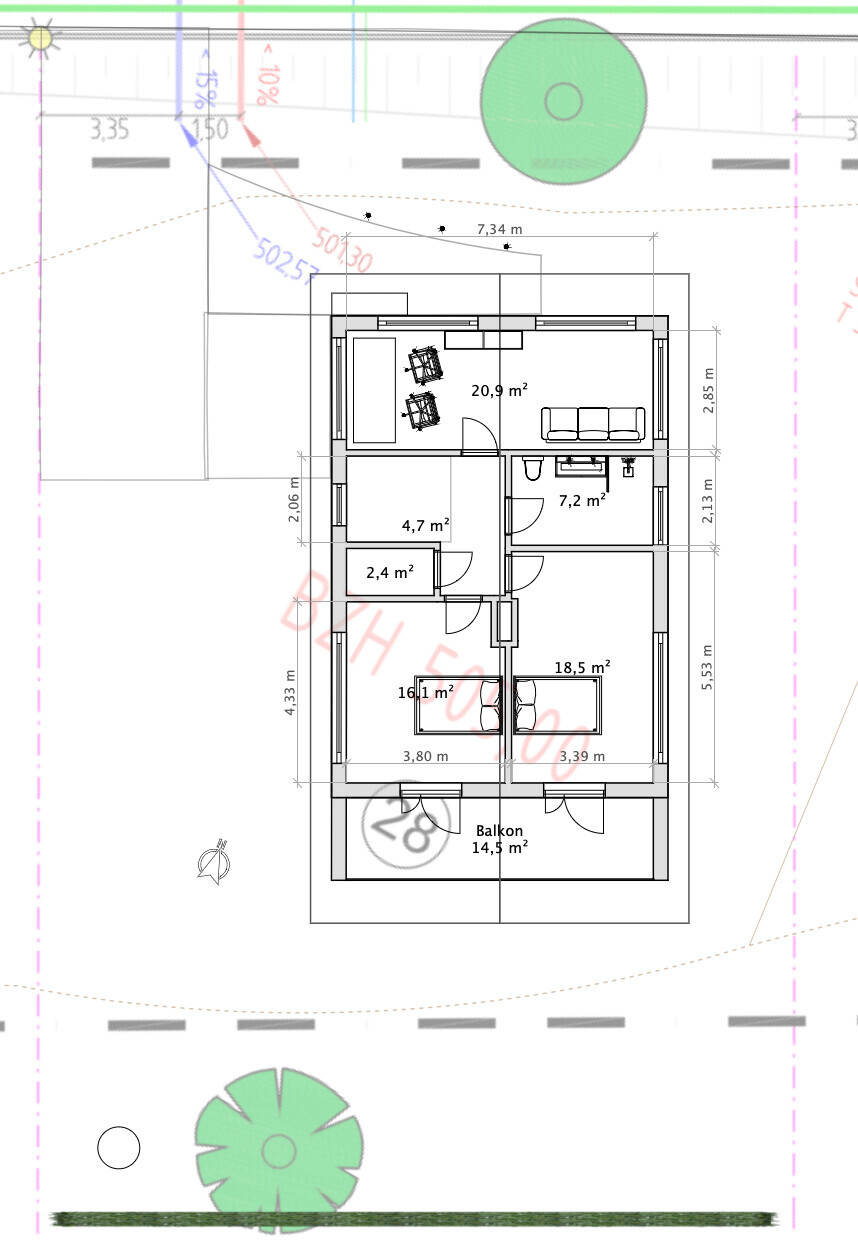
Und nochmal ein wenig getuned, im EG nur noch ein Klo, Oben 1 Zimmer weniger, Haus insgesamt etwas kleiner geworden. Technik leider wieder etwas kleiner geworden.

Grundriss eines Hauses mit Doppelgarage, Balkon, Garten; Räume: Wohnzimmer, Schlafzimmer, Küche, Bad


Hausgrundriss: Garage, zwei Parkplätze, offener Wohnbereich, Schlafzimmer.
 
O

os24laenger

So mal wieder ein update, damit Ihr auch mal wieder was zum lachen habt :).
Grundriss wurde nochmal deutlich umgebaut, Grundfläche im OG reduziert über ein Anbau im EG.
Anforderungen an das OG nochmal reduziert und Gäste-Chill-Arbeitszimmer zusammengelegt und Einzug Oma/OPa nur wenn mindestens 1 Kind aus dem Haus ist. Garage gestrichen, dafür nur ein "Schuppen", Carport optimiert damit weniger Pflaster benötigt wird.
Im Summe sind wir recht zufrieden, aber vielleicht fällt jemand noch ein Problemstelle auf.

Grundriss einer Wohnung mit Wohnzimmer, Schlafzimmer, Bad, Balkon und Außenbereich.


Grundriss eines Wohnhauses mit Garage, Schuppen, Wohnzimmer, Schlafzimmer und Außenbereich.


Modernes Holzhaus mit weißer Grundfläche, graues Satteldach, Fahrrad vor Tür, zwei Autos in Einfahrt


Zweistöckiges Haus mit Holzwandverkleidung, großen Glasfronten, Balkon und Dachgarten.
 
Zuletzt aktualisiert 19.11.2025
Im Forum Grundrissplanung / Grundstücksplanung gibt es 2536 Themen mit insgesamt 87981 Beiträgen


Ähnliche Themen zu Grundriss MGH 200QM - Bewertung Ideen
Nr.ErgebnisBeiträge
1 2 Vollgeschosse, Durchgang Garage, Hauswirtschaftsraum unter Treppe 25
2Grundriss: 150qm Einfamilienhaus+Einliegerwohnung - Carport / Garage + Schuppen / Werkstatt - Seite 545
3Grundriss, längliches Einfamilienhaus, integrierte Garage kein Keller 16
4Treppe im Flur, Grundriss steht eigentlich schon :o( - Seite 320
5Grundriss: ~150m² Einfamilienhaus Bad Anordnung im OG 23
6Grundrissfrage: Tausch gerader Treppe durch L-Treppe 31
7Grundriss Einfamilienhaus (ca. 170 qm) mit Garage - Hanglage 35
8Idee Schlafzimmer - Bett / Schrank Anordnung 32
9Grundrissplanung: Flur im EG breit genug? - Seite 457
10Grundriss Einfamilienhaus 240 m² mit teilüberbauter Garage - Seite 496
11Grundriss Einfamilienhaus / Garage im EG? 10
12Treppe im Wohnzimmer als Hype - Pro & Contra? - Seite 426
13Haus ohne Garage und Keller? Ausbau Dachboden? Fresswarze? - Seite 585
14Grundriss Einfamilienhaus 1 Vollgeschoss Technik und Tageslicht - Seite 3194
15Grundriss Einfamilienhaus 136m² mit Garage & Keller 17
16Lage von Haus & Garage im Baufenster planen *Vorplanung* - Seite 4129
17Grundrissplanung Einfamilienhaus (190 qm) mit Garage 18
18Grundrissplanungen Einfamilienhaus und Garage - Seite 332
19Bungalow mit 140qm und Garage im Grundriss 13
20Extra-Bad vom Schlafzimmer oder doch Abstellraum? 29

Oben