G
GeradeSchräg
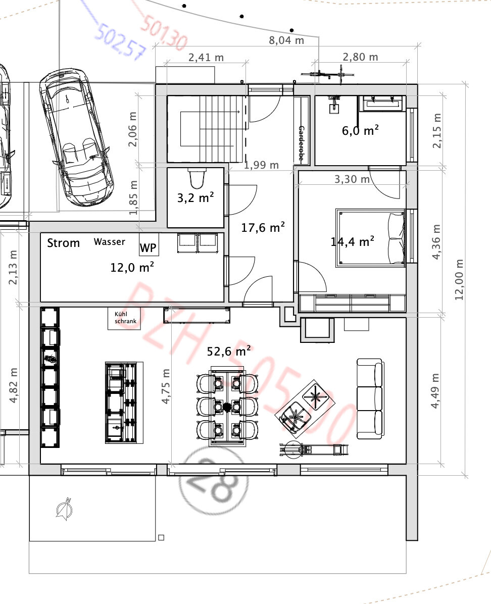
Ich dachte die Küche/Essen soll im Mittelpunkt stehen?!
Ich kann es nachvollziehen, wenn man sich mit dem eigenen Grundriss auseinandersetzen möchte und ausprobiert. Macht ja auch etwas Spaß
Aber irgendwie ändern sich ständig die Prioritäten.
Daher, vor allem wenn du am Wochenende noch einmal etwas anderes "bauen" möchtest. Erstellt eine Liste was Ihr braucht. Legt fest wo ihr bevorzugt den Eingang hättet, bzw. wo er am meisten Sinn macht. Legt, wichtig, eine Treppenform fest!
Technikraum würde ich auf keinen Fall kleiner als 10m² machen.
Prioritäten setzen und vor allem realistisch bleiben!
Die Holzverkleidung, das verlängerte Dach über den Balkon, der Balkon an sich wollen alle bezahlt werden.
An einem gewissen Punkt haben wir auch festgestellt das man rational entscheiden muss, was man sich finanziell erlauben kann und wo Abstriche erforderlich sind.
Ich kann es nachvollziehen, wenn man sich mit dem eigenen Grundriss auseinandersetzen möchte und ausprobiert. Macht ja auch etwas Spaß
Aber irgendwie ändern sich ständig die Prioritäten.
Daher, vor allem wenn du am Wochenende noch einmal etwas anderes "bauen" möchtest. Erstellt eine Liste was Ihr braucht. Legt fest wo ihr bevorzugt den Eingang hättet, bzw. wo er am meisten Sinn macht. Legt, wichtig, eine Treppenform fest!
Technikraum würde ich auf keinen Fall kleiner als 10m² machen.
Prioritäten setzen und vor allem realistisch bleiben!
Die Holzverkleidung, das verlängerte Dach über den Balkon, der Balkon an sich wollen alle bezahlt werden.
An einem gewissen Punkt haben wir auch festgestellt das man rational entscheiden muss, was man sich finanziell erlauben kann und wo Abstriche erforderlich sind.