Hallo alle zusammen,
erstmal Kompliment an dieses tolle Forum, bin noch nicht lange hier hab aber schon viele nützliche Dinge entdecken können.;)
Wir planen seit geraumer Zeit unser Einfamilienhaus und sind mit der Planung schon recht weit. Da wir recht jung und unerfahren sind müssen wir uns viel auf unseren Architekten verlassen. Deshalb wollten wir ganz gerne eine andere Meinung dazu hören und freuen uns auf jeden Verbesserungsvorschlag.
Vielleicht mal ein paar Einzelheiten auf die wir unsere Planung aufgebaut haben.
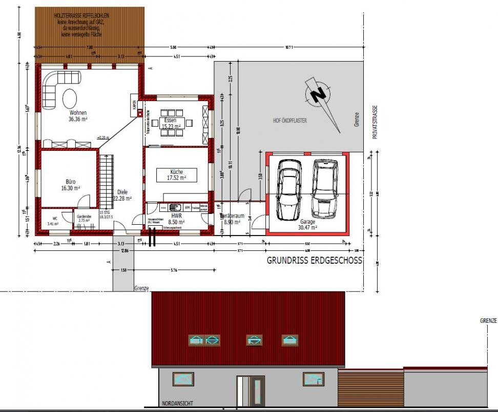
• Die Garage bzw. der Schuppen soll einen Durchgang zum Haus/ Hauswirtschaftsraum haben. Für Einkäufe, um einen weiteren Eingang zum Hof zu haben etc.
• Das Wohnzimmer wurde offen gestaltet und nach oben hin mit einer Galerie versehen. Durch den freistehenden Kamin soll es der Blickfang im Haus werden.
• Die Treppe soll geschlossen sein, womit unter der Treppe ein Abstellraum entsteht.
• Im DG sollte eine separates Elternbad und eine Ankleide vorhanden sein.
• Über die möglichkeit den Dachboden auszubauen oder für die Kinder eine weitere Ebene auszubauen wird nachgedacht.
Was uns bis jetzt nicht zusagt ist die Garagen/ Schuppen positionierung. Da wird nach einer anderen Möglichkeit gearbeitet.
Entweder Einfahrt und Garten mit einem zusätzlichen Zaun trennen oder die Garagen Einfahrt auf die Nebenstrasse legen.
Für weitere Ideen und Hilfestellung wären wir euch dankbar.



erstmal Kompliment an dieses tolle Forum, bin noch nicht lange hier hab aber schon viele nützliche Dinge entdecken können.;)
Wir planen seit geraumer Zeit unser Einfamilienhaus und sind mit der Planung schon recht weit. Da wir recht jung und unerfahren sind müssen wir uns viel auf unseren Architekten verlassen. Deshalb wollten wir ganz gerne eine andere Meinung dazu hören und freuen uns auf jeden Verbesserungsvorschlag.
Vielleicht mal ein paar Einzelheiten auf die wir unsere Planung aufgebaut haben.
• Die Garage bzw. der Schuppen soll einen Durchgang zum Haus/ Hauswirtschaftsraum haben. Für Einkäufe, um einen weiteren Eingang zum Hof zu haben etc.
• Das Wohnzimmer wurde offen gestaltet und nach oben hin mit einer Galerie versehen. Durch den freistehenden Kamin soll es der Blickfang im Haus werden.
• Die Treppe soll geschlossen sein, womit unter der Treppe ein Abstellraum entsteht.
• Im DG sollte eine separates Elternbad und eine Ankleide vorhanden sein.
• Über die möglichkeit den Dachboden auszubauen oder für die Kinder eine weitere Ebene auszubauen wird nachgedacht.
Was uns bis jetzt nicht zusagt ist die Garagen/ Schuppen positionierung. Da wird nach einer anderen Möglichkeit gearbeitet.
Entweder Einfahrt und Garten mit einem zusätzlichen Zaun trennen oder die Garagen Einfahrt auf die Nebenstrasse legen.
Für weitere Ideen und Hilfestellung wären wir euch dankbar.
Hallo,
könnte man die Garage drehen? Zur Nebenstrasse? Dann spart Ihr Euch die grosse Pflasterung 😉
Zugang zum Bad bzw Ankleide würde ich nach vorne setzen, dann sind die Wege nicht so lang, und man muss nicht das ganze Schlafzimmer durchqueren. Dusche und Toilette (habt Ihr 2 davon in einem Bad?) entsprechend umplanen.
Bei der Garderobe im EG darauf achten, dass die Tiefe entsprechend grosszügig ist, ansonsten schubbert Ihr immer an Euren Jacken vorbei, wenn es zum WC geht.
Diele/Flur finde ich etwas zu weitläufig. Ansonsten ganz ansprechender Grundriss (ich würde mich wohl fühlen 🙂)
Vielleicht die Küche etwas zum Flur öffnen?
könnte man die Garage drehen? Zur Nebenstrasse? Dann spart Ihr Euch die grosse Pflasterung 😉
Zugang zum Bad bzw Ankleide würde ich nach vorne setzen, dann sind die Wege nicht so lang, und man muss nicht das ganze Schlafzimmer durchqueren. Dusche und Toilette (habt Ihr 2 davon in einem Bad?) entsprechend umplanen.
Bei der Garderobe im EG darauf achten, dass die Tiefe entsprechend grosszügig ist, ansonsten schubbert Ihr immer an Euren Jacken vorbei, wenn es zum WC geht.
Diele/Flur finde ich etwas zu weitläufig. Ansonsten ganz ansprechender Grundriss (ich würde mich wohl fühlen 🙂)
Vielleicht die Küche etwas zum Flur öffnen?
Mal was anderes. Ich finde es gar ned so schlecht, nur der Eingang vom Büro durch / in der Garderobe könnte problematisch sein. Parkt der Besuch im Norden? Wenn der im Hof parkt muss er komplett um die Garage rum um ins Haus zu kommen. Da könnte man eventuell neben dem Schuppen einen Durchgang / Wendelgang einplanen?
Für meinen Geschmack ist das Wohnzimmer zu groß und das Esszimmer zu klein, aber das ist eben Geschmacksache...EG Grundriss finde ich im Großen und Ganzen ok, nur die Garderobe reicht die für 4 Personen? Jacken, Schuhe, Mützen, Schals etc in mehrfacher Ausführung? Uns würde der Platz da nicht reichen. Und das Büro soll ernsthaft 16qm groß werden? Was ist dort drin geplant?
Im OG finde ich das Elternbad hinten sehr unglücklich. Wenn die Kinder baden möchten - und kleine Kinder baden ja fast ausschließlich, dann muss man komplett hinten rein. Und ist zwischen Badewanne und Waschbecken nicht zu wenig Platz?
Habt ihr 2 Toiletten im Bad?
Die Ankleide wird zu eng sein, um auf beiden Seiten Schränke zu stellen. Zu zweit da drin wäre die reinste Katastrophe.
Und der Luftraum: ja wer's mag. Aber so groß? Meiner Meinung nach verschenkter Platz, aber wenn das so gewünscht ist...
Denkt nur daran, wenn die Kinder schlafen müssen alle leise sein. Für uns mit unseren Kindern wär das nichts. Die sind zwar nicht Lärmempfindlich aber ich denke da an mich: mich würde das stören wenn ich im Bett nicht meine Ruhe hätte. Aber wie gesagt, beim Luftraum jedem das seine.
Im OG finde ich das Elternbad hinten sehr unglücklich. Wenn die Kinder baden möchten - und kleine Kinder baden ja fast ausschließlich, dann muss man komplett hinten rein. Und ist zwischen Badewanne und Waschbecken nicht zu wenig Platz?
Habt ihr 2 Toiletten im Bad?
Die Ankleide wird zu eng sein, um auf beiden Seiten Schränke zu stellen. Zu zweit da drin wäre die reinste Katastrophe.
Und der Luftraum: ja wer's mag. Aber so groß? Meiner Meinung nach verschenkter Platz, aber wenn das so gewünscht ist...
Denkt nur daran, wenn die Kinder schlafen müssen alle leise sein. Für uns mit unseren Kindern wär das nichts. Die sind zwar nicht Lärmempfindlich aber ich denke da an mich: mich würde das stören wenn ich im Bett nicht meine Ruhe hätte. Aber wie gesagt, beim Luftraum jedem das seine.
nochmal geschaut:
Das Wohnzimmer könnte vertragen, dass man das Büro etwas verschiebt, damit der Garderobenbereich sich vergrößert.
Oben würde ich das Kinderbad um das Stück vergrößern, welches über der Treppe vorhanden ist. Scheint ja im Elternbad doch eine tote Ecke zu sein. Eventuell im Kinderbad dann Waschmaschine und Trockner stellen, oben fällt die Wäsche an.
Das Panoramafenster oben wird Euch viel Hitze im Innern bringen, sieht zwar edel aus, dennoch mal überlegen, ob Ihr nicht wegen des Sonneneinfalls verbrutzelt.
Essbereich ist mir auch im Verhältnis zur Küche zu klein, eventuell die Zwischenwand öffnen.
Galerie könnte, wie oben schon gesagt, ein Störfaktor für die Kinder sein.
Das Wohnzimmer könnte vertragen, dass man das Büro etwas verschiebt, damit der Garderobenbereich sich vergrößert.
Oben würde ich das Kinderbad um das Stück vergrößern, welches über der Treppe vorhanden ist. Scheint ja im Elternbad doch eine tote Ecke zu sein. Eventuell im Kinderbad dann Waschmaschine und Trockner stellen, oben fällt die Wäsche an.
Das Panoramafenster oben wird Euch viel Hitze im Innern bringen, sieht zwar edel aus, dennoch mal überlegen, ob Ihr nicht wegen des Sonneneinfalls verbrutzelt.
Essbereich ist mir auch im Verhältnis zur Küche zu klein, eventuell die Zwischenwand öffnen.
Galerie könnte, wie oben schon gesagt, ein Störfaktor für die Kinder sein.
B
backbone2327.07.13 18:09Ich finde diesen Luftraum total schwachsinnig. Von außen sieht es vielleicht toll aus, aber der Nutzwert ist null. Außerdem ist er mit dieser riesigen Fensterfläche und dem Eckgiebel (also die "L"-Form des Hauses) teuer erkauft.
Wie wird diese Fensterfläche geputzt?
Wenn jetzt schon darüber nachgedacht wird den Spitzboden als weiteres Zimmer auszubauen (ob das überhaupt funktioniert ist eh fraglich), würde ich lieber ein weiteres Zimmer im OG planen, als durch diesen Luftraum Platz zu verschenken.
Wie wird diese Fensterfläche geputzt?
Wenn jetzt schon darüber nachgedacht wird den Spitzboden als weiteres Zimmer auszubauen (ob das überhaupt funktioniert ist eh fraglich), würde ich lieber ein weiteres Zimmer im OG planen, als durch diesen Luftraum Platz zu verschenken.
Ähnliche Themen