Grundriss Mehrfamilienhaus mit 4 Wohneinheiten

4,30 Stern(e) 4 Votes
Zuletzt aktualisiert 22.11.2025
Sie befinden sich auf der Seite 11 der Diskussion zum Thema: Grundriss Mehrfamilienhaus mit 4 Wohneinheiten
>> Zum 1. Beitrag <<

R

Robii84

Darum wird ja jetzt erstmal viel weniger gebaut. Die Bauträger können kaum noch die Kosten kalkulieren und die Käufer können sich beim aktuellen Zins diese Preise nicht mehr leisten. Wenn die Zinsen so bleiben oder sogar noch steigen, wovon ich ausgehe, müssen definitiv die Preise runter...
Solche Häuser hast vor ein paar Jahren noch für 600t bis 700t gebaut.
 
S

Sunshine387

Ja das ist so richtig. Ich beobachte den Markt bei uns in einer Kleinstadt auch schon seit vielen Jahren. Vor 10 Jahren hat der Quadratmeter vom Bauträger 1800€ schlüsselfertig gekostet und die Wohnungen waren auch alle erst nach der Fertigstellung verkauft. Zum Richtfest waren noch welche frei. Vor 5 Jahren ist man dann ungefähr bei 2500€ pro qm angekommen. Vor zwei Jahren haben die Wohnungen dann so 3000€ pro qm gekostet und vor einem Jahr dann 4000€ pro m2. Alle Wohnungen waren in den beiden Fällen vor Baustart der Häuser, also 2 Jahre im Voraus verkauft. Und jetzt liegen wir hier bei 4500€ pro qm und von einem aktuellen Bsuträgerobjekt, was in einem halben Jahr fertig wird sind noch über die Hälfte der 36 Wohnungen frei und das schon seit Monaten. Hier wird jetzt gar nichts mehr verkauft. Denn wenn man sich das als Graph vorstellt sind die Preise in den letzten Jahren überdurchschnittlich stark gestiegen. Aber wenn man sich einen 2,5 fach höheren Preis als vor 10 Jahren ans Angebot pinnt, war klar das Irgendwann die Preisralley vorbei ist. Das es jetzt so abrupt endet ist natürlich für die in Bau befindlichen Objekte bitter…aber es wird garantiert nicht mehr teurer werden, ob es billiger wird werden wir sehen, ich glaube nicht.
 
Zuletzt bearbeitet:
WilderSueden

WilderSueden

und dann habe ich einen Neubau und bin der Chef in meinem Grundstück und muss mich nicht mit anderen Eigentümern abstimmen etc.
Vergiss aber nicht, dass du dann Vermieter bist und die Mieter auch noch im Haus hast. Da musst du damit rechnen, dass pünktlich zum Fernsehabend einer wegen irgendeinem Problem an deiner Tür klingelt.

Ich habe noch eine andere Idee. Bisher sind die Wohnungen ja immer nur EG und OG, eventuell lässt sich auch im Keller eine Wohnung sinnvoll unterbringen. Aussicht zum Parkplatz ist jetzt nicht der Hammer, das Gefälle dürfte aber grob für Fenster ohne Lichthof reichen. Dann könntest du die Wohnungen 2+1+1 verteilen
 
S

Sunshine387

Die Idee ist gar nicht schlecht, aber ob das Anspruchsvolle Münchener Mietklientel ausschließlich im Keller zu 15€ kalt pro m2 leben will wage ich zu bezweifeln. Was aber glaube ich ganz gut passen würde wäre eine Art Maisonette in den Keller. Man könnte die kleine 3 Zimmer Wohnung so zur großzügigen 2 Zimmer Wohnung im EG + 1 Zimmer im Keller mit Bad und Abstellraum machen. Sodass man hier auch gut 90m2 bestimmt hätte und könnte einen Teil der unnötigen Kellerfläche sparen, da man bei 4 Wohnungen + Technik + Fahrräder eigentlich nur die Hälfte der eigentlichen Kellerfläche bräuchte.

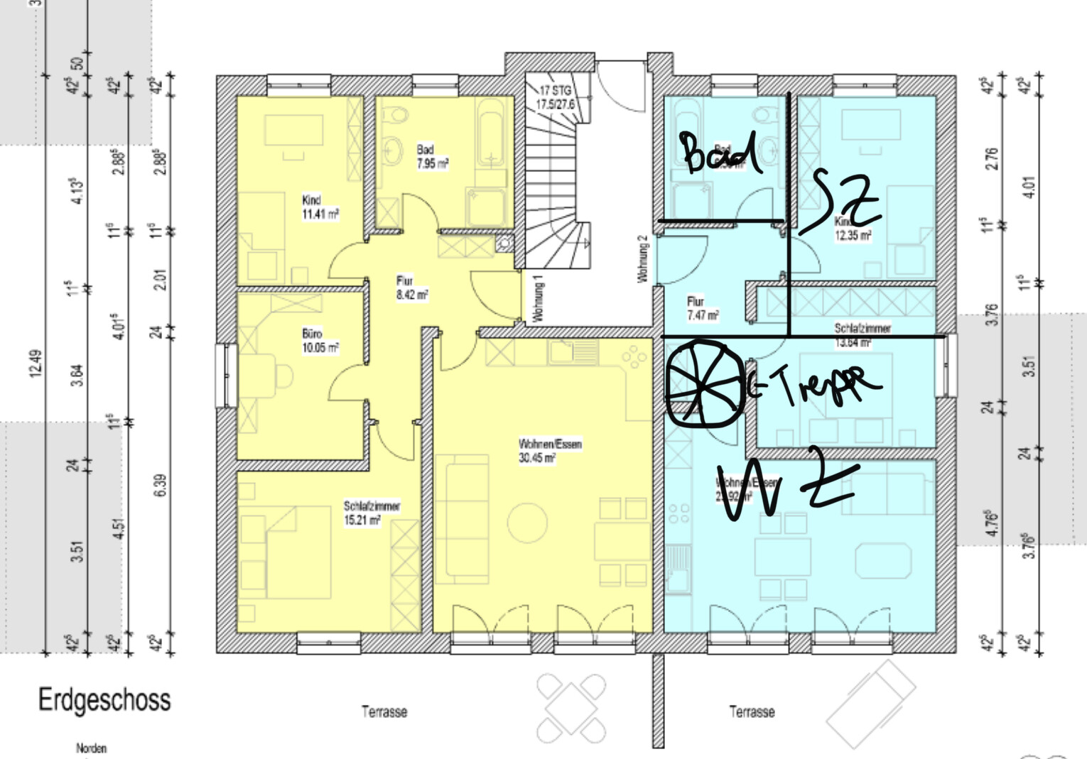
Grundriss Erdgeschoss: gelber Wohn-/Essbereich, Schlafzimmer, Kind, Büro; blaue Räume.
 
WilderSueden

WilderSueden

Ich würde mich nicht nur auf Münchener Stadtflüchtlinge fokussieren. Es gibt auch Leute die vorher in der Gegend gewohnt haben. Eine Überlegung wäre das als 1-Zimmer-Wohnung zu machen, da man ohnehin nur von einer Seite Tageslicht bekommt. Perfekt für junge Leute die nicht mehr bei den Eltern wohnen wollen aber keine Lust auf WG haben. Bleibt man unter 25qm, bräuchte die auch nur einen Stellplatz ;)
 
S

Sunshine387

Dann wäre aber die EG Wohnung 150 m2 groß und der TE wollte doch nur eine 3-Zimmer Wohnung. Ich finde 2x2 Zimmer Wohnungen und 2x3 Zimmer Wohnungen am besten zu den Wünschen des TE passend. Denn so hat man auch eine ordentliche Mietrendite und baut keine Wohnung, die man mit 150 m2 nie wieder zu einem guten Preis vermietet kriegen würde. Je kompakter, desto höher der Mietpreis pro m2. Also lieber mehr Zimmer auf kleiner Wohnfläche als anders herum
 
Zuletzt aktualisiert 22.11.2025
Im Forum Grundrissplanung / Grundstücksplanung gibt es 2535 Themen mit insgesamt 87984 Beiträgen


Ähnliche Themen zu Grundriss Mehrfamilienhaus mit 4 Wohneinheiten
Nr.ErgebnisBeiträge
1Bauträger-Neubau: Zwei Wohnungen kaufen und danach vereinigen 18
2Verhalten bei drohendem Verzug durch Bauträger 48
3Wohnungen verkaufen oder behalten? 36
4Zwei Wohnungen zusammen legen - Seite 214
5Grundriss kein konkretes Einfamilienhaus ca. 200m² mit 2 Wohnungen - Seite 769
6Querlüften - ist das zwingend bei Wohnungen? 28
7OG Zimmer ausbauen - Genehmigung notwendig? 10
8Aufteilung?! Kleines Zimmer / starke Schräge / Heizkörper 61
9Estrich in 4 Zimmer 1,5-2cm zu hoch. 13
10Zimmer riecht nach Marihuana oder Haschisch - Seite 10121
11Parkett von Flur in Zimmer durchlegen 17
12Grundrissplanung Stadthaus 150qm mit Satteldach 6 Zimmer - Seite 19150
13Ist Kellerfläche teurer als Wohnfläche? - Seite 558
14Bauträger sagt: Nicht noch mehr dämmen! 12
15Bauträger oder doch Architekt? 15
16Angebot Bauträger für Einfamilienhaus - Sind die Baukosten in Ordnung? 16
17Bauträger "gliedert" Leistungen mit Festpreis an Subfirmen aus - Seite 212
18Bauträger - Rücktritt vom Kaufvertrag möglich? 11
19Grunderwerbsteuer/worauf gilt Steuer? welcher Bauträger MUSS? - Seite 430
20Massive Probleme mit Bauträger - Vertragsauflösung möglich? - Seite 233

Oben