Hallo liebe Häuslebauer,
meine Frau und ich wollen nächstes Jahr den Bau unseres Eigenheims in Angriff nehmen und sind deshalb jetzt schon fleißig am Planen. Das Grundstück mit 900 m² ist bereits in unserem Besitz (geerbt). Die Nord-West Grenze des Grundstücks ist ein kleiner Bach (u.a. ein Grund ohne Keller zu bauen), daran angrenzend große Bäume bis zum Baufenster. Die Süd-Ost Grenze ist eine Straße (ruhige Sackgasse). Die beiden angrenzenden Grundstücke sind noch leer, wobei im Nordosten demnächst ein Mehrfamilienhaus gebaut wird. Das Südwestliche Grundstück (500m²) gehört meinen Eltern und soll ohne Not weder bebaut noch verkauft werden (kann von uns als Garten genutzt werden). Die Ausrichtung der Wohnräume soll deshalb auch in die Südwestliche Richtung gehen.
Das Haus sollte Platz für 2 Erwachsene und 3 Kinder haben, am besten aber auch noch funktionieren, sollten es nur 2 oder sogar 4 Kinder werden. Wenn die Kinder irgendwann mal aus dem Haus sind, sollte es die Möglichkeit geben, den oberen Stock als eigene Wohnung nutzen zu können.
Wir haben jetzt die ersten Entwürfe unseres Architekten bekommen und wollten jetzt ein paar Meinungen hören, bevor wir zu sehr ins Detail planen und uns nachher grundsätzliche Unstimmigkeiten auffallen.
Zu Variante 1: Der Architekt hat hier um den Preis zu drücken das Dach möglichst niedrig angesetzt und arbeitet dafür mit Dachfenstern und Gauben, das gefällt uns optisch gut, ich bin aber eigentlich kein großer Fan davon ("Loch" im Dach, doof zu putzen, schlechtere Dämmung). Zum Erdgeschoss ist zu sagen, dass das Zimmer am Eingang ein bisschen zu klein ist und der separate Ausgang in den Garten zwischen Wohnzimmer und Bad eingespart werden kann. Im OG fehlt uns eine Abstellkammer bzw. ein Platz für einen großen Schrank (Bettwäsche, Handtücher, evtl. Staubsauger usw.). Gefallen tut uns vor allem der große überdachte Durchgang in den Garten auf der Haustürseite und das ausgesparte Eck mit der Terrasse.
Zu Variante 2: Hier ist das OG aufgrund des höheren Daches viel flexibler, der Schätzpreis des Hauses aber auch gleich mal 15.000 höher. Auf den ersten Blick dachten wir, dass das zu viele kleine Zimmer sind, aber auf den zweiten Blick gefällt es uns eigentlich sehr gut. Das kleine Zimmer links neben dem Bad kann entweder Gästezimmer, Arbeitszimmer, Schlafzimmer für 1-2 Kinder oder später eine Küche werden. Ich denke ein bisschen Feinarbeit muss man hier auf jeden Fall noch investieren, aber das Prinzip gefällt uns gut. Was uns bei V2 nicht gefällt, ist der Durchgang vom Carport in den Garten durch den Schuppen.
Abgesehen von allgemeinen Ideen und Verbesserungsvorschlägen zum Grundriss würde uns besonders interessieren, was ihr meint zum Thema Gauben und Dachfenster vs. 1m höherer Kniestock, wie viel Geld lässt sich damit sparen und welche tatsächlichen Nachteile hat man mit vielen Dachfenstern und Gauben.
Bebauungsplan/Einschränkungen
Größe des Grundstücks: 900m², bzw. 1400m² (siehe Text)
Hang: nein
Grundflächenzahl: 0,4
Geschossflächenzahl: 0,8
Geschossigkeit: 2 Vollgeschosse erlaubt
Dachform: Satteldach 25°-38°
Ausrichtung: Firstlinie parallel zu Straße, also Nord-Ost nach Südwest
Anforderungen der Bauherren
Stilrichtung, Gebäudetyp: Modernes Holzhaus
Keller, Geschosse: Kein Keller, 1,5 - 2 Geschosse, oberes Geschoss später abtrennbar
Anzahl der Personen, Alter: 2 Erwachsene, 3 Kinder (1. 1 Jahr, 2. im Bauch und 3. in Planung)
Raumbedarf im EG: Küche, Wohnen, Essen, Duschbad, Technik & Hauswirtschaft, 1 Zimmer oder je nach OG die Möglichkeit später eines abzutrennen
Raumbedarf im OG: Bad, 3-4 Zimmer
Büro: kleiner Arbeitsplatz für PC usw wünschenswert
Schlafgäste pro Jahr: kein extra Gästezimmer benötigt
offene oder geschlossene Architektur: offen
konservativ oder moderne Bauweise: egal, eher modern
offene Küche, Kochinsel: ja und ja
Anzahl Essplätze: 8
Garage, Carport: Carport für 2 Autos mit Schuppen für Fahrräder und Gartenzubehör
Hausentwurf
Von wem stammt die Planung: Architekt
Was gefällt besonders?
V1: überdachte EckTerrasse, Anordnung Technik - Schuppen - Carport - Haustür, Licht im Wohnzimmer von 2 entgegengesetzten Seiten
V2: Aufteilung oberer Stock
Was gefällt nicht?
V1: viele Dachfenster und Gauben
V2: Durchgang an der Haustürseite in den Garten nur durch Schuppen möglich
Preisschätzung lt Architekt/Planer: V1 430.000, V2 445.000 (alles dabei, außer Küche und Erschließung)
Persönliches Preislimit fürs Haus, inkl Ausstattung: 500.000
favorisierte Heiztechnik: Wärmepumpe
Wenn Ihr verzichten müsst, auf welche Details/Ausbauten
-könnt Ihr verzichten: 2. überdachter Stellplatz
-könnt Ihr nicht verzichten: großer Fahrrad/Geräteschuppen





meine Frau und ich wollen nächstes Jahr den Bau unseres Eigenheims in Angriff nehmen und sind deshalb jetzt schon fleißig am Planen. Das Grundstück mit 900 m² ist bereits in unserem Besitz (geerbt). Die Nord-West Grenze des Grundstücks ist ein kleiner Bach (u.a. ein Grund ohne Keller zu bauen), daran angrenzend große Bäume bis zum Baufenster. Die Süd-Ost Grenze ist eine Straße (ruhige Sackgasse). Die beiden angrenzenden Grundstücke sind noch leer, wobei im Nordosten demnächst ein Mehrfamilienhaus gebaut wird. Das Südwestliche Grundstück (500m²) gehört meinen Eltern und soll ohne Not weder bebaut noch verkauft werden (kann von uns als Garten genutzt werden). Die Ausrichtung der Wohnräume soll deshalb auch in die Südwestliche Richtung gehen.
Das Haus sollte Platz für 2 Erwachsene und 3 Kinder haben, am besten aber auch noch funktionieren, sollten es nur 2 oder sogar 4 Kinder werden. Wenn die Kinder irgendwann mal aus dem Haus sind, sollte es die Möglichkeit geben, den oberen Stock als eigene Wohnung nutzen zu können.
Wir haben jetzt die ersten Entwürfe unseres Architekten bekommen und wollten jetzt ein paar Meinungen hören, bevor wir zu sehr ins Detail planen und uns nachher grundsätzliche Unstimmigkeiten auffallen.
Zu Variante 1: Der Architekt hat hier um den Preis zu drücken das Dach möglichst niedrig angesetzt und arbeitet dafür mit Dachfenstern und Gauben, das gefällt uns optisch gut, ich bin aber eigentlich kein großer Fan davon ("Loch" im Dach, doof zu putzen, schlechtere Dämmung). Zum Erdgeschoss ist zu sagen, dass das Zimmer am Eingang ein bisschen zu klein ist und der separate Ausgang in den Garten zwischen Wohnzimmer und Bad eingespart werden kann. Im OG fehlt uns eine Abstellkammer bzw. ein Platz für einen großen Schrank (Bettwäsche, Handtücher, evtl. Staubsauger usw.). Gefallen tut uns vor allem der große überdachte Durchgang in den Garten auf der Haustürseite und das ausgesparte Eck mit der Terrasse.
Zu Variante 2: Hier ist das OG aufgrund des höheren Daches viel flexibler, der Schätzpreis des Hauses aber auch gleich mal 15.000 höher. Auf den ersten Blick dachten wir, dass das zu viele kleine Zimmer sind, aber auf den zweiten Blick gefällt es uns eigentlich sehr gut. Das kleine Zimmer links neben dem Bad kann entweder Gästezimmer, Arbeitszimmer, Schlafzimmer für 1-2 Kinder oder später eine Küche werden. Ich denke ein bisschen Feinarbeit muss man hier auf jeden Fall noch investieren, aber das Prinzip gefällt uns gut. Was uns bei V2 nicht gefällt, ist der Durchgang vom Carport in den Garten durch den Schuppen.
Abgesehen von allgemeinen Ideen und Verbesserungsvorschlägen zum Grundriss würde uns besonders interessieren, was ihr meint zum Thema Gauben und Dachfenster vs. 1m höherer Kniestock, wie viel Geld lässt sich damit sparen und welche tatsächlichen Nachteile hat man mit vielen Dachfenstern und Gauben.
Bebauungsplan/Einschränkungen
Größe des Grundstücks: 900m², bzw. 1400m² (siehe Text)
Hang: nein
Grundflächenzahl: 0,4
Geschossflächenzahl: 0,8
Geschossigkeit: 2 Vollgeschosse erlaubt
Dachform: Satteldach 25°-38°
Ausrichtung: Firstlinie parallel zu Straße, also Nord-Ost nach Südwest
Anforderungen der Bauherren
Stilrichtung, Gebäudetyp: Modernes Holzhaus
Keller, Geschosse: Kein Keller, 1,5 - 2 Geschosse, oberes Geschoss später abtrennbar
Anzahl der Personen, Alter: 2 Erwachsene, 3 Kinder (1. 1 Jahr, 2. im Bauch und 3. in Planung)
Raumbedarf im EG: Küche, Wohnen, Essen, Duschbad, Technik & Hauswirtschaft, 1 Zimmer oder je nach OG die Möglichkeit später eines abzutrennen
Raumbedarf im OG: Bad, 3-4 Zimmer
Büro: kleiner Arbeitsplatz für PC usw wünschenswert
Schlafgäste pro Jahr: kein extra Gästezimmer benötigt
offene oder geschlossene Architektur: offen
konservativ oder moderne Bauweise: egal, eher modern
offene Küche, Kochinsel: ja und ja
Anzahl Essplätze: 8
Garage, Carport: Carport für 2 Autos mit Schuppen für Fahrräder und Gartenzubehör
Hausentwurf
Von wem stammt die Planung: Architekt
Was gefällt besonders?
V1: überdachte EckTerrasse, Anordnung Technik - Schuppen - Carport - Haustür, Licht im Wohnzimmer von 2 entgegengesetzten Seiten
V2: Aufteilung oberer Stock
Was gefällt nicht?
V1: viele Dachfenster und Gauben
V2: Durchgang an der Haustürseite in den Garten nur durch Schuppen möglich
Preisschätzung lt Architekt/Planer: V1 430.000, V2 445.000 (alles dabei, außer Küche und Erschließung)
Persönliches Preislimit fürs Haus, inkl Ausstattung: 500.000
favorisierte Heiztechnik: Wärmepumpe
Wenn Ihr verzichten müsst, auf welche Details/Ausbauten
-könnt Ihr verzichten: 2. überdachter Stellplatz
-könnt Ihr nicht verzichten: großer Fahrrad/Geräteschuppen
Hmm, mir gefallen beide Varianten nicht so recht.
Variante 1 hat eindeutig die schöneren Kinderzimmer im OG. Denn bei Variante 2 muss man sich auch mal klar machen, wie Fenster bei einer Kniestockhöhe von 200 cm von innen aussehen. Insbesondere, wenn da noch Rollladenkasten integriert werden. Dann ist bei Max. 155 bis 160 cm Höhe Schluss mit Glas. Würde mich anpiepsen durch die Räume zu gehen und keinen Fensterblick zu haben.
In beiden Varianten erscheint mir das OG-Bad jeweils eng und nicht so tauglich für eine 4 bis 6köpfige Familie.
In Variante 2 sehe ich noch nicht, wie man das mal räumlich trennen will. Und, wenn man räumlich trennen will, wie ist dann die Nutzung des OG gedacht? Fremdvermietung? Im EG muss dann aber wenigstens ein Raum sein, der auch die Kriterien eines Schlafzimmers mit ausreichend Schrankraum für 2 Erwachsene erfüllt. Das sehe ich alles nicht.
Daher solltet ihr als erstes Mal diesen Geschoßtrennwunsch überdenken. Dann könnte man auch die Treppe viel schöner setzen.
Variante 1 hat eindeutig die schöneren Kinderzimmer im OG. Denn bei Variante 2 muss man sich auch mal klar machen, wie Fenster bei einer Kniestockhöhe von 200 cm von innen aussehen. Insbesondere, wenn da noch Rollladenkasten integriert werden. Dann ist bei Max. 155 bis 160 cm Höhe Schluss mit Glas. Würde mich anpiepsen durch die Räume zu gehen und keinen Fensterblick zu haben.
In beiden Varianten erscheint mir das OG-Bad jeweils eng und nicht so tauglich für eine 4 bis 6köpfige Familie.
In Variante 2 sehe ich noch nicht, wie man das mal räumlich trennen will. Und, wenn man räumlich trennen will, wie ist dann die Nutzung des OG gedacht? Fremdvermietung? Im EG muss dann aber wenigstens ein Raum sein, der auch die Kriterien eines Schlafzimmers mit ausreichend Schrankraum für 2 Erwachsene erfüllt. Das sehe ich alles nicht.
Daher solltet ihr als erstes Mal diesen Geschoßtrennwunsch überdenken. Dann könnte man auch die Treppe viel schöner setzen.
Hallo Sciurus,
Ich fasse mich heute mal kurz:
Angesicht der Aussage, dass Ihr Euch auch später eine Trennung von EG und OG vorstellen könnt, gefällt mir V2 besser, da man dort die Arbeitsnische in ein Schlafzimmer umbauen kann, ohne an Komfort im Wohnzimmer zu verzichten.
Allerdings sollte man das auch jetzt schon einplanen, dass man im Alter eventuell nicht mehr so agil ist, siehe Barrierefreiheit (keine überflüssigen Ecken und zu enge Türen) Betrifft das zukünftige Schlafzimmer im EG.
Mit dem Küchendurchgang muss man dann mal schauen, verschieben? Küche ist wohl Platzhalter, da würde ich die Insel vertikal im Plan setzen.
Probleme sehe ich im jetzigen Schlafzimmer...
Wäre es nicht logischer, gleich unten ein Büro/später Schlafzimmer einzuplanen und oben nur 3 Kinderzimmern +Schlafzimmer?
Gruss Yvonne
Ich fasse mich heute mal kurz:
Angesicht der Aussage, dass Ihr Euch auch später eine Trennung von EG und OG vorstellen könnt, gefällt mir V2 besser, da man dort die Arbeitsnische in ein Schlafzimmer umbauen kann, ohne an Komfort im Wohnzimmer zu verzichten.
Allerdings sollte man das auch jetzt schon einplanen, dass man im Alter eventuell nicht mehr so agil ist, siehe Barrierefreiheit (keine überflüssigen Ecken und zu enge Türen) Betrifft das zukünftige Schlafzimmer im EG.
Mit dem Küchendurchgang muss man dann mal schauen, verschieben? Küche ist wohl Platzhalter, da würde ich die Insel vertikal im Plan setzen.
Probleme sehe ich im jetzigen Schlafzimmer...
Wäre es nicht logischer, gleich unten ein Büro/später Schlafzimmer einzuplanen und oben nur 3 Kinderzimmern +Schlafzimmer?
Gruss Yvonne
@kbt09: Uns gefallen auch beide Varianten nicht so recht, deshalb habe ich den Beitrag hier erstellt. Danke für den Hinweis mit den Fensterhöhen bei 2m Kniestock, da würde sich aber eine Lösung finden lassen, denke ich. z.B. das Dach noch flacher (der Bebauungsplan gibt da zwar nicht viel mehr her, aber wenn man sonst alles einhält...) und dafür den Kniestock erhöhen.
Die Bäder dürften tatsächlich kein bisschen kleiner sein, aber vom Prinzip her ist das schon in Ordnung, wir brauchen da nicht so viel Platz. Es gibt ja dafür in jedem Stockwerk eines.
@kbt09, ypg: Die Überlegung die beiden Stockwerke später getrennt nutzen zu können, rührt daher, das Haus noch voll Nutzen zu können, wenn die Kinder mal nicht mehr im Haus sind, gerade bei mehreren Kindern und entsprechender Anzahl an Zimmern wäre das ja sonst schade. Unser Architekt hat die Entwürfe mit der Vorgabe unsererseits gemacht, die Stockwerke trennen zu können. Die Treppe im Eck, die dadurch fast zwingend entsteht, gefällt uns auch nicht so recht, bringt viel Flur/Verkehrsfläche und schränkt die Möglichkeiten der Aufteilung stark ein. Wo würdet ihr denn die Treppe sonst setzen? Oben mittig statt oben rechts im Eck?
@ypg: Alle Einrichtungsgegenstände, auch die Küche, sind mehr oder weniger nur zur Deko vom Architekt platziert worden, die Küche in V2 gefällt mir auch überhaupt nicht. Ich denke 1 Zimmer unten würde auf jeden Fall Sinn machen, evtl, das Zimmer aus V1 etwas breiter machen, das gefällt mir dann schon ganz gut. Oben fehlt mir im jetzigen Entwurf aber noch ein kleines Zimmer, mit höherem Kniestock sollte das doch unterzubringen sein
Die Bäder dürften tatsächlich kein bisschen kleiner sein, aber vom Prinzip her ist das schon in Ordnung, wir brauchen da nicht so viel Platz. Es gibt ja dafür in jedem Stockwerk eines.
@kbt09, ypg: Die Überlegung die beiden Stockwerke später getrennt nutzen zu können, rührt daher, das Haus noch voll Nutzen zu können, wenn die Kinder mal nicht mehr im Haus sind, gerade bei mehreren Kindern und entsprechender Anzahl an Zimmern wäre das ja sonst schade. Unser Architekt hat die Entwürfe mit der Vorgabe unsererseits gemacht, die Stockwerke trennen zu können. Die Treppe im Eck, die dadurch fast zwingend entsteht, gefällt uns auch nicht so recht, bringt viel Flur/Verkehrsfläche und schränkt die Möglichkeiten der Aufteilung stark ein. Wo würdet ihr denn die Treppe sonst setzen? Oben mittig statt oben rechts im Eck?
@ypg: Alle Einrichtungsgegenstände, auch die Küche, sind mehr oder weniger nur zur Deko vom Architekt platziert worden, die Küche in V2 gefällt mir auch überhaupt nicht. Ich denke 1 Zimmer unten würde auf jeden Fall Sinn machen, evtl, das Zimmer aus V1 etwas breiter machen, das gefällt mir dann schon ganz gut. Oben fehlt mir im jetzigen Entwurf aber noch ein kleines Zimmer, mit höherem Kniestock sollte das doch unterzubringen sein
Die 22.5 ° Dachneigung in Variante 2 und die 40° in Variante liegen ja schon nicht mehr im Bereich der erlaubten Dachneigung.
Wenn 2 Vollgeschosse erlaubt sind, warum nicht auch 2 Vollgeschosse planen?
Und, Bäder müssen keine Riesenräume sein, die einzelnen Elemente sollen sich aber nutzen lassen. Stell dir mal das Bad in Variante 1 vor. Da ist die Wanne unter der Dachschräge im Bereich 1 bis 2 m Raumhöhe, und wird direkt daneben von vermutlich einer Dusche mit rund 100 cm Seitenlänge eingerahmt. Und auch diese Dusche beginnt schon da, wo die Raumhöhe nur 200 cm ist. Ok, über Wanne/WC ist noch ein Dachfenster ... aber gemütlich mal in die Wanne steigen ist anders.
Schlafzimmer in Variante 1 ... was willst du da an Schränken stellen? Da passen kaum 200 cm Schrank in Normalhöhe hin. Selbst in Variante 2 wird das nicht viel besser.
Kinderzimmer 11qm in der Variante 2 lassen sich schlecht möblieren und spätestens im Jugendalter, wenn der Wunsch nach dem 140 cm Bett kommt (habe ich gerade wieder im Bekanntenkreis, ist bei meiner Nichte und Neffe so usw.), dann ist mit den Zimmern nicht gut zu planen.
Ich würde vermutlich konzeptionell mal so rangehen, dass man unten:
- Wohnzimmer
- Ess/Kochbereich
- Bad mit großer bodenebener Dusche
- Zimmer, was als Elternschlafzimmer taugt
- Technikraum
unterbringt.
Im OG würde ich dann
- 3 etwa gleich große Zimmer, in denen sich auch Schränke gut stellen lassen
- bequemes Bad
- evtl. noch einen kleinen Raum, der als Schrankraum/Büro oder so genutzt werden kann.
Dann kann man aktuell als Eltern mit oben schlafen, kommt das 3. Kind, kann vielleicht zunächst das erste Kind unten schlafen, weil man als Eltern beim Kinderzimmer des Kleinsten bleiben will. Und dann nach 2 Jahren oder so, zieht man als Eltern nach unten und hat dann oben die Kinderetage.
Dann wäre zumindest das Raumprogramm unten schon mal für eine Trennung geeignet. Und dann müßte man mal mit der Treppe spielen, wo und wie man die setzen kann.
Wenn 2 Vollgeschosse erlaubt sind, warum nicht auch 2 Vollgeschosse planen?
Und, Bäder müssen keine Riesenräume sein, die einzelnen Elemente sollen sich aber nutzen lassen. Stell dir mal das Bad in Variante 1 vor. Da ist die Wanne unter der Dachschräge im Bereich 1 bis 2 m Raumhöhe, und wird direkt daneben von vermutlich einer Dusche mit rund 100 cm Seitenlänge eingerahmt. Und auch diese Dusche beginnt schon da, wo die Raumhöhe nur 200 cm ist. Ok, über Wanne/WC ist noch ein Dachfenster ... aber gemütlich mal in die Wanne steigen ist anders.
Schlafzimmer in Variante 1 ... was willst du da an Schränken stellen? Da passen kaum 200 cm Schrank in Normalhöhe hin. Selbst in Variante 2 wird das nicht viel besser.
Kinderzimmer 11qm in der Variante 2 lassen sich schlecht möblieren und spätestens im Jugendalter, wenn der Wunsch nach dem 140 cm Bett kommt (habe ich gerade wieder im Bekanntenkreis, ist bei meiner Nichte und Neffe so usw.), dann ist mit den Zimmern nicht gut zu planen.
Ich würde vermutlich konzeptionell mal so rangehen, dass man unten:
- Wohnzimmer
- Ess/Kochbereich
- Bad mit großer bodenebener Dusche
- Zimmer, was als Elternschlafzimmer taugt
- Technikraum
unterbringt.
Im OG würde ich dann
- 3 etwa gleich große Zimmer, in denen sich auch Schränke gut stellen lassen
- bequemes Bad
- evtl. noch einen kleinen Raum, der als Schrankraum/Büro oder so genutzt werden kann.
Dann kann man aktuell als Eltern mit oben schlafen, kommt das 3. Kind, kann vielleicht zunächst das erste Kind unten schlafen, weil man als Eltern beim Kinderzimmer des Kleinsten bleiben will. Und dann nach 2 Jahren oder so, zieht man als Eltern nach unten und hat dann oben die Kinderetage.
Dann wäre zumindest das Raumprogramm unten schon mal für eine Trennung geeignet. Und dann müßte man mal mit der Treppe spielen, wo und wie man die setzen kann.
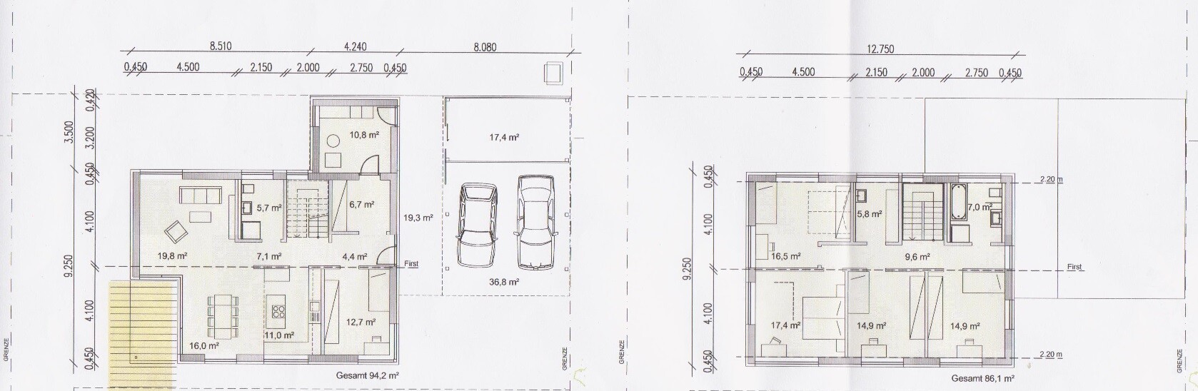
Endlich gibt es wieder Neuigkeiten! Unser Architekt hat uns einen neuen Entwurf präsentiert, der leider immer noch mit einigen Problemen zu kämpfen hat und außerdem der bisher mit Abstand teuerste wäre. Den Grundriss habe ich angehängt. Der Entwurf beinhaltet ein vollwertiges 2. Stockwerk mit 4 1/2 Zimmern sowie 1 Zimmer im EG. Das ist mindestens 1 Zimmer mehr, als wir benötigen. Wir haben jetzt lange überlegt und sind zu folgendem Schluss gekommen: Wenn wir sowieso auf eine spätere separate Nutzung von EG und OG verzichten, könnten wir evtl. auch auf das Zimmer im EG verzichten. Dadurch könnten wir den Technikraum mit ins Haus nehmen, das ganze Haus ein wenig eindampfen und oben trotzdem 4 Zimmer realisieren. Ich habe eine Skizze angehängt, wie wir uns das ungefähr vorstellen, die Außenmaße haben wir dabei aus dem Entwurf unseres Architekten genommen und lediglich das Haus in der Breite um 1 Meter geschrumpft.
Noch ein paar Worte zu den einzelnen Zimmern:
EG: - Eingangssituation: Diese haben wir etwas großzügiger gestaltet, sodass Platz für eine schöne Garderobe entsteht, planunter der Haustür
- Bad: Das Bad wird zu Gäste-WC mit "Notdusche", da jetzt die ganze Familie das obere Bad als "Hauptbad" hat.
- Hauswirtschaftsraum/Technik: Hier sind wir uns nicht sicher ob die Größe ausreicht, das wird wohl davon abhängen, welche Technik nachher genau reinkommt?
- Treppe: Der Platz unter der Treppe kann für Staubsauger und ähnliches genutzt werden
- Küche: Hier würde eine ähnliche Küche wie wir derzeit benutzen Platz finden, mit 1-2 Extraschränken für die größere Familie
- Essen: ein 1x2 Metertisch sollte hier Platz finden
- Wohnzimmer: Sofaeck mit Fernseher + Klavier sollten hier reinpassen
OG: - 3 Kinderzimmer: kleiner sollten sie nicht sein, aber da sie überall mind 2,20 hoch sind, sind sie flexibel Einrichtbar
- großes Schlafzimmer mit evtl. Platz für kleinen Schreibtisch
- Bad etwas größer als im Architektenentwurf
Wer für das OG noch eine gute Anordnung der Zimmer findet, mit der etwas Flur gespart, bzw. das krumme Eck ausgemerzt werden kann, immer her damit
Möglicherweise haben wir bei unserem eigenen Entwurf auch etwas grobes übersehen?
Wir würden uns über Feedback freuen, unser Architekt ist erst mal im Urlaub und dass etwas Bewegung in die Sache kommt, wären wir gerne gut vorbereitet, wenn er wieder zurück ist!



Noch ein paar Worte zu den einzelnen Zimmern:
EG: - Eingangssituation: Diese haben wir etwas großzügiger gestaltet, sodass Platz für eine schöne Garderobe entsteht, planunter der Haustür
- Bad: Das Bad wird zu Gäste-WC mit "Notdusche", da jetzt die ganze Familie das obere Bad als "Hauptbad" hat.
- Hauswirtschaftsraum/Technik: Hier sind wir uns nicht sicher ob die Größe ausreicht, das wird wohl davon abhängen, welche Technik nachher genau reinkommt?
- Treppe: Der Platz unter der Treppe kann für Staubsauger und ähnliches genutzt werden
- Küche: Hier würde eine ähnliche Küche wie wir derzeit benutzen Platz finden, mit 1-2 Extraschränken für die größere Familie
- Essen: ein 1x2 Metertisch sollte hier Platz finden
- Wohnzimmer: Sofaeck mit Fernseher + Klavier sollten hier reinpassen
OG: - 3 Kinderzimmer: kleiner sollten sie nicht sein, aber da sie überall mind 2,20 hoch sind, sind sie flexibel Einrichtbar
- großes Schlafzimmer mit evtl. Platz für kleinen Schreibtisch
- Bad etwas größer als im Architektenentwurf
Wer für das OG noch eine gute Anordnung der Zimmer findet, mit der etwas Flur gespart, bzw. das krumme Eck ausgemerzt werden kann, immer her damit
Möglicherweise haben wir bei unserem eigenen Entwurf auch etwas grobes übersehen?
Wir würden uns über Feedback freuen, unser Architekt ist erst mal im Urlaub und dass etwas Bewegung in die Sache kommt, wären wir gerne gut vorbereitet, wenn er wieder zurück ist!
Ähnliche Themen