ᐅ Grundriss Lagerfläche zu Wohnraum in Sandsteingebäude umnutzen
Erstellt am: 30.04.23 13:37
N
nikwepbBei diesem Projekt handelt es sich um die Möglichkeit eine Halle/Lagerfläche in Wohnraum umzunutzen. Im EG befindet sich der Eingang und die „Garage“, im OG finden wir sozusagen ein leeres Blatt Papier mit dem Abmaßen 14,6x16,2m auf dem wir uns austoben könnten. Die Grundfläche ist mit über 230m² schon fast zu groß. Die Dachstuhlkonstruktion gibt an den Außenwänden ein wenig die Zimmer- und Fensteraufteilung vor. Die Herausforderung bei diesem Projekt ist der relativ lange Baukörper ohne Licht/Fenster von den Seiten.
Bebauungsplan/Einschränkungen
Hang:
Nord-Ost nach Süd-West (siehe Anhang)
Baujahr und Zustand:
Nord-Ost Fassade verputzt, Rest Sandstein natur mit Vollziegelanteil
Ausrichtung:
Süd-West
Anzahl Stellplatz:
3x Hof außen und 3x Fahrzeughalle
Anforderungen der Bauherren
konservativ oder moderne Bauweise:
Bauen im Bestand
Anzahl der Personen, Alter:
2+1 (Mitte 30 und Kleinkind)
Raumbedarf im EG, OG:
2x Kinderzimmer und Büro. Ansonsten das „übliche“. Die relativ große Grundfläche lässt zusätzliche Räume (etwa ein Vorratsraum) zu.
Büro:
Teilzeit Homeoffice (1x Arbeitsplatz)
Schlafgäste pro Jahr:
schlafcouch im Büro reicht aus
offene oder geschlossene Architektur:
Offener Wohnbereich. Schlafbereich zurückgezogen. Elternbad im Elternschlafbereich. Gästebad in der nähe der Kinderzimmer (und Büro).
Dachstuhlkonstruktion als Stilelement mit einbeziehen.
Decke im Wohn- und Esszimmer nach oben offen.
Wunsch: Die Decke der restlichen Räume oberhalb der Balkenlage bei ca. +2,95m Oberkante Fertigfußboden (sichtbare Längsbalken der Dachkonstruktion.
offene Küche & Kochinsel: ja
Anzahl Essplätze: 6-8
Kamin: nein
Musik/Stereowand:
Sonos, nichts besonderes
Balkon, Dachterrasse:
Dachöffnung und Ausbau zur Loggia
Garage, Carport:
Garage/Halle im EG
Nutzgarten, Treibhaus:
Gartenabschnitt 500m² auf KG Geländeniveau, erschlossen über Treppe
Hausentwurf
Von wem stammt die Planung:
Do-it-Yourself basierend auf einem Aufmaß und Fotos. Modell umgesetzt im pCon.Planner.
Was gefällt besonders? Warum?
Bisher nur eine eigene Kostenaufstellung ca.400.000€
Persönliches Preislimit fürs Haus, inkl Ausstattung:
400.000€
favorisierte Haustechnik:
Luftwärmepumpe mit Kombispeicher oder Hygienespeicher
Fußbodenheizung mit 20cm Fußbodenaufbau
Photovoltaikanlage auf Süd-West Dach
Zentrale Lüftungsanlage
KNX in Eigenleistung mit Planungsservice
Wenn Ihr verzichten müsst, auf welche Details/Ausbauten
könnt Ihr verzichten:
Fragen über Fragen
Warum ist der Entwurf so geworden, wie er jetzt ist?
Ich schaue seit langem immer wieder rein, ändere Dinge ab, ordne Räume neu an und lasse mich von anderen Bauvorhaben inspirieren. Die Anordnung der Räume auf nur einer Ebene ist nicht leicht. Die Trennung von Wohnen, Eltern und Kind ermöglicht kurze Wege aller Bewohner und einen zentralen Aufenthaltsort.
Wo gibt es noch Fragen zu klären?
Der Entwurf von mir stammt, ist er natürlich statisch, energetisch und im Detail nicht abgeklärt. Eine weitere Fragestellung ist, wie das ganze Material in das Gebäude kommt. Meine bisherige Überlegung ist eine temporäre Dachöffnung auf der Nord-Ost Seite. Ein möglicher Kram müsste auf dem Hof auf EG Niveau stehen.
Was ist die wichtigste/grundlegende Frage zum Grundriss in 130 Zeichen zusammengefasst?
Ich werde langsam betriebsblind. Vielleicht hat jemand noch eine inspirierende und frische Ideen
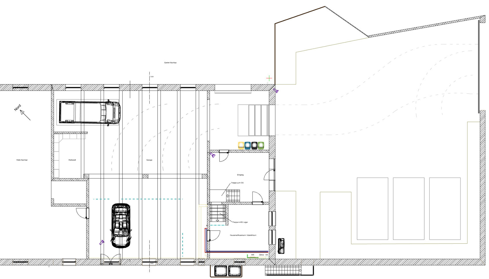
Grundriss EG: Garage und Lagerfläche

Grundriss OG: Wohnen





Höhenverlauf des Geländes: Der Höhenunterschied wird mit einem Geschoss bzw. einer Mauer überbrückt.

Bebauungsplan/Einschränkungen
Hang:
Nord-Ost nach Süd-West (siehe Anhang)
Baujahr und Zustand:
- 1912, zuletzt als Fahrzeughalle (EG) und Lagerfläche (OG) genutzt
- 60cm Sandstein Außenwände, Giebelwände OG aus Vollziegel ca. 30cm
- Teilunterkellert im Hang, KG Ausgang ebenerdig
- EG Decke, ca. 30cm, liegt auf massiven Stützen und Unterzügen
- Dacheindeckung und Dachstuhl in gutem Zustand
- KG teilunterkellert auf Höhe Garten
- EG mit Eingangsbereich, Fahrzeughalle und Hofeinfahrt von Nord-Ost
- OG mit geplantem Wohnbereich
- Satteldach 45°
- Beidseitige „Gauben“ mit 30° über gesamte Breite. Kniestock +2,57m OKRFB
- Theoretisch offen bis First +7,90m OKRFB
Nord-Ost Fassade verputzt, Rest Sandstein natur mit Vollziegelanteil
Ausrichtung:
Süd-West
Anzahl Stellplatz:
3x Hof außen und 3x Fahrzeughalle
Anforderungen der Bauherren
konservativ oder moderne Bauweise:
Bauen im Bestand
Anzahl der Personen, Alter:
2+1 (Mitte 30 und Kleinkind)
Raumbedarf im EG, OG:
2x Kinderzimmer und Büro. Ansonsten das „übliche“. Die relativ große Grundfläche lässt zusätzliche Räume (etwa ein Vorratsraum) zu.
Büro:
Teilzeit Homeoffice (1x Arbeitsplatz)
Schlafgäste pro Jahr:
schlafcouch im Büro reicht aus
offene oder geschlossene Architektur:
Offener Wohnbereich. Schlafbereich zurückgezogen. Elternbad im Elternschlafbereich. Gästebad in der nähe der Kinderzimmer (und Büro).
Dachstuhlkonstruktion als Stilelement mit einbeziehen.
Decke im Wohn- und Esszimmer nach oben offen.
Wunsch: Die Decke der restlichen Räume oberhalb der Balkenlage bei ca. +2,95m Oberkante Fertigfußboden (sichtbare Längsbalken der Dachkonstruktion.
offene Küche & Kochinsel: ja
Anzahl Essplätze: 6-8
Kamin: nein
Musik/Stereowand:
Sonos, nichts besonderes
Balkon, Dachterrasse:
Dachöffnung und Ausbau zur Loggia
Garage, Carport:
Garage/Halle im EG
Nutzgarten, Treibhaus:
Gartenabschnitt 500m² auf KG Geländeniveau, erschlossen über Treppe
Hausentwurf
Von wem stammt die Planung:
Do-it-Yourself basierend auf einem Aufmaß und Fotos. Modell umgesetzt im pCon.Planner.
Was gefällt besonders? Warum?
- Elternbereich mit Ankleide und Bad als geschlossener Bereich
- Offene Decke im Wohnbereich
- Loggia als kleiner Außenbereich
- Ungleich große Kinderzimmer. Kind 1 ist mit 23m² zu groß
- Komplett offene Küche. Wegen Lichtsituation und Raumaufteilung schwierig anders möglich
- Eingangsbereich unmittelbar in Wohnraum -> Lösung mit der besten Lichtausbeute -> Theoretisch noch Platz im EG Eingangsbereich
Bisher nur eine eigene Kostenaufstellung ca.400.000€
Persönliches Preislimit fürs Haus, inkl Ausstattung:
400.000€
favorisierte Haustechnik:
Luftwärmepumpe mit Kombispeicher oder Hygienespeicher
Fußbodenheizung mit 20cm Fußbodenaufbau
Photovoltaikanlage auf Süd-West Dach
Zentrale Lüftungsanlage
KNX in Eigenleistung mit Planungsservice
Wenn Ihr verzichten müsst, auf welche Details/Ausbauten
könnt Ihr verzichten:
- Längsbalken unterhalb der Decke, falls es statisch oder preistechnisch ein Problem darstellt.
- Eventuell die Lüftungsanlage (Preis)
- Viel Eigenleistung im Bereich Wandgestaltung, Böden, Elektrik, sonstige Hiwi-Arbeiten (Handwerkliches Talent ist vorhanden).
- Ausbau von Dachboden (kalt), EG und Hof. Das können wir auch später aufhübschen.
Fragen über Fragen
Warum ist der Entwurf so geworden, wie er jetzt ist?
Ich schaue seit langem immer wieder rein, ändere Dinge ab, ordne Räume neu an und lasse mich von anderen Bauvorhaben inspirieren. Die Anordnung der Räume auf nur einer Ebene ist nicht leicht. Die Trennung von Wohnen, Eltern und Kind ermöglicht kurze Wege aller Bewohner und einen zentralen Aufenthaltsort.
Wo gibt es noch Fragen zu klären?
Der Entwurf von mir stammt, ist er natürlich statisch, energetisch und im Detail nicht abgeklärt. Eine weitere Fragestellung ist, wie das ganze Material in das Gebäude kommt. Meine bisherige Überlegung ist eine temporäre Dachöffnung auf der Nord-Ost Seite. Ein möglicher Kram müsste auf dem Hof auf EG Niveau stehen.
Was ist die wichtigste/grundlegende Frage zum Grundriss in 130 Zeichen zusammengefasst?
Ich werde langsam betriebsblind. Vielleicht hat jemand noch eine inspirierende und frische Ideen
Grundriss EG: Garage und Lagerfläche
Grundriss OG: Wohnen
Höhenverlauf des Geländes: Der Höhenunterschied wird mit einem Geschoss bzw. einer Mauer überbrückt.
Bei Projekten im Bestand ist es für Außenstehende immer entscheidend, die Vorher/Nachher Änderungen nachzuvollziehen. Üblich sind neue Wände in rot, entfernte Wände in gelb und vorhandene Wände in schwarz.
Wie ist z.B. der Eingangsbereich momentan? Gibt es die Treppe schon in der Form?
Wichtig wäre mir zu allererst der Plan für die Dämmung sowie Ent- und Bewässerung. Musst Du eine Innendämmung mit einplanen? Wo sind die Anschlüsse für Abwasser?
Ab davon ist die Beantwortung von Yvonnes Frage grundlegend.
Wie ist z.B. der Eingangsbereich momentan? Gibt es die Treppe schon in der Form?
Wichtig wäre mir zu allererst der Plan für die Dämmung sowie Ent- und Bewässerung. Musst Du eine Innendämmung mit einplanen? Wo sind die Anschlüsse für Abwasser?
Ab davon ist die Beantwortung von Yvonnes Frage grundlegend.
Eine Umnutzung ist möglich. Wie im ersten Beitrag geschrieben ist das OG komplett leer. Nur die Balken des Dachstuhls, auch im OG Plan zu erkennen, geben ein wenig die Struktur vor. Aus dem Grund habe ich auch farblich erstmal nichts unterschieden. Im EG ist der aktuelle Bestand abgebildet und kann auch so bestehen bleiben. Die Treppen sind so bereits vorhanden und können genutzt werden. Dadurch ergibt sich auch die Eingangssituation im OG. Das hätte ich vielleicht noch im ersten Beitrag erwähnen sollen.
Da ich aus der Haustechnikbranche komme, habe ich mir bei den Entwürfen auch Gedanken um die Umsetzbarkeit gemacht. Das Schmutzwasser ist halbwegs flexibel, weil wir die Entwässerung unter der EG Decke führen können. Höhe, Gefälle und Entlüftung über Dach ist alles möglich. Der Kanalanschluss befindet sich dann in der Ecke planunten rechts.
Energetisch ist nichts abgeklärt. Da die Außenwände der langen Gauben etwas von der Sandsteinaußenmauer zurückspringen wäre eine Außendämmung möglich.


Da ich aus der Haustechnikbranche komme, habe ich mir bei den Entwürfen auch Gedanken um die Umsetzbarkeit gemacht. Das Schmutzwasser ist halbwegs flexibel, weil wir die Entwässerung unter der EG Decke führen können. Höhe, Gefälle und Entlüftung über Dach ist alles möglich. Der Kanalanschluss befindet sich dann in der Ecke planunten rechts.
Energetisch ist nichts abgeklärt. Da die Außenwände der langen Gauben etwas von der Sandsteinaußenmauer zurückspringen wäre eine Außendämmung möglich.
Du meinst die rechte Giebelwand zum Hof? Der Raum ist aus mehreren Gründen nicht schön zu integrieren und wurde deßhalb im Entwurf nicht berücksichtigt. Die Wand, die auf das Fenster zuläuft ist keine Wand, sondern ein Höhenversatz von ca 50cm. Die Decke vom darunterliegenden Eingangsbereich, früher Emfang und Büro, ist entsprechend höher, als der Rest im EG. Die Grundfläche von diesem Bereich wäre alleine zu klein oder man müsste sozusagen zweigeschossig bis in den First bauen (auf Höhe der 2 Fenster in der Giebelwand). Außerdem ist in diesem Bereich quasi kein Kniestock vorhanden. Den Bereich würde ich als Ausbaureserve sehen.
Die linke Giebelwand grenzt nur im oberen Teil nach Außen. Auf Höhe vom OG ist der Luftraum einer angrenzenden Halle. Auf der Ansicht West sieht man das ganz gut.
Tut mir Leid, wenn die Grundstruktur nicht sofort erkennbar ist. Falls noch was unklar ist, gerne fragen 😀
Die linke Giebelwand grenzt nur im oberen Teil nach Außen. Auf Höhe vom OG ist der Luftraum einer angrenzenden Halle. Auf der Ansicht West sieht man das ganz gut.
Tut mir Leid, wenn die Grundstruktur nicht sofort erkennbar ist. Falls noch was unklar ist, gerne fragen 😀
Ähnliche Themen