Bebauungsplan/Einschränkungen
Größe des Grundstücks 388qm
Hang: Ja, nach Nordwest
Grundflächenzahl, Geschossflächenzahl: Darüber hat der Architekt noch nicht gesagt, wir bauen nach Paragraph 34
Baufenster, Baulinie und -grenze: Max Hausbreite 8.80m, ehemalige Hausläbge Altbestand 14m
Anzahl Stellplatz:
Geschossigkeit:
Dachform: Satteldach
Ausrichtung: entsprechend dem Hang, First auch Richtung Nordwest
Anforderungen der Bauherren
Stilrichtung, Dachform, Gebäudetyp: Satteldach
Keller, Geschosse: 2,5 + Spitzboden
Anzahl der Personen, Alter: 5 Personen (Familie zweimal 32, 5 und 2) und in Einliegerwohnung 1 Person (85)
Raumbedarf im EG, OG: Einliegerwohnung ~ 50qm, Rest ~150qm
Büro: Familiennutzung oder Homeoffice? Office, da Lehrerpaar
Schlafgäste pro Jahr: variiert, aber viel Familie und Freunde aus ganz Deutschland
offene Küche, Kochinsel: Offen, gerne Kochinsel aber nicht ultimativ nötig
Anzahl Essplätze: 6-8
Kamin: erstmal nicht geplant, vllt jetzt anders durch den KFW Stopp
Balkon, Dachterrasse: Perspektivisch wäre vllt eine kleine „Dachterasse“ über der Terrasse der Einliegerwohnung nett, aber aus Kostengründen nicht mit eingeplant (Aussicht super)
Garage, Carport: es steht noch eine Garage (1995) auf dem Grundstück, an ungünstiger Stelle, die bleibt erstmal.
weitere Wünsche/Besonderheiten/Tagesablauf, gern auch Begründungen, warum dieses oder das nicht sein soll
Das Grundstück ist sehr eingebaut, daher haben wir versucht, die Stellen, an denen wir eine gute Aussicht haben, heraus zu arbeiten, das war lange Tüftelei von mir. Gute Aussicht nach Nordosten und Westen
Hausentwurf
Von wem stammt die Planung:
Architekt und Do-it-Yourself: Im Prinzip von mir, der Architekt, hatte dann so verändert, dass uns einiges nicht gefiel (UTreppe, Anordnung der anderen Räume schwierig), jetzt im Prinzip doch Zeichnung nach meinen Entwürfen, aber mit guten Verbesserungen vom Architekten
Was gefällt besonders? Warum? Treppe, Integration WC in OG, Lofttür zum Allraum als Verbindung zum „Treppenhaus“
Eingang in HAR soll noch unter die Treppe im EG, dafür die Wand der Einliegerwohnung verschoben,
Kinderzimmer gleich groß, Raumspartreppe zum Spitzboden (Hammer Aussicht von dort), Nutzung des Spitzboden als Spielezimmer, ggf Gästeunterbringung ,
Wohnraumerhöhung (auf 2,70) im OG geplant.
Was gefällt nicht? Warum?
Eingang in HAR soll noch unter die Treppe im EG, dafür die Wand der Einliegerwohnung verschoben.
Fenster generell überarbeiten, im WZ Richtung Westen ggf als unechtes „Eckfenster“ (mit Stützfeiler) aufgrund von Aussicht.
Fenster in Küche Richtung Nordosten soll unbedingt als Sitzfenster
Preisschätzung lt Architekt/Planer:
Inkl Bodenarbeiten 540.000€, allerdings mit KFW 55, was wir aus zeittechnischen Gründen nicht geschafft haben einzureichen. Jetzt müssen wir generell gucken, da wir eigentlich KFW40 für 2 Wohneinheiten mitnehmen wollten 😡
Persönliches Preislimit fürs Haus, inkl Ausstattung: 540.000€ wären schon wünschenswert, Preissimulation der GUs kommt auch grob hin.
favorisierte Heiztechnik: Geplant war Wärmepumpe, natürlich Fußbodenheizung
Wenn Ihr verzichten müsst, auf welche Details/Ausbauten
-könnt Ihr verzichten: Spitzboden erst später, Glastür/Lofttür zum WZ erst später, geplant sind keine Hebeschiebetüren und sonstiger Schnickschnack
-könnt Ihr nicht verzichten: Holzboden denke ich, ausreichend Fenster, Barrierefreiheit im EG
Warum ist der Entwurf so geworden, wie er jetzt ist? ZB
Lange Tüftelei von meiner Seite aus, tlw Inspiration von Pintrest, insgesamt aber stark vorgebene Außenhülle
Was ist die wichtigste/grundlegende Frage zum Grundriss in 130 Zeichen zusammengefasst?
Gibt es was, was so nicht funktioniert? Haben wir was übersehen? Wie sieht es aus mit der Fensterplanung (die wollen wir noch überarbeiten), macht das so Sinn wie vom Architekten vorgeschlagen? Wir wollen ein paar der Fenster sogar streichen (Z.B. im Schlafzimmer)


Größe des Grundstücks 388qm
Hang: Ja, nach Nordwest
Grundflächenzahl, Geschossflächenzahl: Darüber hat der Architekt noch nicht gesagt, wir bauen nach Paragraph 34
Baufenster, Baulinie und -grenze: Max Hausbreite 8.80m, ehemalige Hausläbge Altbestand 14m
Anzahl Stellplatz:
Geschossigkeit:
Dachform: Satteldach
Ausrichtung: entsprechend dem Hang, First auch Richtung Nordwest
Anforderungen der Bauherren
Stilrichtung, Dachform, Gebäudetyp: Satteldach
Keller, Geschosse: 2,5 + Spitzboden
Anzahl der Personen, Alter: 5 Personen (Familie zweimal 32, 5 und 2) und in Einliegerwohnung 1 Person (85)
Raumbedarf im EG, OG: Einliegerwohnung ~ 50qm, Rest ~150qm
Büro: Familiennutzung oder Homeoffice? Office, da Lehrerpaar
Schlafgäste pro Jahr: variiert, aber viel Familie und Freunde aus ganz Deutschland
offene Küche, Kochinsel: Offen, gerne Kochinsel aber nicht ultimativ nötig
Anzahl Essplätze: 6-8
Kamin: erstmal nicht geplant, vllt jetzt anders durch den KFW Stopp
Balkon, Dachterrasse: Perspektivisch wäre vllt eine kleine „Dachterasse“ über der Terrasse der Einliegerwohnung nett, aber aus Kostengründen nicht mit eingeplant (Aussicht super)
Garage, Carport: es steht noch eine Garage (1995) auf dem Grundstück, an ungünstiger Stelle, die bleibt erstmal.
weitere Wünsche/Besonderheiten/Tagesablauf, gern auch Begründungen, warum dieses oder das nicht sein soll
Das Grundstück ist sehr eingebaut, daher haben wir versucht, die Stellen, an denen wir eine gute Aussicht haben, heraus zu arbeiten, das war lange Tüftelei von mir. Gute Aussicht nach Nordosten und Westen
Hausentwurf
Von wem stammt die Planung:
Architekt und Do-it-Yourself: Im Prinzip von mir, der Architekt, hatte dann so verändert, dass uns einiges nicht gefiel (UTreppe, Anordnung der anderen Räume schwierig), jetzt im Prinzip doch Zeichnung nach meinen Entwürfen, aber mit guten Verbesserungen vom Architekten
Was gefällt besonders? Warum? Treppe, Integration WC in OG, Lofttür zum Allraum als Verbindung zum „Treppenhaus“
Eingang in HAR soll noch unter die Treppe im EG, dafür die Wand der Einliegerwohnung verschoben,
Kinderzimmer gleich groß, Raumspartreppe zum Spitzboden (Hammer Aussicht von dort), Nutzung des Spitzboden als Spielezimmer, ggf Gästeunterbringung ,
Wohnraumerhöhung (auf 2,70) im OG geplant.
Was gefällt nicht? Warum?
Eingang in HAR soll noch unter die Treppe im EG, dafür die Wand der Einliegerwohnung verschoben.
Fenster generell überarbeiten, im WZ Richtung Westen ggf als unechtes „Eckfenster“ (mit Stützfeiler) aufgrund von Aussicht.
Fenster in Küche Richtung Nordosten soll unbedingt als Sitzfenster
Preisschätzung lt Architekt/Planer:
Inkl Bodenarbeiten 540.000€, allerdings mit KFW 55, was wir aus zeittechnischen Gründen nicht geschafft haben einzureichen. Jetzt müssen wir generell gucken, da wir eigentlich KFW40 für 2 Wohneinheiten mitnehmen wollten 😡
Persönliches Preislimit fürs Haus, inkl Ausstattung: 540.000€ wären schon wünschenswert, Preissimulation der GUs kommt auch grob hin.
favorisierte Heiztechnik: Geplant war Wärmepumpe, natürlich Fußbodenheizung
Wenn Ihr verzichten müsst, auf welche Details/Ausbauten
-könnt Ihr verzichten: Spitzboden erst später, Glastür/Lofttür zum WZ erst später, geplant sind keine Hebeschiebetüren und sonstiger Schnickschnack
-könnt Ihr nicht verzichten: Holzboden denke ich, ausreichend Fenster, Barrierefreiheit im EG
Warum ist der Entwurf so geworden, wie er jetzt ist? ZB
Lange Tüftelei von meiner Seite aus, tlw Inspiration von Pintrest, insgesamt aber stark vorgebene Außenhülle
Was ist die wichtigste/grundlegende Frage zum Grundriss in 130 Zeichen zusammengefasst?
Gibt es was, was so nicht funktioniert? Haben wir was übersehen? Wie sieht es aus mit der Fensterplanung (die wollen wir noch überarbeiten), macht das so Sinn wie vom Architekten vorgeschlagen? Wir wollen ein paar der Fenster sogar streichen (Z.B. im Schlafzimmer)
M
moooooo3202.02.22 16:24EG
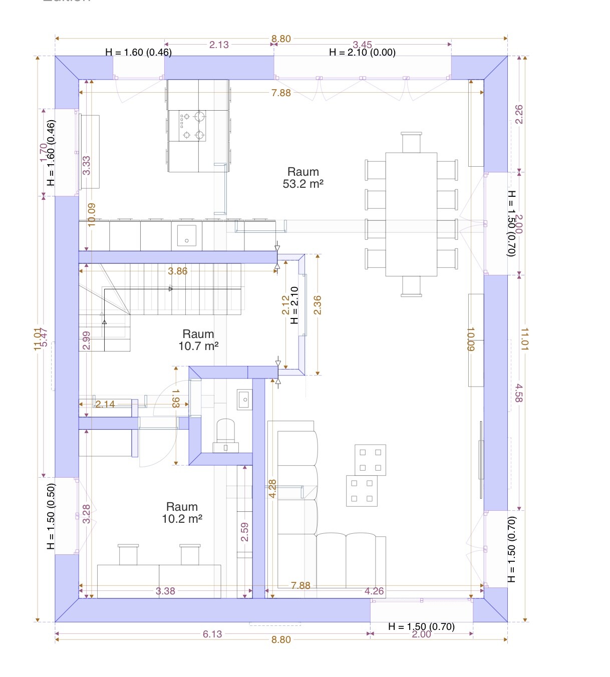
So hier mal meine bemaßten Grundrisse. Habe Hauswirtschaftsraum und Bad getauscht, was ich auch gut finde, aber das Schlafzimmer zu möblieren ist schwierig. Auf einen Zwischenflur habe ich verzichtet, aufgrund der Barrierefreiheit. Könnte man nachträglich vllt noch machen. Oder einen Raumtrenner hinstellen?
Die Wand im EG von Hauswirtschaftsraum und Bad hätte ich gerne weiter nach rechts, aber dann wird der Wohnraum wieder schwieriger zu möblieren. Habe aktuell vorhandene Möbel als Anhaltspunkte genutzt.
M
moooooo3202.02.22 17:30K a t j a schrieb:
Das WC sieht so mini aus. Als ob man in einem Schrank sitzt. Wie sind da die Rauminnenmaße?Ist auch mini! Fanden wir aber besser als gar kein WC auf der Etage. Mein Vorschlag es an die Außenwand links zu packen, hat der Architekt abgelehnt, mit der Begründung das Arbeitszimmer verkommt zum Abstellraum.
Das Programm heißt Architouch 3D. Hatte mal für einen Monat 20€ bezahlt und jetzt kann ich ein Projekt unendlich lange bearbeiten, glaube ich.
H
Hausprojekt3502.02.22 20:38Kurze Frage nebenbei: Was hat der Abriss gekostet?
M
moooooo3202.02.22 21:08Hausprojekt35 schrieb:
Kurze Frage nebenbei: Was hat der Abriss gekostet?Laut Angebot 28.000, wobei wir die Rechnung noch nicht haben. Vergleichsangebot lag bei 52.000€Ich will wahrlich nicht pietätlos sein, aber bei der Einliegerwohnung finde ich das Ensuite Bad sehr unglücklich.
Was passiert, wenn die Wohnung in der Zukunft anderweitig vermietet wird?
Eine Zweizimmerwohnung in der Größe hätte ich lieber mit dem Klo von Gang aus. damit nicht jeder Besucher durchs Schlafzimmer muss.
Im Idealfall hat das Schlafzimmer auch ne Größe, wo ohne große Kompromisse ein Doppelbett passt.
Den Platz vor der Treppe im Allraum empfinde ich bisschen als Verschenkt, wenn ich mir die Größe vom WC und vom "Raum" ansehe.
Im OG würd ich persönlich den Kindern mehr Platz einräumen.
Dafür das Schlafzimmer kleiner machen, aber da scheiden sich ja bekanntlich die Geister... 😉
Was passiert, wenn die Wohnung in der Zukunft anderweitig vermietet wird?
Eine Zweizimmerwohnung in der Größe hätte ich lieber mit dem Klo von Gang aus. damit nicht jeder Besucher durchs Schlafzimmer muss.
Im Idealfall hat das Schlafzimmer auch ne Größe, wo ohne große Kompromisse ein Doppelbett passt.
Den Platz vor der Treppe im Allraum empfinde ich bisschen als Verschenkt, wenn ich mir die Größe vom WC und vom "Raum" ansehe.
Im OG würd ich persönlich den Kindern mehr Platz einräumen.
Dafür das Schlafzimmer kleiner machen, aber da scheiden sich ja bekanntlich die Geister... 😉
Ähnliche Themen