ᐅ Grundriss Erstentwurf - Hinterhofbebauung - 1,5 Geschosse
Erstellt am: 15.10.25 14:31
Hallo zusammen,
wir möchten euch unseren ersten Grundrissentwurf vorstellen und um euer ehrliches Feedback bitten.
Das Haus ist für 2 Erwachsene + zukünftig eventuell 2 Kinder geplant und soll auf einem Grundstück auf dem Land entstehen. Wir sind aktuell in der Entwurfsphase und freuen uns über alle konstruktiven Rückmeldungen und Verbesserungsvorschläge.
Das Grundstück ist eine Hinterhofbebauung, womit gemeint ist, dass es ein paar Einschränkungen obliegt. So dürfen wir als Beispiel eine von 7,0m nicht und eine Traufhöhe von 3,7m nicht überschreiten. Zudem sind die vergebenen Grundstücke noch nicht erschlossen, sodass wir noch eine Straße hierhin errichten müssen.
Wir haben auf dem Lageplan das Grundstück Nummer 4 bekommen.
Ansonsten mehr dazu in den Notizen..
Bebauungsplan / Einschränkungen
Anforderungen der Bauherren
Warum der Entwurf so geworden ist
Wir wollten ein Haus, das familienfreundlich, funktional und langfristig altersgerecht ist und der für den Bebauungsplan passt.
Die Grundidee: Eltern leben komplett im EG, die Kinder leben im OG.
Aktuell sind wir noch in der Optimierungsphase und möchten Feedback zu:
Wir freuen uns auf euer ehrliches Feedback!
Was würdet ihr verbessern oder anders anordnen?
Danke schon jetzt für eure Zeit und eure Anregungen






wir möchten euch unseren ersten Grundrissentwurf vorstellen und um euer ehrliches Feedback bitten.
Das Haus ist für 2 Erwachsene + zukünftig eventuell 2 Kinder geplant und soll auf einem Grundstück auf dem Land entstehen. Wir sind aktuell in der Entwurfsphase und freuen uns über alle konstruktiven Rückmeldungen und Verbesserungsvorschläge.
Das Grundstück ist eine Hinterhofbebauung, womit gemeint ist, dass es ein paar Einschränkungen obliegt. So dürfen wir als Beispiel eine von 7,0m nicht und eine Traufhöhe von 3,7m nicht überschreiten. Zudem sind die vergebenen Grundstücke noch nicht erschlossen, sodass wir noch eine Straße hierhin errichten müssen.
Wir haben auf dem Lageplan das Grundstück Nummer 4 bekommen.
Ansonsten mehr dazu in den Notizen..
Bebauungsplan / Einschränkungen
- Größe des Grundstücks: ca. 27,5 m breit × 41 m tief (~1.100 m²)
- Hang: kein Hang, ebenes Gelände
- Grundflächenzahl (Grundflächenzahl): 0,4
- Geschossflächenzahl (Geschossflächenzahl): 0,4
- Baufenster / Abstände: 3 m Grenzabstand, Haus rechtsseitig positioniert, Garage darf an Grenze
- Geschossigkeit: 1,5-geschossig (max. 7 m Firsthöhe, ca. 3,7 m Traufhöhe)
- Dachform: Satteldach, mind. 25° Neigung
- Stilrichtung: moderner Landhausstil
- Ausrichtung: Süden liegt oben auf dem Plan
- Maximale Höhen: 7 m First, 3,7 m Traufe
- Weitere Vorgaben: Wir müssen das Grundstück noch mit einer Straße erschließen. Der Stil muss sich dem der Nachbarschaft anpassen.
Anforderungen der Bauherren
- Gebäudetyp: Einfamilienhaus, 1,5 Geschosse, kein Keller
- Bewohner: 2 Erwachsene, später 2 Kinder
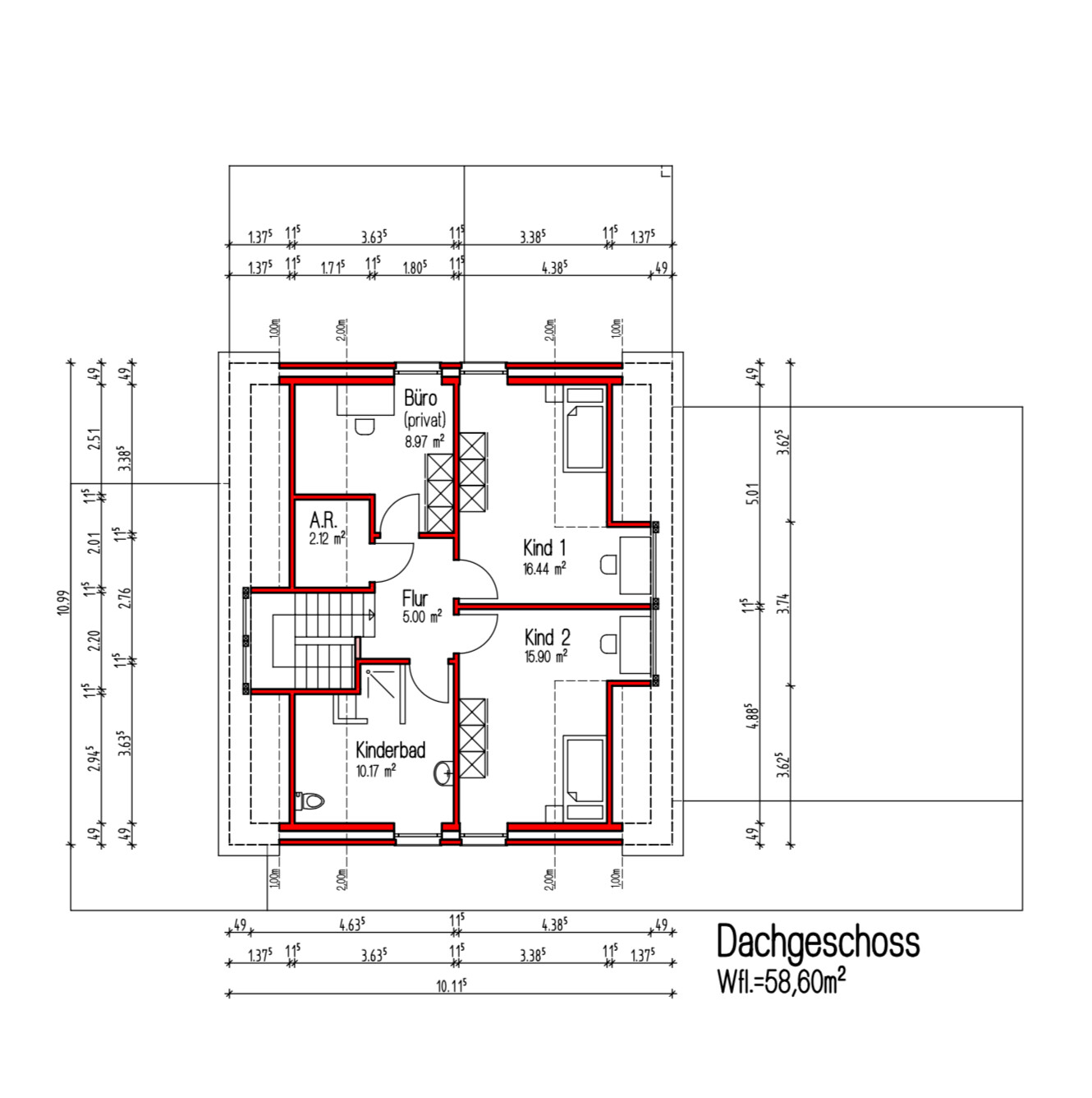
- Raumbedarf EG: Elternbereich komplett im EG (Schlafzimmer, Ankleide, Bad), Wohn-/Ess-/Küchenbereich (tendenziell Wohnen abgetrennt), Hauswirtschaftsraum mit Zugang zur Garage, Gäste-WC
- Raumbedarf OG: 2 Kinderzimmer, 1 Büro, 1 Bad, Abstellraum
- Büro: für Homeoffice und flexible Nutzung
- Schlafgäste: selten (max. 2–3 × pro Jahr)
- Architektur: offen, freundlich, mit klaren Sichtachsen
- Bauweise: eher konservativ-modern (kein Flachdach, aber helle Materialien, klare Linien)
- Küche: offene Küche mit Kochinsel
- Essbereich: großzügig, Tisch für 6-8 Personen
- Kamin: optional, eher als Design-/Gemütlichkeitsfaktor, eher nein
- Musik/Stereo: noch keine Gedanken drüber gemacht
- Balkon/Dachterrasse: nein
- Garage/Carport: Doppelgarage, direkter Zugang in Hauswirtschaftsraum, Autos könnten im überdachten Eingang stehen, damit man die Garage als Stellfläche hat, da wir kein Dachboden haben werden
- Garten: Nutzgartenanteil, Terrasse nach Süden -> im Bereich der Terrasse würde ich gerne einen Wintergarten planen für die Zukunft Oder optional diesen direkt mit bauen. Da wir einen Garten zum Süden und dahinter Ackerfläche haben werden ist der Wintergarten gewünscht als abgetrennter Bereich um diesen ganzjährig auch nutzen zu können.
- Besonderheiten:
- SmartHome geplant
- Elternbereich im EG bewusst gewählt
- Wintergarten in Zukunft oder direkt zum Bau eigentlich erwünscht
- Planung durch: Architekt
- Was gefällt besonders:
- Südorientierung mit hellen Räumen
- funktionaler Grundriss und Elternbereich
- Was gefällt (noch) nicht:
- Kinder-Bad oben ggf. Zu groß
- Schlafzimmer zu klein
- Speisekammer/ Vorrat mit Tür zum Hauswirtschaftsraum, Hauswirtschaftsraum vielleicht verkleinern zu Gunsten des Vorrats
- Schränke des Kinderzimmers verdecken die Fenster und könnten für schlechtere Beleuchtung sorgen
- Einfahrt in die Garage unsicher. Hier muss die Garage ggf. Nach hinten rücken
- Preisschätzung laut Architekt: noch nicht vorhanden
- Persönliches Preislimit (Haus + Ausstattung): ca. 500.000 €, komplett in Eigenleistung, Grundstück ist bezahlt
- Heiztechnik: Erdwärmepumpe über Bohrung, Fußbodenheizung, Technikraum wahrscheinlich im Geräterraum der Garage
Warum der Entwurf so geworden ist
Wir wollten ein Haus, das familienfreundlich, funktional und langfristig altersgerecht ist und der für den Bebauungsplan passt.
Die Grundidee: Eltern leben komplett im EG, die Kinder leben im OG.
Aktuell sind wir noch in der Optimierungsphase und möchten Feedback zu:
- Raumaufteilung im EG (Diele, Schlafbereich)
- Wohn/Ess/Kochbereich: Lösung mit ein angrenzenden Wintergarten. Wohnbereich gerne getrennt, dass Kinder oder Eltern bei Besuch getrennte Wege gehen können.
- Garagengröße
- Kinderbad: Größe und ggf. Kann man hier den AR größer bekommen und das Bad kleiner. Eventuell das WC vom Kinderbad getrennt zum Rest des Bades?
Wir freuen uns auf euer ehrliches Feedback!
Was würdet ihr verbessern oder anders anordnen?
Danke schon jetzt für eure Zeit und eure Anregungen
Das Kinderbad ist nicht mehr zu groß, wenn die Toilette in den Bereich der ausreichenden Kopfhöhe vorgezogen wird. Die Mauer zwischen Hauswirtschaftsraum und Vorratskammer würde ich weglassen.
https://www.instagram.com/11antgmxde/
https://www.linkedin.com/company/bauen-jetzt/
https://www.instagram.com/11antgmxde/
https://www.linkedin.com/company/bauen-jetzt/
Auf den ersten Blick gefällt er mir ganz gut.
Der Lageplan gibt mir jetzt keine Infos.
Toilette dann zwischen Fenster und Waschtisch.
Ich würde den Türanschlag ändern und an der langen Seite schöne Schränke einbauen. Der Vorratsraum ist quasi kaum effektiv, da zu schmal: das, was da reinpasst, bekommt man in 2 Hochschränke mit 60er Tiefe rein.
2. Blick: der Allraum/Küche wird dunkel. Schuld ist die Überdachung. Es gibt keine Ausgleichsfenster. Auch mit Glas als Überdach geht Licht verloren. Würde ich so nicht machen.
Der Lageplan gibt mir jetzt keine Infos.
Steiger schrieb:Bad ist gut so. Spendiere den Kindern eine Wanne, von der ihr auch Nutzen habt (nicht zur zum Baden, sondern für Allerlei, was das Leben und das Tageswerk bringt)
Kinderbad: Größe und ggf. Kann man hier den AR größer bekommen und das Bad kleiner. Eventuell das WC vom Kinderbad getrennt zum Rest des Bades?
Toilette dann zwischen Fenster und Waschtisch.
Steiger schrieb:Schöne Idee. Funktioniert leider nicht, solang die Kinder im Betreuungsalter sind.
Die Grundidee: Eltern leben komplett im EG, die Kinder leben im OG.
Ich würde den Türanschlag ändern und an der langen Seite schöne Schränke einbauen. Der Vorratsraum ist quasi kaum effektiv, da zu schmal: das, was da reinpasst, bekommt man in 2 Hochschränke mit 60er Tiefe rein.
2. Blick: der Allraum/Küche wird dunkel. Schuld ist die Überdachung. Es gibt keine Ausgleichsfenster. Auch mit Glas als Überdach geht Licht verloren. Würde ich so nicht machen.
Ich kann leider nicht erkennen, wie das Haus auf dem Grundstück angelegt sein soll. Keines der Lagebilder hat einen Nordpfeil und scheinbar scheint alles unterschiedlich ausgerichtet zu sein.
Vorratskammerstreifen von 100 cm Tiefe sollte tatsächlich besser dem Hauswirtschaftsraum zugeschlagen werden. Bezüglich der Fenster im Küchenbereich schließe ich mich @ypg an.
Die EG-Diele ist sehr groß mit sehr wenig Nutzen. Da würde ich den Haupteingang und den Eingang Wohnbereich um ca. 70 cm nach planlinks schieben. (d. h. die aktuell vorgesehen Garderobe wird auch entsprechend schmaler). Damit entsteht auf der rechten Seite des Windfangs und der Diele der Platz eine Einbauschrankzeile zu stellen für ausreichend Stauraum aller Jacken/Mäntel/Schuhe/Taschen etc. - Flurbedarf halt.
Steiger schrieb:Wo soll ein Wintergarten sein? Und was versprecht ihr euch von einem Wintergarten?
Wohn/Ess/Kochbereich: Lösung mit ein angrenzenden Wintergarten.
Vorratskammerstreifen von 100 cm Tiefe sollte tatsächlich besser dem Hauswirtschaftsraum zugeschlagen werden. Bezüglich der Fenster im Küchenbereich schließe ich mich @ypg an.
Die EG-Diele ist sehr groß mit sehr wenig Nutzen. Da würde ich den Haupteingang und den Eingang Wohnbereich um ca. 70 cm nach planlinks schieben. (d. h. die aktuell vorgesehen Garderobe wird auch entsprechend schmaler). Damit entsteht auf der rechten Seite des Windfangs und der Diele der Platz eine Einbauschrankzeile zu stellen für ausreichend Stauraum aller Jacken/Mäntel/Schuhe/Taschen etc. - Flurbedarf halt.
H
hanghaus202315.10.25 17:38Zeichne in den Lageplan bitte mal den Nordpfeil ein. Wo ist die Strasse?
Vielen Dank schon einmal für eure Ideen. Vorrat vergrößern bzw. ändern ist schon einmal mit aufgenommen. Den Wintergarten hätte ich jetzt dort geplant, wo der Terrassenbereich ist. Versprechen würde ich mir davon, dass man über das ganze Jahr hinweg ein hellen Raum hat zum Verweilen und in den Garten/ Ferne zu gucken. Habe mit vielen Leuten gesprochen, die den Wintergarten nicht missen wollen würden Und hier viel mehr Zeit als im Wohnzimmer verbringen.
Lageplan hänge ich mal anbei. Hoffe meine Amateurzeichnung hilft ein wenig..

Lageplan hänge ich mal anbei. Hoffe meine Amateurzeichnung hilft ein wenig..
Ähnliche Themen