H
HausamBerg27.02.25 14:26Hallo an alle,
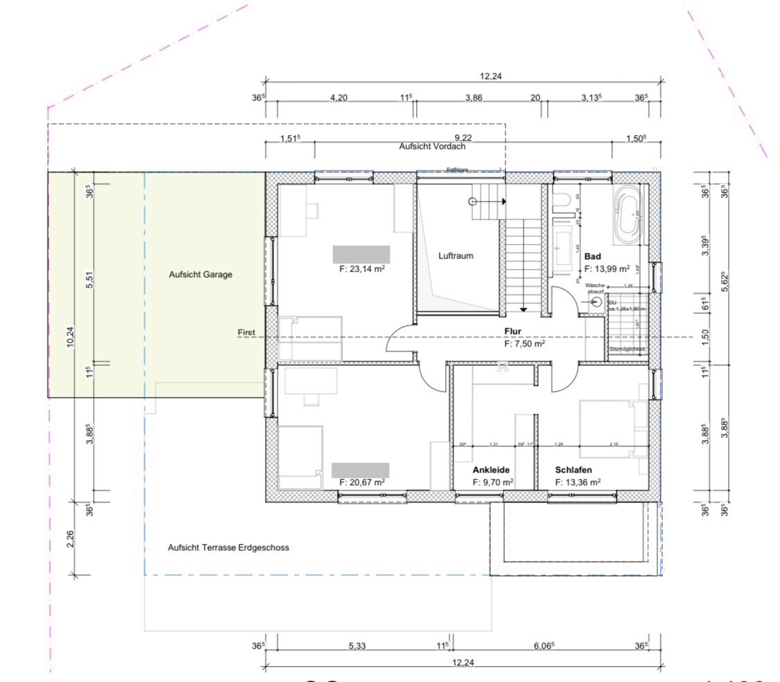
aktuell befinden wir uns in der Planungsphase bei einem Architekten. Das Haus wird in Massivbauweise gebaut. Satteldach 30 Grad. Norden ist oben im Plan.
Wir werden dort zusammen mit unseren 2 Kindern wohnen. Diese sind noch im Kindergarten Alter.
Bitte gebt doch eure Anregungen, damit wir eventuell noch Änderungen vornehmen können.
Eventuell wird noch das Elternschlafzimmer mit dem Kinderschlafzimmer im Norden getauscht. Die Kinderschlafzimmer dann Richtung Süden und gleich groß.
Vielen Dank schonmal



aktuell befinden wir uns in der Planungsphase bei einem Architekten. Das Haus wird in Massivbauweise gebaut. Satteldach 30 Grad. Norden ist oben im Plan.
Wir werden dort zusammen mit unseren 2 Kindern wohnen. Diese sind noch im Kindergarten Alter.
Bitte gebt doch eure Anregungen, damit wir eventuell noch Änderungen vornehmen können.
Eventuell wird noch das Elternschlafzimmer mit dem Kinderschlafzimmer im Norden getauscht. Die Kinderschlafzimmer dann Richtung Süden und gleich groß.
Vielen Dank schonmal
HausamBerg schrieb:
Das Haus wird in Massivbauweise gebaut.DG monolithisch, EG zweischalig ?HausamBerg schrieb:
Die Kinderschlafzimmer dann Richtung Süden und gleich groß.Gleichriesige Zimmer für gleichgeliebte Kinder: das ist ein Eltern-Kopfding, das die Kinder gar nicht interessiert. Die meckern eher, wenn ihr Geschwister näher am WLAN AP dran ist.https://www.instagram.com/11antgmxde/
https://www.linkedin.com/company/bauen-jetzt/
H
HausamBerg27.02.25 15:21haydee schrieb:
Bitte den Fragebogen ausfüllen. Ist das Grundstück ein Hanggrundstück? Nein Ist es nicht. Es hat aber leichte HöhenunterschiedeHmm.. grundsätzlich ist es natürlich immer schwierig, wenn man mit Keller baut und in den Wohnebenen keinen Wischmop und Staubsauger unterbringen kann.
- Aber dafür sorgt es für viel Bewegung, für jedes Ding den Keller zu laufen und Getränkekisten nach unten zu schleppen.
- Zu dem Wechsel Kinderzimmer/Schlafzimmer: sollte man schon deshalb machen, damit die Kinderzimmer die schönen helleren Räume bekommen. Ich persönlich finde ü18qm aber zu groß für Kinderzimmer - meist glänzen sie dann vor Ungemütlichkeit, weil nun mal die notwendigen möbel nicht für Behaglichkeit dienen können. Kinderzimmer müssen allerdings nicht gleich groß sein. Man kann ein großes und ein kleineres Zimmer mit gleichen Möbel einrichten und Fehler machen, sodass das kleinere Zimmer größer wirkt als das große.
- Was natürlich auffällt, ist der Luftraum über der Diele: der wird den Hall und Schall nach oben tragen wie auch kalte Luft, wenn mal die Haustür aufgemacht wird.
- In der Küche wären mir zu wenig Hochschränke. Die Speis empfinde ich wiederum als überflüssig Und lässt keine schöne Insel zu, nur diesen Stummel.
- Schatten- oder Zweitterrasse ist immer nett, würde ich aber wohl gern direkt von der Küche aus begehen können (Tausch Büro/Küche). Tausch hätte den Vorteil, in der Küche nicht nur ein Nordfenster zu haben, sondern auch von der Ostsonne zu profitieren.
- Bei der Hausgröße würde ich vermeiden, dass der Treppenantritt direkt im Schmutzbereich der Haustür liegt.
- Wie ein Sofa im Raum steht, ist natürlich Geschmackssache. Da würde ich aber auf allen drei Seiten die Möglichkeit einplanen, den TV anzuschließen. Denn diese Variante wäre wohl für mich die letzte, die ich für gut befinde.
- Fensterlage in der Ankleide verstehe ich nicht: damit nimmt man sich auf der einen Seite Stellfläche, wie man ja sieht. Für die Optik in der Fassade ist es jetzt anscheinend eh nicht wichtig, oder?
- Keller, Hobbyraum, da machen die Türpositionen keinen Sinn. Die würde ich so setzen, dass man auch mal eine Trennung der Räume vornehmen kann. Ich sehe den Raum aber auch eher im Osten mit Lichtschacht wie das Gästezimmer.
- Das vorhandene Fenster im Hobbyraum ist von der Lage eine Fehlplanung, denn für die Terrasse tut der Lichtschacht weniger als nichts.
Um jetzt noch zu sagen, .ansonsten nett. ist wohl von mir zu viel an Kritik geflossen?!
Aber mit den Änderungen kann es ganz nett werden. Zumindest ist ja genug Fläche vorhanden, dass es zu keinen Engstellen kommen sollte.
- Aber dafür sorgt es für viel Bewegung, für jedes Ding den Keller zu laufen und Getränkekisten nach unten zu schleppen.
- Zu dem Wechsel Kinderzimmer/Schlafzimmer: sollte man schon deshalb machen, damit die Kinderzimmer die schönen helleren Räume bekommen. Ich persönlich finde ü18qm aber zu groß für Kinderzimmer - meist glänzen sie dann vor Ungemütlichkeit, weil nun mal die notwendigen möbel nicht für Behaglichkeit dienen können. Kinderzimmer müssen allerdings nicht gleich groß sein. Man kann ein großes und ein kleineres Zimmer mit gleichen Möbel einrichten und Fehler machen, sodass das kleinere Zimmer größer wirkt als das große.
- Was natürlich auffällt, ist der Luftraum über der Diele: der wird den Hall und Schall nach oben tragen wie auch kalte Luft, wenn mal die Haustür aufgemacht wird.
- In der Küche wären mir zu wenig Hochschränke. Die Speis empfinde ich wiederum als überflüssig Und lässt keine schöne Insel zu, nur diesen Stummel.
- Schatten- oder Zweitterrasse ist immer nett, würde ich aber wohl gern direkt von der Küche aus begehen können (Tausch Büro/Küche). Tausch hätte den Vorteil, in der Küche nicht nur ein Nordfenster zu haben, sondern auch von der Ostsonne zu profitieren.
- Bei der Hausgröße würde ich vermeiden, dass der Treppenantritt direkt im Schmutzbereich der Haustür liegt.
- Wie ein Sofa im Raum steht, ist natürlich Geschmackssache. Da würde ich aber auf allen drei Seiten die Möglichkeit einplanen, den TV anzuschließen. Denn diese Variante wäre wohl für mich die letzte, die ich für gut befinde.
- Fensterlage in der Ankleide verstehe ich nicht: damit nimmt man sich auf der einen Seite Stellfläche, wie man ja sieht. Für die Optik in der Fassade ist es jetzt anscheinend eh nicht wichtig, oder?
- Keller, Hobbyraum, da machen die Türpositionen keinen Sinn. Die würde ich so setzen, dass man auch mal eine Trennung der Räume vornehmen kann. Ich sehe den Raum aber auch eher im Osten mit Lichtschacht wie das Gästezimmer.
- Das vorhandene Fenster im Hobbyraum ist von der Lage eine Fehlplanung, denn für die Terrasse tut der Lichtschacht weniger als nichts.
Um jetzt noch zu sagen, .ansonsten nett. ist wohl von mir zu viel an Kritik geflossen?!
Aber mit den Änderungen kann es ganz nett werden. Zumindest ist ja genug Fläche vorhanden, dass es zu keinen Engstellen kommen sollte.
Leider kennen wir nicht das ganze Grundstück.
Was mich sehr stört, ist die Position der Garage im Westen. Diese Wand nimmt einem sämtliches Licht in der Küche. Das wäre mir zu trist und deprimierend. Könnte die Garage nicht vielleicht besser an den Platz, wo die "Schattenterrasse" einsam und unerreichbar vor sich hin dümpelt?
Ansonsten hat Yvonne schon vieles gesagt. Was mir noch ins Auge stach, ist der Schornstein in der Ankleide. Den würde ich auf den Flur verbannen und dort mit Einbauregalen kaschieren.
Könnt Ihr bitte noch das Budget nennen?
Was mich sehr stört, ist die Position der Garage im Westen. Diese Wand nimmt einem sämtliches Licht in der Küche. Das wäre mir zu trist und deprimierend. Könnte die Garage nicht vielleicht besser an den Platz, wo die "Schattenterrasse" einsam und unerreichbar vor sich hin dümpelt?
Ansonsten hat Yvonne schon vieles gesagt. Was mir noch ins Auge stach, ist der Schornstein in der Ankleide. Den würde ich auf den Flur verbannen und dort mit Einbauregalen kaschieren.
Könnt Ihr bitte noch das Budget nennen?
Ähnliche Themen