ᐅ Was haltet Ihr von unserem Grundriss?
Erstellt am: 04.07.17 11:12
infors04.07.17 11:12
Hallo.
Nachdem wir so tolle Unterstützung bei einzelnen Fragen von euch bekommen haben möchten wir nun unseren den von uns favorisierten Grundriss zeigen. Wir freuen uns über eure positive und negative Kritik. Mit unserer Planung würden wir anschließend gerne zu einem Architekten gehen, so dass er unsere Vorstellung sieht und final umsetzt.
Einfamilienhaus
Größe des Grundstücks: 586m2
Grundflächenzahl: 0,4
Geschossflächenzahl: 0,8
Anzahl Stellplatz: 2
Geschossigkeit: 2 Vollgeschosse
Dachform: Flachdach
Ausrichtung: Süd
kein Keller
Anzahl der Personen: 2 Erwachsene + 1 Baby (ein weiteres geplant)
Schlafgäste pro Jahr: 6
moderne Bauweise
offene Küche
Kamin (optional)
kein Balkon oder Dachterrasse
Garage
Von wem stammt die Planung: Do-it-Yourself
favorisierte Heiztechnik: Gas
Warum ist der Entwurf so geworden, wie er jetzt ist?
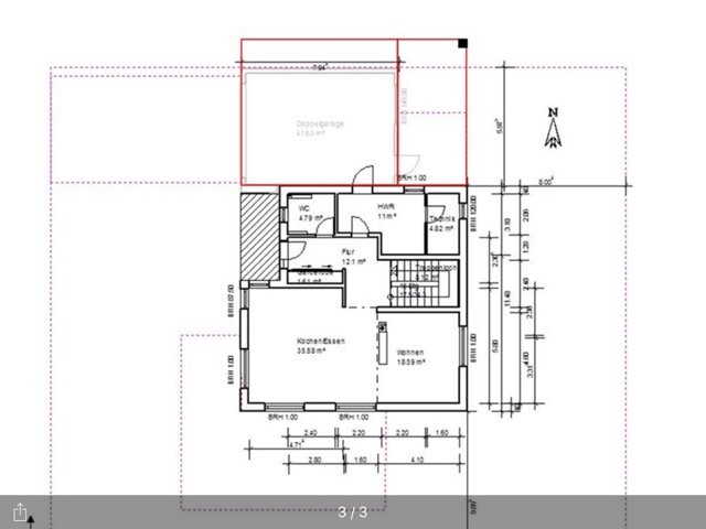
Wir möchten gerne so gut es geht barrierefrei bauen. Aus dem Grund ist das Bad inkl. Dusche im EG ( für Gäste und unsere Kinder) ist etwas größer und auch andere Räume hätten etwas kleiner ausfallen können. Die Bewegungsfreiheit bei barrierefreiem Bau soll dadurch gewährleistet werden.
Im linken Eck des Grundrisses ist eine Ankleide zu sehen. Bei Bedarf kann in dem Bereich nachträglich ein Leichtbaulift für einen Rollstuhlfahrer eingebaut werden. Sollte das nicht nötig sein, so wird der Platz halt als Garderobe genutzt. Ein Treppenlift kommt für uns nicht in Frage, da wir schlechte Erfahrungen damit gemacht haben. Daher möchten wir lieber die Möglichkeit haben später im Bedarfsfall einen Leichtbaulift nachrüsten zu können. Dass der Lift in der oberen Etage im Kind 2 rauskommen würde nehmen wir in Kauf. Im Bedarfsfall wären wir froh überhaupt einen Lift nutzen zu können. Sollten 2 Kinder noch im Haus leben, so kann Kind2 auch in das Büro/Gast Zimmer und ist ungestört.
Da wir ohne Keller bauen mußten wir eine Kellerersatzfläche schaffen.
Im oberen Badezimmer wird der Waschraum integriert, da wir nicht immer die Treppen steigen möchten, um in einen Waschraum im Erdgeschoss zu laufen. Oben fällt die Schmutzwäsche an, von daher möchten wir dort auch Waschen. Einen separaten Waschraum möchten wir nicht. Primär nutzen wir den Trockner und falls doch eine Wäschespinne von nöten ist, so können wir diese auch temporär im oberen Bad aufstellen.
Der Hauseingang ist etwas nach hinten versetzt. Das liegt daran, dass wir das Haus so weit wie möglich Richtung Norden haben wollten und wir daher für einen zweiten PKW Stellplatz etwas mehr Platz brauchten für das Auto. Auch wollten wir eine Überdachung am Hauseingang. Mit dem Versetzen des Hauseingangs konnten wir beides realisieren.
Die Gartenterrasse ist im EG ins Haus eingelassen, so dass wir eine Überdachung bekommen.
Was meint Ihr zum Grundriss?
Wir sind gespannt... 🙂


Nachdem wir so tolle Unterstützung bei einzelnen Fragen von euch bekommen haben möchten wir nun unseren den von uns favorisierten Grundriss zeigen. Wir freuen uns über eure positive und negative Kritik. Mit unserer Planung würden wir anschließend gerne zu einem Architekten gehen, so dass er unsere Vorstellung sieht und final umsetzt.
Einfamilienhaus
Größe des Grundstücks: 586m2
Grundflächenzahl: 0,4
Geschossflächenzahl: 0,8
Anzahl Stellplatz: 2
Geschossigkeit: 2 Vollgeschosse
Dachform: Flachdach
Ausrichtung: Süd
kein Keller
Anzahl der Personen: 2 Erwachsene + 1 Baby (ein weiteres geplant)
Schlafgäste pro Jahr: 6
moderne Bauweise
offene Küche
Kamin (optional)
kein Balkon oder Dachterrasse
Garage
Von wem stammt die Planung: Do-it-Yourself
favorisierte Heiztechnik: Gas
Warum ist der Entwurf so geworden, wie er jetzt ist?
Wir möchten gerne so gut es geht barrierefrei bauen. Aus dem Grund ist das Bad inkl. Dusche im EG ( für Gäste und unsere Kinder) ist etwas größer und auch andere Räume hätten etwas kleiner ausfallen können. Die Bewegungsfreiheit bei barrierefreiem Bau soll dadurch gewährleistet werden.
Im linken Eck des Grundrisses ist eine Ankleide zu sehen. Bei Bedarf kann in dem Bereich nachträglich ein Leichtbaulift für einen Rollstuhlfahrer eingebaut werden. Sollte das nicht nötig sein, so wird der Platz halt als Garderobe genutzt. Ein Treppenlift kommt für uns nicht in Frage, da wir schlechte Erfahrungen damit gemacht haben. Daher möchten wir lieber die Möglichkeit haben später im Bedarfsfall einen Leichtbaulift nachrüsten zu können. Dass der Lift in der oberen Etage im Kind 2 rauskommen würde nehmen wir in Kauf. Im Bedarfsfall wären wir froh überhaupt einen Lift nutzen zu können. Sollten 2 Kinder noch im Haus leben, so kann Kind2 auch in das Büro/Gast Zimmer und ist ungestört.
Da wir ohne Keller bauen mußten wir eine Kellerersatzfläche schaffen.
Im oberen Badezimmer wird der Waschraum integriert, da wir nicht immer die Treppen steigen möchten, um in einen Waschraum im Erdgeschoss zu laufen. Oben fällt die Schmutzwäsche an, von daher möchten wir dort auch Waschen. Einen separaten Waschraum möchten wir nicht. Primär nutzen wir den Trockner und falls doch eine Wäschespinne von nöten ist, so können wir diese auch temporär im oberen Bad aufstellen.
Der Hauseingang ist etwas nach hinten versetzt. Das liegt daran, dass wir das Haus so weit wie möglich Richtung Norden haben wollten und wir daher für einen zweiten PKW Stellplatz etwas mehr Platz brauchten für das Auto. Auch wollten wir eine Überdachung am Hauseingang. Mit dem Versetzen des Hauseingangs konnten wir beides realisieren.
Die Gartenterrasse ist im EG ins Haus eingelassen, so dass wir eine Überdachung bekommen.
Was meint Ihr zum Grundriss?
Wir sind gespannt... 🙂
haydee04.07.17 12:09
Nur kurz
Ich hätte die Kinderzimmer die Südausrichtung gegeben.
Schlafzimmer in den Norden. Die Kinder halten sich länger in den Zimmern auf als wir Erwachsenen. Und wir "Alten" sind im Sommer froh über jedes Grad das die Schlafräume kühler sind.
Das Gästezimmer ist der größte Raum im OG. Hätte die Fläche anders verteilt. Auch finde ich einen kleine "Waschküche" nicht verkehrt. Berge von Schmutzwäsche im Bad, oder ein Waschbecken blockiert, weil dort die Handwäsche schwimmt finde ich im eigenen Haus nicht so prickelnd.
Habt ihr in allen Räumen die Wendekreise für Gehhilfen berücksichtigt? Auch im OG im Bad. (sonst nutzt der Lift auch nicht viel)
Ich hätte die Kinderzimmer die Südausrichtung gegeben.
Schlafzimmer in den Norden. Die Kinder halten sich länger in den Zimmern auf als wir Erwachsenen. Und wir "Alten" sind im Sommer froh über jedes Grad das die Schlafräume kühler sind.
Das Gästezimmer ist der größte Raum im OG. Hätte die Fläche anders verteilt. Auch finde ich einen kleine "Waschküche" nicht verkehrt. Berge von Schmutzwäsche im Bad, oder ein Waschbecken blockiert, weil dort die Handwäsche schwimmt finde ich im eigenen Haus nicht so prickelnd.
Habt ihr in allen Räumen die Wendekreise für Gehhilfen berücksichtigt? Auch im OG im Bad. (sonst nutzt der Lift auch nicht viel)
11ant04.07.17 13:40
Warum führst Du den bisherigen Thread https://www.hausbau-forum.de/threads/wohin-mit-der-terrasse-und-den-wohnraeumen-wenn-eine-strasse-auf-westseite-liegt.24223/ nicht einfach fort ?
Ich sehe zu da keinen großen Unterschied, eigentlich nur den Abstellraum vom Gästezimmer abgetrennt und das Bett im Schlafzimmer anders hingestellt.
Für wesentliche Verbesserungen wäre noch reichlich Potential. Ich habe jetzt nicht nachgesehen, welche Vorschläge schon gemacht und noch nicht "abgearbeitet" wurden, aber: daß das Bad so noch gar nicht überzeugt, ist doch bestimmt schon´mal angedeutet worden (?)
Was soll das an der Grundstücksgrenze darstellen: eine Hecke hinter einem Zaun ? - erwartet Ihr Republikflucht ?
Ich sehe zu da keinen großen Unterschied, eigentlich nur den Abstellraum vom Gästezimmer abgetrennt und das Bett im Schlafzimmer anders hingestellt.
Für wesentliche Verbesserungen wäre noch reichlich Potential. Ich habe jetzt nicht nachgesehen, welche Vorschläge schon gemacht und noch nicht "abgearbeitet" wurden, aber: daß das Bad so noch gar nicht überzeugt, ist doch bestimmt schon´mal angedeutet worden (?)
Was soll das an der Grundstücksgrenze darstellen: eine Hecke hinter einem Zaun ? - erwartet Ihr Republikflucht ?
infors15.08.17 15:46
Hallo liebe Forumsgemeinde. 🙂
Ich habe eine aktualisierte Grundrissversion von uns Laien. Ein Architekt soll mit unserer Grundrissvorlage dann entsprechend alles statisch etc. final planen. Wir haben viele Ideen von euch eingebunden. Vielleicht habt ihr dennoch auch Kritik am neuen Grundriss. Wir sind gespannt.
Die Kinderzimmer haben wir bewußt in den Westen gesetzt, da Kids oft erst nachmittags aus der Schule kommen und so noch Abendsonne abbekommen.
Grundsätzlich haben wir versucht zu berücksichtigen, dass im Alter ein barrierefreies Leben möglich ist. Auch ein Lift kann nachträglich bei Bedarf eingebaut werden. Dieser würde dann vom aktuellen Essbereich hochgehen ins Büro/Gast/Abstellraum. Ich weiß, lieber wäre uns die nachträgliche Unterbringung in einem anderen Raum im EG. Dies würde aber das Haus noch größer machen als es aktuell ist. Zur Zeit haben wir für 3, evtl. später 4 Personen 178,66 m2 in der Planung.
Also, her mit eurer Kritik. 🙂


Ich habe eine aktualisierte Grundrissversion von uns Laien. Ein Architekt soll mit unserer Grundrissvorlage dann entsprechend alles statisch etc. final planen. Wir haben viele Ideen von euch eingebunden. Vielleicht habt ihr dennoch auch Kritik am neuen Grundriss. Wir sind gespannt.
Die Kinderzimmer haben wir bewußt in den Westen gesetzt, da Kids oft erst nachmittags aus der Schule kommen und so noch Abendsonne abbekommen.
Grundsätzlich haben wir versucht zu berücksichtigen, dass im Alter ein barrierefreies Leben möglich ist. Auch ein Lift kann nachträglich bei Bedarf eingebaut werden. Dieser würde dann vom aktuellen Essbereich hochgehen ins Büro/Gast/Abstellraum. Ich weiß, lieber wäre uns die nachträgliche Unterbringung in einem anderen Raum im EG. Dies würde aber das Haus noch größer machen als es aktuell ist. Zur Zeit haben wir für 3, evtl. später 4 Personen 178,66 m2 in der Planung.
Also, her mit eurer Kritik. 🙂
RobsonMKK15.08.17 15:51
Ich würde jedem Kinderzimmer noch etwas mehr geben und den Raum im Süden verkleinern.
Ihr seid euch bewusst das euer Schlafzimmer im Sommer recht kuschelig werden wird?
Ihr seid euch bewusst das euer Schlafzimmer im Sommer recht kuschelig werden wird?
ypg15.08.17 18:04
Ähnliche Themen