Grundriss Einfamilienhaus-Sattelhaus mit Keller, ca. 200 qm

4,70 Stern(e) 12 Votes
Zuletzt aktualisiert 18.11.2025
Sie befinden sich auf der Seite 8 der Diskussion zum Thema: Grundriss Einfamilienhaus-Sattelhaus mit Keller, ca. 200 qm
>> Zum 1. Beitrag <<

S

Stein2023

Hallo zusammen,

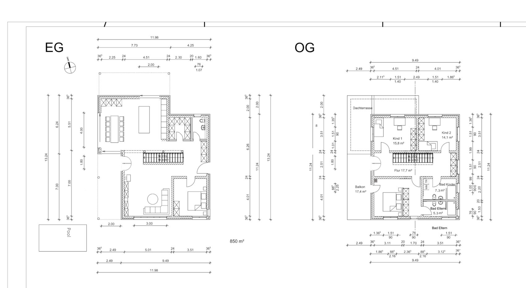
in der Zwischenzeit hat sich bei uns einiges getan. U.a. hat uns die Statik eingeholt und wir mussten in der Planung etwas anpassen. Nun sind wir dabei, die Fenster anzuordnen und bräuchten eure Unterstützung. Den Plan den wir euch anhängen werden, haben wir basierend auf dem Vorschlag unseres Architekten, "manuell" angepasst. Im Wohnzimmer haben wir an ein Panoramafenster gedacht. Die Küche und den Essbereich wollen wir mit Hebeschiebefenstertüren versehen, um auf die Terrasse im Norden zu kommen und evlt. den Blick auf den Pool zu haben. Wir sind gespannt auf euer Feedback. Die Fensterplanung erweist sich nämlich doch schwieriger als Gedacht.


Grundriss eines Hauses: EG und OG mit Treppenhaus, Küche, Wohnzimmer, Schlafzimmern, Pool.
 
11ant

11ant

Den Plan den wir euch anhängen werden, haben wir basierend auf dem Vorschlag unseres Architekten, "manuell" angepasst.
Zeige dazu mal das "Original" und merke dazu die Gründe der Anpassungen an - einerseits zur Freude der MitdiskutantInnen, und andererseits weil sonst mit hoher Wahrscheinlichkeit "zufällig" genau die Rückänderungen vorgeschlagen werden ;-)
 
Nida35a

Nida35a

was mich stört ist die Ausrichtung im OG,
Schlafzimmer und Elternbad im Süden (Aufenthalt von 22-8 Uhr ),
Kinderzimmer im Norden (Aufenthalt 24 h).
Peepshow beim Duschen vor dem Eck Fenster ;)
 
S

Stein2023

Peepshow beim Duschen vor dem Eck Fenster ;)
Das Eckfenster im Bad kommt daher, weil auch im Gästezimmer/HO-Zimmer im EG ein Eckfenster ist, durch welches wir zur Straße und zur Einfahrt schauen können. Damit es optisch Sinn macht, haben wir ebenfalls ein Eckfenster mit höhere Brüstung ins Bad geplant. Wollten dies dann satiniert ausführen lassen, damit die Peepshow ausfällt :)
 
Nida35a

Nida35a

schaut beim bemustern des satinierten Glases genau hin,
eine Hand dahinterhalten mit 5, 30 und 60cm Abstand,
nicht das alle Hundehalter eure Show in die Morgenrunde mit aufnehmen.
Was mir noch aufgefallen ist, steht die Kücheninsel im Laufweg zur Terrassentür?
 
S

Stein2023

schaut beim bemustern des satinierten Glases genau hin,
eine Hand dahinterhalten mit 5, 30 und 60cm Abstand,
nicht das alle Hundehalter eure Show in die Morgenrunde mit aufnehmen.
Was mir noch aufgefallen ist, steht die Kücheninsel im Laufweg zur Terrassentür?
Vielen Dank für den Hinweis! Ja, wobei wir dies bewusst so gewählt haben. Eine normale Balkontür würde stören, daher wollen wir das Schiebeelement nach links hin öffnen, sodass man zwischen Insel und Küchenrückwand auf die Terrasse kann.
 
Zuletzt aktualisiert 18.11.2025
Im Forum Grundrissplanung / Grundstücksplanung gibt es 2536 Themen mit insgesamt 87966 Beiträgen


Ähnliche Themen zu Grundriss Einfamilienhaus-Sattelhaus mit Keller, ca. 200 qm
Nr.ErgebnisBeiträge
1Planung Außenanlage - Terrasse positionieren 78
2Bodentiefe Eckfenster - Seite 212
3Eckfenster mit Rollladenkasten möglich? - Wer hat Erfahrungen? 16
4Terrasse mit Plenera Dielen 32
5Grundriss Einfamilienhaus mit Doppelgarage und Terrasse 19
6Begehbare Garage (Terrasse) - Seite 211
7Terrasse mit Platten über Eck (L-Form). Realisierung Gefälle 12
8Terrasse erstellen lassen 11
9Terrasse auf Flachdach - Aufbau - Belag 12
10Fundament/Untergrund WPC Terrasse 36
11Terrasse und Auffahrt 55
12Terrasse auf Garage wird nur zum teil genehmigt 11
13Terrasse vom Nachbar grenzt an Garage 11
14Wohin mit Terrasse/Wohnräumen wenn Straße auf Westseite liegt? - Seite 345
15Winkelbungalow, Terrasse ganz oder halb überdachen? 57
16Terrasse anlegen - Probleme mit dem Gefälle 18
17Holz-Terrasse - Welche Holzart wählen, oder WPC Dielen? - Seite 431
18Ausrichtung und Form von Einfamilienhaus - Ecke für Terrasse abschneiden? 14
19Schuhe an der Terrasse; wohin damit? Wäre ein Schrank die Lösung? 28
20Terrasse an Hanglage auf Stelzen - Holz oder Stahl besser? 38

Oben