Hausbau - Ratgeber
Bauherrenhilfe
- Bauherrenhilfe vor Vertragsabschluss
-- Warum einen unabhängigen Baubetreuer?
-- Vertragsgrundlagen
-- Bausumme
-- Zahlungsplan zur Kostenkontrolle
-- Pflichten des Bauherren vor Vertragsabschluss
-- Unterlagen beim Hausbau vor Vertragsabschluss
- Bauherrenhilfe nach Vertragsabschluss
-- Bauantrag bei Behörden
-- Bau-Genehmigungsverfahren bei Baubehörden
-- Bauspezifische Versicherungen
-- Bauzeitenplan
-- Baubeginn - die Letzten Pflichten der Bauherrschaft
- Bauherrenhilfe während der Bauzeit
- Gewährleistungsansprüche
- Bauabnahme
Baufinanzierung
- Baufinanzierung - Allgemeine Fragen
- Kreditarten
- Kredit-Konditionen
- Bausparen
- Staatliche Förderungen
- Verkehrswert
- Haushaltsrechnung und Bonität
Hausbau Planung
- Haustypen
- Hausbau Vorbereitungsarbeiten
- Das Baugrundstück
- Baugrund beim Hausbau
- Baurecht
- Gebäudeschutz
- Erdarbeiten und Wasserhaltung
- Stützmauern
- Einfriedung
- Untergeschoss
- Kanalisation
- Tragende Elemente
- Nichttragende Innenwände
- Fundation / Fundament
- Deckenkonstruktionen
- Dächer
- Kaminanlagen
- Treppen Rampen Leitern
- Dachbeläge und Spengler
- Fenster
- Sonnen und Wetterschutz
- Aussenputze
- Einbauten, Küchen, Türen
- Bodenbeläge und Unterlagsböden
- Parkett
- Gips, Wand, Decke
Haustechnik und Energie
- Heiztechnik
- Lüftung und Klimatechnik
- Sanitärtechnik
- Elektrotechnik
- Erneuerbare Energie
Whirlpools / Jacuzzi
Hausbau Magazin
- Baufinanzierung trotz Krise?
- Das Blockhaus
- Moderne Dämmstoffe im Vergleich
- Erker Vor- und Nachteile
- Glasflächen beim Hausbau
- Günstig ein Haus Bauen
- Mediterraner Hausbaustil
- Mehrgenerationenhaus
- Moderne Architektur
- Gartengestaltung leicht gemacht
- Traditioneller Ziegelbau
- Villa als höchster Traum
- Im Eigenheim Ruhestand geniessen
- Altbau sanieren
- Kauf einer Holzgarage
- Immobilienmakler
- Arbeitshandschuhe für den Winter
- Zuhause verschönern
- Outdoor-Plissees
- Schlafzimmer planen
- Terrassenüberdachung
- Wohngebäudeversicherung
- Zaunarten und Eigenschaften
- Hauseingang gestalten
- Der perfekte Grundriss
- Sparsamer heizen im Altbau
- Einfamilienhaus smart finanzieren
- Planung einer PV-Anlage
- Neues Haus
- Immobilienfinanzierung
- Installation einer Photovoltaikanlage
- Asbest erkennen und entfernen
- Gartenpflege im Frühling – worauf achten
- Sauna im Fokus - Wellness zuhause
- Erfolgreich vermieten
- Die perfekte Winterbekleidung
- Das Niedrigenergiehaus
- Der April und seine Stürme
- Architektonische Vielfalt
- Ökologisch und nachhaltig bauen
- Das perfekte Schlafzimmer
- Nachhaltige Energieversorgung
- Zukunftsorientiert bauen
- Nachhaltigkeit beim Hausbau
- Tiny Houses
- Wärmepumpen als nachhaltige Heizvariante
- Maßgeschneiderten Kleiderschrank
- Der richtige Baukredit
- Ratgeber für erfolgreichen Hausbau
- Haus als Altersvorsorge
Do-it-yourself Anleitungen
- Verlegeanleitung für Bodenbeläge und Parkett
- Bodenbeläge und Parkett reinigen und pflegen
- Malerarbeiten am Haus
- Garten Tipps
- Umzug und Reinigung

ᐅ Grundriss Einfamilienhaus mit Fernblick - Fallen euch Planungsfehler auf?


Erstellt am: 28.10.18 13:03

B
Bauhamster1
28.10.18 13:03
Hallo liebe Forenbesucher und Experten,

wir haben nach unzähligen Plänen nun eine finale Version welche ich euch bitte auf Planungsfehler zu prüfen. Es ist noch nichts in Stein gemeißelt und ich freue mich sehr über eure Punkte.
- EG in unseren Augen sehr gut. 1. OG leider noch nicht.
- Wichtig, in dem Programm sind Dachschrägen nicht berücksichtigt.
- Bemaßungen im Grundriss in Meter.

Grundfragen sind folgende:
  • Beinhaltet der Grundriss grobe Planungsfehler?
  • Hauseingang richtig gewählt? (Derzeit auf Ostseite geplant)
  • Treppe sinnvoll? (haben auch gute Grundrisse mit einer mittigen Treppe gesehen)
  • gibt es ggf. einen Trick wie man etwas mehr Kniestock für das 1.OG schafft ohne für das EG auf eine Deckenhöhe von ca.2,60m (Lichtmaß) zu verzichten? Haltet ihr 2,60m für übertrieben? WIr halten uns am meisten im EG/ Ess- und Wohnbereich auf.
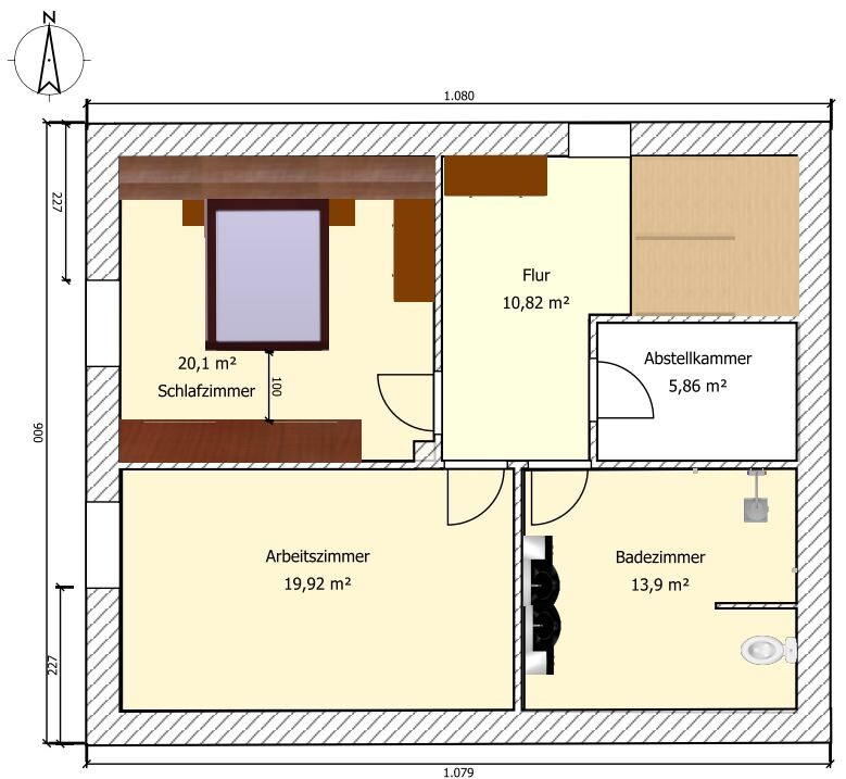
  • 1.OG Arbeitszimmer zu groß. Schlafzimmer etwas zu klein, Bad etwas zu klein, Abstellkammer gefühlt "im Weg"

Anbei hoffentlich alle relevanten Fakten zum Grundriss/Grundstück sowie dem Bebauungsplan.

Bebauungsplan/Einschränkungen
Größe des Grundstücks 520m²
Hang nein
Grundflächenzahl (Grundflächenzahl) 0,25
Geschossflächenzahl (Geschossflächenzahl) 0,4
Baufenster, Baulinie und –grenze 12x10m Randbebauung
Anzahl Stellplatz 2 Autos
Geschossigkeit 2
Dachform Satteldach, 38-42 Grad
Stilrichtung modern- große Glasfronten
Ausrichtung Länge des Baukörpers Ost-West
Maximale Höhen/Begrenzungen 3,9m Außenwandh.(Aufsparren- Dämmsystem)
weitere Vorgaben Verhältnis Bauk. 1,0m Breite zu 1,2m Länge

Anforderungen der Bauherren
Stilrichtung, Dachform, Gebäudetyp modern,große Glasfronten,Satteldach
Keller, Geschosse Keller - geplant, 2
Anzahl der Personen, Alter 2 Personen, 31 & 32 Jahre
Raumbedarf im EG, OG Großer offener Wohnbereich Familiennutzung oder Homeoffice? Homeoffice im 1.OG wünschenswert
Schlafgäste pro Jahr wenig
offene oder geschlossene Architektur offen
konservativ oder moderne Bauweise modern, kein KFW-Haus
offene Küche, Kochinsel geschlossene Küche mit großer Schiebetür,
Kochinsel wäre „nice to have“ aber kein muss
Anzahl Essplätze 1
Kamin Ja und ist ein MUSS!
Musik/Stereowand nein
Balkon, Dachterrasse nein, nein
Garage, Carport egal, 2 Fahrzeuge
Nutzgarten, Treibhaus Nutzgarten
Besonderheiten Sehr sonnige Lage, Fernblick zur Nordseite

Hausentwurf
Von wem stammt die Planung: Laie (unsJ) à Di-it-Yourself

Was gefällt besonders? Warum? EG, großer und offener Wohnbereich inkl. Kamin
Was gefällt nicht? Warum? Wenig Stauraum im EG, 1.OG niedriger Kniestock
Preisschätzung lt Architekt/Planer: noch nicht erfolgt. sollte jedoch in unserem Budget sein
Persönliches Preislimit fürs Haus, inkl Ausstattung: 520.000 + 100.000 Keller
favorisierte Heiztechnik: keine Anschlüsse - daher externe Energieversorgung


Wenn Ihr verzichten müsst, auf welche Details/Ausbauten
-könnt Ihr verzichten: Ausrichtung Hauseingang, Keller, sonstiges
-könnt Ihr nicht verzichten: hohe Türstöcke, Kamin, Große Fensterfronten
(auf der Nord & Westseite im EG)
offener Wohnbereich, Schlafzimmer auf der Nord-West)

Warum ist der Entwurf so geworden, wie er jetzt ist?

Was macht ihn in Euren Augen besonders gut oder schlecht?

Gut: Offener Wohnbereich (EG)
Schlecht: gefühlt im (EG) zu wenig Stauraum, Keine Speisekammer

2D-Grundriss eines Hauses mit Schlafzimmer, Arbeitszimmer, Flur, Badezimmer und Abstellkammer


2D Grundrissplan zeigt Wohn- und Essbereich, Küche, Eingangsbereich und Garage.


Handgezeichneter Grundrissplan eines Hauses mit Abmessungen und Eingangsbereich


Lageplan eines Grundstücks mit Parzellen, Straßenführung und Gebäuden


3D-Grundriss eines Hauses mit Garage, zwei Autos, Schlafzimmer und Bad im Innenbereich


3D-Hausgrundriss mit Garage, Küche, Essbereich und Wohnzimmer.
Y
ypg
28.10.18 17:33
Was versprichst Du Dir von dem separaten Flur/Treppenhaus?
Der Aufgang könnte auf bezüglich der Dachneigung etwas eng werden.
Ich würde die Treppenansätze einfach mal zur Diele drehen...
Grundsätzlich würde ich wohl das Haus drehen, zum Westen den Garten... ich hab so mit dem Lageplan ein Problem: kannst Du mal die Himmelsrichtungen dort einzeichnen?
S
Snowy36
28.10.18 18:28
Das frage ich mich auch grad , wieso geht’s in deinem Grundriss vom Süden her rein ( Straße ) ist die Erschließung von dort ?

Ich persönlich hab den Garten gerne im Süden , so wie 90% der Menschen

Mir wäre das Haus für das Budget auch viel zu klein dafür bekommst richtig gut was ! Mindestens 170 qm plus Keller . Das EG erdrückt einen ja , Speis fehlt und
Im Gäste-WC kann man sich nicht umdrehen

Bitte nicht selber Grundrisse erstellen das geht daneben , erst mal was vernünftiges planen lassen u darauf kann man dann aufsetzen u verbessern
Y
ypg
28.10.18 19:26
Wer soll denn da alles in der Küche werkeln? Ist nach meiner Meinung etwas Platzverschwendung. Dafür sind die laufenden Meter für die Küchenschränke etwas rar... Und ja: es fehlt grundsätzlich Stauraum. Noch nicht mal für nen Garderobenschrank ist Platz, nur für ein paar Haken. Und die Schuhe?
Mit Dachschräge ist die Treppe und die Toilette knapp. Ich hoffe, der Keller hat bei Euch eine Daseinsberechtigung?
Ich finde nicht, dass Ihr oben mehr Platz braucht. Ohne Kinderzimmers solltet Ihr da oben auch mit geringem Kniestock auskommen. Allerdings muss der Grundriss stimmen, und der tut es hier nicht.
E
Escroda
28.10.18 19:57
Bauhamster schrieb:
gibt es ggf. einen Trick wie man etwas mehr Kniestock für das 1.OG schafft ohne für das EG auf eine Deckenhöhe von ca.2,60m (Lichtmaß) zu verzichten?
Nein. Wenn's der Bebauungsplan erlaubt, kann man aber mit großzügigen Gauben oder Zwerchgiebeln planen.
Bauhamster schrieb:
Haltet ihr 2,60m für übertrieben?
Nein, nicht übertrieben. Aber wenn die 10cm dann im OG fehlen, dann verzichtbar.

Dass das Baufenster für die Garage nur 5m tief sein soll, kann ich kaum glauben. Wenn doch, passt deine Garage leider nicht.
B
Bauhamster1
29.10.18 09:00
ypg schrieb:

Grundsätzlich würde ich wohl das Haus drehen, zum Westen den Garten... ich hab so mit dem Lageplan ein Problem: kannst Du mal die Himmelsrichtungen dort einzeichnen?

Lageplan eines Baugrundstücks mit Parzellen und Gebäuden
grundrissekellerwohnbereichnutzgartentreppekniestockküchekamingaragestauraum