ᐅ Grundriss Einfamilienhaus mit Fernblick - Fallen euch Planungsfehler auf?
Erstellt am: 28.10.18 13:03
B
Bauhamster1
Hallo liebe Forenbesucher und Experten,
wir haben nach unzähligen Plänen nun eine finale Version welche ich euch bitte auf Planungsfehler zu prüfen. Es ist noch nichts in Stein gemeißelt und ich freue mich sehr über eure Punkte.
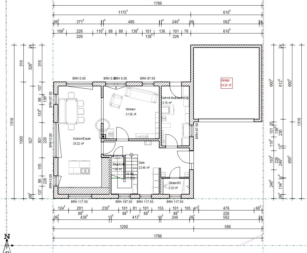
- EG in unseren Augen sehr gut. 1. OG leider noch nicht.
- Wichtig, in dem Programm sind Dachschrägen nicht berücksichtigt.
- Bemaßungen im Grundriss in Meter.
Grundfragen sind folgende:
Anbei hoffentlich alle relevanten Fakten zum Grundriss/Grundstück sowie dem Bebauungsplan.
Bebauungsplan/Einschränkungen
Größe des Grundstücks 520m²
Hang nein
Grundflächenzahl (Grundflächenzahl) 0,25
Geschossflächenzahl (Geschossflächenzahl) 0,4
Baufenster, Baulinie und –grenze 12x10m Randbebauung
Anzahl Stellplatz 2 Autos
Geschossigkeit 2
Dachform Satteldach, 38-42 Grad
Stilrichtung modern- große Glasfronten
Ausrichtung Länge des Baukörpers Ost-West
Maximale Höhen/Begrenzungen 3,9m Außenwandh.(Aufsparren- Dämmsystem)
weitere Vorgaben Verhältnis Bauk. 1,0m Breite zu 1,2m Länge
Anforderungen der Bauherren
Stilrichtung, Dachform, Gebäudetyp modern,große Glasfronten,Satteldach
Keller, Geschosse Keller - geplant, 2
Anzahl der Personen, Alter 2 Personen, 31 & 32 Jahre
Raumbedarf im EG, OG Großer offener Wohnbereich Familiennutzung oder Homeoffice? Homeoffice im 1.OG wünschenswert
Schlafgäste pro Jahr wenig
offene oder geschlossene Architektur offen
konservativ oder moderne Bauweise modern, kein KFW-Haus
offene Küche, Kochinsel geschlossene Küche mit großer Schiebetür,
Kochinsel wäre „nice to have“ aber kein muss
Anzahl Essplätze 1
Kamin Ja und ist ein MUSS!
Musik/Stereowand nein
Balkon, Dachterrasse nein, nein
Garage, Carport egal, 2 Fahrzeuge
Nutzgarten, Treibhaus Nutzgarten
Besonderheiten Sehr sonnige Lage, Fernblick zur Nordseite
Hausentwurf
Von wem stammt die Planung: Laie (unsJ) à Di-it-Yourself
Was gefällt besonders? Warum? EG, großer und offener Wohnbereich inkl. Kamin
Was gefällt nicht? Warum? Wenig Stauraum im EG, 1.OG niedriger Kniestock
Preisschätzung lt Architekt/Planer: noch nicht erfolgt. sollte jedoch in unserem Budget sein
Persönliches Preislimit fürs Haus, inkl Ausstattung: 520.000 + 100.000 Keller
favorisierte Heiztechnik: keine Anschlüsse - daher externe Energieversorgung
Wenn Ihr verzichten müsst, auf welche Details/Ausbauten
-könnt Ihr verzichten: Ausrichtung Hauseingang, Keller, sonstiges
-könnt Ihr nicht verzichten: hohe Türstöcke, Kamin, Große Fensterfronten
(auf der Nord & Westseite im EG)
offener Wohnbereich, Schlafzimmer auf der Nord-West)
Warum ist der Entwurf so geworden, wie er jetzt ist?
Was macht ihn in Euren Augen besonders gut oder schlecht?
Gut: Offener Wohnbereich (EG)
Schlecht: gefühlt im (EG) zu wenig Stauraum, Keine Speisekammer





wir haben nach unzähligen Plänen nun eine finale Version welche ich euch bitte auf Planungsfehler zu prüfen. Es ist noch nichts in Stein gemeißelt und ich freue mich sehr über eure Punkte.
- EG in unseren Augen sehr gut. 1. OG leider noch nicht.
- Wichtig, in dem Programm sind Dachschrägen nicht berücksichtigt.
- Bemaßungen im Grundriss in Meter.
Grundfragen sind folgende:
- Beinhaltet der Grundriss grobe Planungsfehler?
- Hauseingang richtig gewählt? (Derzeit auf Ostseite geplant)
- Treppe sinnvoll? (haben auch gute Grundrisse mit einer mittigen Treppe gesehen)
- gibt es ggf. einen Trick wie man etwas mehr Kniestock für das 1.OG schafft ohne für das EG auf eine Deckenhöhe von ca.2,60m (Lichtmaß) zu verzichten? Haltet ihr 2,60m für übertrieben? WIr halten uns am meisten im EG/ Ess- und Wohnbereich auf.
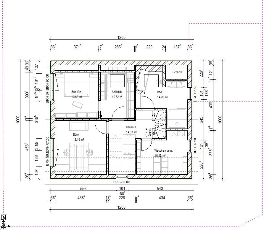
- 1.OG Arbeitszimmer zu groß. Schlafzimmer etwas zu klein, Bad etwas zu klein, Abstellkammer gefühlt "im Weg"
Anbei hoffentlich alle relevanten Fakten zum Grundriss/Grundstück sowie dem Bebauungsplan.
Bebauungsplan/Einschränkungen
Größe des Grundstücks 520m²
Hang nein
Grundflächenzahl (Grundflächenzahl) 0,25
Geschossflächenzahl (Geschossflächenzahl) 0,4
Baufenster, Baulinie und –grenze 12x10m Randbebauung
Anzahl Stellplatz 2 Autos
Geschossigkeit 2
Dachform Satteldach, 38-42 Grad
Stilrichtung modern- große Glasfronten
Ausrichtung Länge des Baukörpers Ost-West
Maximale Höhen/Begrenzungen 3,9m Außenwandh.(Aufsparren- Dämmsystem)
weitere Vorgaben Verhältnis Bauk. 1,0m Breite zu 1,2m Länge
Anforderungen der Bauherren
Stilrichtung, Dachform, Gebäudetyp modern,große Glasfronten,Satteldach
Keller, Geschosse Keller - geplant, 2
Anzahl der Personen, Alter 2 Personen, 31 & 32 Jahre
Raumbedarf im EG, OG Großer offener Wohnbereich Familiennutzung oder Homeoffice? Homeoffice im 1.OG wünschenswert
Schlafgäste pro Jahr wenig
offene oder geschlossene Architektur offen
konservativ oder moderne Bauweise modern, kein KFW-Haus
offene Küche, Kochinsel geschlossene Küche mit großer Schiebetür,
Kochinsel wäre „nice to have“ aber kein muss
Anzahl Essplätze 1
Kamin Ja und ist ein MUSS!
Musik/Stereowand nein
Balkon, Dachterrasse nein, nein
Garage, Carport egal, 2 Fahrzeuge
Nutzgarten, Treibhaus Nutzgarten
Besonderheiten Sehr sonnige Lage, Fernblick zur Nordseite
Hausentwurf
Von wem stammt die Planung: Laie (unsJ) à Di-it-Yourself
Was gefällt besonders? Warum? EG, großer und offener Wohnbereich inkl. Kamin
Was gefällt nicht? Warum? Wenig Stauraum im EG, 1.OG niedriger Kniestock
Preisschätzung lt Architekt/Planer: noch nicht erfolgt. sollte jedoch in unserem Budget sein
Persönliches Preislimit fürs Haus, inkl Ausstattung: 520.000 + 100.000 Keller
favorisierte Heiztechnik: keine Anschlüsse - daher externe Energieversorgung
Wenn Ihr verzichten müsst, auf welche Details/Ausbauten
-könnt Ihr verzichten: Ausrichtung Hauseingang, Keller, sonstiges
-könnt Ihr nicht verzichten: hohe Türstöcke, Kamin, Große Fensterfronten
(auf der Nord & Westseite im EG)
offener Wohnbereich, Schlafzimmer auf der Nord-West)
Warum ist der Entwurf so geworden, wie er jetzt ist?
Was macht ihn in Euren Augen besonders gut oder schlecht?
Gut: Offener Wohnbereich (EG)
Schlecht: gefühlt im (EG) zu wenig Stauraum, Keine Speisekammer
... und eigentlich müsste man auch die Entfernung sofa/TV prüfen. Sieht ja nicht nach Beamerwand aus, aber trotzdem nach ca. 650 cm. Das ist oft zu weit. Und Sofa wirklich vor bodentiefen Fenstern?
Wo soll Terrasse hin und schon mal Weg Küche/TErrasse geprüft?
Fernblick im Norden ... wann kann man ihn genießen ... eher immer mal tagsüber bei diversen Aktionen Küche/essen usw. oder eher dann, wenn man Zeit fürs Sofa hat? Im Winter ja eher dann, wenn es dunkel ist, im Sommer wird man vielleicht solange es hell ist, die Zeit eher auf der Nord?-Terrasse verbringen, gerne mit schnellem Zugang zum gekühltem Getränk.
Wo soll Terrasse hin und schon mal Weg Küche/TErrasse geprüft?
Fernblick im Norden ... wann kann man ihn genießen ... eher immer mal tagsüber bei diversen Aktionen Küche/essen usw. oder eher dann, wenn man Zeit fürs Sofa hat? Im Winter ja eher dann, wenn es dunkel ist, im Sommer wird man vielleicht solange es hell ist, die Zeit eher auf der Nord?-Terrasse verbringen, gerne mit schnellem Zugang zum gekühltem Getränk.
@Bauhamster ... nachdem das ja ein 2-Personen-Haus werden soll, keinerlei Gründe für den Keller angegeben worden sind, andererseits Stauraum in EG/OG vermisst wurde (obwohl man ja den Keller hat), jetzt mal mein Versuch 😉.
Mit Ausgang Richtung Terrassenmöglichkeiten im Westen/Norden.
Mit Wohnzimmer und Sofa am Fenster für den Fernblick.
Mit der Hausgröße angemessener Podesttreppe, die nicht einfach nur irgendwo reingequetscht ist.
OHNE Keller
Mit Stauraum unter der Treppe .. offener Teil mit Maßauszügen für Schuhe, geschlossener Teil im Aufgangszweig für Staubsauger, Wischer und Konsorten.
2 m Garderobenschrank
Im Technikraum Platz für einen TK-Schrank, weiteres Vorratsregal. Im hinteren Bereich evtl. Einstellen Rasenmäher oder Gartenmöbel. Platz für eine kleine Werkbank.
Garage auf ca. 660 cm verlängert, damit auch ein größeres Auto in der Länge passt. 5m Außenmass wie geplant, sollte da nicht aufgehen.
Im OG die obere Planhälfte für Schlafen, Ankleide und Bad. Wobei das Bad vom Flur betretbar ist und eine Riesendusche hat. Außerdem Badewanne unter dem Dachfenster zum Sternegucken, Doppelwaschbecken.
Büro mit 2 Schreibtischen und evtl. einem Schlafsofa für Gäste.
Großer Hauswirtschaftsraum/Abstellraum mit Waschmaschine/Trockner.
Außerdem im OG mal eine Treppe eingezeichnet, damit man das, was man sonst nicht unterbringt, vielleicht im Spitzboden unterbringt. Auch, wenn der nicht die beste Stehhöhe bei 40 ° Dachneigung hat. Zum Abstellen reicht es aber.
Fenster etc. wie immer .. als Idee 😉.

Mit Ausgang Richtung Terrassenmöglichkeiten im Westen/Norden.
Mit Wohnzimmer und Sofa am Fenster für den Fernblick.
Mit der Hausgröße angemessener Podesttreppe, die nicht einfach nur irgendwo reingequetscht ist.
OHNE Keller
Mit Stauraum unter der Treppe .. offener Teil mit Maßauszügen für Schuhe, geschlossener Teil im Aufgangszweig für Staubsauger, Wischer und Konsorten.
2 m Garderobenschrank
Im Technikraum Platz für einen TK-Schrank, weiteres Vorratsregal. Im hinteren Bereich evtl. Einstellen Rasenmäher oder Gartenmöbel. Platz für eine kleine Werkbank.
Garage auf ca. 660 cm verlängert, damit auch ein größeres Auto in der Länge passt. 5m Außenmass wie geplant, sollte da nicht aufgehen.
Im OG die obere Planhälfte für Schlafen, Ankleide und Bad. Wobei das Bad vom Flur betretbar ist und eine Riesendusche hat. Außerdem Badewanne unter dem Dachfenster zum Sternegucken, Doppelwaschbecken.
Büro mit 2 Schreibtischen und evtl. einem Schlafsofa für Gäste.
Großer Hauswirtschaftsraum/Abstellraum mit Waschmaschine/Trockner.
Außerdem im OG mal eine Treppe eingezeichnet, damit man das, was man sonst nicht unterbringt, vielleicht im Spitzboden unterbringt. Auch, wenn der nicht die beste Stehhöhe bei 40 ° Dachneigung hat. Zum Abstellen reicht es aber.
Fenster etc. wie immer .. als Idee 😉.
kbt09 schrieb:
Man könnte statt dem gezeigtem Kaminofen auch einen Wandkamin wählen, der von beiden Räumen sichtbar ist und den Wohnbereich dann sogar mit Schiebetüren verschließen. So könnten auch beide Parteien mal unabhängigen Besuch empfangen .. im Wohnbereich und im Koch/Essbereich. Bei dem Budget ja vielleicht sogar machbar ....ca 15.000 Euro würde ich schätzen so ein KaminÄhnliche Themen