Grundriss Einfamilienhaus, leichte Hanglage, NW-Ausrichtung

4,50 Stern(e) 6 Votes
Zuletzt aktualisiert 09.01.2026
Sie befinden sich auf der Seite 13 der Diskussion zum Thema: Grundriss Einfamilienhaus, leichte Hanglage, NW-Ausrichtung
>> Zum 1. Beitrag <<

K

kronos215

Dem Hüftspeck ist es egal, ob die Nachbarn die Sahne auf dem Kuchen gesehen haben. Meine Einschätzung hier eher pro Keller hat sich bestätigt. Steigt das Gelände denn nur in der Tiefe, also seitlich gerade ?
Mir sind auf der Terrasse primär trockene Füße wichtig. Wer Gelände modelliert, zieht sich den Schuh der Drainageverantwortung an.
Danke für die Antwort. Der seitliche Geländeverlauf ist gerade bis sehr leicht abfallend nach planrechts. Deutlich geringer als nach planoben. Wurde nicht extra bemessen
 
K

kronos215

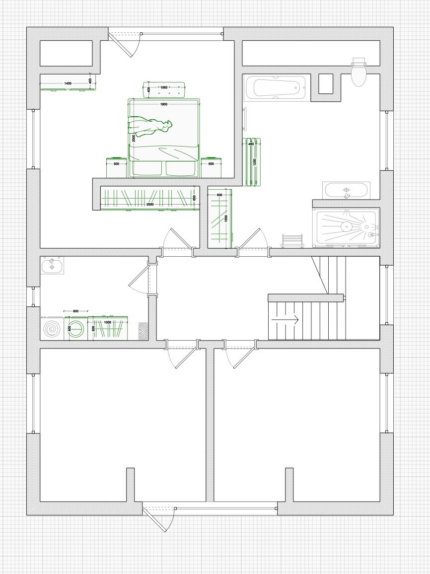
Das Grundstück fällt zur Seite nicht ab. Ich habe hier auf Basis einer anderen Architektenplanung einen weiteren groben Grundriss (ohne Keller) entwickelt und bitte um Kritik. Ich überlege aus dem Hauswirtschaftsraum im OG einen Luftraum zu machen und den Raum in die angrenzende Garage zu setzen. Mir gefällt die Ausrichtung der Räume. Das Schlafzimmer ist noch etwas groß. Die Küche könnte etwas klein sein (?). Bei 40 Grad Dachneigung müsste die Deckenhöhe auf Höhe der Drempelwand bei 1,50m liegen. Laut Bebauungsplan könnten wir bis 48 Grad gehen. Es bleiben 4m Abstand zum Nachbarn. Die Terrasse wäre im Nordwesten, da sich dort auch der Garten öffnet. Was ist eure Meinung zum Grundriss?

Sollte mit Keller gebaut werden würde der Eingang rechts sein und Hauswirtschaftsraum, Garage, Vorräte und Technik in den Keller wandern.


Detaillierter Grundriss eines Hauses mit Küche, Wohnzimmer und Treppenhaus

Grundriss eines Hauses: Schlafzimmer, Bad (Wanne, Dusche), Treppe und zwei große Räume.
 
Zuletzt aktualisiert 09.01.2026
Im Forum Grundrissplanung / Grundstücksplanung gibt es 2565 Themen mit insgesamt 88787 Beiträgen


Ähnliche Themen zu Grundriss Einfamilienhaus, leichte Hanglage, NW-Ausrichtung
Nr.ErgebnisBeiträge
1Erster Grundriss Einfamilienhaus - Eure Ideen auch zum Grundstück - Seite 333
2Bebauung Grundstück - Keller ja oder nein? 75
3Hanghaus 235 qm mit Garage im Keller auf 3600 qm Grundstück 15
4Grundriss-Planung und Platzierung - Einfamilienhaus ca. 200qm auf 900qm Grundstück - Seite 255
5Grundriss Einfamilienhaus 133qm Grundstück 850qm - Seite 216
6Grundriss Einfamilienhaus ca. 190qm mit Keller auf Millimeterpapier 78
7Grundriss für Einfamilienhaus mit 200m² mit Einliegerwohnung 75 +Keller 140m² +Garage 56m² 59
8Grundriss Einfamilienhaus ohne Keller, 3 Kinderzimmer und Büro 18
9200m2 Einfamilienhaus für 4-5 Personen ohne Keller auf schmalem Grundstück 67
10Einfamilienhaus 150m2 Grundriss + Planung auf dem Grundstück 24
11Planung Einfamilienhaus - ca. 170m2 ohne Keller 13
12Grundriss-Entwurf für Haus am Hang in zweiter Reihe 20
13Grundriss für Einfamilienhaus in Waldrandlage 45
14Grundriss Doppelhaushälfte mit Gästezimmer 53
15Erstes Angebot, 157m2 mit Keller, KFW 70, Garage 14
16Einfamilienhaus ohne Keller - Diskussion Grundriss 19
17Bauen ohne Keller - Carport, Garage? 18
18Keller oder Grundstück begradigen? - Seite 243
19Einfamilienhaus bauen mit/ohne Keller bei kleinem Grundstück - Seite 765
20Grundriss für Einfamilienhaus 210 m² + Keller - Eure Meinungen 16

Oben