ᐅ Grundriss Einfamilienhaus in L-Form mit ca. 155qm
Erstellt am: 29.06.21 16:53
Hallo Zusammen,
vielen Dank für eure Unterstützung und konstruktiven Vorschläge.
Fragenkatalog:
Bebauungsplan/Einschränkungen
Größe des Grundstücks: 540 qm, ca 28,4m x 18,7m
Hang: Nein
Baufenster, Baulinie und -grenze
Randbebauung: Nur Garage
Anzahl Stellplatz: 1 Stellplatz vor der Garage.
Geschossigkeit: 2
Dachform: Walmdach mit Neigung zwischen 15°- 30°
Stilrichtung: Einzelhaus
Ausrichtung: Süd
Maximale Höhen/Begrenzungen: 10m
weitere Vorgaben: Nahwärme
Anforderungen der Bauherren
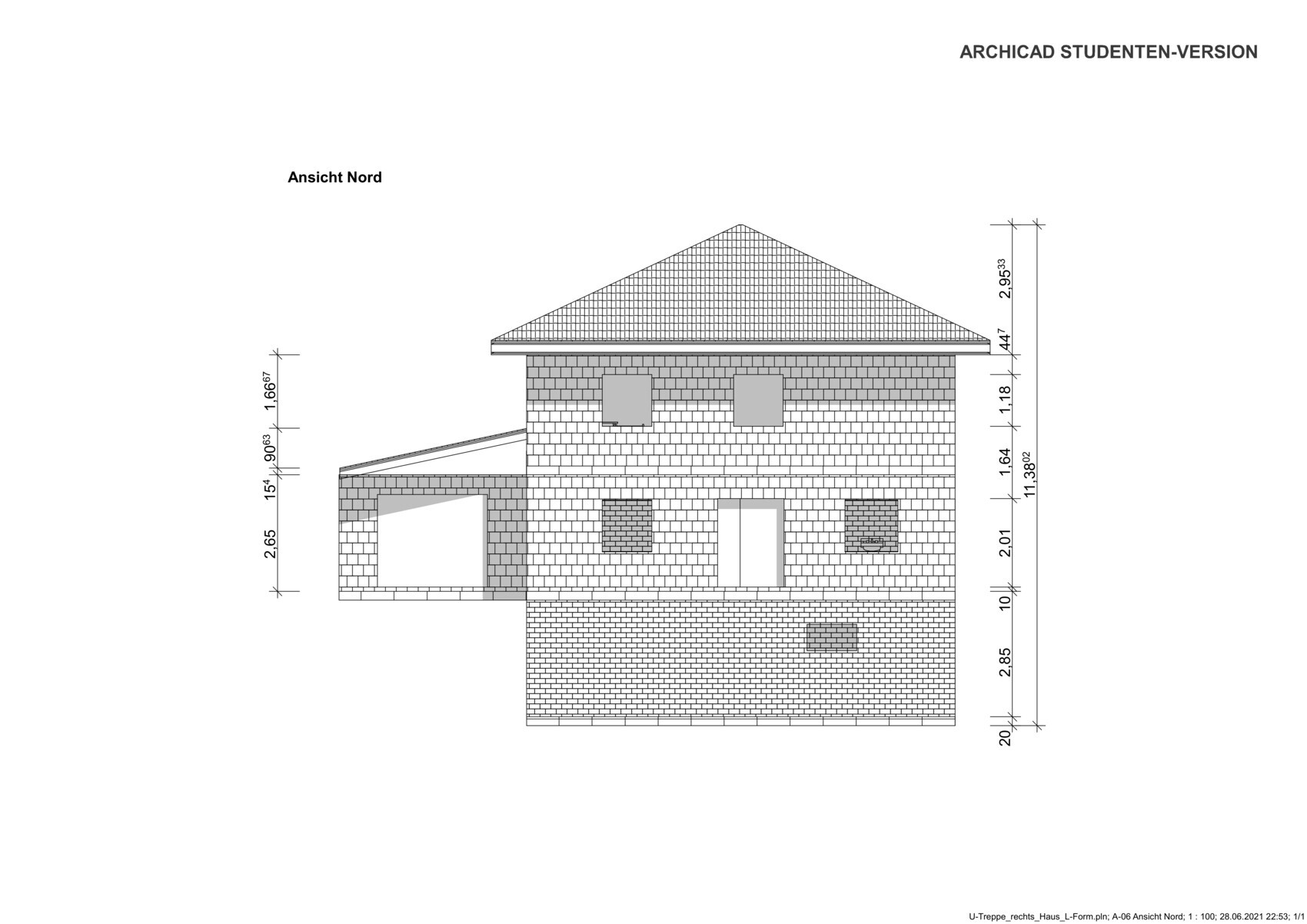
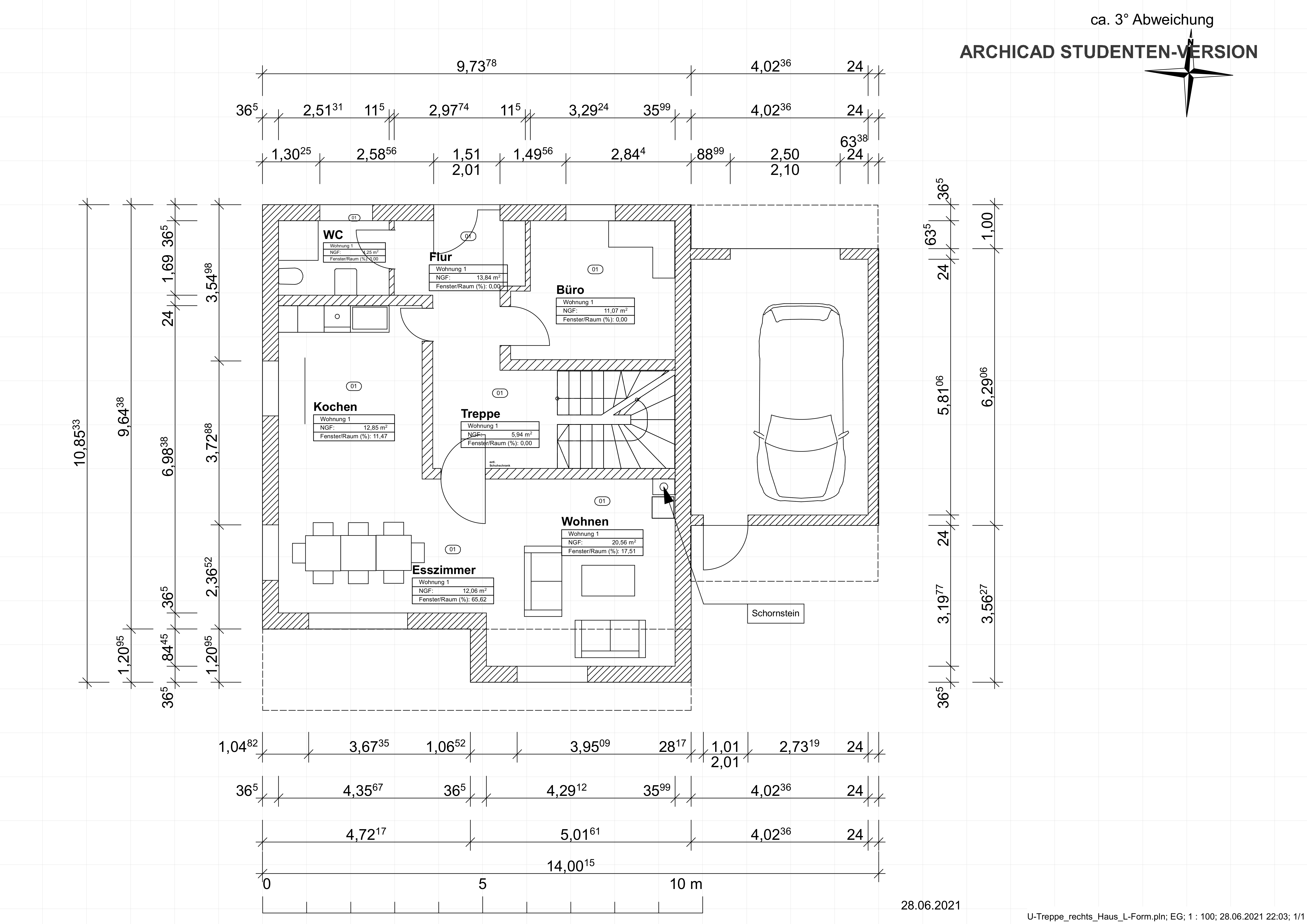
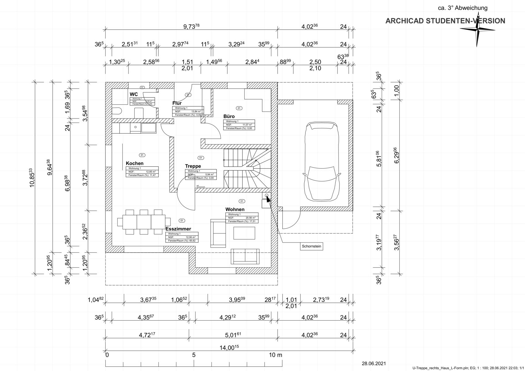
Stilrichtung, Dachform, Gebäudetyp: Einfamilienhaus, Toskana mit Walmdach in L-Form
Keller, Geschosse: Keller + zwei Vollgeschoss
Anzahl der Personen, Alter: 2x zwischen 30 – 35.
Raumbedarf im
offene oder geschlossene Architektur: Wohnbereich offen; die restlichen Räume geschlossen.
konservativ oder moderne Bauweise: Modern
offene Küche, Kochinsel: offene Küche mit L-Theke.
Anzahl Essplätze: min. 6
Kamin: Ja
Musik/Stereowand: Nein
Balkon, Dachterrasse: Nein
Garage, Carport: Garage
Nutzgarten, Treibhaus: Familiengarten
Hausentwurf
Von wem stammt die Planung:
-Do-it-Yourself
Was gefällt besonders? Warum?
Offene Bauweise, Wohnzimmer ist dennoch abgetrennt und könnte später mit einem Raumtrenner nochmal geteilt werden.
Was gefällt nicht? Warum?
-für Vorschläge offen.
Preisschätzung lt Architekt/Planer: Unbekannt.
Persönliches Preislimit fürs Haus, inkl Ausstattung: Haus mit Außenanlagen max. 500k
favorisierte Heiztechnik: keine Wahlmöglichkeit, Nahwärme wird vorgegeben.
Wenn Ihr verzichten müsst, auf welche Details/Ausbauten
-könnt Ihr verzichten: Büro im EG.
-könnt Ihr nicht verzichten: Keller
Was ist die wichtigste/grundlegende Frage zum Grundriss in 130 Zeichen zusammengefasst?










vielen Dank für eure Unterstützung und konstruktiven Vorschläge.
Fragenkatalog:
Bebauungsplan/Einschränkungen
Größe des Grundstücks: 540 qm, ca 28,4m x 18,7m
Hang: Nein
Baufenster, Baulinie und -grenze
Randbebauung: Nur Garage
Anzahl Stellplatz: 1 Stellplatz vor der Garage.
Geschossigkeit: 2
Dachform: Walmdach mit Neigung zwischen 15°- 30°
Stilrichtung: Einzelhaus
Ausrichtung: Süd
Maximale Höhen/Begrenzungen: 10m
weitere Vorgaben: Nahwärme
Anforderungen der Bauherren
Stilrichtung, Dachform, Gebäudetyp: Einfamilienhaus, Toskana mit Walmdach in L-Form
Keller, Geschosse: Keller + zwei Vollgeschoss
Anzahl der Personen, Alter: 2x zwischen 30 – 35.
Raumbedarf im
- EG: Wohnküche, Wohnzimmer etwas abgetrennt, Gäste-WC mit Dusche, Gastzimmer/Büro, Garderobe
- OG: 2 x Kinderzimmer, Elternzimmer mit Ankleide, Familienbad
- Büro: Homeoffice für 2-3x die Woche
offene oder geschlossene Architektur: Wohnbereich offen; die restlichen Räume geschlossen.
konservativ oder moderne Bauweise: Modern
offene Küche, Kochinsel: offene Küche mit L-Theke.
Anzahl Essplätze: min. 6
Kamin: Ja
Musik/Stereowand: Nein
Balkon, Dachterrasse: Nein
Garage, Carport: Garage
Nutzgarten, Treibhaus: Familiengarten
Hausentwurf
Von wem stammt die Planung:
-Do-it-Yourself
Was gefällt besonders? Warum?
Offene Bauweise, Wohnzimmer ist dennoch abgetrennt und könnte später mit einem Raumtrenner nochmal geteilt werden.
Was gefällt nicht? Warum?
-für Vorschläge offen.
Preisschätzung lt Architekt/Planer: Unbekannt.
Persönliches Preislimit fürs Haus, inkl Ausstattung: Haus mit Außenanlagen max. 500k
favorisierte Heiztechnik: keine Wahlmöglichkeit, Nahwärme wird vorgegeben.
Wenn Ihr verzichten müsst, auf welche Details/Ausbauten
-könnt Ihr verzichten: Büro im EG.
-könnt Ihr nicht verzichten: Keller
Was ist die wichtigste/grundlegende Frage zum Grundriss in 130 Zeichen zusammengefasst?
- Welche Optimierungsmaßnahmen können wir noch berücksichtigen?
- Wie könnten die Verkehrsflächen noch weiter reduziert werden?
saschhaa schrieb:
Hallo Zusammen,
vielen Dank für eure Unterstützung und konstruktiven Vorschläge.
Fragenkatalog:
Bebauungsplan/Einschränkungen
Größe des Grundstücks: 540 qm, ca 28,4m x 18,7m
Hang: Nein
Baufenster, Baulinie und -grenze
Randbebauung: Nur Garage
Anzahl Stellplatz: 1 Stellplatz vor der Garage.
Geschossigkeit: 2
Dachform: Walmdach mit Neigung zwischen 15°- 30°
Stilrichtung: Einzelhaus
Ausrichtung: Süd
Maximale Höhen/Begrenzungen: 10m
weitere Vorgaben: Nahwärme
Anforderungen der Bauherren
Stilrichtung, Dachform, Gebäudetyp: Einfamilienhaus, Toskana mit Walmdach in L-Form
Keller, Geschosse: Keller + zwei Vollgeschoss
Anzahl der Personen, Alter: 2x zwischen 30 – 35.
Raumbedarf im
- EG: Wohnküche, Wohnzimmer etwas abgetrennt, Gäste-WC mit Dusche, Gastzimmer/Büro, Garderobe
- OG: 2 x Kinderzimmer, Elternzimmer mit Ankleide, Familienbad
- Büro: Homeoffice für 2-3x die Woche
Schlafgäste pro Jahr: nur wenn jemand nicht Fahrtauglich ist.
offene oder geschlossene Architektur: Wohnbereich offen; die restlichen Räume geschlossen.
konservativ oder moderne Bauweise: Modern
offene Küche, Kochinsel: offene Küche mit L-Theke.
Anzahl Essplätze: min. 6
Kamin: Ja
Musik/Stereowand: Nein
Balkon, Dachterrasse: Nein
Garage, Carport: Garage
Nutzgarten, Treibhaus: Familiengarten
Hausentwurf
Von wem stammt die Planung:
-Do-it-Yourself
Was gefällt besonders? Warum?
Offene Bauweise, Wohnzimmer ist dennoch abgetrennt und könnte später mit einem Raumtrenner nochmal geteilt werden.
Was gefällt nicht? Warum?
-für Vorschläge offen.
Preisschätzung lt Architekt/Planer: Unbekannt.
Persönliches Preislimit fürs Haus, inkl Ausstattung: Haus mit Außenanlagen max. 500k
favorisierte Heiztechnik: keine Wahlmöglichkeit, Nahwärme wird vorgegeben.
Wenn Ihr verzichten müsst, auf welche Details/Ausbauten
-könnt Ihr verzichten: Büro im EG.
-könnt Ihr nicht verzichten: Keller
Was ist die wichtigste/grundlegende Frage zum Grundriss in 130 Zeichen zusammengefasst?
- Welche Optimierungsmaßnahmen können wir noch berücksichtigen?
- Wie könnten die Verkehrsflächen noch weiter reduziert werden?

Wir rechnen mal konservativ ohne viel Tamtam:
Hauskosten: 2.500 € x 155qm = 387.500 €
Keller: 80.000 €
Baunebenkosten: 50.000 € (Haus vom Bauträger oder eigenes? Falls vom Bauträger kommen paar 10.000 € Grunderwerbsteuer hinzu).
Außenanlagen für den Anfang: 25.000 €
Garage (falls in den 155 qm nicht enthalten): 25.000 € Minimum.
Gesamt: 567.500 €
Acof1978 schrieb:
Wir rechnen mal konservativ ohne viel Tamtam:
Hauskosten: 2.500 € x 155qm = 387.500 €
Keller: 80.000 €
Baunebenkosten: 50.000 € (Haus vom Bauträger oder eigenes? Falls vom Bauträger kommen paar 10.000 € Grunderwerbsteuer hinzu).
Außenanlagen für den Anfang: 25.000 €
Garage (falls in den 155 qm nicht enthalten): 25.000 € Minimum.
Gesamt: 567.500 €Hallo Acof,
du hast natürlich Recht das die Gesamtsumme etwas unbedacht angegeben wurde.
Bei weiterem Nachdenken hab ich festgestellt das ich die Wohnfläche falsch angegeben hab, weil die Fläche der Treppe mit einberechnet wurde. Diese ist 5,94qm pro Stockwerk. Bedeutet es ergibt sich nur eine Wohnfläche von ca. 143qm. Der erste Beitrag lässt sich leider nicht editieren.
Weiterhin ist die Eigenleistung nicht berücksichtigt die ich wie folgt ansetze. Für Feedback wäre ich sehr verbunden.
Erklärung:
- Wir wollen die Maler und Bodenarbeiten (Endfertigung) selbst ausführen.
- Als Elektroniker für Energie und Gebäudetechnik werde ich nur das Material benötigen, die sonstigen Arbeiten werden natürlich auf meinen Stundensatz umsonst erledigt.
- Bei der Garage und Außenanlagen werden wir uns auch sehr viel einbringen und wenn möglich zu 90% (Dachstuhl für Garage ausgenommen) auf Stundenlöhne von Handwerker verzichten.
Die Ersparnisse der Eigenleistung hab ich im Netz bei unterschiedlichen Webseiten raus gesucht.
Ich hab bisher im Netz angaben mit bis zu 2200€ pro qm gefunden, ist das nicht realistisch?
Dadurch ergibt sich mit der Berücksichtigung der 2200 €/qm Gesamtkosten von:
Für Feedback und Korrektur wäre ich wirklich dankbar.
Beste Grüße
Sascha
haydee schrieb:
Ist das Budget inkl. Baunebenkosten?
Für All-in wird es nicht reichen
Sind die Stellplätze so nach B'Plan oder Verordnung zulässig?
Zeichne einmal alle Möbel im Maßstaab ein.
Ankleide, Schlafzimmer mit Schlauch kostet viel Platz
Garderobe fehlt
nachher mehrHallo Haydee,
vielen danke für dein Feedback.
Ist das Budget inkl. Baunebenkosten?
Für All-in wird es nicht reichen
Zum Budget hab ich vorhin schon versucht es etwas mehr auszuführen siehe Beitrag https://www.hausbau-forum.de/threads/einfamilienhaus-in-l-form-mit-ca-155qm.39680/#post-507657. Falls du noch Anregungen oder Fehler siehst bitte unbedingt nochmal korrigieren.
Sind die Stellplätze so nach B'Plan oder Verordnung zulässig?
Ich hab bisher nichts gegenteiliges im Bauplan gefunden, wie sieht sowas aus?
Zeichne einmal alle Möbel im Maßstaab ein.
Muss es die nächsten Tage nochmal detaillierter Ausführen. Wir haben aber unsere Möbel bei den aktuellen abmaßen + Puffer in dem Haus gut gesehen.
Ankleide, Schlafzimmer mit Schlauch kostet viel Platz
Ja das stimmt, das wollte die bessere Hälfte. Kann man nur schwer ausschlagen. Und eine Reduzierung um die Fläche der Ankleide wird nicht wirklich viel bringen. Weil die Aufteilung der Zimmer und Haus dann nicht mehr umsetzbar ist.
Garderobe fehlt
Die Garderobe ist nur nicht einzeln ausgewiesen wäre im EG in mehreren Stellen möglich. Grün markiert.
Ähnliche Themen