ᐅ Bad-Grundriss 8,7qm, mit Dusche und Badewanne
Erstellt am: 03.01.23 15:57
Z
ZurGutenQuelle03.01.23 15:57Hallo zusammen,
ich hoffe es hat jemand eine super Idee zu unserer Grundrissplanung unseres Bads. Wir sanieren akutell unser Einfamilienhaus (Baujahr 1950; Keller,EG,OG) und finden die Gestaltung auf den 8,7 m² im OG schwierig. Im EG ist ein kleines WC geplant. Das Bad wird in den Rohbauzustand gebracht und dann neu aufgebaut (Putz ab, Boden raus). Es ist eine Fußbodenheizung (Bodenaufbau ca 9,5cm) geplant. Vorwandinstallation ist erwünscht. Wir wollen das Bad selbst machen. Fenster und Türpositionen können leider nicht verändert werden. Es ist wegen Sichtschutz kein Dachfenster geplant.
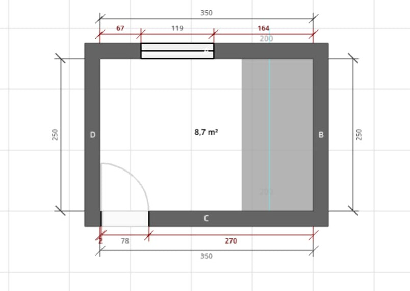
Raumgröße: 8,7 m²
Lage: OG
Kniestockhöhe: 1,22 m
Abstand 2m-Linie: 0,72 m
Raumhöhe: 2,40 m
West-Fenster Richtung Garten
Anforderungen der Bauherren
Personenanzahl: 4
1 Toilette
1 Badewanne mind. 1,70m lang oder Eckwanne wenn es reinpasst, Badewanne benutzen wir ca. 5-10x pro Jahr
1 Dusche, mind. 90 cm in eine Richtung, flache Duschtasse (Abfluss im Bodenaufbau), ebenerdig nicht nötig, einzige Dusche im Haus
1 waschbecken(*)
1 Handtuchhalter
1 Wäschekorb
1 Duschhandtuchhalter (evtl. Handtuchheizkörper)
1 Mülleimer
Stauraum für Handtücher etc.
1 spiegelschrank
1 Fußbodenheizung Heizkreisverteiler (6 Heizkreise)
Die Zuleitungen (Fußbodenheizung, Warm & Kaltwasser) kommen an der Wand D aus dem Boden (Ecke zu Wand A), dort hatten wir auch den Heizkreisverteiler eingeplant. Der Abfluss soll durch Wand B (Ecke zu Wand A) in den Drembel und dann in das darunterliegende WC geführt werden.
Entwurf
Von wem stammt die Planung:
-Do-it-Yourself
Was gefällt besonders? Warum?
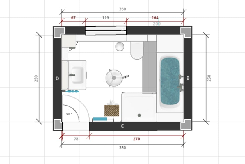
Was gefällt nicht? Die Dusche ist sehr schwierig zu platzieren, da sie wegen Tür, Fenster und den Dachschrägen in keine Ecke passt. Da wir ca. 1,82cm groß sind und das unsere einzige Dusche werden soll, ist die Platzierung unter der Dachschräge keine gute Lösung. Die Dusche hätte in unseren aktuellen Entwürfen viel Glasfläche zum abziehen.
Wenn Ihr verzichten müsst, auf welche Details/Ausbauten
-könnt Ihr verzichten: Regendusche, ebenerdige Dusche
-könnt Ihr nicht verzichten:
Warum ist der Entwurf so geworden, wie er jetzt ist? ZB
Ausschlussverfahren bei der Platzierung der Badmöbel. ZB. keine Badewanne vor das Fenster.
Was ist die wichtigste/grundlegende Frage zum Grundriss in 130 Zeichen zusammengefasst?
Habt ihr bessere Vorschläge für die Anordnung der Badmöbel und Aufbau der Vorwandinstallationen.
Viele Grüße



ich hoffe es hat jemand eine super Idee zu unserer Grundrissplanung unseres Bads. Wir sanieren akutell unser Einfamilienhaus (Baujahr 1950; Keller,EG,OG) und finden die Gestaltung auf den 8,7 m² im OG schwierig. Im EG ist ein kleines WC geplant. Das Bad wird in den Rohbauzustand gebracht und dann neu aufgebaut (Putz ab, Boden raus). Es ist eine Fußbodenheizung (Bodenaufbau ca 9,5cm) geplant. Vorwandinstallation ist erwünscht. Wir wollen das Bad selbst machen. Fenster und Türpositionen können leider nicht verändert werden. Es ist wegen Sichtschutz kein Dachfenster geplant.
Raumgröße: 8,7 m²
Lage: OG
Kniestockhöhe: 1,22 m
Abstand 2m-Linie: 0,72 m
Raumhöhe: 2,40 m
West-Fenster Richtung Garten
Anforderungen der Bauherren
Personenanzahl: 4
1 Toilette
1 Badewanne mind. 1,70m lang oder Eckwanne wenn es reinpasst, Badewanne benutzen wir ca. 5-10x pro Jahr
1 Dusche, mind. 90 cm in eine Richtung, flache Duschtasse (Abfluss im Bodenaufbau), ebenerdig nicht nötig, einzige Dusche im Haus
1 waschbecken(*)
1 Handtuchhalter
1 Wäschekorb
1 Duschhandtuchhalter (evtl. Handtuchheizkörper)
1 Mülleimer
Stauraum für Handtücher etc.
1 spiegelschrank
1 Fußbodenheizung Heizkreisverteiler (6 Heizkreise)
Die Zuleitungen (Fußbodenheizung, Warm & Kaltwasser) kommen an der Wand D aus dem Boden (Ecke zu Wand A), dort hatten wir auch den Heizkreisverteiler eingeplant. Der Abfluss soll durch Wand B (Ecke zu Wand A) in den Drembel und dann in das darunterliegende WC geführt werden.
Entwurf
Von wem stammt die Planung:
-Do-it-Yourself
Was gefällt besonders? Warum?
Was gefällt nicht? Die Dusche ist sehr schwierig zu platzieren, da sie wegen Tür, Fenster und den Dachschrägen in keine Ecke passt. Da wir ca. 1,82cm groß sind und das unsere einzige Dusche werden soll, ist die Platzierung unter der Dachschräge keine gute Lösung. Die Dusche hätte in unseren aktuellen Entwürfen viel Glasfläche zum abziehen.
Wenn Ihr verzichten müsst, auf welche Details/Ausbauten
-könnt Ihr verzichten: Regendusche, ebenerdige Dusche
-könnt Ihr nicht verzichten:
Warum ist der Entwurf so geworden, wie er jetzt ist? ZB
Ausschlussverfahren bei der Platzierung der Badmöbel. ZB. keine Badewanne vor das Fenster.
Was ist die wichtigste/grundlegende Frage zum Grundriss in 130 Zeichen zusammengefasst?
Habt ihr bessere Vorschläge für die Anordnung der Badmöbel und Aufbau der Vorwandinstallationen.
Viele Grüße
Erst einmal ein Like für Deine vielen Zeilen und Informationen.
Das ist fast eine Vorlage für viele, die da etwas nachlässig sind.
gibt es noch ein weiteres Bad im Haus? Zumindest Toi und Waschbecken?
Wo ist das Fallrohr vom Abfluss?
Das ist fast eine Vorlage für viele, die da etwas nachlässig sind.
ZurGutenQuelle schrieb:2 Fragen:
einzige Dusche im Haus
1 Waschbecken
gibt es noch ein weiteres Bad im Haus? Zumindest Toi und Waschbecken?
Wo ist das Fallrohr vom Abfluss?
Ansonsten finde ich Deine Wünsche schon etwas ambitioniert, die Wanne mit Mindestmaß für 5-10 Mal Benutzung, dann darf sie nicht unters Fenster, Handtuchheizkörper...
Der Heizkreisverteiler kann ja auch nicht überall mal angebracht werden. Aber das lese ich jetzt erst, dass er planlinks kommen soll.
Wenn gewisse Dinge unbedingt sein müssen, sollte man zumindest keine Stehfläche für so einen Firlefanz nutzen. Was nutzt so etwas, wenn man ständig daran anstößt?
Naja, das waren jetzt Denkanstöße von mir. Ich persönlich würde dann in der Wanne duschen 🙂
Ich mache einen Vorschlag zu einer eher etwas weicheren und ergonomischen Linienführung, damit das Bad nicht zu vollgestellt wirkt.
Toi zum Abfluss, Wanne mit 90 x 160 darf dann etwas tiefer sein, Dusche luftig ohne Wand.
Verteiler wandert in die durchgehende Vorwand, asymetrischer Waschtisch (habe leider nur ein hartes Dreieck), Schränke unterm Fenster. das hast Du auch so gedacht, oder?

Der Heizkreisverteiler kann ja auch nicht überall mal angebracht werden. Aber das lese ich jetzt erst, dass er planlinks kommen soll.
ZurGutenQuelle schrieb:Bei der ganzen Aufzählung und guter Liebe: bei 4 Personen würde ich eher auf wenigstens etwas mehr Bewegungsfreiheit gehen als auf die Notwendigkeit für einen Wäschekorb, der ja auch woanders gut stehen könnte. Auch Handtücher könnten notfalls auf einem Brett über der Tür oder im Kleiderschrank untergebracht werden.
Personenanzahl: 4
1 Toilette
1 Badewanne mind. 1,70m lang oder Eckwanne wenn es reinpasst, Badewanne benutzen wir ca. 5-10x pro Jahr
1 Dusche, mind. 90 cm in eine Richtung, flache Duschtasse (Abfluss im Bodenaufbau), ebenerdig nicht nötig, einzige Dusche im Haus
1 Waschbecken
1 Handtuchhalter
1 Wäschekorb
1 Duschhandtuchhalter (evtl. Handtuchheizkörper)
1 Mülleimer
Stauraum für Handtücher etc.
1 Spiegelschrank
1 Fußbodenheizung Heizkreisverteiler (6 Heizkreise)
Wenn gewisse Dinge unbedingt sein müssen, sollte man zumindest keine Stehfläche für so einen Firlefanz nutzen. Was nutzt so etwas, wenn man ständig daran anstößt?
Naja, das waren jetzt Denkanstöße von mir. Ich persönlich würde dann in der Wanne duschen 🙂
Ich mache einen Vorschlag zu einer eher etwas weicheren und ergonomischen Linienführung, damit das Bad nicht zu vollgestellt wirkt.
Toi zum Abfluss, Wanne mit 90 x 160 darf dann etwas tiefer sein, Dusche luftig ohne Wand.
Verteiler wandert in die durchgehende Vorwand, asymetrischer Waschtisch (habe leider nur ein hartes Dreieck), Schränke unterm Fenster. das hast Du auch so gedacht, oder?
M
Myrna_Loy03.01.23 20:34Myrna_Loy schrieb:
Wie wäre es denn mit sowas?
Eine Vorbauwand bei den 2 m Linie und den Raum oberhalb der Toilette und des Waschbeckens für Einbauschränke nutzen?Ich finde das eigentlich ganz schön, allerdings wird es mit der Toi und WT sehr eng werden.M
Myrna_Loy03.01.23 21:18ypg schrieb:
Ich finde das eigentlich ganz schön, allerdings wird es mit der Toi und WT sehr eng werden.Man könnte den Waschtisch auch um 90 Grad drehen und könnte dann sogar einen 2 m hohen Wanschrank zwischen Toilette und Waschtisch einbauen.Ähnliche Themen