M
Murmele30528.01.25 23:08Liebe Community,
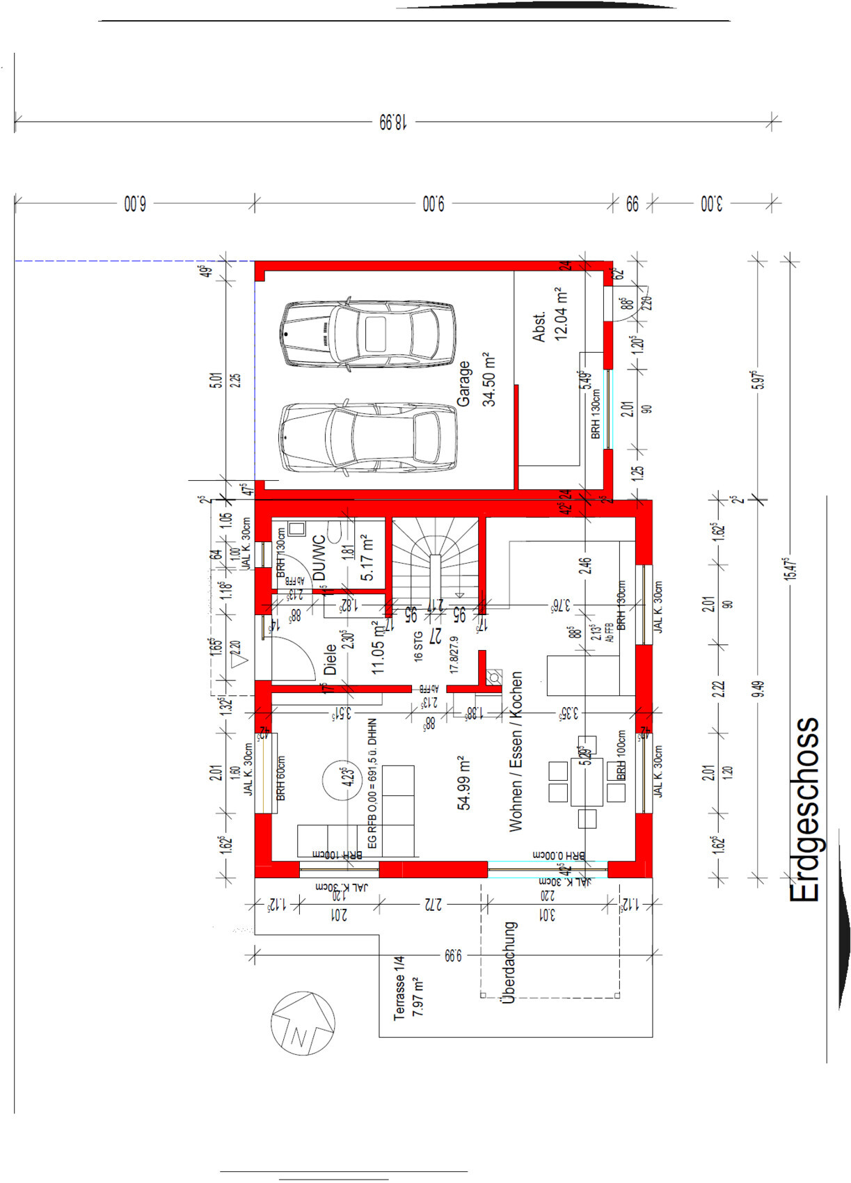
wir sind Besitzer eines Grundstückes und möchten ein Einfamilienhaus darauf bauen lassen. Wir haben einen Architekten der uns die Planung erstellt hat. Soweit sind wir damit auch einverstanden. Nur wir denken es würde noch besser gehen. Vielleicht hat der ein oder andere hilfreiche Ideen oder sieht auch andere Gestaltungsmöglichkeiten. Wir sind für alle Vorschläge offen und freuen uns auf eure Kommentare.
Zu unseren Daten:
Bebauungsplan/Einschränkungen
Vorgaben:
Das Grundstück beträgt 427qm
Satteldach oder Flachdach. Flachdach nur mit Begrünung.
Mindestens 2 Vollgeschosse, Farbe Dachziegel, Baufenster, Anzahl der Abstellplätze..usw sind vorgeschrieben.
Anforderungen Bauherren:
Hausentwurf:
Planung durch einen Architekten
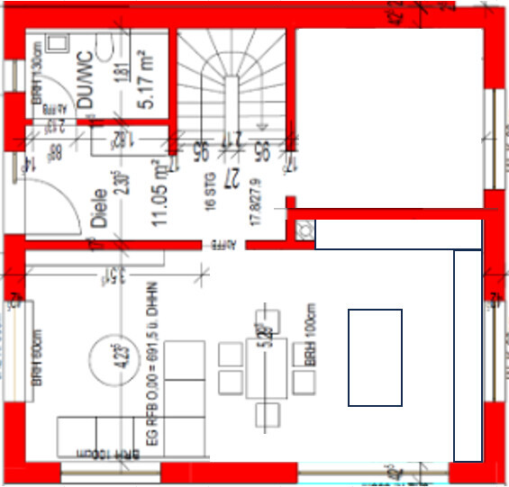
Beim Sitzfenster im EG sind wir uns nicht sicher ob dieses sinnvoll ist und auch genutzt wird.
Im Plan sind zwei Kinderzimmer eingeplant, die Überlegung wäre doch noch ein Büro in den Grundriss einzubauen.
Das Bad im OG könnte gerne größer sein, allerdings sind wir mit der aktuellen Größe auch zufrieden. Es sollte definitiv nicht kleiner sein. Außerdem hätten wir gerne vom Bad noch eine zusätzliche Lichtquelle am Besten eine Türe, sodass wir die Möglichkeit haben auf unser Garagendach zu kommen.




wir sind Besitzer eines Grundstückes und möchten ein Einfamilienhaus darauf bauen lassen. Wir haben einen Architekten der uns die Planung erstellt hat. Soweit sind wir damit auch einverstanden. Nur wir denken es würde noch besser gehen. Vielleicht hat der ein oder andere hilfreiche Ideen oder sieht auch andere Gestaltungsmöglichkeiten. Wir sind für alle Vorschläge offen und freuen uns auf eure Kommentare.
Zu unseren Daten:
Bebauungsplan/Einschränkungen
Vorgaben:
Das Grundstück beträgt 427qm
Satteldach oder Flachdach. Flachdach nur mit Begrünung.
Mindestens 2 Vollgeschosse, Farbe Dachziegel, Baufenster, Anzahl der Abstellplätze..usw sind vorgeschrieben.
Anforderungen Bauherren:
- 3 Vollgeschosse (Keller, EG, OG)
- Satteldach, offener Dachstuhl
- Effizienzhaus 40 Plus
- Mit Kamin im EG
- Wohnfläche max. 145qm
- offenes Raumkonzept im EG Wohnzimmer und Küche
- Doppelgarage
- ausgebauter Keller: Hobbyraum evtl. mit Kinoraum.
- Waschküche im Technikraum
- Im OG zwei Kinderzimmer
- Im EG Dusch-WC
- Im OG Bad (mit Wanne ,Dusche, Toilette)
- Heiztechnik Wärmepumpe, Fußbodenheizung
Hausentwurf:
Planung durch einen Architekten
Beim Sitzfenster im EG sind wir uns nicht sicher ob dieses sinnvoll ist und auch genutzt wird.
Im Plan sind zwei Kinderzimmer eingeplant, die Überlegung wäre doch noch ein Büro in den Grundriss einzubauen.
Das Bad im OG könnte gerne größer sein, allerdings sind wir mit der aktuellen Größe auch zufrieden. Es sollte definitiv nicht kleiner sein. Außerdem hätten wir gerne vom Bad noch eine zusätzliche Lichtquelle am Besten eine Türe, sodass wir die Möglichkeit haben auf unser Garagendach zu kommen.
W
wiltshire28.01.25 23:29Murmele305 schrieb:
Nur wir denken es würde noch besser gehen.Der Hausentwurf ist sehr klar und bis auf die Fläche zwischen Essbereich und Wohnbereich bei der vorgeschlagenen Einrichtung auch raumökonomisch. Bir gefällt das ziemlich gut. Was genau soll denn "besser" sein?Murmele305 schrieb:
Vielleicht hat der ein oder andere hilfreiche Ideen oder sieht auch andere Gestaltungsmöglichkeiten.Der Entwurf enthält nichts, was man als "Fehler" bezeichnen würde. Daher kommt es auf den Abgleich der Archietektur mit Euren Lebensprioritäten an. Je nach dem wo die Schlagseite ist, kann der Überstand von Garage zur Haustüre zu schmal sein um vor Regen zu schützen. Als Designelement funktioniert das wie eingezeichnet ganz gut.
Murmele305 schrieb:
Beim Sitzfenster im EG sind wir uns nicht sicher ob dieses sinnvoll ist und auch genutzt wird.Bei der eingezeichneten Anordnung der möbel ist das Sitzfenster eine nette und platzsparende Gelegenheit mit vielen Personen dort zu sitzen. Allerdings finde ich Sofalandschaften mit Rücklehne zum Fenster selten gut - aber das ist ja Geschmackssache.Murmele305 schrieb:
Im Plan sind zwei Kinderzimmer eingeplant, die Überlegung wäre doch noch ein Büro in den Grundriss einzubauen.Mit einem zusätzlichen Büro wird es im OG zu eng. Wenn ein Büro Teil der Anforderung des Briefings ist, dann taugt der gesamte Entwurf nicht.Murmele305 schrieb:
Außerdem hätten wir gerne vom Bad noch eine zusätzliche Lichtquelle am Besten eine Türe, sodass wir die Möglichkeit haben auf unser Garagendach zu kommen.Eine Tür zum Garagendach passt, wenn sie nach außen öffnet zwischen die Badewanne und die Toilette. Ob sich dadurch eine ungünstige Sichtachse ergibt kann ich nicht sagen, da ich nicht weiß was so um das Haus herum ist. Manchmal mögen Bauämter begehbare Garagendächer nicht und fangen dann an mit Auflagen zur Absturzsicherung daher zu kommen. Manchmal ist das auch einfach nicht gestattet.Murmele305 schrieb:
Nur wir denken es würde noch besser gehen.Da gehe ich mit. Was sollen im Keller die drei Säulen unter der Garage?https://www.instagram.com/11antgmxde/
https://www.linkedin.com/company/bauen-jetzt/
Ich würde ebenso den Abgleich mit meiner (zumindest vorstellbaren) künftigen Realität durchführen. Eine Aussage, ob "Mehr" geht kann man nicht treffen, da man ein "Mehr" an irgendetwas ein Weniger für Jemanden bedeuten könnte. Dinge, die Andere haben mögen Euch vlt. gar nicht (so) gefallen, dagegen tut er lieber dies oder das.
Murmele305 schrieb:Wir hatten das Thema zuletzt hier, allerdings in einem anderen Kontext. Zunächst würde ich die Brüstungshöhe mit 60cm dafür, als zu hoch betrachten und wohl eher auf etwa 40cm gehen. Wir haben es ähnlich hier haben aber lediglich eine 30cm tiefe Fensterbank verbaut. Darauf kann man sich mal kurz setzen (was von uns Niemand tut) aber man kann schön rausschauen aus dem großen Fenster. Ich würde bei Dir also erstmal klären, wo und wie meine Möbel wirklich stehen und generell ALLE Möbel mit ECHTEN Maßen in den Plan einzeichnen, sonst ist die Aussagekraft Deines Planes begrenzt. Wie ja @wiltshire schon sagt ist die eingezeichnete Sofaposition bescheiden; habt ihr wirklich genau diese Sofaform und - Größe? Was sieht man, wenn man aus dem Fenster schaut, wollr ihr dort außen etwas gestalten? Seid ihr TV-Junkies oder sitzt ihr dort eher in einer Ruhezone mit schönem Blick mit Musik oder zum Lesen, dann nämlich kann das tiefe Fenster dort ganz nett sein. Dieses aber ragt aktuell recht weit in den Raum und nimmt Dir dort Raum, was ich nicht haben wollte. Bei uns z.B. sitzen die Fenster bündig mit der Außenwand, d.h. dass die "30er-Sitzbank" komplett in der Fensterlaibung verschwindet. Das finde ich schön, ob sich Jmd. al draufsetzt ist egal und es stört nicht im Raum. Es ist einfach nur eine breite und tiefe Fensterbank ais schönem Holz, nenne es Teilsitzfennster oder wie auch immer und kostet deswegen auch nicht mehr als die anderen Fensterbänke auch. Deine Zeichnung stimmt so nicht genau, miss mal die Sitzfläche nach, da fehlen aktuell einige Zentimeter, die dann in den Raum ragen.
Beim Sitzfenster im EG sind wir uns nicht sicher ob dieses sinnvoll ist und auch genutzt wird.
H
hanghaus202329.01.25 10:10Ähnliche Themen