Hausbau - Ratgeber
Bauherrenhilfe
- Bauherrenhilfe vor Vertragsabschluss
-- Warum einen unabhängigen Baubetreuer?
-- Vertragsgrundlagen
-- Bausumme
-- Zahlungsplan zur Kostenkontrolle
-- Pflichten des Bauherren vor Vertragsabschluss
-- Unterlagen beim Hausbau vor Vertragsabschluss
- Bauherrenhilfe nach Vertragsabschluss
-- Bauantrag bei Behörden
-- Bau-Genehmigungsverfahren bei Baubehörden
-- Bauspezifische Versicherungen
-- Bauzeitenplan
-- Baubeginn - die Letzten Pflichten der Bauherrschaft
- Bauherrenhilfe während der Bauzeit
- Gewährleistungsansprüche
- Bauabnahme
Baufinanzierung
- Baufinanzierung - Allgemeine Fragen
- Kreditarten
- Kredit-Konditionen
- Bausparen
- Staatliche Förderungen
- Verkehrswert
- Haushaltsrechnung und Bonität
Hausbau Planung
- Haustypen
- Hausbau Vorbereitungsarbeiten
- Das Baugrundstück
- Baugrund beim Hausbau
- Baurecht
- Gebäudeschutz
- Erdarbeiten und Wasserhaltung
- Stützmauern
- Einfriedung
- Untergeschoss
- Kanalisation
- Tragende Elemente
- Nichttragende Innenwände
- Fundation / Fundament
- Deckenkonstruktionen
- Dächer
- Kaminanlagen
- Treppen Rampen Leitern
- Dachbeläge und Spengler
- Fenster
- Sonnen und Wetterschutz
- Aussenputze
- Einbauten, Küchen, Türen
- Bodenbeläge und Unterlagsböden
- Parkett
- Gips, Wand, Decke
Haustechnik und Energie
- Heiztechnik
- Lüftung und Klimatechnik
- Sanitärtechnik
- Elektrotechnik
- Erneuerbare Energie
Whirlpools / Jacuzzi
Hausbau Magazin
- Baufinanzierung trotz Krise?
- Das Blockhaus
- Moderne Dämmstoffe im Vergleich
- Erker Vor- und Nachteile
- Glasflächen beim Hausbau
- Günstig ein Haus Bauen
- Mediterraner Hausbaustil
- Mehrgenerationenhaus
- Moderne Architektur
- Gartengestaltung leicht gemacht
- Traditioneller Ziegelbau
- Villa als höchster Traum
- Im Eigenheim Ruhestand geniessen
- Altbau sanieren
- Kauf einer Holzgarage
- Immobilienmakler
- Arbeitshandschuhe für den Winter
- Zuhause verschönern
- Outdoor-Plissees
- Schlafzimmer planen
- Terrassenüberdachung
- Wohngebäudeversicherung
- Zaunarten und Eigenschaften
- Hauseingang gestalten
- Der perfekte Grundriss
- Sparsamer heizen im Altbau
- Einfamilienhaus smart finanzieren
- Planung einer PV-Anlage
- Neues Haus
- Immobilienfinanzierung
- Installation einer Photovoltaikanlage
- Asbest erkennen und entfernen
- Gartenpflege im Frühling – worauf achten
- Sauna im Fokus - Wellness zuhause
- Erfolgreich vermieten
- Die perfekte Winterbekleidung
- Das Niedrigenergiehaus
- Der April und seine Stürme
- Architektonische Vielfalt
- Ökologisch und nachhaltig bauen
- Das perfekte Schlafzimmer
- Nachhaltige Energieversorgung
- Zukunftsorientiert bauen
- Nachhaltigkeit beim Hausbau
- Tiny Houses
- Wärmepumpen als nachhaltige Heizvariante
- Maßgeschneiderten Kleiderschrank
- Der richtige Baukredit
- Ratgeber für erfolgreichen Hausbau
- Haus als Altersvorsorge
Do-it-yourself Anleitungen
- Verlegeanleitung für Bodenbeläge und Parkett
- Bodenbeläge und Parkett reinigen und pflegen
- Malerarbeiten am Haus
- Garten Tipps
- Umzug und Reinigung

ᐅ Grundriss Einfamilienhaus - Anregungen/Tipps/Erfahrungen?

Erstellt am: 01.03.18 23:19
N
Namrontor
N
Namrontor
01.03.18 23:19
Hallo zusammen,

ich freue mich über Anregungen und Tipps jeglicher Art:

Bebauungsplan/Einschränkungen
Größe des Grundstücks - 1030 m2
Hang - nein
Grundflächenzahl - 150 m2
Anzahl Stellplatz 2
Geschossigkeit - 1 Vollgeschoss zulässig
Dachform
Stilrichtung
Ausrichtung
Maximale Höhen/Begrenzungen
weitere Vorgaben

Anforderungen der Bauherren
Stilrichtung, Dachform, Gebäudetyp - Krüppelwalmdach, Massivhaus
Keller, Geschosse - kein Keller, 1,5 Geschosse
Anzahl der Personen, Alter - 2 Erwachsene , 2 Kinder
offene Küche - ja
Kochinsel - nein

Hausentwurf
Von wem stammt die Planung:
-Architekt
favorisierte Heiztechnik: Erdwärmepumpe

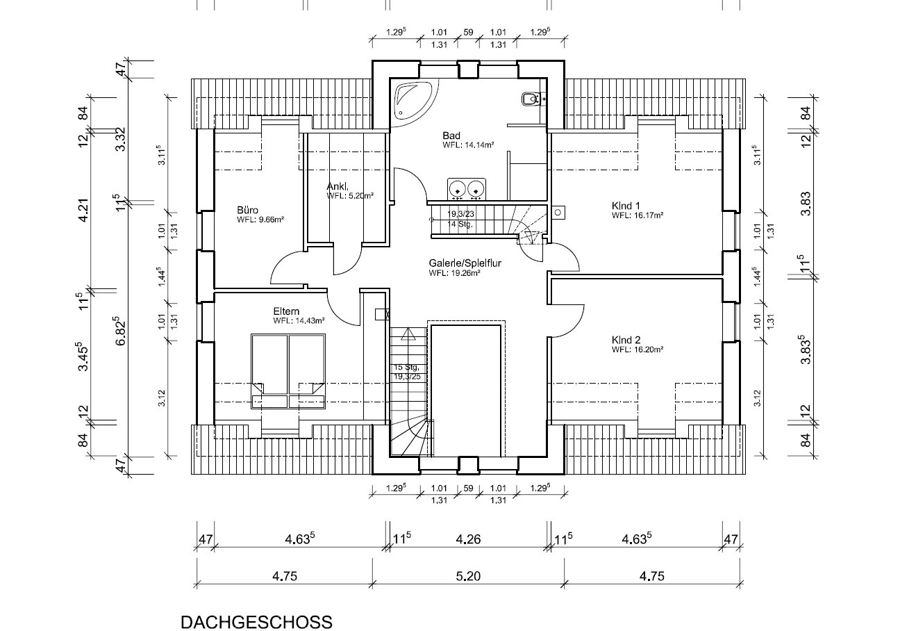
Dachgeschoss Grundrissplan mit Elternzimmer, Kind 1, Bad, Büro und Treppen


Grundrissplan Erdgeschoss eines Hauses mit Küche, Esszimmer, Wohnzimmer, Flur, Bad und Schlafzimmer
Frederick7601.03.18 23:38
Hallo Namrontor,
ohne Angaben dazu was eure Wünsche zu dem Entwurf sind und Außenansichten fällt es schwer da eine Kritik zu Äußern; ich versuchmich trotzdem einmal auf die schnelle:

EG
Viele verwinkelte Räume für Stauraum,
Technikraum mit 3 qm geht sich niemals aus.
Treppenaufgang direkt an Haustür finde ich unglücklich
Diele und Flure nehmen viel Platz ein.

OG
auch hier wieder viel Flurfläche
Ankleide nicht wirklich nutzbar
Eckbadewanne zu klein
Wie das Fenster oberhalb der Treppe putzen?

btw, Wo ist Norden?

Viel Glück,
Fred
kaho67402.03.18 08:15
Wow, endlich mal wer mit Geld. 😉
Nein, im Verhältnis zum Haus sind die Flure wunderbar großzügig - wir sind ja hier nicht im Minihaus, wo man überall sparen muss. Ich find es auf jeden Fall super.
Kritik hab ich aber auch im Gepäck:
- diese Technik-Abtrennung ist Murks und gehört gestrichen. Sobald das erledigt ist, kann der lange schmale Flur erheblich gekürzt werden und die Türen nach planrechts verschoben werden.
- Die Treppe würde ich vermutlich auch versuchen, weiter vom Eingang weg zu schieben. Zudem könnte sie sich - wie in großen Villen üblich - majesthetisch um den Deckenausschnitt winden. Fände ich sehr passend.
- Das würde auch gleich meinen letzten Kritikpunkt lösen: Die Eingangstür scheint mir zu schmal, wenn sie tatsächlich Doppelflügelig wird. Letzenendes öffnet man doch erstmal eine Seite. Die sollte möglichst 1m breit sein. Ist die Treppe aus dem Weg, ist auch Platz dafür + zusätzlichem Doppelflügel. 🙂
N
Namrontor
04.03.18 10:32
Vielen Dank schon mal für die konstruktiven Rückmeldungen, ich werde mal auf einige Punkte eingehen:

Norden ist zur Eingangstür , sprich Ess/Wohn/Küchenbereich haben Südwest-Ausrichtung.
Ich kann eure Kritik zu dem Hauswirtschaftsraum/Technikraum absolut teilen - damit bin ich auch noch nicht so recht zufrieden. Die Idee, den Flur zu verkleinern bzw den kleinen Gang komplett zu streichen sehr gut, dadurch wird der Raum größer und der Technikbereich auch (3 m2 scheint tatsächlich zu klein - gerade für ne Erdwärmepumpe).
Die Treppe finde ich gut so am Eingangsbereich, stört mich nicht bzw. finde es gut das "Treppenhaus" auch im Eingangsbereich zu haben, und da es sowieso nach oben hin offen ist, wirkt es trotzdem großzügig bzw nicht gequetscht.
Guter Punkt mit der Eingangstür kaho674: Entweder wird es eine einzelne Tür mit Seitenfenster oder eine Variante mit einer großen Tür und einer kleinen, für einen gleichgrößen Doppelflügel ist tatsächlich zu wenig Platz.
Wie das Fenster oberhalb der Treppe putzen? -> Fensterputzer 😉
Ankleide nicht nutzbar mit 5,2 m2?-> Hm weiß nicht, reicht denke ich aus, soll mehr ein zusätzlicher Schrankbreich sein, nicht ein richtiger Raum wie bei den Hollywood-Stars mit 2000 Paar Schuhen 🙂
Zum Thema Stauraum: Eine Doppelgarage mit Spitzboden kommt auch noch dazu, allerdings nicht direkt ans Haus, von daher ist noch etwas Stellfläche vorhanden.
Vielen Dank schon mal bis hier hin, wenn weitere Sachen auffallen, unklar sind, bitte her damit!
M
Maria16
04.03.18 11:45
Wow, großes Haus!

Wenn ihr die Garage nicht direkt ans Haus anschließt, warum gibt es dann eine Tür aus dem Hauswirtschaftsraum ins Freie?

Bei der Treppe geht es den meisten eher drum, sie aus dem Schmutzbereich bei der Haustür wegzubringen. Sonst läuft man immer durch den Dreck durch, auch barfuß oder in Strümpfen...
Dazu passt auch meine Frage, wo ihr eure Schuhe stellen wollt. Bleiben die, die grad in Gebrauch sind, immer im Eingangsbereich stehen? Oder setzt ihr auf viel Disziplin und zieht sie an der Tür aus, um sie zum Garderobenschrank 4 m weiter zu tragen?

5 qm Ankleide sagen erst mal gar nichts - entscheidend ist, wie breit der Raum ist/ wie er möbliert werden soll. Willst du z. B. auf beiden Seiten einen Schiebetürenschrank (ca. 65-70 cm tief) reinstellen und es bliebe dazwischen auch nur noch ein Gang von 70 cm Breite, wäre es ungünstig. ;-) Auch die Breite der Tür sollte man beachten. Am Schluss könnt ihr an einer Wand nicht bis an die Tür ran möblieren, weil ja auch noch irgendwo ein Lichtschalter Platz haben sollte...

Edit: gerade noch gesehen: das Wohnzimmer ist nicht möbliert. Das wäre aber durchaus interessant, wie die Couch stehen soll und wo dann der TV Platz hat.
M
munger71
04.03.18 12:34
Das Bad om OG ist genau über dem Essplatz. Die Leitungen und Abwasserleitungen dafür wandern durchs ganze Haus. Ich würde versuchen die Bäder übereinander zu planen und den Raum im Süden als echten Nutzraum (Büro, Kinderzimmer) auszuplanen.
haustürtreppeflureankleideeingangstüreingangsbereichdachformkellergeschosseerdwärmepumpe