ᐅ Grundriss: Einfamilienhaus 5,60 x 15,80m Habt ihr Ideen
Erstellt am: 02.05.20 13:48
S
simonmarkus197S
simonmarkus19702.05.20 13:48Hallo Zusammen,
hier noch mal meine Frage an Euch .
Wir haben nun endlich ein Grundstück zum Bau eines Einfamilienhaus in Aussicht. Das Ganze wird über einen Bauträger verkauft.
Da die Häuser rechts und links stehen bleiben, müssen wir die vorgeschriebenen Abstände von 3m einhalten.
Ich habe noch keine Vorstellung ob mir das Haus am Ende ggf. einfach zu schmal ist. Leider gibt es auch nicht viele Musterhäuser mit diesen geringen Abmessungen.
Gerne nehme ich Tipps und Verbesserungsvorschläge an.
Bebauungsplan/Einschränkungen
Größe des Grundstücks: 425m²
Hang: nein
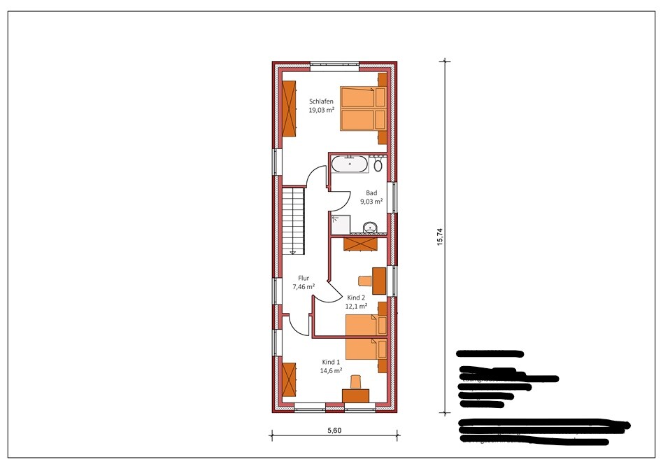
Baufenster: 3m zur Straße, 15,60 m Hauslänge und 5,60 m Breite fürs Haus und zuzätzlich links 3m Breite für Garage.
Anzahl Stellplatz: 1 vor Garage
Geschossigkeit: Max. 2 Vollgeschosse
Dachform: Satteldach 25-45grad
Stilrichtung: beliebig
Ausrichtung: Süd-West
Maximale Höhen/Begrenzungen: Firsthöhe 9m Wandhöhe Max. 4,70m
Anforderungen der Bauherren
Keller, Geschosse: kein Keller, fast 2 Vollgeschosse (
Anzahl der Personen, Alter: 2 Personen
Raumbedarf im EG und OG: 110 - 130m²
Im OG 3 Schlafzimmer (1 Schlafzimmer wird als Büro genutzt)
Schlafgäste pro Jahr: Erwachsene Kinder
offene oder geschlossene Architektur: offenes Raumkonzept (offene Küche)
Garage, Carport: Garage
Hausentwurf
Von wem stammt die Planung: erster Entwurf vom Bauträger
Was gefällt nicht? Warum?
Wir wollten unbedingt ein offenes Raumkonzept, da unser Alltag sich eigentlich im Sommer im Garten und ansonsten im Wohnzimmer bzw. Küche abspielt.
Was ist die wichtigste/grundlegende Frage zum Grundriss in 130 Zeichen zusammengefasst?






hier noch mal meine Frage an Euch .
Wir haben nun endlich ein Grundstück zum Bau eines Einfamilienhaus in Aussicht. Das Ganze wird über einen Bauträger verkauft.
Da die Häuser rechts und links stehen bleiben, müssen wir die vorgeschriebenen Abstände von 3m einhalten.
Ich habe noch keine Vorstellung ob mir das Haus am Ende ggf. einfach zu schmal ist. Leider gibt es auch nicht viele Musterhäuser mit diesen geringen Abmessungen.
Gerne nehme ich Tipps und Verbesserungsvorschläge an.
Bebauungsplan/Einschränkungen
Größe des Grundstücks: 425m²
Hang: nein
Baufenster: 3m zur Straße, 15,60 m Hauslänge und 5,60 m Breite fürs Haus und zuzätzlich links 3m Breite für Garage.
Anzahl Stellplatz: 1 vor Garage
Geschossigkeit: Max. 2 Vollgeschosse
Dachform: Satteldach 25-45grad
Stilrichtung: beliebig
Ausrichtung: Süd-West
Maximale Höhen/Begrenzungen: Firsthöhe 9m Wandhöhe Max. 4,70m
Anforderungen der Bauherren
Keller, Geschosse: kein Keller, fast 2 Vollgeschosse (
Anzahl der Personen, Alter: 2 Personen
Raumbedarf im EG und OG: 110 - 130m²
Im OG 3 Schlafzimmer (1 Schlafzimmer wird als Büro genutzt)
Schlafgäste pro Jahr: Erwachsene Kinder
offene oder geschlossene Architektur: offenes Raumkonzept (offene Küche)
Garage, Carport: Garage
Hausentwurf
Von wem stammt die Planung: erster Entwurf vom Bauträger
- Zugang Garage in Garten
- wenig Flurbereiche und trotzdem Garderobe
- offenes Wohnkonzept
- Großzügige Bad
Was gefällt nicht? Warum?
- kleine Küche
- kleines Bad
Wir wollten unbedingt ein offenes Raumkonzept, da unser Alltag sich eigentlich im Sommer im Garten und ansonsten im Wohnzimmer bzw. Küche abspielt.
Was ist die wichtigste/grundlegende Frage zum Grundriss in 130 Zeichen zusammengefasst?
- allgemeine Meinung zum Grundriss
- Siehe „was gefällt nicht“ Optimierungsideen erwünscht
Schalte mal Dein Profil besuchbar und/oder erzähle etwas über Dich
https://www.instagram.com/11antgmxde/
https://www.linkedin.com/company/bauen-jetzt/
simonmarkus197 schrieb:Na dann ist doch alles klar: laß´ es seine Sorge sein, ob er da wem etwas dem genügendes hinbauen kann, und Du suche einfach weiter. Etwas besseres als einen so eng geschnürten Gürtel findest Du überall, wenn ich da mal frei die Bremer Stadtmusikanten zitieren darf
Wir haben nun endlich ein Grundstück zum Bau eines Einfamilienhaus in Aussicht. Das Ganze wird über einen Bauträger verkauft.
https://www.instagram.com/11antgmxde/
https://www.linkedin.com/company/bauen-jetzt/
Gemäß der Grundstücksgrenzen im anderen Thread stünde dann ja das Nachbargebäude - offenbar keine Garage? - fest auf der Grenze. Das kostet Platz - und zwar Deinen. Grob überschlagen kannst Du 1/3 Deines ansonsten bebaubaren Grundstücks nicht bebauen, weil der Nachbar (bisheriger Grundstückseigentümer?) zu nah an der Grenze steht. Eigentlich bräuchtest Du die rechten 5 ... 6 Meter einfach nicht zu kaufen - oder zumindest nicht zu bezahlen, denn damit kannst Du baulich ohnehin nichts anfangen.
Die geplante Breite ist sogar für Reihenhäuser am unteren Limit und wäre für mich indiskutabel. Gemessen daran finde ich den Grundriss okay, aber schön ist anders.
Die geplante Breite ist sogar für Reihenhäuser am unteren Limit und wäre für mich indiskutabel. Gemessen daran finde ich den Grundriss okay, aber schön ist anders.
Ich finde ihn gut*... reicht aus, dafür, dass ohne Kinder, sondern nur mit Gast und Büro geplant wird.
*Abgesehen von der Küchenwand, die ich völlig überflüssig finde.
Aber näheres kann man ja nur sagen, wenn die Ausrichtung bekannt ist.
Setzt Du das Grundstück noch mal rein, bitte? Und gleich mit Maßen dran? Danke.
*Abgesehen von der Küchenwand, die ich völlig überflüssig finde.
Aber näheres kann man ja nur sagen, wenn die Ausrichtung bekannt ist.
Setzt Du das Grundstück noch mal rein, bitte? Und gleich mit Maßen dran? Danke.
S
simonmarkus19702.05.20 20:14Werde ich umgehend machen. Danke schon einmal für das Feedback.
B
Bertram10003.05.20 08:48Ich finde es ein sehr charmantes Haus von der Einteilung (eventuell Allraum noch mal umplanen um eine größere Küche zu erhalten). Bei uns in der Stadt gibt es massenweise Häuser die 5,00m breit sind. Und sie sind alle sehr charmant und schön von innen. Ich glaube sogar dass ich kleinere Räume (solange sie noch funktional sind), irgendwie "schöner" finde. Ich habe mich noch in keinem der schmalen Häuser unwohl gefühlt. In größeren dagegen schon.
Eventuell kann man übers Dach noch etwas Tageslicht ins EG bringen (mit einer Solatube oder so etwas).
Das Bad finde ich ganz und gar nicht klein. Bad, Dusche, grosses waschbecken. Alles da und noch Platz zum Sachen ablegen und sich bewegen. Ich habe noch nie 9qm Bad gehabt. Ich habe jetzt 7 und das ist echt ausreichend zum Komfortabel bewegen und alles abzulegen.
Eventuell kann man übers Dach noch etwas Tageslicht ins EG bringen (mit einer Solatube oder so etwas).
Das Bad finde ich ganz und gar nicht klein. Bad, Dusche, grosses waschbecken. Alles da und noch Platz zum Sachen ablegen und sich bewegen. Ich habe noch nie 9qm Bad gehabt. Ich habe jetzt 7 und das ist echt ausreichend zum Komfortabel bewegen und alles abzulegen.
Ähnliche Themen