Guten Tag,
wir lesen schon seit einiger Zeit hier im Forum mit und haben jetzt endlich unseren ersten Entwurf vom Architekten bekommen. Wir sind nicht ganz zufrieden und wollten vor dem nächsten Gespräch mit dem Architekten hier mal nach Rat fragen.
Wir waren uns nicht sicher ob wir den Plan vom Architekten hier einfach posten dürfen, und haben ihn daher nachgezeichnet, das wichtigste sollte allerdings zu erkennen sein.
Bebauungsplan/Einschränkungen
Größe des Grundstücks 350m2
Hang nein
Grundflächenzahl 0,4
Geschossflächenzahl 1,2
Baufenster, Baulinie und -grenze
Randbebauung ja
Anzahl Stellplatz 2
Geschossigkeit 2+DG
Dachform Satteldach Dachneigung 46°
Stilrichtung ?
Ausrichtung
Maximale Höhen/Begrenzungen Wandhöhe bis 7,5m über Straße, Hauslänge wirkt sich aufgrund der fixen Dachneigung direkt auf Dachhöhe aus und beeinflusst somit die Abstandsfläche.
weitere Vorgaben Kettenbebauung (Haus/Garage/Haus/Garage…), Brandschutzwand ohne Fenster im Westen,
Anforderungen der Bauherren
Stilrichtung, Dachform, Gebäudetyp Satteldach vorgeschrieben
Keller, Geschosse Ohne Keller (aus Kostengründen)
Anzahl der Personen, Alter 4 Personen (34,33, 4, 2)
Raumbedarf im EG Technikraum, Küche, WZ, EZ, WC
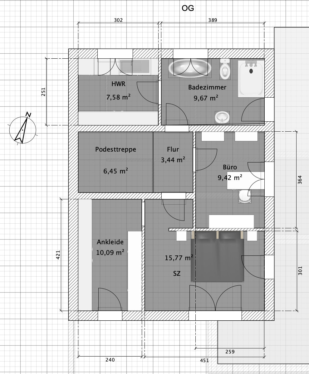
Raumbedarf im OG Schlafzimmer, Ankleide, Bad, Büro, Hauswirtschaftsraum
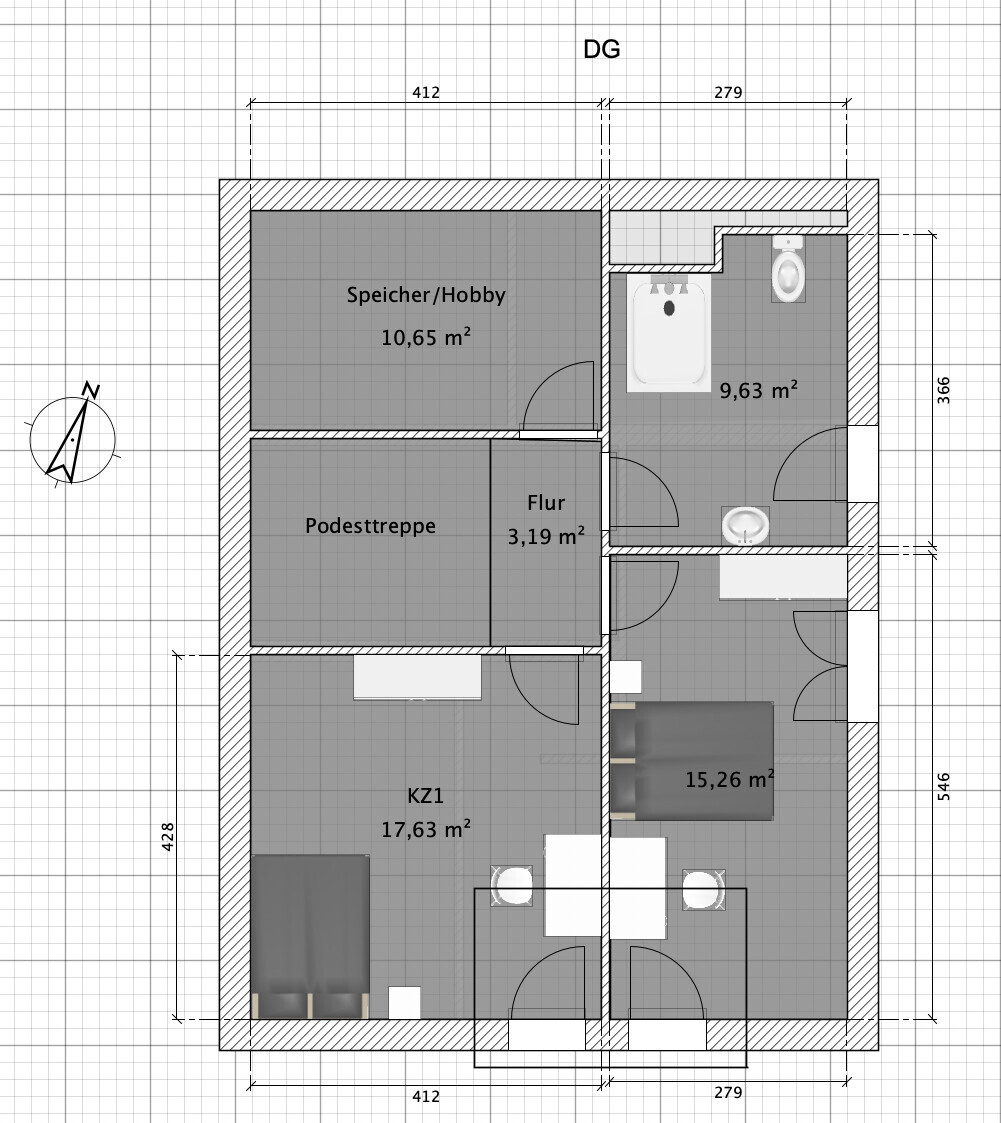
Raumbedarf im DG KZ1, KZ2, Bad
Büro: Familiennutzung oder Homeoffice? Beides, aktuell 95% Homeoffice
Schlafgäste pro Jahr nicht relevantoffene oder geschlossene Architektur offen, WZ und Küche aber durch EZ getrennt
konservativ oder moderne Bauweise
offene Küche, Kochinsel Kochinsel, aber nicht um jeden Preis
Anzahl Essplätze 6-8 Plätze
Kamin nein
Musik/Stereowand TV im WZ
Balkon, Dachterrasse kein Balkon
Garage, Carport Doppelcarport+Anbau für Fahrräder und kleine Werkbank (zwei Stellplätze müssen ausgewiesen werden, hintereinander ist nicht gestattet)
Nutzgarten, Treibhaus nur kleines Gemüse und Kräuterbeet
weitere Wünsche/Besonderheiten/Tagesablauf, gern auch Begründungen, warum dieses oder das nicht sein soll KNX (Schwager ist Elektrikermeister, allerdings ohne eigenen Betrieb), Kontrollierte-Wohnraumlüftung, Photovoltaik, Sitzfenster im Erdgeschoss, Badewanne nicht notwendig; meine Frau hatte immer mit einer geraden Treppe geliebäugelt, wenn die hier sinnvoll reinpasst gerne sind wir für Vorschläge offen.
Hausentwurf
Von wem stammt die Planung:
-Architekt, erster Entwurf
Was gefällt besonders? Warum?
Was gefällt nicht? Warum?
Anordnung der Fenster (Außenansicht)
EG Das Wohnzimmer ist zu klein, Gäste-WC zu schmal,
OG Zugang zum Hauswirtschaftsraum durch das Bad, viele Türen im Schlafzimmer (Türen zum Schlafzimmer und zur Ankleide entfallen)
DG KZ1 nur ein Fenster, Kniestock nur 0,75m, hier werden wir auf 1,1m gehen, Quergiebel nicht symmetrisch, Quergiebel eventuell für mehr Photovoltaik einsparen.
Das DG Geschoss werden wir nochmal komplett neu planen lassen. KZ an der Ostseite, Bad im Nordwesten, und den Speicher im Südwesten.
Preisschätzung lt Architekt/Planer: 550t€
Persönliches Preislimit fürs Haus, inkl Ausstattung: 450t€ (inkl. Eigenleistung)
favorisierte Heiztechnik: Sole-Wasser-Wärmepumpe+Photovoltaik, aus Kostengründen wahrscheinlich eher Luft-Wasser-Wärmepumpe+Photovoltaik
Wenn Ihr verzichten müsst, auf welche Details/Ausbauten
-könnt Ihr verzichten: Kücheninsel, Badewanne
-könnt Ihr nicht verzichten:
Warum ist der Entwurf so geworden, wie er jetzt ist? ZB
Entsprechende/Welche Wünsche wurden vom Architekten umgesetzt? Raumprogramm vom Architekten umgesetzt.
Was macht ihn in Euren Augen besonders gut oder schlecht?
Wir hatten nur ein Rechteckiges Haus auf dem Schirm, durch den Kubus gewinnen wir im EG etwas Platz und ein Doppelcarport ist möglich. Außerdem muss das Haus mit der aktuellen Höhe (12,25m) mindestens 4,9m (12,25*0,4) vom Nachbargrundstück entfernt sein.
Was ist die wichtigste/grundlegende Frage zum Grundriss in 130 Zeichen zusammengefasst?
Wie können wir das EG sinnvollerweise aufteilen, dass insbsondere das WZ nicht so eingeengt ist.
Wir überlegen auch, ob wir das Haus noch auf 11m verlängern.




wir lesen schon seit einiger Zeit hier im Forum mit und haben jetzt endlich unseren ersten Entwurf vom Architekten bekommen. Wir sind nicht ganz zufrieden und wollten vor dem nächsten Gespräch mit dem Architekten hier mal nach Rat fragen.
Wir waren uns nicht sicher ob wir den Plan vom Architekten hier einfach posten dürfen, und haben ihn daher nachgezeichnet, das wichtigste sollte allerdings zu erkennen sein.
Bebauungsplan/Einschränkungen
Größe des Grundstücks 350m2
Hang nein
Grundflächenzahl 0,4
Geschossflächenzahl 1,2
Baufenster, Baulinie und -grenze
Randbebauung ja
Anzahl Stellplatz 2
Geschossigkeit 2+DG
Dachform Satteldach Dachneigung 46°
Stilrichtung ?
Ausrichtung
Maximale Höhen/Begrenzungen Wandhöhe bis 7,5m über Straße, Hauslänge wirkt sich aufgrund der fixen Dachneigung direkt auf Dachhöhe aus und beeinflusst somit die Abstandsfläche.
weitere Vorgaben Kettenbebauung (Haus/Garage/Haus/Garage…), Brandschutzwand ohne Fenster im Westen,
Anforderungen der Bauherren
Stilrichtung, Dachform, Gebäudetyp Satteldach vorgeschrieben
Keller, Geschosse Ohne Keller (aus Kostengründen)
Anzahl der Personen, Alter 4 Personen (34,33, 4, 2)
Raumbedarf im EG Technikraum, Küche, WZ, EZ, WC
Raumbedarf im OG Schlafzimmer, Ankleide, Bad, Büro, Hauswirtschaftsraum
Raumbedarf im DG KZ1, KZ2, Bad
Büro: Familiennutzung oder Homeoffice? Beides, aktuell 95% Homeoffice
Schlafgäste pro Jahr nicht relevantoffene oder geschlossene Architektur offen, WZ und Küche aber durch EZ getrennt
konservativ oder moderne Bauweise
offene Küche, Kochinsel Kochinsel, aber nicht um jeden Preis
Anzahl Essplätze 6-8 Plätze
Kamin nein
Musik/Stereowand TV im WZ
Balkon, Dachterrasse kein Balkon
Garage, Carport Doppelcarport+Anbau für Fahrräder und kleine Werkbank (zwei Stellplätze müssen ausgewiesen werden, hintereinander ist nicht gestattet)
Nutzgarten, Treibhaus nur kleines Gemüse und Kräuterbeet
weitere Wünsche/Besonderheiten/Tagesablauf, gern auch Begründungen, warum dieses oder das nicht sein soll KNX (Schwager ist Elektrikermeister, allerdings ohne eigenen Betrieb), Kontrollierte-Wohnraumlüftung, Photovoltaik, Sitzfenster im Erdgeschoss, Badewanne nicht notwendig; meine Frau hatte immer mit einer geraden Treppe geliebäugelt, wenn die hier sinnvoll reinpasst gerne sind wir für Vorschläge offen.
Hausentwurf
Von wem stammt die Planung:
-Architekt, erster Entwurf
Was gefällt besonders? Warum?
Was gefällt nicht? Warum?
Anordnung der Fenster (Außenansicht)
EG Das Wohnzimmer ist zu klein, Gäste-WC zu schmal,
OG Zugang zum Hauswirtschaftsraum durch das Bad, viele Türen im Schlafzimmer (Türen zum Schlafzimmer und zur Ankleide entfallen)
DG KZ1 nur ein Fenster, Kniestock nur 0,75m, hier werden wir auf 1,1m gehen, Quergiebel nicht symmetrisch, Quergiebel eventuell für mehr Photovoltaik einsparen.
Das DG Geschoss werden wir nochmal komplett neu planen lassen. KZ an der Ostseite, Bad im Nordwesten, und den Speicher im Südwesten.
Preisschätzung lt Architekt/Planer: 550t€
Persönliches Preislimit fürs Haus, inkl Ausstattung: 450t€ (inkl. Eigenleistung)
favorisierte Heiztechnik: Sole-Wasser-Wärmepumpe+Photovoltaik, aus Kostengründen wahrscheinlich eher Luft-Wasser-Wärmepumpe+Photovoltaik
Wenn Ihr verzichten müsst, auf welche Details/Ausbauten
-könnt Ihr verzichten: Kücheninsel, Badewanne
-könnt Ihr nicht verzichten:
Warum ist der Entwurf so geworden, wie er jetzt ist? ZB
Entsprechende/Welche Wünsche wurden vom Architekten umgesetzt? Raumprogramm vom Architekten umgesetzt.
Was macht ihn in Euren Augen besonders gut oder schlecht?
Wir hatten nur ein Rechteckiges Haus auf dem Schirm, durch den Kubus gewinnen wir im EG etwas Platz und ein Doppelcarport ist möglich. Außerdem muss das Haus mit der aktuellen Höhe (12,25m) mindestens 4,9m (12,25*0,4) vom Nachbargrundstück entfernt sein.
Was ist die wichtigste/grundlegende Frage zum Grundriss in 130 Zeichen zusammengefasst?
Wie können wir das EG sinnvollerweise aufteilen, dass insbsondere das WZ nicht so eingeengt ist.
Wir überlegen auch, ob wir das Haus noch auf 11m verlängern.
Ich würde den Architekt komplett zurück auf Los schicken, da passt zu vieles nicht.
EG:
- Speisekammer zu schmal und abseits der Küche
- herausgesetztes Wohnzimmer ohne Mehrwert durch das Vorziehen
- Allraum zu klein für diese verkehrsflächenreiche Gestaltung, kaum Schrankfläche / Stellfläche
- Gäste-WC sehr klein
OG:
- Hauswirtschaftsraum durch Bad ist unruhig (und doof: Stell dir vor, du sortierst Wäsche und die bessere Hälfte geht ins Bad, soll er / sie beide Türen abschließen und du bist eingeschlossen oder darfst du ihn überraschen aus dem Hauswirtschaftsraum heraus?)
- Schlafzimmer: Man läuft direkt in eine Wand
- Der Treppe würde ich ein Fenster spendieren, sonst wird es da dunkel (unabhängig vom Stockwerk)
DG:
- Ein Hobbyraum ohne Fenster ist wohl nur für dunkle Künste geeignet.
- Das Kinderzimmer rechts ohne Beschriftung ist sehr schlauchig. So eins haben wir gerade auch. Rate ich von ab, weil es weniger gut nutzbar ist.
- Kinderzimmer 1 hat nur 1 (kleines) Fenster.
Viele Grüße
SoL
EG:
- Speisekammer zu schmal und abseits der Küche
- herausgesetztes Wohnzimmer ohne Mehrwert durch das Vorziehen
- Allraum zu klein für diese verkehrsflächenreiche Gestaltung, kaum Schrankfläche / Stellfläche
- Gäste-WC sehr klein
OG:
- Hauswirtschaftsraum durch Bad ist unruhig (und doof: Stell dir vor, du sortierst Wäsche und die bessere Hälfte geht ins Bad, soll er / sie beide Türen abschließen und du bist eingeschlossen oder darfst du ihn überraschen aus dem Hauswirtschaftsraum heraus?)
- Schlafzimmer: Man läuft direkt in eine Wand
- Der Treppe würde ich ein Fenster spendieren, sonst wird es da dunkel (unabhängig vom Stockwerk)
DG:
- Ein Hobbyraum ohne Fenster ist wohl nur für dunkle Künste geeignet.
- Das Kinderzimmer rechts ohne Beschriftung ist sehr schlauchig. So eins haben wir gerade auch. Rate ich von ab, weil es weniger gut nutzbar ist.
- Kinderzimmer 1 hat nur 1 (kleines) Fenster.
Viele Grüße
SoL
K
K a t j a07.03.22 07:25Euch fehlen mind. 100K und Ihr überlegt, zu vergrößern?
haydee schrieb:
Zeichne im DG die 2 m Linie ein.
Eigentlich ist das Haus zu groß für euer BudgetNaja, zu QM-groß ist es.Von den nutzbaren QM ist es zu klein.
SoL schrieb:
Naja, zu QM-groß ist es.
Von den nutzbaren QM ist es zu klein.Zweifels ohne gibt es Einsparpotenial
Ähnliche Themen