ᐅ Grundriss Einfamilienhaus, ~180m², Keller mit Satteldach
Erstellt am: 27.07.16 16:59
M
Mike12345678901M
Mike1234567890127.07.16 16:59Hallo Zusammen,
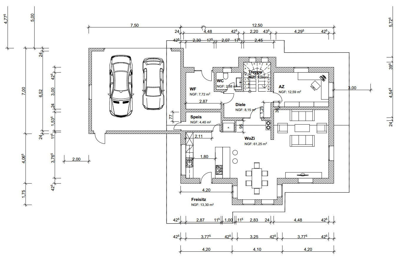
anbei unser Grundriss auf dessen Basis in den naechsten Tagen der Eingabeplan entstehen wird.
Ueber konstruktive Kritik und Verbesserungsvorschlaege würden wir uns sehr freuen.
Bebauungsplan/Einschränkungen
Größe des Grundstücks: ca 850m²
Hang: ja, sie Bild Gelaendehoehen
Grundflächenzahl: 0,3
Geschossflächenzahl: 0,6
Randbebauung: Ja
Anzahl Stellplatz: 1,25
Geschossigkeit: 2
Dachform: Satteldach - Sichdachtstuhl
Dachneigung: 15-30 Grad
Stilrichtung: Familienhaus, Landhaus
Ausrichtung: Nord-Süd (geplant)
Maximale Abtragung bei Grundstück: 0,75m
Maximale Auftragung bei Grundstück: 0,75m
Kniestock:
Talseits: Zulässig bis 0,50 m gemessen ab OK. Rohdecke bis OK. Pfette;
Bergseits: Zulässig bis 0,75 m, gemessen ab OK. Rohdecke bis OK. Pfette.
weitere Vorgaben
Keller, Geschosse: Ja, 2
Anzahl der Personen, Alter: 4 (3,6,39,41)
Raumbedarf im EG, OG
Büro: Homeoffice
Garage, Carport: Garage
Schlafgäste: Viele
offene oder geschlossene Architektur: offen (Wohnraum)
offene Küche, Kochinsel: Ja
Anzahl Essplätze: 8 (ein zentraler Esstisch)
Kamin: Ja
Hausentwurf
Von wem stammt die Planung: Eigenentwurf
Was gefällt besonders? Wohnbereich
Was gefällt nicht? Der Hang wird irgendwie nicht genutzt.....aber uns will nix einfallen
Favorisierte Heiztechnik: Gasbrennwerttherme würde sich anbieten da Gas anliegt aber noch nicht endgültig festgelegt
Sonstige Anmerkungen:
anbei unser Grundriss auf dessen Basis in den naechsten Tagen der Eingabeplan entstehen wird.
Ueber konstruktive Kritik und Verbesserungsvorschlaege würden wir uns sehr freuen.
Bebauungsplan/Einschränkungen
Größe des Grundstücks: ca 850m²
Hang: ja, sie Bild Gelaendehoehen
Grundflächenzahl: 0,3
Geschossflächenzahl: 0,6
Randbebauung: Ja
Anzahl Stellplatz: 1,25
Geschossigkeit: 2
Dachform: Satteldach - Sichdachtstuhl
Dachneigung: 15-30 Grad
Stilrichtung: Familienhaus, Landhaus
Ausrichtung: Nord-Süd (geplant)
Maximale Abtragung bei Grundstück: 0,75m
Maximale Auftragung bei Grundstück: 0,75m
Kniestock:
Talseits: Zulässig bis 0,50 m gemessen ab OK. Rohdecke bis OK. Pfette;
Bergseits: Zulässig bis 0,75 m, gemessen ab OK. Rohdecke bis OK. Pfette.
weitere Vorgaben
Keller, Geschosse: Ja, 2
Anzahl der Personen, Alter: 4 (3,6,39,41)
Raumbedarf im EG, OG
Büro: Homeoffice
Garage, Carport: Garage
Schlafgäste: Viele
offene oder geschlossene Architektur: offen (Wohnraum)
offene Küche, Kochinsel: Ja
Anzahl Essplätze: 8 (ein zentraler Esstisch)
Kamin: Ja
Hausentwurf
Von wem stammt die Planung: Eigenentwurf
Was gefällt besonders? Wohnbereich
Was gefällt nicht? Der Hang wird irgendwie nicht genutzt.....aber uns will nix einfallen
Favorisierte Heiztechnik: Gasbrennwerttherme würde sich anbieten da Gas anliegt aber noch nicht endgültig festgelegt
Sonstige Anmerkungen:
- Parzelle 4 im Lageplan ist unsere
- 2m Linie ist noch nicht eingezeichnet, da Dachneigung noch nicht endgueltig feststeht
- Fenster usw. stehen vor allem im OG ebenfalls noch nicht 100%ig fest, ueber Tipps würden wir uns freuen
- Norden ist oben
- Wir haben einen leichten (?) Hang (von 511,65 im Süd-Osten auf 507,86 im Nord-Westen), wissen aber damit nix positives anzufangen.....Vielleicht hat jemand eine gute Idee und wir können den zu unseren Vorteil nutzen
- Die Kochinsel hat im Plan 60cm, Real wird sie 1,10 m sein - daher der Platz zwischen den Stühlen und der Kochinsel
M
Mike1234567890127.07.16 18:35@BeHaElJa :
- Guter Einwand mit der Treppe. Wir sind morgen beim Planer bzw. Bauzeichner und ich spreche das Thema noch mal an.
- Küche wird aktuell geplant, naechster Termin im Küchenstudio ist Freitag.
- 2 Vollgeschosse ist richtig - ich hätte aber gerne eine Dachabschleppung als Überdachung beim Freisitz (siehe EG). Da muss der Planer morgen dann mal schauen wie sich das mit Bebauungsplan vereinbaren lässt. Daher hab ich noch keine 2m Linie.
- Luftraum: In meiner Software sieht das gut aus, real bei anderen Haeusern hats mit auch gefallen - vor allem in Verbindung mit einem Sichdachtstuhl. Kann man sich vielleicht so wie einen uebderachten Wintergarten vorstellen. Sollte auch kostenmässig günstiger als Erker & Giebel sein. Was spricht aus deiner Sicht dagegen?
B
Bauexperte27.07.16 19:02Mike12345678901 schrieb:
Guter Einwand mit der Treppe. Die Treppe passt - Geschosserhöhung?Der sog. "Durchgangsflur, alias Speis" würde ich mir an Deiner Stelle noch mal überlegen. Küchenseits passt gerade mal ein 36er Hintern durch die Türe; von der angesetzten Garage blockiert eine F-90-Tür erforderliche Staufläche für die Küche.
Mein Vorschlag: Garage nach vorne ziehen und Zugang zum Haus über Windfang.
Grüße, Bauexperte
M
Mike1234567890127.07.16 19:17@Bauexperte:
Sorry, was meinst Du hier:
"Küchenseits passt gerade mal ein 36er Hintern durch die Türe; von der angesetzten Garage blockiert eine F-90-Tür erforderliche Staufläche für die Küche."
Hab jetzt die Garagentür auf 76cm angepasst und an die Ränder gezogen. Durchgang Garage-Speis kulante schon schön - so von wegen Schlepperei durch Windfang und so.

Sorry, was meinst Du hier:
"Küchenseits passt gerade mal ein 36er Hintern durch die Türe; von der angesetzten Garage blockiert eine F-90-Tür erforderliche Staufläche für die Küche."
Hab jetzt die Garagentür auf 76cm angepasst und an die Ränder gezogen. Durchgang Garage-Speis kulante schon schön - so von wegen Schlepperei durch Windfang und so.
B
Bauexperte27.07.16 19:49Mike12345678901 schrieb:
@Bauexperte:
Sorry, was meinst Du hier:
"Küchenseits passt gerade mal ein 36er Hintern durch die Türe; von der angesetzten Garage blockiert eine F-90-Tür erforderliche Staufläche für die Küche."
Das ist doch höchstens eine 76er Breite ? 36er Hintern meint eine sehr schlanke Person
Mike12345678901 schrieb:
Mike12345678901 schrieb:
Hab jetzt die Garagentür auf 76cm angepasst und an die Ränder gezogen. Durchgang Garage-Speis kulante schon schön - so von wegen Schlepperei durch Windfang und so.Dann passt auch dort nur ein 36er Hintern durch die Türe; ganz sicher interessant, mit Tüten in beiden Händen Gleiches gilt, btw. für das Gäste-WC.Bauen bedeutet Kompromisse zu finden und nicht alles auf Teufel komm raus umzusetzen, was einem lieb wäre. Ich verstehe unter eine Speis einen Raum, in welchem ich u.a. Konserven, selten benutzte Töpfe und all das Zeugs lagern kann, was ich nur temporär nutze. Dein Bad im OG ist weiters nicht wirklich so angelegt, daß es WA/Trockner/Körbe/Utensilien aufnehmen könnte; also sollen die kleinen Helferlein doch bestimmt in diesen Durchgangsflur?
Verstehst Du, worauf ich hinaus will? Liege ich richtig mit meiner Annahme, sind 4,40 x 0,77 sehr wenig; eine Tür weniger, täte dem Raum also gut
Grüße, Bauexperte
Ähnliche Themen