ᐅ Grundriss eines barrierefreien Bungalow
Erstellt am: 26.09.17 14:33
zizzi26.09.17 14:33
Hallo zusammen,
wir haben eine Vorentwurf und ein Angebot von unsere Bauträger bekommen. Ich wollte gerne eure Meinung dazu wissen.
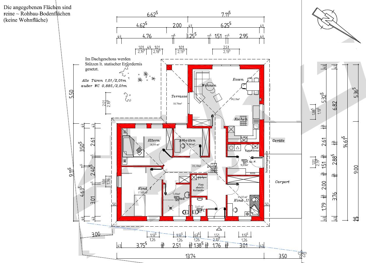
Es soll ein barrierefreier Bungalow sein(ungefähr 131 qm) mit 3 Schlafräume und möglicherweise ein Arbeitszimmer die hier realisiert wurde. Vorher war ja so, dass anstatt Arbeitszimmer eine Küche(aber etwas größer) gab und das Wohnzimmer etwas größer war.
Meine Meinung:
Ich würde das Haus von Straßenseite etwas schmaler machen, dadurch Schlafzimmer und Kind1 wird etwas kleiner. Anstatt zieht man das Wohnzimmer und Küche etwas länger, dadurch Küche kann etwas größer gemacht werden(mir fällt zu klein auf).
Von die andere Seite habe ich die Möglichkeit der Carport etwas breiter machen. Ich versuche für Carport eine Innenbreite von 3,5 m schaffen(wegen Rollstuhl).
Ich werde noch von Bauträger fragen was von Preis her ausmacht wenn man anstatt Holzbalkendecke eine Betondecke mit Dämmung, eine Drempelhöhe von vielleicht 30 cm und eine Dachneigung von 40 Grad schafft, dadurch man im Zukunft das Dachgeschoss noch ausbauen kann.(vielleicht nach 25 – 30 Jahren)
Ein Carport für zwei Autos hintereinander mit Geräteraum möchte ich gerne geplant werden aber das will ich selber machen oder wo anderes machen lassen, 14000 € die Bauträger für ein Einzellcarport mit Geräteraum haben will, ich denke zu teuer ist.
Wir würden und auf eure Vorschläge sehr freuen.
Danke



wir haben eine Vorentwurf und ein Angebot von unsere Bauträger bekommen. Ich wollte gerne eure Meinung dazu wissen.
Es soll ein barrierefreier Bungalow sein(ungefähr 131 qm) mit 3 Schlafräume und möglicherweise ein Arbeitszimmer die hier realisiert wurde. Vorher war ja so, dass anstatt Arbeitszimmer eine Küche(aber etwas größer) gab und das Wohnzimmer etwas größer war.
Meine Meinung:
Ich würde das Haus von Straßenseite etwas schmaler machen, dadurch Schlafzimmer und Kind1 wird etwas kleiner. Anstatt zieht man das Wohnzimmer und Küche etwas länger, dadurch Küche kann etwas größer gemacht werden(mir fällt zu klein auf).
Von die andere Seite habe ich die Möglichkeit der Carport etwas breiter machen. Ich versuche für Carport eine Innenbreite von 3,5 m schaffen(wegen Rollstuhl).
Ich werde noch von Bauträger fragen was von Preis her ausmacht wenn man anstatt Holzbalkendecke eine Betondecke mit Dämmung, eine Drempelhöhe von vielleicht 30 cm und eine Dachneigung von 40 Grad schafft, dadurch man im Zukunft das Dachgeschoss noch ausbauen kann.(vielleicht nach 25 – 30 Jahren)
Ein Carport für zwei Autos hintereinander mit Geräteraum möchte ich gerne geplant werden aber das will ich selber machen oder wo anderes machen lassen, 14000 € die Bauträger für ein Einzellcarport mit Geräteraum haben will, ich denke zu teuer ist.
Wir würden und auf eure Vorschläge sehr freuen.
Danke
ypg26.09.17 15:37
Also, für die Eltern sollte in der Planung ein Schlafzimmer rauskommen, welches einen 3-Meter-Schrank beherbergen kann.
Die Garderobe mit Stellplatz fürn Rollie finde ich schon mal gut
Die Garderobe mit Stellplatz fürn Rollie finde ich schon mal gut
11ant26.09.17 15:57
Die Planung ist nun fast so schlecht, wie die vorherige https://www.hausbau-forum.de/threads/bangalow-grudndriss-barrierefrei.25523/ tauglich war. Der Aktionsraum in den Fluren reicht nun nur noch mit Faltrollstuhl aus. Für einen DG-Ausbau gibt der Grundriss keinen Treppenstandort her, und "in 25-30 Jahren" wechselt man eher das Haus.
zizzi26.09.17 16:10
11ant schrieb:
Die Planung ist nun fast so schlecht, wie die vorherige https://www.hausbau-forum.de/threads/bangalow-grudndriss-barrierefrei.25523/ tauglich war. Der Aktionsraum in den Fluren reicht nun nur noch mit Faltrollstuhl aus. Für einen DG-Ausbau gibt der Grundriss keinen Treppenstandort her, und "in 25-30 Jahren" wechselt man eher das Haus.das habe ich auch vor, dass für DG-Ausbau die Gäste-WC abgerissen werden muss um eine Treppe rein zu kriegen. Aber das muss ich auch einmal mir Bauträger drüber sprechen.Für Stellplatz für Rolli muss ich mich schlau machen.
Danke für die Hinweise
11ant26.09.17 17:36
zizzi schrieb:
Für Stellplatz für Rolli muss ich mich schlau machenDer Abstell- und Ladeplatz reicht aus. Ich schrieb aber vom Aktionsraum. In diesem Flur mit dem E-Rolli nicht anzuecken, ist selbst mit uneingeschränkt artikuliert beweglichen Händen Höchstkonzentrationssport. Man könnte meinen, der Planer habe gewechselt.zizzi schrieb:
dass für DG-Ausbau die Gäste-WC abgerissen werden muss um eine Treppe rein zu kriegen... ist eine 1a Schnapsidee und gelingt hier nicht.ypg26.09.17 18:14
Welcher Anbieter soll bauen? Bietet er den Hausbau nur auf den Wurzeln des Bungalow Oslos an oder gibt es andere Möglichkeiten?
Müssen die Außenmaße des Typ Oslos sein oder seid ihr da variabel?
Müssen die Außenmaße des Typ Oslos sein oder seid ihr da variabel?
Ähnliche Themen