Y
ypg
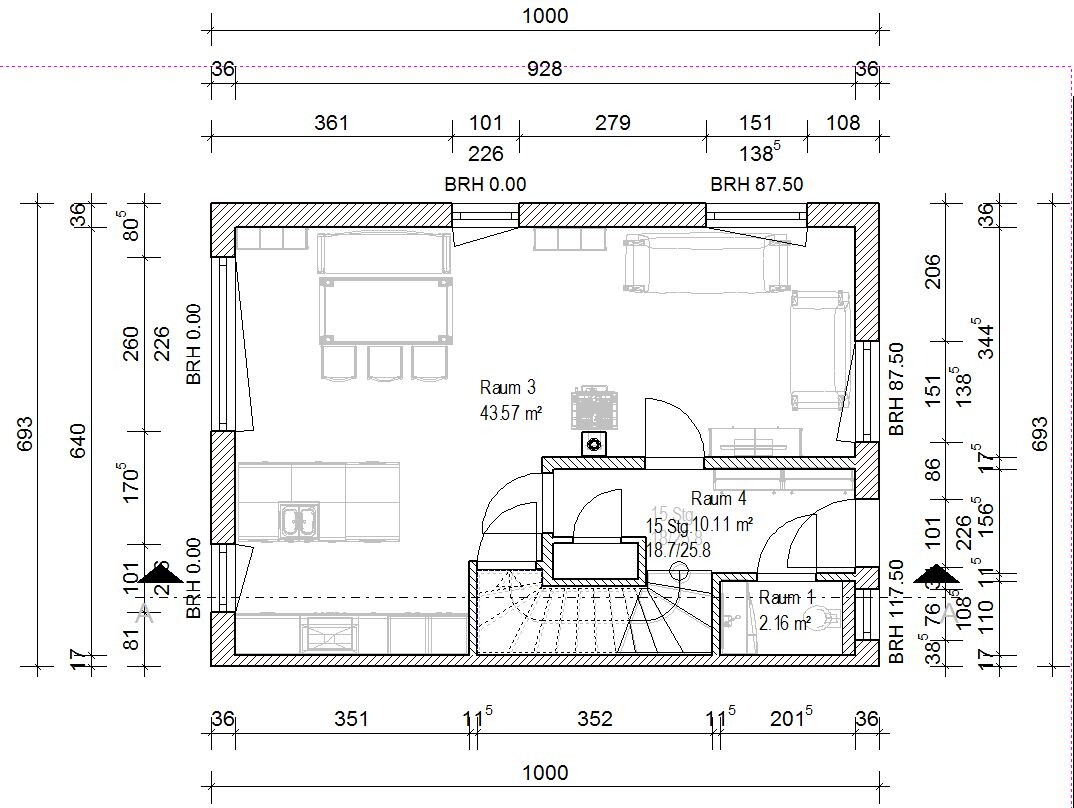
Das mit den Versorgungsleitungen wird funktionieren. Der Abstell im EG ist überflüssig. Dann lieber mal im OG die Räume diesbezüglich verändern -> 2 Kinderzimmern, 1 kleines Gast und Abstell.
Im EG kann ein kleiner Einbauschrank neben der Garderobe das nötigste beherbergen.
Es nützt ja alles nichts: wenn man mit einer Situation nicht glücklich ist, dann muss man nach Alternativen suchen und sie sich auch mal durchspielen und skizzieren
Vielleicht auch mal den Keller in die Planung einbringen...
Im EG kann ein kleiner Einbauschrank neben der Garderobe das nötigste beherbergen.
Es nützt ja alles nichts: wenn man mit einer Situation nicht glücklich ist, dann muss man nach Alternativen suchen und sie sich auch mal durchspielen und skizzieren
Vielleicht auch mal den Keller in die Planung einbringen...
