ᐅ Grundriss Doppelhaushälfte 135m2, zwei Vollgeschosse
Erstellt am: 06.07.25 10:15
Hallo zusammen, wir stecken mitten in der Planung unserer Doppelhaushälfte und würden uns über Gedanken und Ideen zu unserem Grundriss freuen.
Wir sind eine vierköpfige Familie (Kinder 3 und 0 Jahre alt), mein Mann arbeitet derzeit überwiegend im Homeoffice.
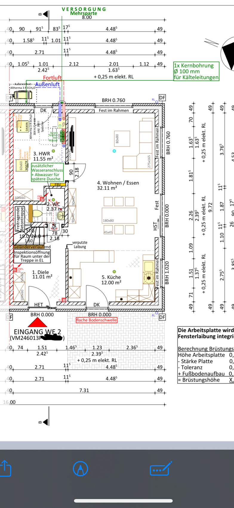
Das Haus ist nicht unterkellert, als Stauraum werden wir den Dachboden sowie den Hauswirtschaftsraum nutzen. Wir haben uns gegen den klassischen Grundriss mit Hauswirtschaftsraum und Gäste-WC im Eingangsbereich entschieden, weil wir gerne Licht von drei Seiten ins Haus haben möchten und den Westgarten gerne nutzen wollen. Wir freuen uns sehr über weitere Meinungen und Ideen, die Architektin unseres Bauunternehmens hat relativ wenig Ideen geäußert.



Wir sind eine vierköpfige Familie (Kinder 3 und 0 Jahre alt), mein Mann arbeitet derzeit überwiegend im Homeoffice.
Das Haus ist nicht unterkellert, als Stauraum werden wir den Dachboden sowie den Hauswirtschaftsraum nutzen. Wir haben uns gegen den klassischen Grundriss mit Hauswirtschaftsraum und Gäste-WC im Eingangsbereich entschieden, weil wir gerne Licht von drei Seiten ins Haus haben möchten und den Westgarten gerne nutzen wollen. Wir freuen uns sehr über weitere Meinungen und Ideen, die Architektin unseres Bauunternehmens hat relativ wenig Ideen geäußert.
N
nordanney06.07.25 14:13Roli8485 schrieb:
Westgarten gerne nutzen wollen.Warum ist der Wohnraum dann "oben" angesiedelt und nicht mit Zugang zum Westgarten?Ja, genau, wir haben die südliche Hälfte, unten im Plan.
Hier nochmal die ausgefüllte Vorlage:
Bebauungsplan/Einschränkungen
Größe des Grundstücks: 486m2 für unsere Hälfte
Hang: nein
Grundflächenzahl: auf dem Gesamtgrundstück dürfen max 175m2 dürfen überbaut werden
Baufenster, Baulinie und -grenze: siehe Plan
Anzahl Stellplatz: 2 je Wohneinheit
Geschossigkeit: 2 Vollgeschosse
Dachform: Walmdach, 30 grad
Ausrichtung: Zufahrt liegt im Westen
Anforderungen der Bauherren
Kein Keller, 2 Geschosse
Anzahl der Personen: 2 Erwachsene, zwei Kinder (3 und 0 Jahre alt)
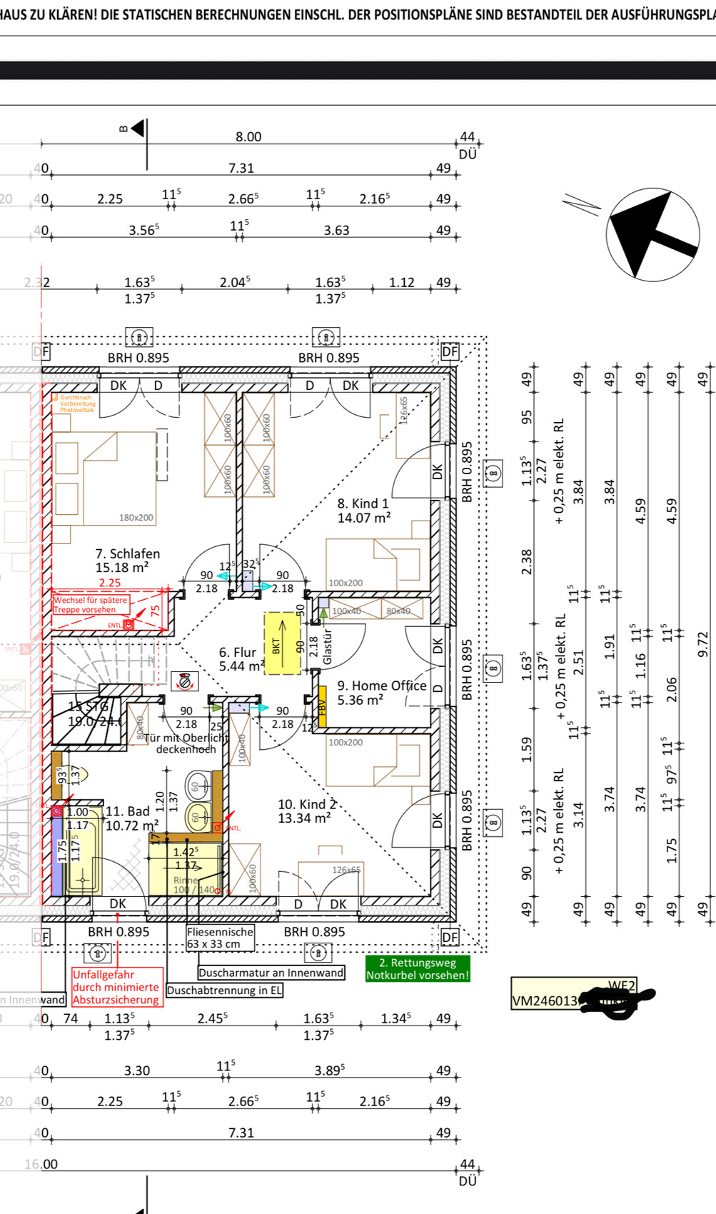
Raumbedarf im EG: offener Wohn-Essbereich, Küche, Hauswirtschaftsraum, Gäste-WC, OG: zwei Kinderzimmer, Schlafzimmer, Homeoffice, Badezimmer
Büro: Homeoffice
Hausentwurf
Von wem stammt die Planung:
- Raumaufteilung von uns privat, besprochen mit Bauingeneurin und Architekt des Bauunternehmens.
Was gefällt besonders? Licht von allen drei Seiten
Was gefällt nicht? Hauswirtschaftsraum abgehend vom Wohnzimmer nicht ideal
Hier nochmal die ausgefüllte Vorlage:
Bebauungsplan/Einschränkungen
Größe des Grundstücks: 486m2 für unsere Hälfte
Hang: nein
Grundflächenzahl: auf dem Gesamtgrundstück dürfen max 175m2 dürfen überbaut werden
Baufenster, Baulinie und -grenze: siehe Plan
Anzahl Stellplatz: 2 je Wohneinheit
Geschossigkeit: 2 Vollgeschosse
Dachform: Walmdach, 30 grad
Ausrichtung: Zufahrt liegt im Westen
Anforderungen der Bauherren
Kein Keller, 2 Geschosse
Anzahl der Personen: 2 Erwachsene, zwei Kinder (3 und 0 Jahre alt)
Raumbedarf im EG: offener Wohn-Essbereich, Küche, Hauswirtschaftsraum, Gäste-WC, OG: zwei Kinderzimmer, Schlafzimmer, Homeoffice, Badezimmer
Büro: Homeoffice
Hausentwurf
Von wem stammt die Planung:
- Raumaufteilung von uns privat, besprochen mit Bauingeneurin und Architekt des Bauunternehmens.
Was gefällt besonders? Licht von allen drei Seiten
Was gefällt nicht? Hauswirtschaftsraum abgehend vom Wohnzimmer nicht ideal
nordanney schrieb:
Warum ist der Wohnraum dann "oben" angesiedelt und nicht mit Zugang zum Westgarten?Danke für die Rückmeldung. Wir wollten gerne eine überdachte Terrasse vor der Küche, damit man abends auch mal draußen essen kann und wollten nicht jedes Mal alles quer durch die Wohnung tragen. Nach Süden oder Osten ist noch eine kleinere Sitzgelegenheit geplant, um vormittags mal einen Kaffee draußen zu trinken o.ä.
N
nordanney06.07.25 14:42Roli8485 schrieb:
Danke für die Rückmeldung. Wir wollten gerne eine überdachte Terrasse vor der Küche, damit man abends auch mal draußen essen kann und wollten nicht jedes Mal alles quer durch die Wohnung tragen.
Nach Süden oder Osten ist noch eine kleinere Sitzgelegenheit geplant, um vormittags mal einen Kaffee draußen zu trinken o.ä.Dann überleg Dir Deinen Lebensrhythmus mit zwei Kindern. Welchen Gartenteil werden sie nutzen und welche Wege dafür gehen? Denk nicht nur an Dein privates gemütliches Käffchen, sondern ans typische Familienleben - mit großer Terrasse vor der Küche wage ich die kühne Behauptung, dass der Weg für die gesamte Familie dauerhaft durch die Küche gehen wird. Ich würde daher das Wohnzimmer dort platzieren.Aber vielleicht ist Euer Familienleben anders ausgerichtet. Dann kann es Sinn machen.
Ähnliche Themen