Hast recht, ich hatte etwas zu lang geplant. Wenn man Ankleide und Heimkino wieder kleiner macht (wie bei dir), passt es aber. Alles im Baufenster. Wenn dir dein Grundriss gefällt und du viel Nordost Garten willst, ist es ja ok.

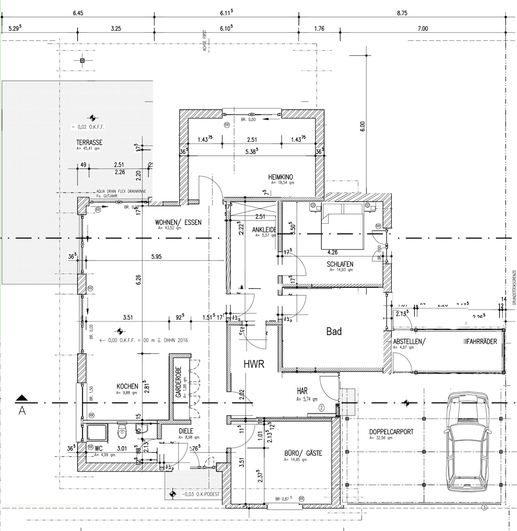
Überdenke dennoch mal den dunklen Flur zum Heimkino (den hätte ich mit einem Fenster versehen und das Regal auf die andere Seite gestellt bzw. hätte ich ihn ganz eliminiert) und die gefangene Ankleide/ 3 Türen im Schlafzimmer. Du könntest z.B. die Ankleide in die Mitte des Bungalows ziehen.

Das sind alles nur ganz spontane "Kritzeleien", die dir aufzeigen sollen, dass noch so viel mehr Möglichkeiten bestehen und du irgendwie festgefahren bist auf deinen jetzigen Grundriss. Dir will ja keiner was böses hier. Du fragst nach Verbesserungsvorschlägen und Meinungen und wir präsentieren sie hier. Mal netter, mal direkter.
Überdenke dennoch mal den dunklen Flur zum Heimkino (den hätte ich mit einem Fenster versehen und das Regal auf die andere Seite gestellt bzw. hätte ich ihn ganz eliminiert) und die gefangene Ankleide/ 3 Türen im Schlafzimmer. Du könntest z.B. die Ankleide in die Mitte des Bungalows ziehen.
Das sind alles nur ganz spontane "Kritzeleien", die dir aufzeigen sollen, dass noch so viel mehr Möglichkeiten bestehen und du irgendwie festgefahren bist auf deinen jetzigen Grundriss. Dir will ja keiner was böses hier. Du fragst nach Verbesserungsvorschlägen und Meinungen und wir präsentieren sie hier. Mal netter, mal direkter.
ypg schrieb:
Bau es so wie geplant und in 3 Jahren weißt Du, was gemeint ist 😉Ja, aber dann ist das Grundstück halt versaut - meine Meinung auch. Sorry, falls ich schon Gesagtes wiederhole: Ein Entwurf vom Architekten wäre vermutlich eine Befreiung.
K a t j a schrieb:
Ja, aber dann ist das Grundstück halt versaut - meine Meinung auch.
Sorry, falls ich schon Gesagtes wiederhole: Ein Entwurf vom Architekten wäre vermutlich eine Befreiung.Gut, dass es da auch unterschiedliche Ansichten gibt.
andere Lösungsansätze hast du nicht?
by the way: Das ist ein Architektenentwurf.
I
Sorrow87 schrieb:
andere Lösungsansätze hast du nicht?Viel zu viel Gegenwind Deinerseits, um hier Vorschläge einzubringen. Sorrow87 schrieb:
by the way: Das ist ein Architektenentwurf.Wie schade. Der hat offenbar keinen Sinn für den Garten als Lebensmittelpunkt.K a t j a schrieb:
Viel zu viel Gegenwind Deinerseits, um hier Vorschläge einzubringen.Das finde ich nicht. Der Ton ist ja von Anfang an auch rau von der anderen Seite.
Würfel hat sich super von sich aus mit Vorschlägen eingebracht, die wir in unserer weiteren Planung mit einfliesen lassen. Da bin ich sehr dankbar für.
Ich erkläre, warum etwas so geplant wurde, wie es auf der Zeichnung nun ausschaut. Ich will auch keinen gratis Entwurf mit dem ich zur Behörde rennen kann.
Ich erwarte einfach nur etwas mehr als „dann ist das Grundstück halt versaut.“
Dann hört man wiederum „Jeder Jeck is anders.“
Das ist alles nur die Problembeschreibung und nicht die Lösung.
Das alles bringt niemanden weiter.
Sorrow87 schrieb:
Ich erwarte einfach nur etwas mehr als „dann ist das Grundstück halt versaut.“
Im Grunde habe ich den Kern des Problems schon genannt so wie andere vor mir auch. Der Lebensmittelpunkt eines Hausbesitzers ist die Terrasse mit dem umgebenden Garten. Dieser ist beim letzten Entwurf in 2 Teile zergliedert. Das sorgt einerseits für unnötige Enge / Nähe zum Nachbarn und andererseits für einen schlecht zugänglichen Nordostteil. Das versaut das Grundstück.Für Lösungen ist Dein Architekt zuständig, obwohl einige hier auch ab und zu welche präsentieren. Aber das ist nicht unsere Aufgabe. Wir zeigen nur Probleme auf oder loben gelungene Entwürfe.
Ähnliche Themen