Grundriss Bungalow 172 m2 in Brandenburg südlich von Berlin

4,80 Stern(e) 8 Votes
Zuletzt aktualisiert 27.11.2025
Sie befinden sich auf der Seite 18 der Diskussion zum Thema: Grundriss Bungalow 172 m2 in Brandenburg südlich von Berlin
>> Zum 1. Beitrag <<

N

Neubau2022

Noch eine Bemerkung, da ihr einen Pfettendach haben werdet. Der ist natürlich super für Photovoltaik geeignet, kann man beide Seiten voll machen. Falls ihr das vor habt, überlegt ob ihr nicht die teuren Tondachziegeln weglässt und eine günstigere Lösung macht.
 
Y

ypg

Ich sehe das wie @Würfel*
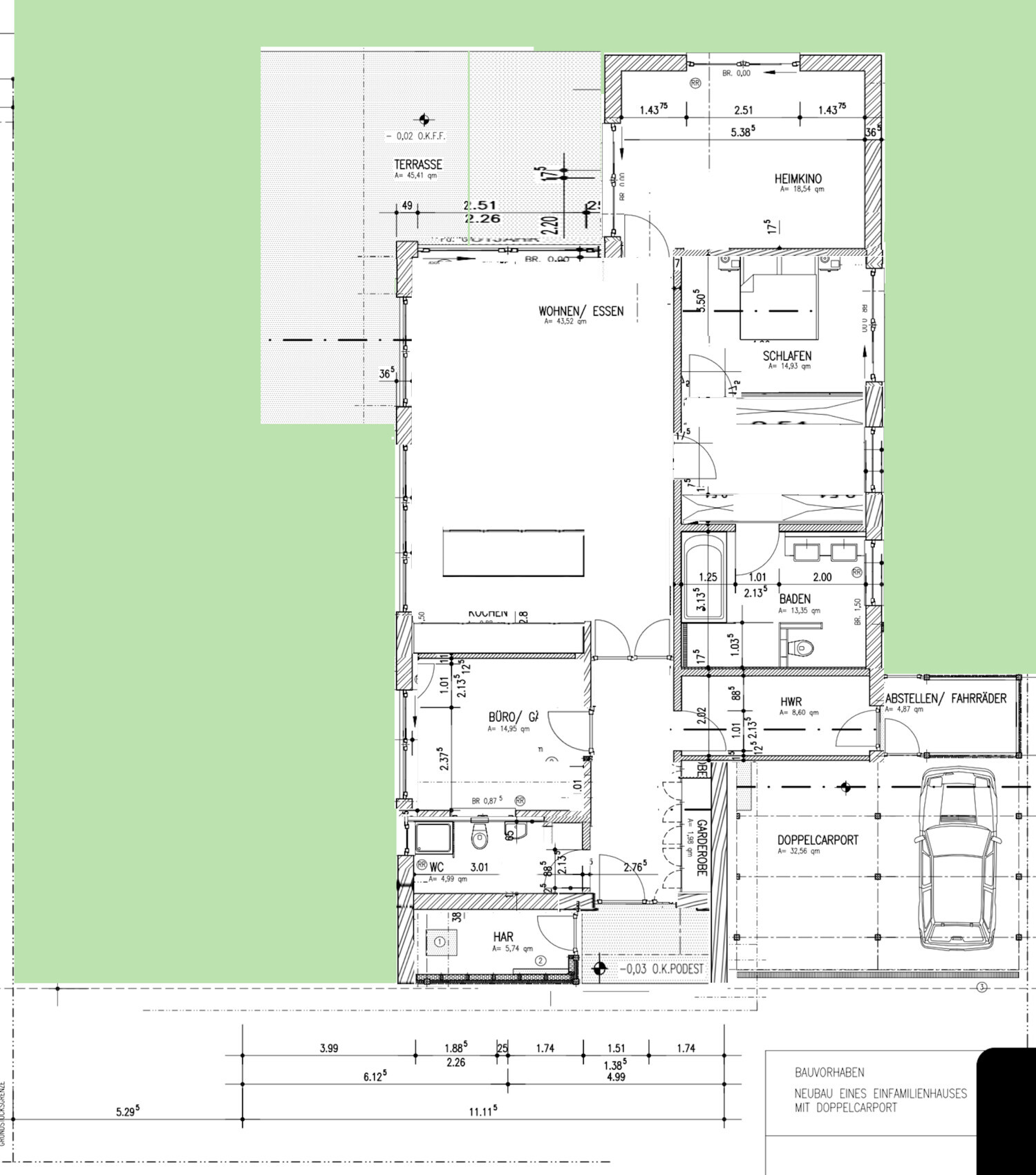
da geht es weniger ums Gefallen, als dass das Grundstück versaut wird. Auch wenn man einen Austritt im Schlafzimmer für den Morgengruss einplant, ist die Fläche, wohlgemerkt im NO kaum zu nutzen. Der Raum „Heimkino“ trennt außerdem das Grundstück in zwei Hälften. Die Konsequenz ist, dass es im SW-Garten eher eng wird. Vom restlichen Grundstück planoben hat man kaum etwas. Noch nicht mal Sichtkontakt von der Terrasse aus, geschweige denn vom Innenraum, außer dem Heimkinofenster. Heimkino selbst nutzt man aber eben nicht über den Tag als Aufenthaltsfläche, sondern ist ja eher einer Funktion gedacht.
Dem WZ-Bereich, der dann ja möbliert ist, geht die Terrasse aus… das sollte man mal möbliert eingezeichnet mit einem gängigen Tagesablauf überprüfen. Tagesablauf ist jetzt nicht: man chillt und lässt es sich gut gehen…
Schlafzimmer als Durchlaufort wird oft detailliert argumentiert, dass das nicht gerade dem noch Schlafenden fördernd ist.
 
S

Sorrow87

da geht es weniger ums Gefallen, als dass das Grundstück versaut wird.
Versaut ist ein harter Begriff. Sehen wir definitiv nicht so und das werden auch sicher nicht alle Experten der Bauplanung so sehen. Ich finde es gut, dass man knallhart seine Meinung schreibt, aber deine Formulierung unterstellt uns das "Versauen" oder als ob man hier doof sei. Die Formulierung ist mir auch zu objektiv und pauschal formuliert. Als ob diese Planung im Konsens aller Experten das Grundstück versaue. Ob sich für diese Majorität eine Mehrheit bildet, lasse ich mal dahingestellt.

Auch wenn man einen Austritt im Schlafzimmer für den Morgengruss einplant, ist die Fläche, wohlgemerkt im NO kaum zu nutzen.
Die Angelegenheit mit dem Morgengruß finden wir richtig Dufte. Das gibt uns mächtig viel. Das wollen wir so.
Für die Fläche im NO finden sich bei uns Ideen, da kommt eine Sauna hin und bei Notwendigkeit ein kleiner geräteschuppen, den wir planoben nicht sehen wollen. Ich denke, dass auch du Ideen finden könntest. Das traue ich dir zu.

Der Raum „Heimkino“ trennt außerdem das Grundstück in zwei Hälften.
Nicht ganz korrekt. Da misst du dem Heimkino zu viel zu. Das Haus trennt das Grundstück in einem Bereich von ca. 20 m in zwei Hälften. Da wir nun mal einen Bungalow wollen, trennt halt recht viel Haus einen Teil des Grundstücks.

Die Konsequenz ist, dass es im SW-Garten eher eng wird.
Finden wir definitiv nicht zu eng. 5,29 Meter bis zur Grenze finde ich schon sehr passabel. Wir sind vermutlich mit die einzigen in dem Baufeld, die so ein Luxusproblem haben, weil wir eine so lange Grundstücksfront haben. Gerade dadurch haben wir die Möglichkeit HAR auszulagern und ein Doppelcarport zu planen. Ich möchte die Autos nicht auf zwei Seiten sehen. Für uns ein absolutes No-Go. Andere planen halt ihre Standardstadtvilla da hin und haben 4 bis 5 Meter auf der einen Seite und 3 Meter auf der anderen Seite. Den SW-Bereich kann man sich auch sehr schön gestalten. Das ist immer noch Standard. Optische Abgrenzungsmöglichkeiten vom Nachbar gibt es viele. Außerdem bauen die Nachbarn nach unten. Links von der Terrasse steht kein Haus. Da ist schon Wiese. Klar könnten wir weiter nach rechts bauen. Dann muss aber HAR wieder ins Haus. Der Abstellraum fehlt und wir haben kein Doppelcarport mehr. Dann wird Hauswirtschaftsraum wieder zu fett und das Heimkino bekommt ein Fragezeichen. Dann denkt man wieder Ina ein 1,5-Geschosser. No-Go. Bungalow, Heimkino und das große Bad ist ein Muss!

Vom restlichen Grundstück planoben hat man kaum etwas.
Sagst du, wir werden diesen Bereich ordentlich bepflanzen mit Bäumen, Blumen, Kräuter etc.. Das wird ein Blumen und Kräuter-Garten mit Hochbeeten. Das wird da oben kein nackter englischer Rasen. Da sind noch fast 10 Meter nach oben Platz. Soll ich die etwa nicht nutzen, weil ich sie nicht sehen kann?

Noch nicht mal Sichtkontakt von der Terrasse aus, geschweige denn vom Innenraum, außer dem Heimkinofenster.
Im oberen Bereich des Wohnraums werden kleine Sitzmöglichkeiten stehen, um ein Buch zu lesen oder mal Gespräche Abends mit Freunden oder in Zweisamkeit beim Kamin zu führen. Darunter steht ein langer Esstisch. Wir können super nach Westen schauen. Das ist der beste Blick. Man sieht man ins Baufeld. Es ist flach in Brandenburg. Wir haben keine Gebirge, die wir sehen, wir sehen eigentlich nur entfernte Einfamilienhäuser und Wolken. Weit entfernt auch mal ein Windrad ;) Das Haus vom Nachbar steht vom Wohnbereich sogar eher in Blickrichtung Süden, da er zweigeschossig und direkt an die Baugrenze baut. Das sehen wir von dem Fenster des Gästebads und von der Küche.

Richtung NW und Norden stehen alte drei bis viergeschossige Ruinen von Blockbauten, die bald abgerissen werden. Da kommt aber eine Kita und dreigeschossige Wohnanlagen für Senioren hin. Der Blick wird nicht der Allerbeste sein. Ins Baufeld Richtung Westen wird es schöner.

Wer sagt außerdem, dass die Terrasse nach oben hinter das Heimkino nicht noch erweitert wird und wir da auch private Sitzmöglichkeiten draußen schaffen werden. Es wird eine Art Lounge draußen geplant und einen typischen Esstisch auf der Terrasse, die man jetzt eingezeichnet sieht. So dass man am Heimkino vorbeischauen könnte. Aber eigentlich interessiert eher der Blick nach Westen.

Heimkino selbst nutzt man aber eben nicht über den Tag als Aufenthaltsfläche, sondern ist ja eher einer Funktion gedacht.
Das Heimkino wird ein zentraler Ort des Alltags, wenn wir nicht essen und kochen. Wir sind Film- und Musikfans und Zocken gern. Die Abgrenzung des Raums vom Wohnen erfolgt nur aus audiophilen Gründen. Diesen Raum werden wir sehr oft nutzen. Mehr als du es dir denken kannst. Es sollte in den Norden. Wir wollen den Südwesten nutzen. Das ist Abendsonne.

Wir wollen diese Flächen in den Räumen und wir wollen das Heimkino und wir wollen es ebenerdig. Keine Treppen, nirgends. Einen riesigen viereckigen Klotz mit Walmdach wollen wir nicht (mehr). Gerade diese lockere Struktur. Für etwas vorne raus und Heimkino eingerückt hinten, locket das lange Gebäude aus. Doppelcarport soll es auch sein. Das bisschen Wand vom Heimkino ist uns das Heimkino wert.

Tagesablauf ist jetzt nicht: man chillt und lässt es sich gut gehen…
Oh doch. Du nicht? Zwar nicht nur, aber so sehen wir das ;) Bisher leben wir in unserer freien Zeit sehr gut. Garten gestalten, hier und da am Wochenende fürs Haus etc. werkeln und gut kochen zählt da auch zu.

Schlafzimmer als Durchlaufort wird oft detailliert argumentiert, dass das nicht gerade dem noch Schlafenden fördernd ist.
Feng Shui Kundige werden die Hände über dem Kopf zusammenschlagen. Wohnzimmer = Durchgangszimmer, Schlafzimmer = Durchgangszimmer mit 3 Türen. Aber zeichne doch mal die Möbel in Küche und Wohnen/Essen ein, damit wir wissen wie du dir das vorstellst.
Joa, irgendeinen Tod stirbt man dann wohl immer. Gut, dass uns Feng Shui mal so gar nicht interessiert. Mehr Halbwissenschaft als Wissenschaft. Sorry, dafür sind wir zu sehr Naturwissenschafter.

Wir finden die Aufteilung unseres Schlafbereichs äußerst gut gelungen. Daran wird sich nichts ändern. Es gibt ein Gästebad, wo man sich dann auch duschen und die Zähne putzen kann, sollte der andere schon lange im Land der Träume verweilen. Plant man das private Bad begehbar vom Flur, sorgt man sich über zu lange Wege und empfiehlt, dass man ja auch dies vom Schlafzimmer begehbar machen kann, um sich Wege und Diele sparen kann. Plant man dann so wie wir, wird sich um Feng Shui und den Durchgangsverkehr besorgt. Was denn nu???

Welchen Durchgangsverkehr überhaupt? Wir sind zu weit und bleiben zu zweit. Es wird in unsrer Wohnung sicher nicht wie auf der Autobahn bei Ferienbeginn zugehen. Wenn wir besuch haben, sind es in der Regel nicht mehr als vier Personen, die nach 6 h wieder verschwinden.

Das Bad soll ja außerdem gerade den Private-Spa nach Hause bringen. Daher auch die Abgrenzung. Die Badewanne ist dort etwas zu lang bemessen. Die Dusche wird 1,13 * 2,26 m.

Wohnbereich und Schlafzimmer bei einem Zwei-Personen-Haushalt als Durchgangsraum anzusehen ist für uns sehr fragwürdig. Sitzt man zusammen, läuft keiner wo durch. Liest der eine ein Buch und der andere zockt, wird sich der Buchleser sicher nicht lautstark über denjenigen beschweren, der gerade aufs Klo muss oder Durst hat.
Ist der eine mal krank und schlummert im Schlafzimmer oder kommt jemand später nach Hause, kann man, wie gesagt, aufs Gästebad zurückgreifen.

Das Argument zieht wirklich nicht.
 
Y

ypg

Versaut ist ein harter Begriff.
Ja, aber so ist es ja.
Das Argument zieht wirklich nicht.
Welches?

Nur mal so als Beispiel
Wir finden die Aufteilung unseres Schlafbereichs äußerst gut gelungen. Daran wird sich nichts ändern.
Das habt ihr zum ersten Entwurf auch gesagt… alles toll und durchdacht…. Sorry, aber Deine Reflektion zu Kritik lässt zu wünschen übrig.
Aber:
Bau es so wie geplant und in 3 Jahren weißt Du, was gemeint ist ;)
 
W

Würfel*

Du fühlst dich angegriffen, das verstehe ich. Trotzdem solltest Du deinen Grundriss nicht aufs Blut verteidigen. Sei nochmal offen für neue Ideen. Wenn Du schreibst, dass die Süd-West-Seite das Sahnestück ist, dann schaffe dir da Raum für den Garten. Du hast ein schönes großes Grundstück, da kann man mehr rausholen als 5,29 m. Du weißt nie, was dem Nachbarn oder einem Nachfolger mal einfällt. Er kann dir sowohl einen Schuppen vor die Nase setzen als auch einen Spielplatz oder Pool, in dem seine Kinder lautstark plantschen. Oder sogar irgendwann ein Haus.

Ich bin auch kein Feng Shui Typ, aber man fühlt sich eben geborgener und schläft besser, wenn man nicht auf 3 Seiten des Schlafzimmers Türen hat, insbesondere nicht hinterm Kopfteil. Eine zentrale großzügige Ankleide als Verteiler mit Fenster/Austritt nach draußen wäre m.E. deutlich praktikabler. Wir sind auch nur zu zweit und trotzdem ist es schön, wenn einer früher raus muss oder später ins Bett kommt und nicht zwischen Bad und Ankleide hin und her rennt sondern den anderen schlafen lässt.

Daher hier mal eine neue Idee. Habe eigentlich nur Tetris gespielt mit deinen Räumen. Gönn dem Medienzimmer ein Süd-Westfenster mit Rollladen, vielleicht wollt ihr das irgendwann mal anderweitig nutzen. Im Vergleich siehst du, wie viel Süd-Westgarten du gewinnst. Im Nord-Ostgarten kannst du ja eine Hecke oder einen hohen Zaun ziehen und dir da im geschützten Bereich zwischen Sauna und Abstellraum eine Sauna bauen. Für einen Schuppen ist auch ausreichend Platz.


Grundriss eines Einfamilienhauses mit Wohn- und Essbereich, Schlafzimmer, Bad und Terrasse



Grundriss eines Einfamilienhauses mit Terrasse und Carport
 
S

Sorrow87

Du fühlst dich angegriffen, das verstehe ich. Trotzdem solltest Du deinen Grundriss nicht aufs Blut verteidigen. Sei nochmal offen für neue Ideen.
Liegt wohl in der Natur von uns Menschen :D

Bin ich.

Wenn Du schreibst, dass die Süd-West-Seite das Sahnestück ist, dann schaffe dir da Raum für den Garten. Du hast ein schönes großes Grundstück, da kann man mehr rausholen als 5,29 m.
Wir lieben es aber auf beiden Seiten gerade diese Nischen zu haben. Wir brauchen diese großen Flächen nicht. Ich verstehe das Argument jedoch voll und ganz und kann es total verstehen, dass anderes das anders haben wollen. Wir wollen lieber den hinteren Teil mit Nutzpflanzen bepflanzen.
Im Süd-Westen muss das nicht so ausgeprägt sein. Auf der Schlafzimmer-Seite wollen wir auch noch eine versteckte Außendusche haben und eventuell noch andere Wellness-Spielerein und dazu passende Bepflanzung und Gestaltung. Ich möchte dort beim Raustreten auch Raum haben.

Gönn dem Medienzimmer ein Süd-Westfenster mit Rollladen, vielleicht wollt ihr das irgendwann mal anderweitig nutzen.
Da kommt der TV hin. Fenster hinter TV ist nicht gut. ;) Das Medienzimmer wird mit der Raum mit der meisten Nutzung sein. Daher das Fenster gen Nordwesten. Mit mehr Aussicht am Tag, wenn man gammelt und zockt. Schaut man einen Film wird abgedunkelt. Das Heimkino muss ja in die Länge eingerichtet werden. Wo man reinkommt steht linkseitig der TV und Frontboxen und nach recht die Couch mittig bis im hinteren Drittel. Im gesamten Raum wird ein Soundsystem installiert. Kabelverlegung in Decken und Wänden. Der Raum wird nie eine andere Nutzung bekommen.

Daher hier mal eine neue Idee. Habe eigentlich nur Tetris gespielt mit deinen Räumen.
Danke dafür. Das sieht gut aus, aber wir haben nur ein Baufenster mit 20 m Tiefe x Frontlänge. Das Carport muss sogar 5 m von der Straßenbegrenzung entfernt sein. Also 1 m hinter der Baugrenze. Das Haus wäre zu lang und der Stellplatz würde so nicht genehmigt werden. In der Nähe der Terrasse wollen wir das Auto nicht sehen. Es soll ein Doppelcarport bleiben.

Mit dem HAR im Haus, lassen sich unsere Räume nicht richtig anordnen. Ein HAR außerhalb des Hauses darf jedoch nicht an die Grenze ran gebaut werden. Daher die Lösung mit HAR, Doppelcarport und der Abstellfläche daneben.

Es gab vom Architekt noch den Vorschlag das Heimkino im Südwesten anzubringen. Da passt aber nur ein Stellplatz auf eine Seite und der HAR hätte wieder ins Haus gemusst und wir nehmen uns die schönen Fenster im Südwesten. Daher haben wir das vom Architekt abgelehnt.

Ich sehe da irgendwie keine andere Auflösung.

Ich bin auch kein Feng Shui Typ, aber man fühlt sich eben geborgener und schläft besser, wenn man nicht auf 3 Seiten des Schlafzimmers Türen hat, insbesondere nicht hinterm Kopfteil. Eine zentrale großzügige Ankleide als Verteiler mit Fenster/Austritt nach draußen wäre m.E. deutlich praktikabler. Wir sind auch nur zu zweit und trotzdem ist es schön, wenn einer früher raus muss oder später ins Bett kommt und nicht zwischen Bad und Ankleide hin und her rennt sondern den anderen schlafen lässt.
Da gebe ich dir Recht. Die Lösung von dir sieht da sehr gut aus und deine Argumentation ist nachvollziehbar und du präsentierst eine Lösung. So finde ich den Austausch hier auch gut. Aber allgemeingültig raushauen "da geht es weniger ums Gefallen, als dass das Grundstück versaut wird." oder "Feng Shui Kundige werden die Hände über dem Kopf zusammenschlagen.", was nicht von dir kam, finde ich dabei unpassend, leicht von oben herab und wenig förderlich für eine lösungsorientierte Diskussion.

Es heißt immer, man könne sich in Foren Hilfe und Unterstützung suchen. Aber oft habe ich das Gefühlt, dass es auch einigen darum geht sich durch "Wer haut den besten Spruch raus?" oder "Wer schreibt am sprachlich ausgefeiltestem?" um eine Art Selbstdarstellung geht ohne richtige Hilfe zu leisten. Denkanstöße sind gut, aber ich erwarte auch konkrete Lösungen.

Natürlich sucht man hier Hilfe und Unterstützung, wenn man nicht weiter weiß und man hofft natürlich auch Geld zu sparen, indem man klüger und vorbereiteter an die Sache herangeht. Das ist doch gerade der Vorteil von einem Austausch in so einem Forum. Ich erwarte in so einem Forum halt eher sowas wie:

Thread-Ersteller hat Problem X und stellt eine Frage --> Forenteilnehmer XYZ lesen --> Habe ich keine Ahnung, lasse ich die Kommentierung, habe ich Ahnung, überlege ich mir, ob und inwieweit ich helfen kann ---> Forenteilnehmer XYZ schreibt eine Antwort mit präziser unausgeschmückter Problemfeststellung und einfachen verständlichen Lösungsansätzen.

In vielen Kommentierungen, auch anderer Foren anderer Themen sehe ich den fast nur ausgefeilte Prosen zur Problemfestellung und Problembeschreibung. Lösungsansätze sind oft nicht und wenn dann sehr kurz gefasst, sodass man immer nochmal nachfragen muss.
 
Zuletzt aktualisiert 27.11.2025
Im Forum Grundrissplanung / Grundstücksplanung gibt es 2538 Themen mit insgesamt 88032 Beiträgen


Ähnliche Themen zu Grundriss Bungalow 172 m2 in Brandenburg südlich von Berlin
Nr.ErgebnisBeiträge
1130 m² Bungalow mit Doppelcarport bei 600m² Grundstück? - Seite 364
2Grundstück nehmen oder warten und Risiko in kauf nehmen? - Seite 222
3Planung eines Einfamilienhaus (KG + EG +OG) auf 480m² Grundstück - Seite 376
4Platzierung auf dem Grundstück - Seite 543
5Grundriss-Planung und Platzierung - Einfamilienhaus ca. 200qm auf 900qm Grundstück - Seite 255
6Sauna im Haupt-Bad oder im Keller? - Seite 634
7Doppelhaushälfte 1959 Kaufen und Sanieren? Vorschläge/Tipps erwünscht 24
8Fenster Brüstungshöhe 130 im Schlafzimmer / Arbeitszimmer? - Seite 1593
9Grundriss Einfamilienhaus barrierefrei fürs Alter mit Eltern-Schlafzimmer im EG - Seite 444
10Grundriss Haus / Grundstück 28
11Grundriss Schlauchhaus L-Form Dreieckiges Grundstück samt Eiche - Seite 15529
12Kauf von Doppelhaushälfte mit Nordausrichtung Garten - Welche Seite? 10
13Grundrissplanung mit enger werdendem Grundstück - Seite 223
14Grundstück die Zweite - Bitte um Beurteilung - Seite 644
15Schmales Grundstück und Einfriedung - Hilfestellung 13
16Einfamilienhaus, Grundstück mit Nordausrichtung? 28
17Wie Grundriss planen bei Garten im Osten und Zufahrt im Westen 24
18Grundstück mit Trafo Station 27
19Trapezförmiges Grundstück: Erste Ideen / Verbesserungsvorschläge 13
20Bauvorhaben auf Grundstück mit leichter Hanglage - Seite 324

Oben