Grundriss Bungalow 140qm - Anregungen?

4,70 Stern(e) 7 Votes
Zuletzt aktualisiert 19.11.2025
Sie befinden sich auf der Seite 13 der Diskussion zum Thema: Grundriss Bungalow 140qm - Anregungen?
>> Zum 1. Beitrag <<

S

Schniebi

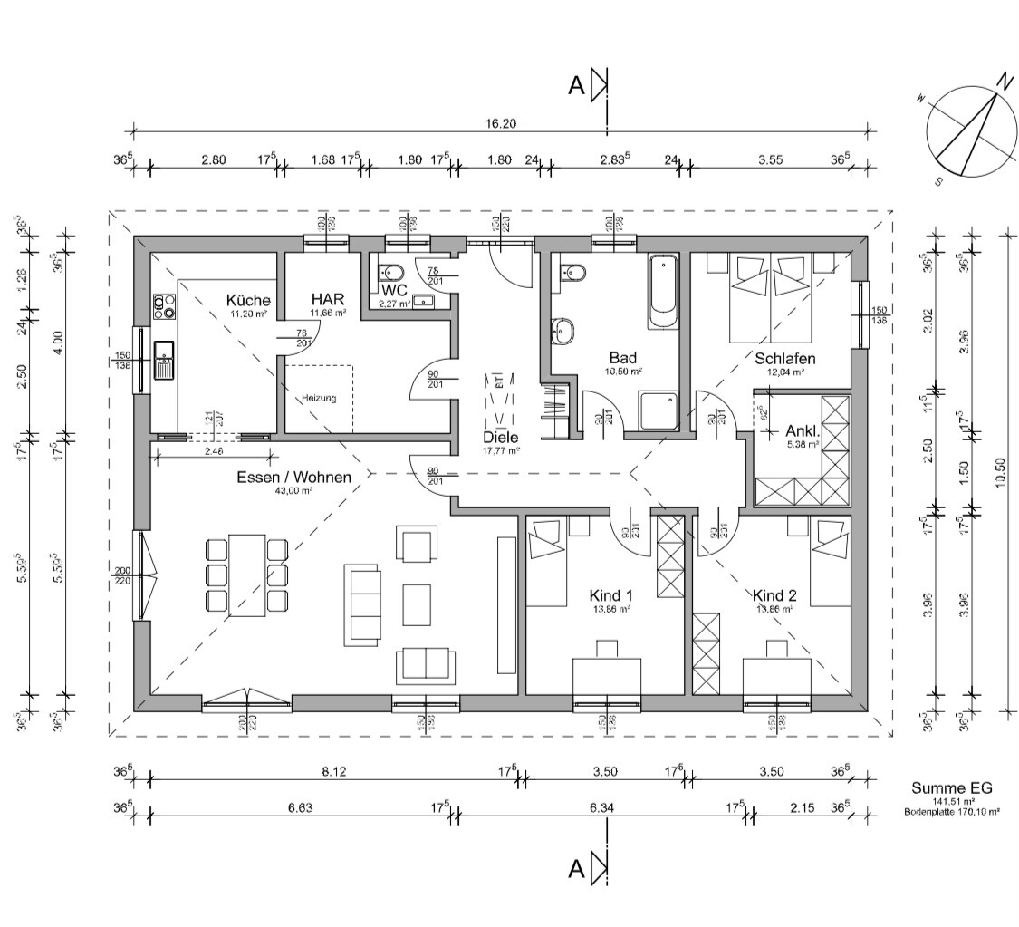
Hallöle zusammen

nachdem zu Hause die Fetzen geflogen und zwischenzeitlich diverse Änderungen durch das Architektenbüro ergangen sind, gibt es seit heute Mittag einen neuen Entwurf, der uns beide wirklich sehr anspricht ...

die Dusche im Gäste-WC musste (zum Glück?!) weichen ...

und hier isser nu :) ...

Grundriss eines Hauses mit Küche, Essen/Wohnen, Diele, Bad, Schlafen, Kind 1, Kind 2, Ankleide

Und? Was ist aus Deiner Hausplanung geworden?
 
S

Schniebi

Eine geradförmige Aus- ... äh... Einbuchtung hat Vorteile und dient als Überdachung wie auch wettergeschütztes Podest. Oder willst Du Wellblech an der Seite und drüber?
ehrlich gesagt will ich da momentan gar nichts haben :-/ ...
ob das dauerhaft effektiv ist, steht auf einem anderen Blatt ...
 
Zuletzt aktualisiert 19.11.2025
Im Forum Grundrissplanung / Grundstücksplanung gibt es 2536 Themen mit insgesamt 87981 Beiträgen
Oben