Hallo,
wir haben ein recht schmales Grundstück (15Meter im Durchschnitt) zur Verfügung und müssen da irgendwie unser Haus hinein planen. Nach Abzug der Bebauungsgrenze bleiben nur noch 9 Meter Platz für die Hausbreite. Das Grundstück hat eine längere Nord/Süd Ausrichtung.
Wir haben da natürlich nichts von der Stange bekommen und haben uns allein einen Grundriss ausgedacht. Uns ist es wichtig dass man die Küche notfalls vom Wohn-/Esszimmer(im Süden) abtrennen kann und dass wir einen möglichst großen Hauswirtschaftsraum haben.
Flur/Wohnzimmer Tür:
Zu erst dachten wir an schräge Tür ins Wohn-/Esszimmer, aber irgendwie wird das nicht gut aussehen, da die Küchenmöbel doch schon recht nah sind.)
Was könnte man ändern oder ganz anders machen?




wir haben ein recht schmales Grundstück (15Meter im Durchschnitt) zur Verfügung und müssen da irgendwie unser Haus hinein planen. Nach Abzug der Bebauungsgrenze bleiben nur noch 9 Meter Platz für die Hausbreite. Das Grundstück hat eine längere Nord/Süd Ausrichtung.
Wir haben da natürlich nichts von der Stange bekommen und haben uns allein einen Grundriss ausgedacht. Uns ist es wichtig dass man die Küche notfalls vom Wohn-/Esszimmer(im Süden) abtrennen kann und dass wir einen möglichst großen Hauswirtschaftsraum haben.
Flur/Wohnzimmer Tür:
Zu erst dachten wir an schräge Tür ins Wohn-/Esszimmer, aber irgendwie wird das nicht gut aussehen, da die Küchenmöbel doch schon recht nah sind.)
Was könnte man ändern oder ganz anders machen?
M
Musketier14.09.12 10:36Ich habe ein paar Anmerkungen dazu:
UG
Wo macht ihr die Garderobe hin? Habt ihr da genug Platz eingeplant?
Der Platz vorm Gäste-WC ist auch komplett unnutzbar.
OG
Flur: Also entweder schräg oder gerade, aber nicht so halb und halb gestückelt.
Man kommt die Treppe hoch und läuft auf eine halb gerade, halb schräge Wand zu.
Nach links kommen 2 schräge Wände, zum Schlafzimmer sind wieder 2 gerade Wände.
Die Kinderzimmer sind unterschiedlich groß.
Wie groß seid ihr?
Passt das mit den Betten + Badewanne unter den Dachschrägen?
Ansonsten müsstet ihr den Kniestock anheben.
Ist eine Garage/Carport/Stellplatz geplant?
Nicht das dann zwischen Garage und Haus nur/noch ein Durchgang von 20 cm ist.
Dann könnte unter Umständen ein längliches Haus auf dem schmalen Grundstück mehr Sinn machen.
UG
Wo macht ihr die Garderobe hin? Habt ihr da genug Platz eingeplant?
Der Platz vorm Gäste-WC ist auch komplett unnutzbar.
OG
Flur: Also entweder schräg oder gerade, aber nicht so halb und halb gestückelt.
Man kommt die Treppe hoch und läuft auf eine halb gerade, halb schräge Wand zu.
Nach links kommen 2 schräge Wände, zum Schlafzimmer sind wieder 2 gerade Wände.
Die Kinderzimmer sind unterschiedlich groß.
Wie groß seid ihr?
Passt das mit den Betten + Badewanne unter den Dachschrägen?
Ansonsten müsstet ihr den Kniestock anheben.
Ist eine Garage/Carport/Stellplatz geplant?
Nicht das dann zwischen Garage und Haus nur/noch ein Durchgang von 20 cm ist.
Dann könnte unter Umständen ein längliches Haus auf dem schmalen Grundstück mehr Sinn machen.
X
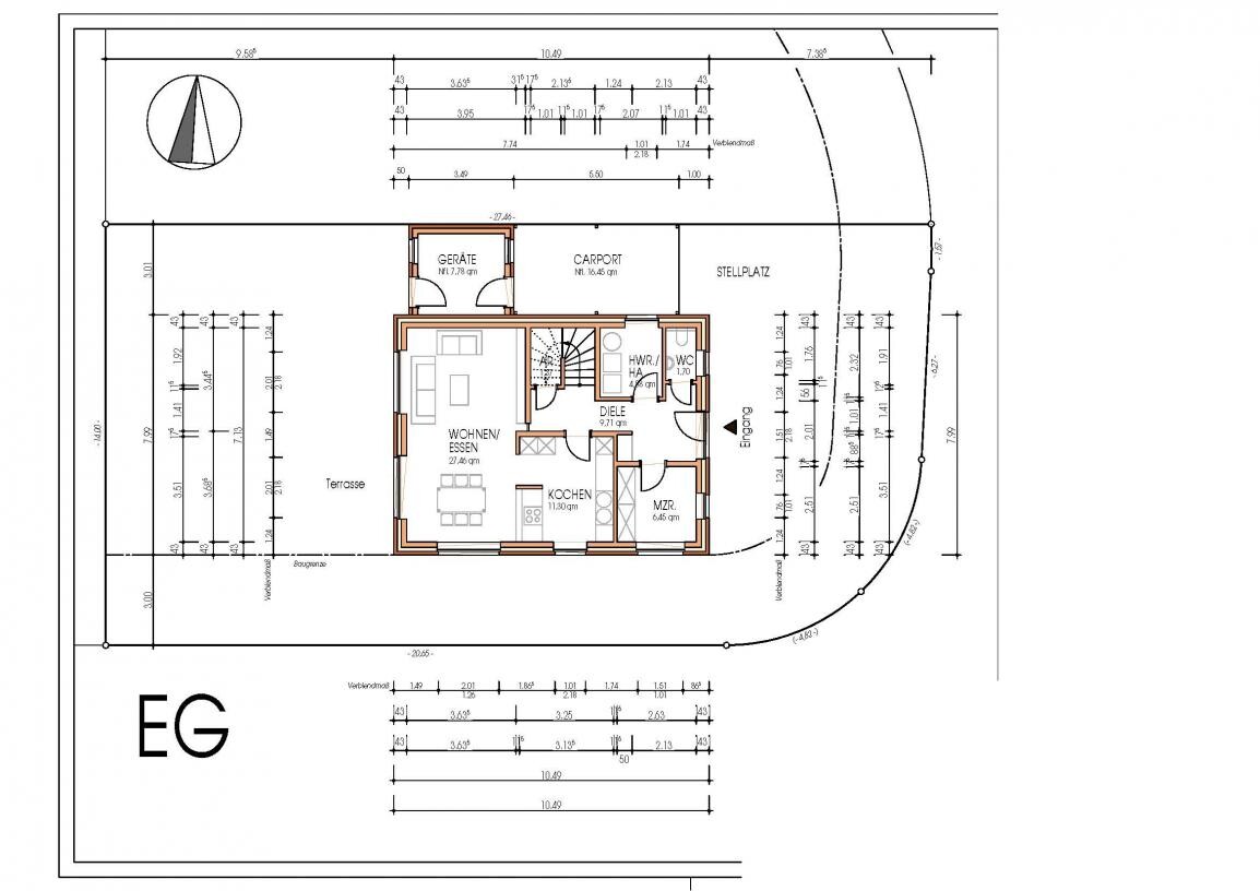
Xtreme100014.09.12 11:35Hallo Gigi,
ich kann die als Beispiel mal unseren Grundriss zeigen. Ob der nun besser ist, oder total daneben überlass ich mal jedem selbst. Denke gerade Grundrisse sind ja immer ganz individuell zusehen. Solange etwas bautechnisch keine Probleme macht, ist denke ich alles erlaubt was gefällt.
Kurze Erläuterung zu unserem Grundriss.
Grundstück: 27mx14m
Hausgröße 10,5mx8m
Unser Haus ist also eher ein kleines aber feines Häuschen. Wir haben bewusst den Wohn/Ess/Kochbereich kleiner gelassen, um zusätzlich Platz für einen Mehrzweckraum zu schaffen. Der sowohl als Lagerraum, Spielraum oder Büro genutzt werden kann.
Auch haben wir unser Wohnzimmer als Wohntasche gewählt, also ohne direkten Zugang. Zugang nur über die Küche, denn in der Küche und im Essbereich spielt sich unser Leben ab. Das Sofa ist nur für uns mal zum gemütlich liegen.
Im OG der "leere" Flurraum wird erst mal ne Lesenecke, und später ne Ecke für Spielsachen usw.
Aber ich bin sicher das ihr bei euren Voraussetzungen ein passenden Grundriss hinbekommt.




ich kann die als Beispiel mal unseren Grundriss zeigen. Ob der nun besser ist, oder total daneben überlass ich mal jedem selbst. Denke gerade Grundrisse sind ja immer ganz individuell zusehen. Solange etwas bautechnisch keine Probleme macht, ist denke ich alles erlaubt was gefällt.
Kurze Erläuterung zu unserem Grundriss.
Grundstück: 27mx14m
Hausgröße 10,5mx8m
Unser Haus ist also eher ein kleines aber feines Häuschen. Wir haben bewusst den Wohn/Ess/Kochbereich kleiner gelassen, um zusätzlich Platz für einen Mehrzweckraum zu schaffen. Der sowohl als Lagerraum, Spielraum oder Büro genutzt werden kann.
Auch haben wir unser Wohnzimmer als Wohntasche gewählt, also ohne direkten Zugang. Zugang nur über die Küche, denn in der Küche und im Essbereich spielt sich unser Leben ab. Das Sofa ist nur für uns mal zum gemütlich liegen.
Im OG der "leere" Flurraum wird erst mal ne Lesenecke, und später ne Ecke für Spielsachen usw.
Aber ich bin sicher das ihr bei euren Voraussetzungen ein passenden Grundriss hinbekommt.
@Musketier:
Das mit dem verschenkten Platz am WC stimmt. Da könne man nur ein Schlüsselkasten aushängen .Problem ist die breite der Küche. Das WC auf der anderen Seite im Hauswirtschaftsraum platziert würde ca. 3qm vom Hauswirtschaftsraum einnehmen.
Die Garderobe könnte teilweise noch unter die Treppe hin.
Das mit den Kinderzimmern ist schon Ok so. Wir haben ein Kind.
Die Eingänge habe ich extra so geplant, damit man auf die Wände immer noch jeweils ein Möbelstück hinstellen kann, ohne dass man beim Reinkommen ins Zimmer immer gegen guckt. Ob das so machbar ist, werde ich mal abwarten.
Ja die Badewanne.. ich bin 180cm groß würde das hinkommen? Sonnst müßte man sich da noch etwas überlegen. Bettgröße/Stellplatz ist OK so. Wir haben ca. 90cm Wand bis zur Schräge(1m Kniestock). Das müßte reichen.
@
Xtreme1000:
Das stimmt, Grundrisse sind immer Ansichtssache.
Danke für den Vorschlag. Ich bin schon am Überlegen, was man da bei uns draus einbringen könnte.
(Wenn man genug Platz zum Bauen hat, ist schnell ein Lieblings-Grundriss gefunden. Wenn es nicht so ist, wird es schwierig. Bei uns sind Bauplätze seit ein paar Jahren so gut, wie nicht vorhanden. Wir konnten uns zwischen viel zu großen/teuren, einen zu kleinen und diesen Grundstück entscheiden)
Das mit dem verschenkten Platz am WC stimmt. Da könne man nur ein Schlüsselkasten aushängen .Problem ist die breite der Küche. Das WC auf der anderen Seite im Hauswirtschaftsraum platziert würde ca. 3qm vom Hauswirtschaftsraum einnehmen.
Die Garderobe könnte teilweise noch unter die Treppe hin.
Das mit den Kinderzimmern ist schon Ok so. Wir haben ein Kind.
Die Eingänge habe ich extra so geplant, damit man auf die Wände immer noch jeweils ein Möbelstück hinstellen kann, ohne dass man beim Reinkommen ins Zimmer immer gegen guckt. Ob das so machbar ist, werde ich mal abwarten.
Ja die Badewanne.. ich bin 180cm groß würde das hinkommen? Sonnst müßte man sich da noch etwas überlegen. Bettgröße/Stellplatz ist OK so. Wir haben ca. 90cm Wand bis zur Schräge(1m Kniestock). Das müßte reichen.
@
Xtreme1000:
Das stimmt, Grundrisse sind immer Ansichtssache.
Danke für den Vorschlag. Ich bin schon am Überlegen, was man da bei uns draus einbringen könnte.
(Wenn man genug Platz zum Bauen hat, ist schnell ein Lieblings-Grundriss gefunden. Wenn es nicht so ist, wird es schwierig. Bei uns sind Bauplätze seit ein paar Jahren so gut, wie nicht vorhanden. Wir konnten uns zwischen viel zu großen/teuren, einen zu kleinen und diesen Grundstück entscheiden)
M
Musketier14.09.12 17:51gigi schrieb:
Das mit dem verschenkten Platz am WC stimmt. Da könne man nur ein Schlüsselkasten aushängen .Problem ist die breite der Küche. Das WC auf der anderen Seite im Hauswirtschaftsraum platziert würde ca. 3qm vom Hauswirtschaftsraum einnehmen.
Die Garderobe könnte teilweise noch unter die Treppe hin.Wenn alles hinten ist, schleppt man den Dreck eher durch die komplette Wohnung.
Eine Idee wäre von der Küche noch 20-30 cm abknapsen, das WC eher quadratisch machen. Dann wäre vor dem WC noch Platz für ein Schuhregal.
gigi schrieb:
Das mit den Kinderzimmern ist schon Ok so. Wir haben ein Kind.
Das bekommt dann sicher das größere Zimmer oder?
Wir haben versucht keine gemeinsame Wand zwischen Schlafzimmer und Kinderzimmer zu haben.
Soll ja nicht jeder alles hören. Egal wie rum.
Zur Dachschräge kann ich nicht viel sagen, da wir 2-geschossig bauen werden.
Bei meinen Eltern in einer Dachgeschosswohnung hatten wir zwischen 85 und 90cm Kniestock. Da hätte ich eher nicht mit dem Kopf unter der Schräge schlafen wollen. Meine Eltern haben das Bett ca. 30cm von der Wand weggestellt und den Stauraum dahinter nutzbar gemacht.
Bei euch sind es 10 cm mehr Kniestock. Die machen da natürlich auch recht viel aus.
Bei der Badewanne muß man natürlich beachten, dass zu den 1,80m noch ca. 10-20 cm Wannenhöhe hinzukommen, um sich aufrecht hinzustellen. Dann bist du fast bei 2 m und kannst nur in der vorderen Hälfte stehen.
Ich bin aber auch nur Laie und kann nicht beurteilen, was planerisch sinnvoll ist und was nicht.
Hallo,
meinen Gedanken zu dem Grundriss:
Ich finde du hast den begrenzten Raum schon sehr gut genutzt. Im Sinne von noch mehr Platz im Bereich WC/Garderobe könnte man sich überlegen auf zwei Türen zum Küchen/Wohnraum zu verzichten und nur die schräge (die mir persönlich besser gefällt) zu nutzen. Von dort ist man innerhalb einer Sekunde mitten in der Küche. So könnte man nämlich die Küchen/WC Wand noch etwas in Richtung Wohnbereich Verlegen und eine Nische zwischen Haustür und WC bekommen.
Ich hoffe ich habe mich verständlich ausgedrückt .
meinen Gedanken zu dem Grundriss:
Ich finde du hast den begrenzten Raum schon sehr gut genutzt. Im Sinne von noch mehr Platz im Bereich WC/Garderobe könnte man sich überlegen auf zwei Türen zum Küchen/Wohnraum zu verzichten und nur die schräge (die mir persönlich besser gefällt) zu nutzen. Von dort ist man innerhalb einer Sekunde mitten in der Küche. So könnte man nämlich die Küchen/WC Wand noch etwas in Richtung Wohnbereich Verlegen und eine Nische zwischen Haustür und WC bekommen.
Ich hoffe ich habe mich verständlich ausgedrückt .
Ähnliche Themen