Grundriss 10x10 mit 2 Vollgeschossen

4,70 Stern(e) 3 Votes
Zuletzt aktualisiert 25.11.2025
Sie befinden sich auf der Seite 5 der Diskussion zum Thema: Grundriss 10x10 mit 2 Vollgeschossen
>> Zum 1. Beitrag <<

G

Grym

Du kannst an einer Seite eine komplette Glasfront machen... Licht von 2 Seiten mit normalen Fenstern ist immer noch etwas besseres. Selbst zuhause ist das bei uns übrigens jetzt so und jeden Tag live verfolgbar. Wohnzimmer mit großen Fenstern bis auf ca. 2,60m, 3 sehr große Doppelflügel-Fenster und trotzdem ist es im Schlafzimmer mit 2 kleineren Fenstern heller, schöner, einfach besser. Am besten wäre natürlich natürliches Licht von 4 Seiten, aber 1 Seite sollte man vermeiden, falls möglich.
 
Koempy

Koempy

Die Treppe ist auf 17 Steigungen (d.h. 16 Stufen) ausgelegt und überwindet mit einem Auftrittsmaß von 28cm einen Höhenunterschied von 297,5 cm (17 x 17,5cm). Je nach Bodenaufbau OG und Dicke der Zwischendecke sollte man damit hinkommen und ansonsten muss noch etwas variiert werden im mm-Bereich pro Steigung.
Das wird aber eine sehr lange und Flache Treppe.
Bequemer wäre wahrscheinlich 16 Steigungen. Dann wäre die Steigung knapp bei 18,5.
Das Auftrittmaß würde ich dann in Richtung 27 cm verkürzen.
Da gibt es ein paar Regeln. Einfach googeln.
Aber die geplante Treppe wäre mir zu flach.
 
kbt09

kbt09

Hmm ... und, wenn das eine Podesttreppe sein soll, dann ist aber die Tiefe von 280 cm zu gering.

Ich habe meine Treppenbeispiele noch mal aktualisiert:

Grundriss eines Treppenhauses mit mehreren Treppenläufen, Raum 1 und Maßangaben.
 
Y

ypg

Licht von 2 Seiten mit normalen Fenstern ist immer noch etwas besseres.
Am besten wäre natürlich natürliches Licht von 4 Seiten, aber 1 Seite sollte man vermeiden, falls möglich.
Deinen Pauschalisierungen kann ich insoweit nur nachvollziehen, dass Du Regeln, Thesen und Richtlinien beim Informieren über den richtigen Hausentwurf aus dem Sinn gerissen hast, damit Du bei Deinen Plänen einen roten Faden hast.

Bezug zu den Fenstergrößen und -räumen sollte sein, aber nebenbei spielt auch der Nutzen der Räume, die Raumaufteilung sowie die Ausrichtungen eine Rolle. Außerdem sicherlich die Ansichten sowie der Hausstil.

Das miteinander geschickt zu kombinieren, gehört zum Entwerfen. Pauschalisierungen nicht.

Selbst zuhause ist das bei uns übrigens jetzt so
Das lese ich oft von Dir. Wenn mal ein Handwerker zu Dir sagt: haben wir immer so gemacht! solltest Du etwas gewarnt sein: es könnte sein, dass die neuen Regeln des Handwerks nicht beachtet werden

Das wird aber eine sehr lange und Flache Treppe.
Grym plant sie jetzt nur als Platzhalter und etwas größer ein, damit der spätere Planer mit den weiteren genannten Maßen hinkommt. Sie könnte also auch kleiner ausfallen.

Yvonne
 
P

Payday

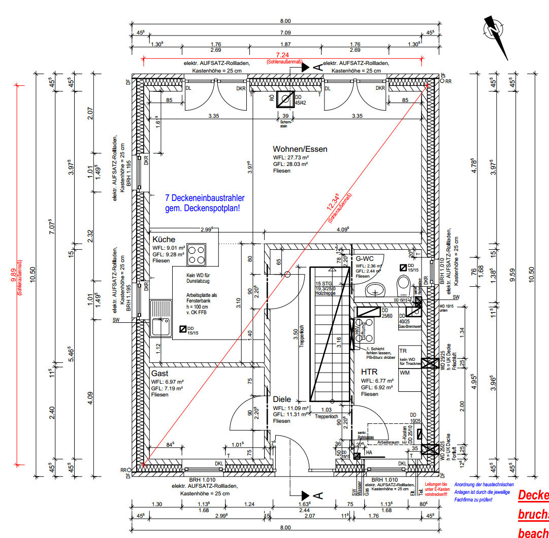
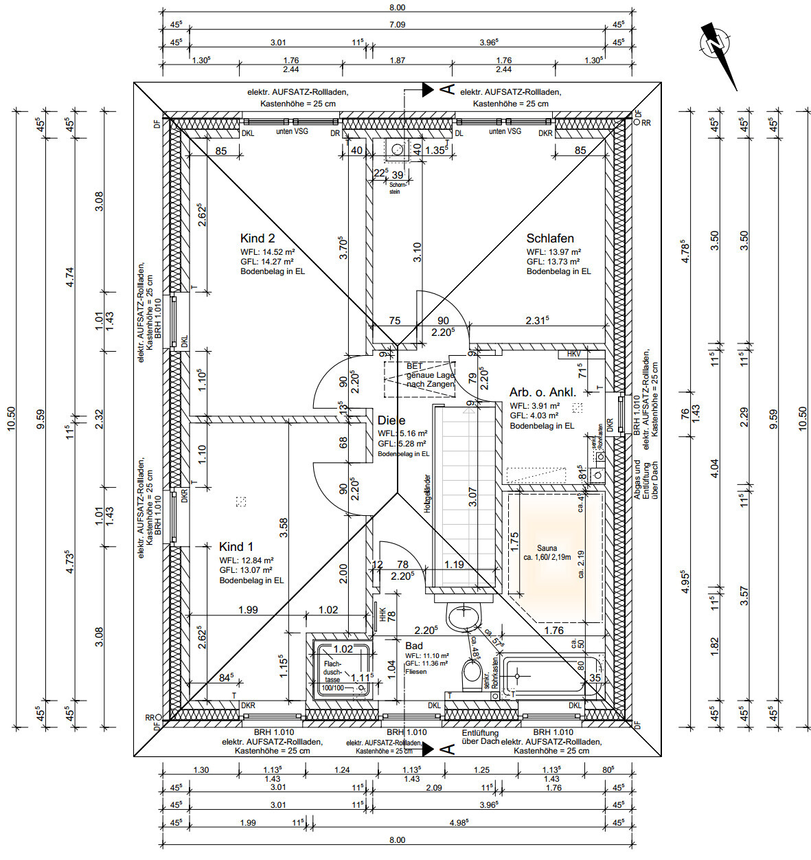
im Anhang habe ich jetzt mal die abgehackten Ausführungszeichnungen für unsere Stadtvilla gewählt. diese selbstgemachten Plänen gehen ja gar nicht.

Schwachpunkte bei uns:
- Hauswirtschaftsraum etwas zu klein, passt aber alles rein (Heizung, Lüftungsanlage, Waschmaschine,Trockner) und dazu 4x 60cm Schrank über die volle Höhe auf der Türseite. damit ist der Raum dann aber auch sehr ordentlich gefüllt
- durch die Sauna mußten wir im Bad tricksen. das Waschbecken hat keinen Vorwandkasten, so das der Abstand größer wird. das Kinderzimmer 1 hat wegen der Dusche einen ecke drin, dafür gibts eine tolle sofakuschel ecke.
- das Gästezimmer ist eigentlich teil der Küche, wodurch die offene Wohnküche gute 7qm kleiner ist als eigentlich geplant. dafür hat man ein kleines aber feines Gästezimmer mit bei.

Vorteile:
- beide Kinderzimmer haben von 2 Seiten licht.
- Schlafzimmer eine eine vernünftige Stellfläche für einen Schrank
- Abstellkammer oben
- Flur Erdgeschoss Platz für eine kommode hinter der Küchentür

Grundrissplan eines Hauses mit Wohnen/Essen, Küche, Gast, Diele, Treppe und Maßen.


Grundriss eines Hauses mit Kind 1, Kind 2, Schlafen, Diele, Arbeitszimmer, Bad und Sauna.
 
Zuletzt bearbeitet:
G

Grym

Deinen Pauschalisierungen kann ich insoweit nur nachvollziehen, dass Du Regeln, Thesen und Richtlinien beim Informieren über den richtigen Hausentwurf aus dem Sinn gerissen hast, damit Du bei Deinen Plänen einen roten Faden hast.

Bezug zu den Fenstergrößen und -räumen sollte sein, aber nebenbei spielt auch der Nutzen der Räume, die Raumaufteilung sowie die Ausrichtungen eine Rolle. Außerdem sicherlich die Ansichten sowie der Hausstil.

Das miteinander geschickt zu kombinieren, gehört zum Entwerfen. Pauschalisierungen nicht.

Das lese ich oft von Dir. Wenn mal ein Handwerker zu Dir sagt: haben wir immer so gemacht! solltest Du etwas gewarnt sein: es könnte sein, dass die neuen Regeln des Handwerks nicht beachtet werden
Nein, es macht, unabhängig von der Raumgröße und den Fenstergrößen eine Menge aus, ob das Licht von einer Seite oder von mehreren Seiten kommt. Auf die Belichtungssituation in Kinderzimmern haben wir auch in unendlich vielen Musterhäusern geachtet. Licht von 2 Seiten ist immer besser als Licht von nur einer Seite.
 
Zuletzt aktualisiert 25.11.2025
Im Forum Grundrissplanung / Grundstücksplanung gibt es 2536 Themen mit insgesamt 88015 Beiträgen


Ähnliche Themen zu Grundriss 10x10 mit 2 Vollgeschossen
Nr.ErgebnisBeiträge
1Idee Schlafzimmer - Bett / Schrank Anordnung 32
2Größe vom Schlafzimmer und Kinderzimmer - Seite 238
3Einfaches Einfamilienhaus hofft auf Tipps zur Optimierung - Seite 331
4Kinderzimmer und Schlafzimmer - Welche Größe ist zu empfehlen? 56
5Schallschutztür Schlafzimmer / Kinderzimmer 23
6Wanddicke Kinderzimmer / Bad 35
7Ups...! Wir brauchen jetzt doch ein Kinderzimmer... 19
8Grundrissplanung Hanghaus mit 5 Kinderzimmer - Seite 26370
9Grundrissplanung Einfamilienhaus (Stadtvilla) ca.140m² (3 Kinderzimmer) 42
10Neubau Einfamilienhaus 160-170qm, 3 Kinderzimmer 39
11Fußbodenheizung in Kinderzimmer? Einige Räume ohne Fußbodenheizung geplant? Luft-Wasser-Wärmepumpe raus? 48
12Grundriss Doppelhaushälfte mit Gästezimmer 53
13Einfamilienhaus ca. 150 qm Grundriss - Treppe wie planen? 65
14Ankleide/Schlafzimmer Problem - Grundrissdiskussion 25
15Grundrissfrage, Treppe, Fenster, Ausrichtung - Seite 212
16Pfiffige Schlafzimmer Idee mit Ankleide gesucht 19
17Treppe Grundriss Planung, Auftritt und Unterzug - Seite 221
18Extra-Bad vom Schlafzimmer oder doch Abstellraum? - Seite 329
19Kinderzimmer mit bodentiefen Fenstern 22
20Kork oder Bambus für Kinderzimmer? 41

Oben