ᐅ "Grottenschlecht ist diese Planung"...
Erstellt am: 15.01.13 20:15
... das sagen zumindest die Architekten in einem Bauforum!
Ich weiss aber nicht, ob das nur Auftragsneid ist?! ... weil ich auch schon Gegenteiliges (das aber von Freunden) gehört habe. Vorrangig haben sie die Dachform bemängelt, die aber von unserem Architekten typisiert und oft verkauft wird.
Liebe Forumsmitglieder,
ich würde mich freuen, wenn Ihr Stellung bezieht. Alle Ideen + Verbesserungen sind gern Willkommen.
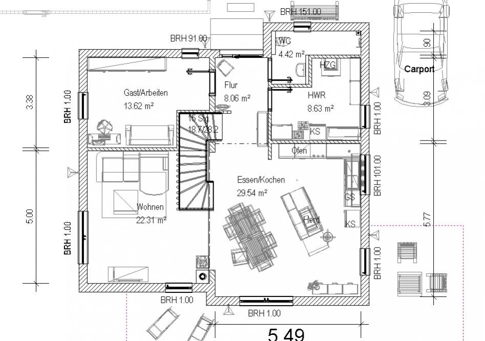
Wir sind zu zweit und bleiben es! und planen ein 1,5 geschossiges Einfamilienhaus. Die Maße sind 10,64m x 10,94 mit versetztem Satteldach. Das niedrigere Dach hat 28 Grad Dachneigung, das höhere, unter dem das OG untergebracht ist, 26 Grad mit 120cm Kniestock. Der Gebäudekörper ist ein typisiertes Haus vom Architekten, der Grundriss ist "frei" gestaltbar. Fenster sind auch nicht fix.
Einige Erklärungen:
Im EG gibt es eine bodengleiche Dusche im WC (das Langgezogene). In der Küche gibt es ein Fensterband. Die Küche ist ein grosser Bereich mit grossem Tisch und Tresen.
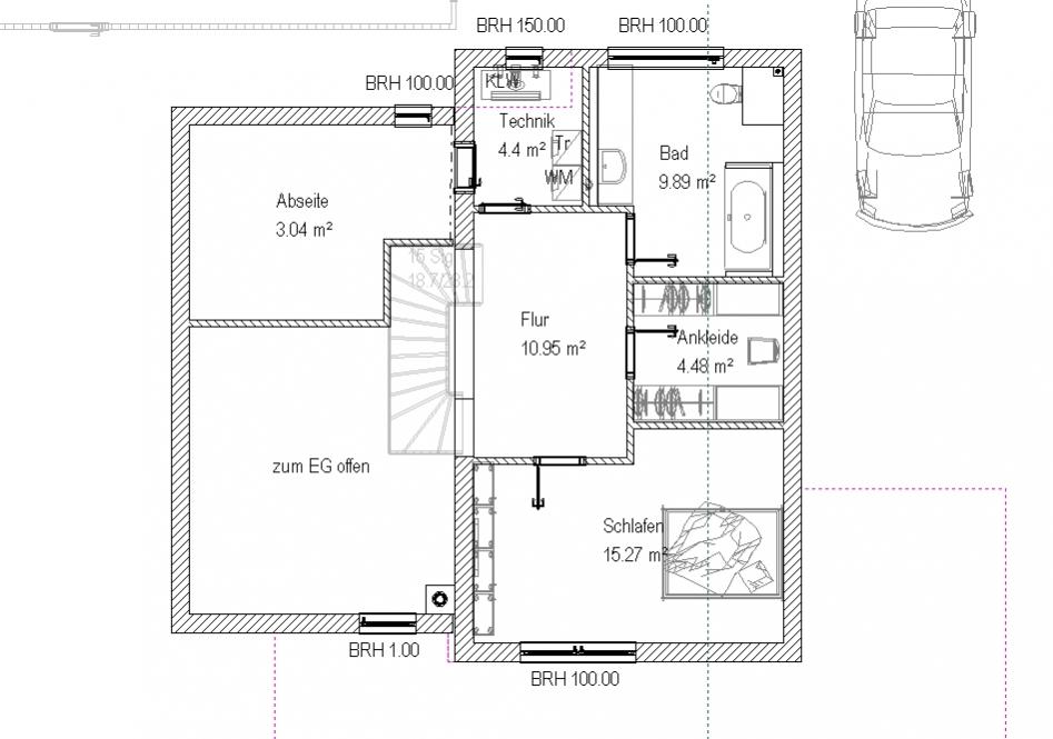
Etwas unglücklich macht mich das Bad: es ist absichtlich keine Dusche eingeplant, da wir diese im EG haben. Dennoch sollte man vielleicht eine Duschmöglichkeit in der Wanne einplanen?! Ich wollte keine schräge Wanne, dafür einen Waschplatz auf einer Arbeitsplatte, die etwas länger ist. Die Linie zeigt die Raumhöhe von 2 Metern an.
Leider kann ich keine Schnitte fertigen, deshalb mal die Ansichten von zwei Himmelsrichtungen.
Im Eingangsbereich ist eine kleine Garderobe geplant. Zusätzlich soll, wenn Gäste kommen bzw, die ganzen Jacken und Schuhe in einem schrank (schnell zu begehen) im Arbeitszimmer untergebracht werden, da dieser Raum eh nicht oft genutzt wird (bis wir die Treppe nicht mehr altersbedingt gehen können ;-))
Keller ist nicht geplant.
Ich freue mich auf Kritik und Verbesserungen!
Yvonne




Ich weiss aber nicht, ob das nur Auftragsneid ist?! ... weil ich auch schon Gegenteiliges (das aber von Freunden) gehört habe. Vorrangig haben sie die Dachform bemängelt, die aber von unserem Architekten typisiert und oft verkauft wird.
Liebe Forumsmitglieder,
ich würde mich freuen, wenn Ihr Stellung bezieht. Alle Ideen + Verbesserungen sind gern Willkommen.
Wir sind zu zweit und bleiben es! und planen ein 1,5 geschossiges Einfamilienhaus. Die Maße sind 10,64m x 10,94 mit versetztem Satteldach. Das niedrigere Dach hat 28 Grad Dachneigung, das höhere, unter dem das OG untergebracht ist, 26 Grad mit 120cm Kniestock. Der Gebäudekörper ist ein typisiertes Haus vom Architekten, der Grundriss ist "frei" gestaltbar. Fenster sind auch nicht fix.
Einige Erklärungen:
Im EG gibt es eine bodengleiche Dusche im WC (das Langgezogene). In der Küche gibt es ein Fensterband. Die Küche ist ein grosser Bereich mit grossem Tisch und Tresen.
Etwas unglücklich macht mich das Bad: es ist absichtlich keine Dusche eingeplant, da wir diese im EG haben. Dennoch sollte man vielleicht eine Duschmöglichkeit in der Wanne einplanen?! Ich wollte keine schräge Wanne, dafür einen Waschplatz auf einer Arbeitsplatte, die etwas länger ist. Die Linie zeigt die Raumhöhe von 2 Metern an.
Leider kann ich keine Schnitte fertigen, deshalb mal die Ansichten von zwei Himmelsrichtungen.
Im Eingangsbereich ist eine kleine Garderobe geplant. Zusätzlich soll, wenn Gäste kommen bzw, die ganzen Jacken und Schuhe in einem schrank (schnell zu begehen) im Arbeitszimmer untergebracht werden, da dieser Raum eh nicht oft genutzt wird (bis wir die Treppe nicht mehr altersbedingt gehen können ;-))
Keller ist nicht geplant.
Ich freue mich auf Kritik und Verbesserungen!
Yvonne
Ich sag mal so, kann man so machen, wenn man 100% sicher ist, da kommt kein Kind nach.
Nur je nach Lage der Immobilie lässt diese sich wahrscheinlich eher schlecht verkaufen. Für Rentner ist es wahrscheinlich zu groß, für Familien ungeeignet.
Ob ich zu zweit so groß bauen würde... naja eher nicht. Aber das ist ja auch wieder individuell.
Nur je nach Lage der Immobilie lässt diese sich wahrscheinlich eher schlecht verkaufen. Für Rentner ist es wahrscheinlich zu groß, für Familien ungeeignet.
Ob ich zu zweit so groß bauen würde... naja eher nicht. Aber das ist ja auch wieder individuell.
Die Treppe wird einer der dominantesten Teile deines Hauses im EG. Egal von wo, du schaust immer drauf. Selbst wenn du auf der Couch sitzt haste direkt neben dir die Treppe. Ich weiß nicht was ihr da plant, aber unsere Buchentreppe ist nicht so schön, dass ich sie mir immer anschauen muss. Mich würde das stören.
B
Bauexperte16.01.13 11:53Hallo Yvonne,
Das ein Grundriss typisiert ist, muß nicht bedeuten, daß er damit auch gut ist. Es ist halt einfacher für den Architekten, "nur" im Innenbereich Wände zu verschieben. Sagt er seiner jeweiligen Klientel stets, daß die Fixmaße unveränderbar sind und diese das schlucken, kann er jedem weiteren Interessenten ohne großartige Schwindelei sagen, es handele sich um seine "Toparchitektur" 😉
Mit kleinen Veränderungen - bspw. mehr Lichtbänder (daran denken, daß wenigstens eines elektrisch zu öffnen ist) unterhalb des First, Anpassung der Fenster im Frontbereich an die gesamte Architektur - erscheint das Haus optisch (in der direkten Frontansicht) dem Auge des Betrachters gefälliger. Ich weiß, daß viele Verkäuferkollegen argumentieren, daß ein Bauherr mehr im Haus als außen davor "lebt"; dieser Vergleich hinkt aber meiner Erfahrung nach. Die Optik ist auch ein entscheidendes Kaufkriterium und nicht selten ein dauerhafter Diskussionspunkt nach Einzug.
Freundliche Grüße
ypg schrieb:Ich antworte selten auf Fragen nach Grundrissen; die innere Aufteilung orientiert sich stets an persönlichen Vorlieben der jeweiligen Bauherren. Solange es baubar ist, kein Problem. Allerdings kann ich die Aussage der Architekten im Threadnamen ein Stück weit nachvollziehen. Die äußere Ansicht, im speziellen im Hauseingangsbereich ist auch für mich schwer verdaulich; ich bin ein Augenmensch und diese Ansicht ist nicht gerade gefällig fürs Auge!
... das sagen zumindest die Architekten in einem Bauforum!
Das ein Grundriss typisiert ist, muß nicht bedeuten, daß er damit auch gut ist. Es ist halt einfacher für den Architekten, "nur" im Innenbereich Wände zu verschieben. Sagt er seiner jeweiligen Klientel stets, daß die Fixmaße unveränderbar sind und diese das schlucken, kann er jedem weiteren Interessenten ohne großartige Schwindelei sagen, es handele sich um seine "Toparchitektur" 😉
Mit kleinen Veränderungen - bspw. mehr Lichtbänder (daran denken, daß wenigstens eines elektrisch zu öffnen ist) unterhalb des First, Anpassung der Fenster im Frontbereich an die gesamte Architektur - erscheint das Haus optisch (in der direkten Frontansicht) dem Auge des Betrachters gefälliger. Ich weiß, daß viele Verkäuferkollegen argumentieren, daß ein Bauherr mehr im Haus als außen davor "lebt"; dieser Vergleich hinkt aber meiner Erfahrung nach. Die Optik ist auch ein entscheidendes Kaufkriterium und nicht selten ein dauerhafter Diskussionspunkt nach Einzug.
Freundliche Grüße
Vielen Dank für Eure Antworten.
@Boergi: wie Du sagst, der Esstisch ist immer unser Problem. Er hat die Maße von 1,10 x 2,20, zusätzlich haben wir SStühle, die sehr ausladend nach hinten sind. Jetzt, wie wir wohnen, haben wir gerade das Problem, dass man schlecht dran vorbei kommt, wenn wir Besuch haben, sprich, die Stühle besetzt sind. Aber alle Freunde sagen, sie sitzen gern bei uns, wir sollen den Tisch auf gar keinen Fall tauschen. Und für bekochte Freunde ist ein Tisch nun mal da. Somit müssen wir um den Tisch ein Haus bauen (haha, unser jetziges Haus haben wir auch so gekauft ;-))
Da wir einen Fernseher im Schlafzimmer haben, bügeln wir auch dort... ich hatte zuerst auch ein offenen Schlafbereich angedacht (Galerie/Schlaf), aber wir haben Freunde, die rauchen (ich leider auch), ausserdem der Kamin, somit "arrangieren" wir uns mit einem geschlossenen Schlafzimmer, wo ein Heimtrainer :-( seinen Platz findet. Bei einem nach oben offenen Schlafzimmer finden doch die Gerüche. Ausserdem haben wir auch mal getrennt Gäste (Mädels-/Männerabend), sodass man sich ohne Lärmbelästigung zurückziehen kann. Wir würden den Flur entsprechend wohnlich gestalten.
Zum Thema Dusche: wir werden oben in der Wanne eine Duschmöglichkeit einplanen (Höhe Decke).
Wir haben es uns überlegt: Nacht-Gäste werden wir 3 - 4 Mal im Jahr haben, dafür jetzt oben eine Zweitdusche zu planen (wo wir doch Abendsduscher sind) ist nicht effektiv.
Das Obergeschoss wir aber gerade noch mal überarbeitet...
@ Bauexperte: vielen Dank dennoch für Deine Nachricht ;-)
Ja, Fensterbänder im First (Fragezeichen für den Verbauer) haben wir auch vor einiger Zeit angedacht. Aber mittlerweile hat sich der Grundriss so angepasst, dass sie von innen nur noch stören würden. Dennoch sehe auch ich die Außenansicht: wir haben jetzt etwas angepasst, und die Lücken werden zur Not außen mit Pflanzen ausgeglichen (so denke ich)
Ich lerne gerade: was für den einen ein Highlight, ist für den anderen undenkbar. Ob Fachmann oder Laie. jeder hat seine Vorlieben. So gehts auch mit dem Dach bzw. Hausstil.
Mir ist es auch wichtig, dass die Optik von außen stimmt!
Wir haben und gerade nochmal den überarbeiteten Plan angeschaut, und er funktioniert für uns.
Nach uns die Sinnflut ;-)
yvonne
@Boergi: wie Du sagst, der Esstisch ist immer unser Problem. Er hat die Maße von 1,10 x 2,20, zusätzlich haben wir SStühle, die sehr ausladend nach hinten sind. Jetzt, wie wir wohnen, haben wir gerade das Problem, dass man schlecht dran vorbei kommt, wenn wir Besuch haben, sprich, die Stühle besetzt sind. Aber alle Freunde sagen, sie sitzen gern bei uns, wir sollen den Tisch auf gar keinen Fall tauschen. Und für bekochte Freunde ist ein Tisch nun mal da. Somit müssen wir um den Tisch ein Haus bauen (haha, unser jetziges Haus haben wir auch so gekauft ;-))
Da wir einen Fernseher im Schlafzimmer haben, bügeln wir auch dort... ich hatte zuerst auch ein offenen Schlafbereich angedacht (Galerie/Schlaf), aber wir haben Freunde, die rauchen (ich leider auch), ausserdem der Kamin, somit "arrangieren" wir uns mit einem geschlossenen Schlafzimmer, wo ein Heimtrainer :-( seinen Platz findet. Bei einem nach oben offenen Schlafzimmer finden doch die Gerüche. Ausserdem haben wir auch mal getrennt Gäste (Mädels-/Männerabend), sodass man sich ohne Lärmbelästigung zurückziehen kann. Wir würden den Flur entsprechend wohnlich gestalten.
Zum Thema Dusche: wir werden oben in der Wanne eine Duschmöglichkeit einplanen (Höhe Decke).
Wir haben es uns überlegt: Nacht-Gäste werden wir 3 - 4 Mal im Jahr haben, dafür jetzt oben eine Zweitdusche zu planen (wo wir doch Abendsduscher sind) ist nicht effektiv.
Das Obergeschoss wir aber gerade noch mal überarbeitet...
@ Bauexperte: vielen Dank dennoch für Deine Nachricht ;-)
Ja, Fensterbänder im First (Fragezeichen für den Verbauer) haben wir auch vor einiger Zeit angedacht. Aber mittlerweile hat sich der Grundriss so angepasst, dass sie von innen nur noch stören würden. Dennoch sehe auch ich die Außenansicht: wir haben jetzt etwas angepasst, und die Lücken werden zur Not außen mit Pflanzen ausgeglichen (so denke ich)
Ich lerne gerade: was für den einen ein Highlight, ist für den anderen undenkbar. Ob Fachmann oder Laie. jeder hat seine Vorlieben. So gehts auch mit dem Dach bzw. Hausstil.
Mir ist es auch wichtig, dass die Optik von außen stimmt!
Wir haben und gerade nochmal den überarbeiteten Plan angeschaut, und er funktioniert für uns.
Nach uns die Sinnflut ;-)
yvonne
B
Bauexperte17.01.13 17:11Hallo Yvonne,
Viel Spaß mit dem neuen Haus!
Freundliche Grüße
ypg schrieb:Ich muß hier oft über die Vorschläge der User zur Grundrissänderung lächeln :-)
Ich lerne gerade: was für den einen ein Highlight, ist für den anderen undenkbar. Ob Fachmann oder Laie. jeder hat seine Vorlieben ... Wir haben und gerade nochmal den überarbeiteten Plan angeschaut, und er funktioniert für uns.
Nach uns die Sinnflut ;-)
Viel Spaß mit dem neuen Haus!
Freundliche Grüße
Ähnliche Themen