Hausbau - Ratgeber
Bauherrenhilfe
- Bauherrenhilfe vor Vertragsabschluss
-- Warum einen unabhängigen Baubetreuer?
-- Vertragsgrundlagen
-- Bausumme
-- Zahlungsplan zur Kostenkontrolle
-- Pflichten des Bauherren vor Vertragsabschluss
-- Unterlagen beim Hausbau vor Vertragsabschluss
- Bauherrenhilfe nach Vertragsabschluss
-- Bauantrag bei Behörden
-- Bau-Genehmigungsverfahren bei Baubehörden
-- Bauspezifische Versicherungen
-- Bauzeitenplan
-- Baubeginn - die Letzten Pflichten der Bauherrschaft
- Bauherrenhilfe während der Bauzeit
- Gewährleistungsansprüche
- Bauabnahme
Baufinanzierung
- Baufinanzierung - Allgemeine Fragen
- Kreditarten
- Kredit-Konditionen
- Bausparen
- Staatliche Förderungen
- Verkehrswert
- Haushaltsrechnung und Bonität
Hausbau Planung
- Haustypen
- Hausbau Vorbereitungsarbeiten
- Das Baugrundstück
- Baugrund beim Hausbau
- Baurecht
- Gebäudeschutz
- Erdarbeiten und Wasserhaltung
- Stützmauern
- Einfriedung
- Untergeschoss
- Kanalisation
- Tragende Elemente
- Nichttragende Innenwände
- Fundation / Fundament
- Deckenkonstruktionen
- Dächer
- Kaminanlagen
- Treppen Rampen Leitern
- Dachbeläge und Spengler
- Fenster
- Sonnen und Wetterschutz
- Aussenputze
- Einbauten, Küchen, Türen
- Bodenbeläge und Unterlagsböden
- Parkett
- Gips, Wand, Decke
Haustechnik und Energie
- Heiztechnik
- Lüftung und Klimatechnik
- Sanitärtechnik
- Elektrotechnik
- Erneuerbare Energie
Whirlpools / Jacuzzi
Hausbau Magazin
- Baufinanzierung trotz Krise?
- Das Blockhaus
- Moderne Dämmstoffe im Vergleich
- Erker Vor- und Nachteile
- Glasflächen beim Hausbau
- Günstig ein Haus Bauen
- Mediterraner Hausbaustil
- Mehrgenerationenhaus
- Moderne Architektur
- Gartengestaltung leicht gemacht
- Traditioneller Ziegelbau
- Villa als höchster Traum
- Im Eigenheim Ruhestand geniessen
- Altbau sanieren
- Kauf einer Holzgarage
- Immobilienmakler
- Arbeitshandschuhe für den Winter
- Zuhause verschönern
- Outdoor-Plissees
- Schlafzimmer planen
- Terrassenüberdachung
- Wohngebäudeversicherung
- Zaunarten und Eigenschaften
- Hauseingang gestalten
- Der perfekte Grundriss
- Sparsamer heizen im Altbau
- Einfamilienhaus smart finanzieren
- Planung einer PV-Anlage
- Neues Haus
- Immobilienfinanzierung
- Installation einer Photovoltaikanlage
- Asbest erkennen und entfernen
- Gartenpflege im Frühling – worauf achten
- Sauna im Fokus - Wellness zuhause
- Erfolgreich vermieten
- Die perfekte Winterbekleidung
- Das Niedrigenergiehaus
- Der April und seine Stürme
- Architektonische Vielfalt
- Ökologisch und nachhaltig bauen
- Das perfekte Schlafzimmer
- Nachhaltige Energieversorgung
- Zukunftsorientiert bauen
- Nachhaltigkeit beim Hausbau
- Tiny Houses
- Wärmepumpen als nachhaltige Heizvariante
- Maßgeschneiderten Kleiderschrank
- Der richtige Baukredit
- Ratgeber für erfolgreichen Hausbau
- Haus als Altersvorsorge
Do-it-yourself Anleitungen
- Verlegeanleitung für Bodenbeläge und Parkett
- Bodenbeläge und Parkett reinigen und pflegen
- Malerarbeiten am Haus
- Garten Tipps
- Umzug und Reinigung

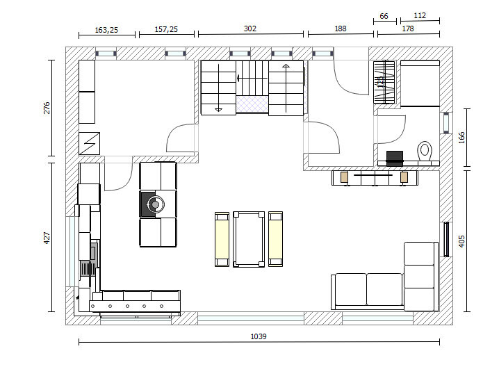
ᐅ Finaler Grundrissplan, Einfamilienhaus 7,99x11,11m

Erstellt am: 25.01.16 13:14
D
daniels87
D
daniels87
06.02.16 15:18
na gut, also dann eher so?

Btw: Die Dusche im OG ist jetzt doch mit Glasabtrennung, um den Raum größer wirken zu lassen. Und Die Dusche im EG-Bad ist jetzt auch ebenerdig

Detaillierter Grundriss eines Hauses mit Küche, Wohnzimmer, Treppen und Eingangsbereich.
Y
ypg
06.02.16 16:29
Ich würde wahrscheinlich die Insel planunten an die Küche pappen, die Tür Küche/Abstell weglassen. Dann hast du eine freie Wand und kommst besser, auch über kurze Wege, an den Kühlschrank 🙂
kbt0907.02.16 02:57
Mir wäre vermutlich der Esstisch zu ungemütlich. Treppenauf- und abgang voll im Blick und so komplett "ungeschützt" mitten im Raum wäre nicht wirklich meins.

Bei 427 cm Raumtiefe sollte man sich über die Möglichkeiten einer echten Insel Gedanken machen. Und dabei auch bedenken, eine Dunstabzugshaube im freien Raum bei über 10 m Raumbreite ist auch vielen Querströmungen ausgesetzt, die die Leistungsfähigkeit beeinträchtigen.

Ich habe jetzt nicht weiter zurückgeblättert, aber eine Ankleide im Elternschlafbereich ... wie sollte das denn gehen?
D
daniels87
07.02.16 09:43
ja, das ist wohl einfach Geschmackssache :p

Ich bin wohl eher klaustrophobisch veranlagt. Ich fühle mich wohl wenn um mich herum Platz ist (und viele Fenster). Und die Treppe ist imo ein eyecatcher und ist bewusst nicht versteckt. Am besten haben uns Musterhäuser gefallen, bei denen die Treppe quer durch die Wohnräume ging, also in richtung Loft 🙄

Und gibt es bei neueren Bauten überhaupt noch große Luftströmungen?
Bekannte von mir haben im EG einen großen Wohn/Essbereich mit Küche auf insgesamt fast 80qm, und die können da nix negatives berichten.
D
daniels87
07.02.16 09:56
ah.. editieren ging nicht mehr..

Der Grundriss ist aber so geplant, dass man im Zweifelsfall zum Treppenhaus hin noch eine Wand einziehen könnte.
Y
ypg
07.02.16 10:50
Ich finde offene Treppen gut . Und so offen liegt sie gar nicht.
Was mir aber gerade auffällt: zeichne mal einen Tisch in normaler Größe ein, dann wirkt der Raum anders.
kücheduschetreppe