Hausbau - Ratgeber
Bauherrenhilfe
- Bauherrenhilfe vor Vertragsabschluss
-- Warum einen unabhängigen Baubetreuer?
-- Vertragsgrundlagen
-- Bausumme
-- Zahlungsplan zur Kostenkontrolle
-- Pflichten des Bauherren vor Vertragsabschluss
-- Unterlagen beim Hausbau vor Vertragsabschluss
- Bauherrenhilfe nach Vertragsabschluss
-- Bauantrag bei Behörden
-- Bau-Genehmigungsverfahren bei Baubehörden
-- Bauspezifische Versicherungen
-- Bauzeitenplan
-- Baubeginn - die Letzten Pflichten der Bauherrschaft
- Bauherrenhilfe während der Bauzeit
- Gewährleistungsansprüche
- Bauabnahme
Baufinanzierung
- Baufinanzierung - Allgemeine Fragen
- Kreditarten
- Kredit-Konditionen
- Bausparen
- Staatliche Förderungen
- Verkehrswert
- Haushaltsrechnung und Bonität
Hausbau Planung
- Haustypen
- Hausbau Vorbereitungsarbeiten
- Das Baugrundstück
- Baugrund beim Hausbau
- Baurecht
- Gebäudeschutz
- Erdarbeiten und Wasserhaltung
- Stützmauern
- Einfriedung
- Untergeschoss
- Kanalisation
- Tragende Elemente
- Nichttragende Innenwände
- Fundation / Fundament
- Deckenkonstruktionen
- Dächer
- Kaminanlagen
- Treppen Rampen Leitern
- Dachbeläge und Spengler
- Fenster
- Sonnen und Wetterschutz
- Aussenputze
- Einbauten, Küchen, Türen
- Bodenbeläge und Unterlagsböden
- Parkett
- Gips, Wand, Decke
Haustechnik und Energie
- Heiztechnik
- Lüftung und Klimatechnik
- Sanitärtechnik
- Elektrotechnik
- Erneuerbare Energie
Whirlpools / Jacuzzi
Hausbau Magazin
- Baufinanzierung trotz Krise?
- Das Blockhaus
- Moderne Dämmstoffe im Vergleich
- Erker Vor- und Nachteile
- Glasflächen beim Hausbau
- Günstig ein Haus Bauen
- Mediterraner Hausbaustil
- Mehrgenerationenhaus
- Moderne Architektur
- Gartengestaltung leicht gemacht
- Traditioneller Ziegelbau
- Villa als höchster Traum
- Im Eigenheim Ruhestand geniessen
- Altbau sanieren
- Kauf einer Holzgarage
- Immobilienmakler
- Arbeitshandschuhe für den Winter
- Zuhause verschönern
- Outdoor-Plissees
- Schlafzimmer planen
- Terrassenüberdachung
- Wohngebäudeversicherung
- Zaunarten und Eigenschaften
- Hauseingang gestalten
- Der perfekte Grundriss
- Sparsamer heizen im Altbau
- Einfamilienhaus smart finanzieren
- Planung einer PV-Anlage
- Neues Haus
- Immobilienfinanzierung
- Installation einer Photovoltaikanlage
- Asbest erkennen und entfernen
- Gartenpflege im Frühling – worauf achten
- Sauna im Fokus - Wellness zuhause
- Erfolgreich vermieten
- Die perfekte Winterbekleidung
- Das Niedrigenergiehaus
- Der April und seine Stürme
- Architektonische Vielfalt
- Ökologisch und nachhaltig bauen
- Das perfekte Schlafzimmer
- Nachhaltige Energieversorgung
- Zukunftsorientiert bauen
- Nachhaltigkeit beim Hausbau
- Tiny Houses
- Wärmepumpen als nachhaltige Heizvariante
- Maßgeschneiderten Kleiderschrank
- Der richtige Baukredit
- Ratgeber für erfolgreichen Hausbau
- Haus als Altersvorsorge
Do-it-yourself Anleitungen
- Verlegeanleitung für Bodenbeläge und Parkett
- Bodenbeläge und Parkett reinigen und pflegen
- Malerarbeiten am Haus
- Garten Tipps
- Umzug und Reinigung

ᐅ Finaler Grundrissplan, Einfamilienhaus 7,99x11,11m

Erstellt am: 25.01.16 13:14
D
daniels87
D
daniels87
27.01.16 11:05
Trockenware zieht Feuchtigkeit. Wenn da zwei voll beladene Wäscheständer drin stehen, find ich das nicht ideal.
EveundGerd27.01.16 11:37
Nudeln und Reis in Plastik verpackt zieht keine Feuchtigkeit.
Dosen- oder Flaschenware auch nicht.
Salz, Zucker und Mehl ...o.k. diese Dinge lagern bei uns im Apothekerschrank.

Ist eben alles eine Frage der persönlichen Vorlieben. 😉
D
daniels87
27.01.16 13:11
Wir haben genug Sachen, die definitiv unter Feuchtigkeit leiden.
Ich kaufe gerne Großgebinde, die sind dann den ein oder andere Monat offen.
Das ist ja IMO der Sinn einer Vorratskammer 😉
Denn ich hasse es, jedes mal beim kochen einen Berg an Verpackungsmüll zu produziert. Außerdem hängen da noch Kräuter usw. zum trocknen.
Gewürze werden auch schnell zur Salmonellen-Brutstätte.
EveundGerd27.01.16 14:29
Ok. Das ist was anderes.
Ich habe eine andere Vorratshaltung.
Kräuter sind bei uns überwiegend frisch in der Verwendung oder sie werden getrocknet gekauft und lagern trocken in meiner Schublade neben dem Herd.

Mehl und Co kaufen wir nur bei Bedarf. Offen rumstehen lassen mögen wir nicht. Ich tuppere die Ware dann eben ein.
D
daniels87
06.02.16 14:58
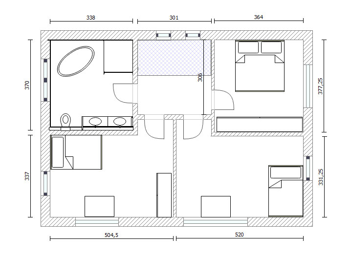
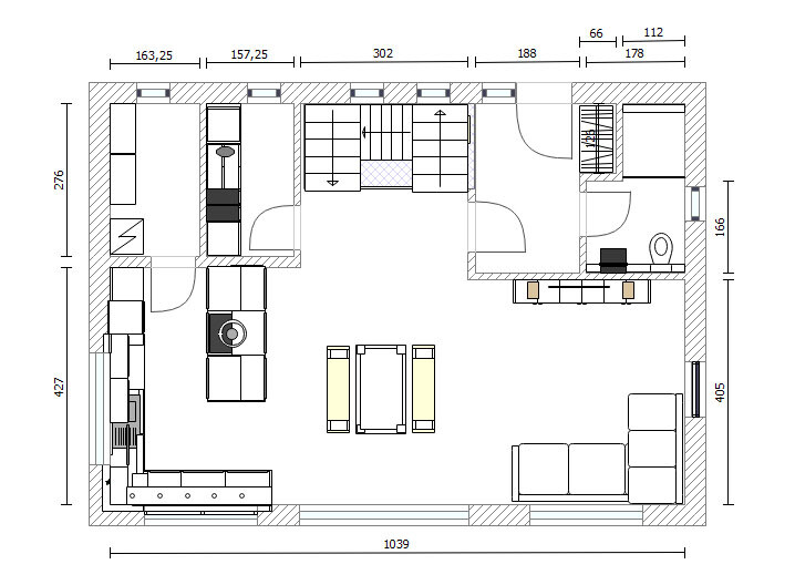
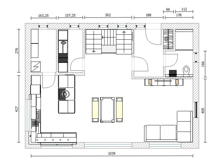
So. Ich hab mal die Hinweise zu Herzen genommen, und den Grundriss noch etwas überarbeitet und mal grob die Bemaßung zugefügt.

Die Ankleide ist jetzt weg, allerdings wissen wir noch nicht ob wir das wollen.
Der Hauswirtschaftsraum hat eine andere Aufteilung bekommen.

2D-Grundriss eines Hauses mit Treppenaufgang, Türen und mehreren Räumen


2D-Grundriss eines Hauses mit Bad, Schlafzimmern und Wohnzimmer


Grundrissplan eines offenen Wohn- und Küchenbereichs mit Esstisch und Sofa


3D-Ansicht eines kleinen Haushaltsraums mit Waschmaschine, Trockner, Hochschränken und Fenster
Y
ypg
06.02.16 15:05
daniels87 schrieb:
Ich kaufe gerne Großgebinde, die sind dann den ein oder andere Monat offen.
Das ist ja IMO der Sinn einer Vorratskammer 😉

Zur Vorratshaltung hast Du ja einen Keller, der kühler sein sollte als das EG.

Vorratshaltung innerhalb unserer zeitgemässen Neubauten funktioniert nicht mehr - auch nicht, wenn Du den Raum Speis nennst.
Da muss man halt auch mal der Wahrheit ins Auge sehen und sich nicht die Speisekammern von Oma oder Mama in älteren Häusern vor Augen halten.

Ansonsten mag ich den gradlinigen Grundriss 🙂
feuchtigkeitvorratshaltung