ᐅ Bad Grundrissplanung T- Lösung? Wünsch wäre große Dusche
Erstellt am: 12.10.24 15:08
B
Benutzername12B
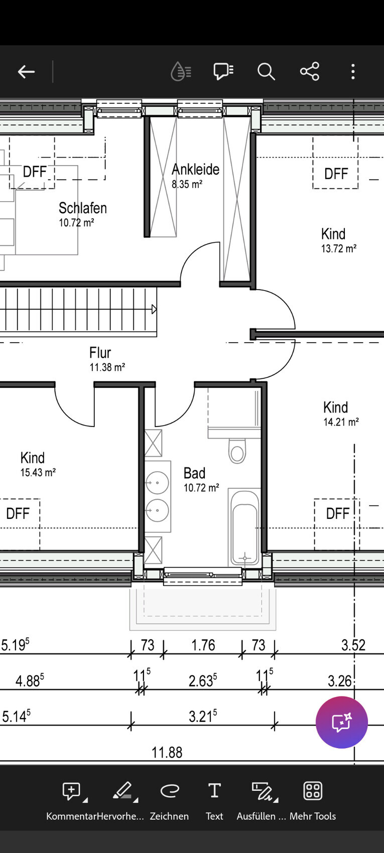
Benutzername1212.10.24 15:08Hallo schaut euch Mal unser Grundriss für unser Familienbad an.
Wir sind 5 Personen.
2 Erwachsene und drei Kindern.
Wir legen kein Wert auf ein großes Badezimmer dafür aber auf eine größere Dusche mit Sitzbank und wenn möglich eine nicht ganz freistehende Badewanne.
Das Bad ist in der Gaube geplant und hat so zusagen normale Deckenhöhe.
Wir würdet ihr das Bad Anordnung?
T Lösung?

Wir sind 5 Personen.
2 Erwachsene und drei Kindern.
Wir legen kein Wert auf ein großes Badezimmer dafür aber auf eine größere Dusche mit Sitzbank und wenn möglich eine nicht ganz freistehende Badewanne.
Das Bad ist in der Gaube geplant und hat so zusagen normale Deckenhöhe.
Wir würdet ihr das Bad Anordnung?
T Lösung?
@Benutzername12 ist doch ziemlich kontraproduktiv die Einzelräume zu besprechen, wenn die Gesamtplanung im Grund wg. diverser Punkte noch überarbeitet werden muss
https://www.hausbau-forum.de/threads/grundrissplanung-stadthaus-mit-einem-satteldach.48201/
Insbesondere auch im Thread https://www.hausbau-forum.de/threads/geschlossene-kueche-planen-mit-durchgang-zum-hwr.48205/ .. sollte man vielleicht erstmal das Gesamtkonzept durchdenken, zumal ja auch die Preisschätzung nicht so ganz hinhaut und da vielleicht noch ein paar qm eingespart werden sollten.
https://www.hausbau-forum.de/threads/grundrissplanung-stadthaus-mit-einem-satteldach.48201/
Insbesondere auch im Thread https://www.hausbau-forum.de/threads/geschlossene-kueche-planen-mit-durchgang-zum-hwr.48205/ .. sollte man vielleicht erstmal das Gesamtkonzept durchdenken, zumal ja auch die Preisschätzung nicht so ganz hinhaut und da vielleicht noch ein paar qm eingespart werden sollten.
Was soll denn der Hauswirtschaftsraum alles beinhalten,
ist da Heizung, Lüftung, Stromkasten, Wasseranschluss, Photovoltaik, Waschmaschine, Trockner, Geschirrspüler usw. drin, dann ist es der wärmste Raum im Haus.
Oder soll es nur ein Vorratsraum sein, der braucht keine Tür zur Küche, wo lauft ihr denn jetzt hin, für eine neue Tüte Kaffee oder Milch.
Die meisten haben das im Keller
ist da Heizung, Lüftung, Stromkasten, Wasseranschluss, Photovoltaik, Waschmaschine, Trockner, Geschirrspüler usw. drin, dann ist es der wärmste Raum im Haus.
Oder soll es nur ein Vorratsraum sein, der braucht keine Tür zur Küche, wo lauft ihr denn jetzt hin, für eine neue Tüte Kaffee oder Milch.
Die meisten haben das im Keller
G
Gerddieter12.10.24 19:09Also wenn ihr Wert auf eine große Dusche legt und gerne eine frei stehende Wanne hättet dann ist das da oben ja wahrscheinlich nicht "euer" Bad.
B
Benutzername1212.10.24 19:54Gerddieter schrieb:
Also wenn ihr Wert auf eine große Dusche legt und gerne eine frei stehende Wanne hättet dann ist das da oben ja wahrscheinlich nicht "euer" Bad.Habe mich vertippt.
Meine das wir keinen Wert auf eine großes Bad legen.
B
Benutzername1212.10.24 19:56kbt09 schrieb:
@Benutzername12 ist doch ziemlich kontraproduktiv die Einzelräume zu besprechen, wenn die Gesamtplanung im Grund wg. diverser Punkte noch überarbeitet werden muss
https://www.hausbau-forum.de/threads/grundrissplanung-stadthaus-mit-einem-satteldach.48201/
Insbesondere auch im Thread https://www.hausbau-forum.de/threads/geschlossene-kueche-planen-mit-durchgang-zum-hwr.48205/ .. sollte man vielleicht erstmal das Gesamtkonzept durchdenken, zumal ja auch die Preisschätzung nicht so ganz hinhaut und da vielleicht noch ein paar qm eingespart werden sollten.Das Bad und die Küche werden nicht verändert.
Die sind soweit für uns vollkommen in Ordnung.
Daher wäre ich über Ideen sehr dankbar.
Nida35a schrieb:
Was soll denn der Hauswirtschaftsraum alles beinhalten,
ist da Heizung, Lüftung, Stromkasten, Wasseranschluss, Photovoltaik, Waschmaschine, Trockner, Geschirrspüler usw. drin, dann ist es der wärmste Raum im Haus.
Oder soll es nur ein Vorratsraum sein, der braucht keine Tür zur Küche, wo lauft ihr denn jetzt hin, für eine neue Tüte Kaffee oder Milch.
Die meisten haben das im KellerIm Hauswirtschaftsraum soll jetzt die Technik komplett rein.
Waschmaschine und Trockner
Ein Spülbecken und zwei Regale für Vorrat und ggf ein Gefrierschrank.
Ähnliche Themen