Feedback gewünscht Einfamilienhaus ca. 135m²

4,00 Stern(e) 11 Votes
Zuletzt aktualisiert 26.11.2025
Sie befinden sich auf der Seite 3 der Diskussion zum Thema: Feedback gewünscht Einfamilienhaus ca. 135m²
>> Zum 1. Beitrag <<

Y

ypg

Ca. 340.000 € für das Haus, schlüsselfertig, Fußbodenheizung, Kontrollierte-Wohnraumlüftung, Luft-Wasser-Wärmepumpe inkl. Küche und Baunebenkosten (mit Abriss eines bestehenden Gebäudes)
Das alles inklusive? Ok, das ist dann schon wieder Vergleich günstig. Ob zu günstig, ist hier nicht gefragt.
Den Eingang unter dem Carport finden wir eigentlich sehr sympathisch, auch, da nicht gleich einsehbar.
Ok, ich bin ja eher die, die gern Besuch hat, der aber bitte aus meinem Garten oder Carport fern bleiben soll. Denn im Carport sind ja auch schon Wertgegenstände, die keinem Hausierer etwas angehen.
Schlafzimmer würde ich nie in den Süden legen, wenn es andere Möglichkeiten gibt (bei uns z.B. ist es dann doch im SW gelandet, weil es sich anders eben nicht ergeben hat, aber, wie gesagt, wir haben keine Kinder, die dafür dann in den dunklen Norden wandern mußten). Auch wenn Kind 2 eher ein Hobbyraum/Arbeitszimmer wird, würde ich eher den in den sonnigen Bereich legen, denn da seid ihr tagsüber, im Schlafzimmer schläft man i.d.R. nur.
Das ist der Treppenlage geschuldet, bzw der Wahl des größeren Raunes für das Schlafzimmer.
Wenn man da etwas ändern möchte, dann müsste man an vielen Schrauben drehen inkl. Treppe, was ein neuer Entwurf bedeutet.
Da gehört auch die Drehung von Katja dazu.

Separate Ankleide bin ich spontan nicht so Fan von.
Dann sollte man auch darauf verzichten. Sie kostet nämlich Wohnfläche.
 
M

Mrs.Alkatraz

Danke euch für den Input.

Hausdrehung muss ich mal am 3d Programm durchspielen.
Stellplatz ist nur einer gefordert.

Mal auf die schnelle etwas gezeichnet:

Das zweite Kinderzimmer / Hobby Zimmer in Südrichtung verlegt.
Durch die Ankleide ist das Schlafzimmer aber recht klein.

Küche offen mit Kochinsel ohne die vorherigen Trennwände vorstellbar?

Meint ihr, der Grundriss gewinnt dadurch?

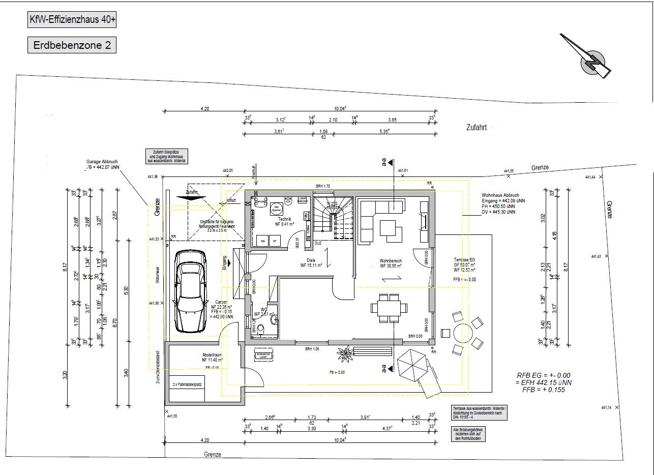
Grundriss eines KfW-Effizienzhauses 40+ mit Garage, Carport, Terrasse und Wohnbereich


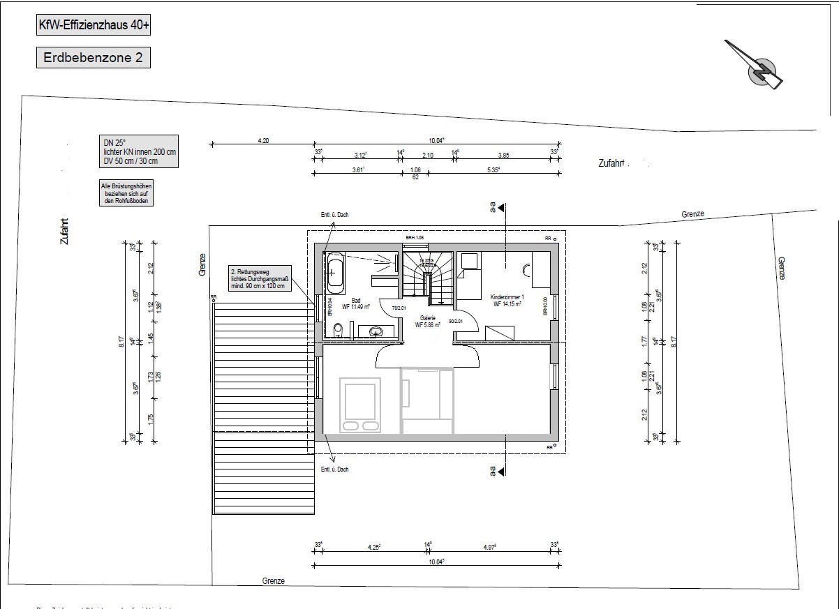
Grundriss: KfW 40+ Haus, Erdgeschoss, Treppe, Bad, Schlafzimmer, Zufahrt
 
Y

ypg

Was kommt denn unter die Treppe?

Durch die Ankleide ist das Schlafzimmer aber recht klein.
Mach doch einfach aus der Kammer einen begehbaren schrank, dann kannst Du das Schlafzimmer auf 350 verbreitern.
Für mich gewinnt da etwas, ja
Küche offen mit Kochinsel ohne die vorherigen Trennwände vorstellbar?
Ich würde erst mal die Tür zum Allraum verlegen. Der Gang durch WZ stört jeden, der sich mal auf die Couch zum dösen verzieht. Zb könnte da auch ein Fenster hin.
Tür an die Ecke dort an die andere Wand... und dann weitersehen
 
M

Mrs.Alkatraz

Was kommt denn unter die Treppe?
Ein Schuhschränkchen / Kommode und der Hund

Mach doch einfach aus der Kammer einen begehbaren Schrank, dann kannst Du das Schlafzimmer auf 350 verbreitern.
Für mich gewinnt da etwas, ja
Danke, probiere ich mal.
Dann aber wieder das Problem, dass man im Schlafzimmer werkelt und durch muss, um an die Kleidung zu kommen.


Ich würde erst mal die Tür zum Allraum verlegen. Der Gang durch WZ stört jeden, der sich mal auf die Couch zum dösen verzieht. Zb könnte da auch ein Fenster hin.
Tür an die Ecke dort an die andere Wand... und dann weitersehen
Da bin ich mir nicht sicher, ob ich das korrekt nachvollzogen hab.
Wo das Fenster?
So in etwa? (siehe Anhang)

Grundriss eines Hauses mit Garage, Carport, Terrasse, Küche, Ess- und Wohnzimmer.
 
Zuletzt aktualisiert 26.11.2025
Im Forum Grundrissplanung / Grundstücksplanung gibt es 2536 Themen mit insgesamt 88017 Beiträgen


Ähnliche Themen zu Feedback gewünscht Einfamilienhaus ca. 135m²
Nr.ErgebnisBeiträge
1Grundrissfrage, Treppe, Fenster, Ausrichtung 12
2OG Stadtville optimieren. Fenster Bodentief - Seite 16104
3Fenster Brüstungshöhe 130 im Schlafzimmer / Arbeitszimmer? - Seite 493
4Schalter für Rollläden am Fenster oder an der Tür? 38
5Ankleide/Schlafzimmer Problem - Grundrissdiskussion 25
6Gestaltung Schlafzimmer 35
7Grundriss Stadtvilla / Anordnung Fenster, Feedback erwünscht - Seite 216
8Grundriss Neubau Einfamilienhaus: Fenster/Türen/Innenwände Größe/Anordnung ok? - Seite 220
9Keine Fußbodenheizung im Schlafzimmer? - Seite 322
10Bungalow 135qm: Grundriss + Fenster - Seite 10104
11Grundriss Schlafzimmer, Ankleide und Bad en Suite 36
12Grundriss: 150qm Einfamilienhaus+Einliegerwohnung - Carport / Garage + Schuppen / Werkstatt - Seite 245
13Grundrissfrage: Tausch gerader Treppe durch L-Treppe 31
14Aufmusterung Elektro, Q2, Badfliesen, Drempel, bodentiefe Fenster - Seite 223
15Grundrissplanung für Einfamilienhaus mit Keller und Garage/Carport - Seite 321
16Grundriss Einfamilienhaus 150qm - Fenster- und Badplanung - Seite 218
17Grundriss 120 m², Einfamilienhaus 1,5, Carport. Meinungen, Ideen, Vorschläge 42
18Grundrissfrage, Garage, Treppe - Seite 533
19Meinungen zu Grundriss "Haus am Hang" erbeten - Seite 331
20Hilfe bei der Anordnung der Fenster benötigt! 32

Oben