Feedback gewünscht Einfamilienhaus ca. 135m²

4,00 Stern(e) 11 Votes
Zuletzt aktualisiert 26.11.2025
Sie befinden sich auf der Seite 8 der Diskussion zum Thema: Feedback gewünscht Einfamilienhaus ca. 135m²
>> Zum 1. Beitrag <<

H

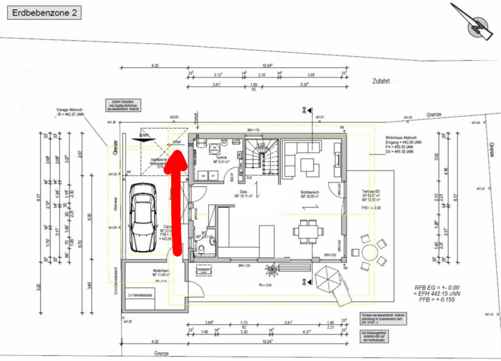
hampshire

Mir gefällt der seitliche Eingang ganz gut. Sollten das Stufen zum Haus sein, wäre der Weg vom wunderbar geplanten „Fahrradraum“ zur Straße unpraktisch verbaut (Roter Pfeil in verhunzter angehängter Zeichnung). Da würde ich dann lieber mit einer Schräge leben. Mit der richtigen Steigungsführung passt das dann auch harmonisch und stolperfrei zum Fahrzeug-Stellplatz.
Platz und im EG schaffst Du durch Weglassen von Wänden. Wenn das Treppenhaus abgeschottet sein soll - Glas-Schiebetür davor. (siehe Skizze)
Das Bedürfnis nach Licht ist offenbar unterschiedlich ausgeprägt. Für mich wären die Räume vermutlich zu dunkel. Andere mögen das schützende Gefühl einer Höhle - dieses bietet der Wohnbereich in Perfektion. Ist eben Geschmackssache.
Tipp: Hohe Decken in Betracht ziehen und Raumakustik berücksichtigen.
Grundriss eines Hauses mit Garage links, Treppenhaus und Wohnraum; roter Pfeil markiert den Eingang.
 
Zuletzt aktualisiert 26.11.2025
Im Forum Grundrissplanung / Grundstücksplanung gibt es 2536 Themen mit insgesamt 88017 Beiträgen


Ähnliche Themen zu Feedback gewünscht Einfamilienhaus ca. 135m²
Nr.ErgebnisBeiträge
1Einbruchsichere Fenster? 33
2Innenraum Gestaltung - Fenster 14
3Aufpreis für farbige Fenster realistisch? - Seite 319
4Gutachter Mängelfeststellung, Feststellung Einbau Fenster 10
5Hilfe bei der Anordnung der Fenster benötigt! 32
6Riesiges Problem mit dem Kondenswasser am Fenster 34
7Trefz Fenster Preise und Erfahrungen? 14
8Fenster zwischen 2 Räumen 13
9Meinungen zu Brüstungshöhe Fenster gesucht 30
10Für Bullauge, spezielle Vorschriften? Fenster, Einfamilienhaus 1,5 Geschosse. - Seite 218
11Fenster, Vorbaurollladen, Außenputz 10
12Rundes Fenster - unzufrieden mit Innenlaibung 16
13Welche Rollläden bei verschlossenem Fenster, nur Verglasung? 13
14 Küchenplanung mit tiefen Fenster 43
15Fenster im Neubau: Dreifachverglasung mit Grünstich? - Seite 321
16Grundrissfrage, Treppe, Fenster, Ausrichtung 12
17Kniestockhöhe 2 GeschossIg Fenster Traufseite - Seite 214
18Welche Fenster und Türen empfehlenswert? 21
19Bodengleiche Dusche mit Fenster in der Nähe 13
20Grundriss Einfamilienhaus geplant, Fenster gefallen uns 43

Oben