ᐅ Eure Meinung zu unserem Grundriss für ein Einfamilienhaus ohne Keller
Erstellt am: 01.02.18 03:36
B
beatboxkingB
beatboxking01.02.18 03:36Hallo liebe Forengemeinde,
die Zeit des stillen Mitlesens ist vorbei und ich möchte euch heute mein eigenes Bauvorhaben bzw. den aktuellen Stand der Grundrissplanung vorstellen. Die Unterschriften unter den Bauvertrag mittels GU sollen möglichst bald erfolgen, damit noch heuer mit dem Bau begonnen werden kann. Ohne den Segen des Forums trau ich mich allerdings dann doch nicht - viele Augen können ja bekanntlich nicht schaden...
Vielen Dank schon mal für eure Bemühungen - bin gespannt, in welche Richtung sich die Diskussion entwickelt...
Bebauungsplan/Einschränkungen
Größe des Grundstücks: 694qm
Hang: leichter Nordhang
Grundflächenzahl: Max. 0,35
Geschossflächenzahl: Max. 0,8
Baufenster, Baulinie und -grenze: Baufenster = blau 16mx16m, Haus muss an die rote Linie gestellt werden (darf sowohl längs als auch quer gestellt werden - muss aber rechtwinklig zur Baulinie stehen);
Randbebauung: 3m, Garage bzw. Carport darf an die Grenze im Norden gebaut werden
Anzahl Stellplatz: 2
Geschossigkeit: 2 Vollgeschosse
Dachform: Satteldach, Dachneigung 18°-22°
Stilrichtung: modern
Ausrichtung: Süden (evtl. auch nach Osten, wenn die Vorteile eines besseren Grundrisses überwiegen)
Maximale Höhen/Begrenzungen: Max. 7,5m Wandhöhe
weitere Vorgaben: Abmessungen Haus laut Bebauungsplan Max. 14m x 10m, rechteckig mit einem Seitenverhältnis von min. 5:4
Anforderungen der Bauherren
Stilrichtung, Dachform, Gebäudetyp: modern, Satteldach 22°, Holzhaus
Keller, Geschosse: kein Keller, 2 Vollgeschosse
Anzahl der Personen, Alter: 3 Personen, 1 weiteres Kind geplant
Raumbedarf im EG: Technikraum, Duschbad, Büro-/Gästezimmer, Garderobe, großer Koch-/Ess-/Wohnbereich
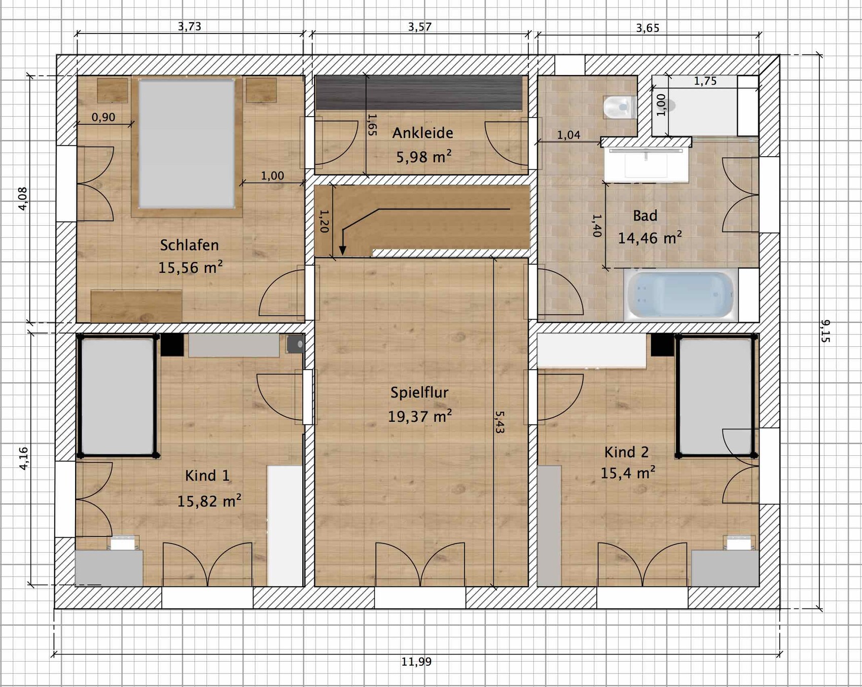
Raumbedarf im OG: 2 Kinderzimmer im Süden, Schlafzimmer, Badezimmer, Ankleide
Büro: Familiennutzung oder Homeoffice? Homeoffice
Schlafgäste pro Jahr: 3-4
offene oder geschlossene Architektur: eher offen
konservativ oder moderne Bauweise: modern
offene Küche, Kochinsel: ja, ja
Anzahl Essplätze: 6-8
Kamin: gerne
Musik/Stereowand: jein
Balkon, Dachterrasse: nein
Garage, Carport: Doppelcarport mit zusätzlichem Abstellraum
Nutzgarten, Treibhaus: später
weitere Wünsche/Besonderheiten/Tagesablauf: Wir möchten keinen direkten Sichtkontakt vom Wohnzimmer in die Küche -> Kamin als Raumteiler; im Technikraum sollen auch Waschmaschine und Trockner stehen können;
Hausentwurf
Von wem stammt die Planung: selbst entworfen anhand eines existierenden Grundrisses
Was gefällt besonders? Warum?: Eigener Zugang vom Schlafzimmer ins Bad (über Ankleide)
Was gefällt nicht? Warum?: Duschbad im EG nicht vom Gästezimmer zugänglich; Aufteilung Badezimmer im OG passt irgendwie nicht zu 100% - Platz am Waschtisch zu klein; Kein Platz für den Fernseher;
Preisschätzung: ca. 400.000€
Persönliches Preislimit fürs Haus, inkl Ausstattung: 450.000€
favorisierte Heiztechnik: Gasbrennwerttherme
Wenn Ihr verzichten müsst, auf welche Details/Ausbauten
-könnt Ihr verzichten: Zugang zum Duschbad im EG vom Gästezimmer aus
-könnt Ihr nicht verzichten: Zugang zum Bad vom Schlafzimmer aus (über Ankleide)
Warum ist der Entwurf so geworden, wie er jetzt ist?
Nach gefühlt 200 gezeichneten Grundrissen ist mir der Plan eines Bauunternehmens in die Hände gefallen, welcher mit wenig Änderungen viele unserer Anforderungen erfüllt.
Was macht ihn in Euren Augen besonders gut oder schlecht? Gut, weil er prinzipiell einfach aufgebaut ist und noch die Möglichkeit zu einem weiteren Zimmer im OG lässt (evtl. eine Art Lese-/Musikecke für später - abgetrennt mit Glas im Sinne eines Wintergartens).
Schlecht, weil es an manchen Ecken halt eben doch nur ein Kompromiss ist - aber das ist beim Hausbau wohl normal, solange das Vermögen endlich ist...
Was ist die wichtigste/grundlegende Frage zum Grundriss in 130 Zeichen zusammengefasst?
Haben wir etwas grundsätzlich falsch gemacht? Würdet Ihr den Wohnraum lieber nach Osten ausrichten? Reichen die Nutzflächen?






die Zeit des stillen Mitlesens ist vorbei und ich möchte euch heute mein eigenes Bauvorhaben bzw. den aktuellen Stand der Grundrissplanung vorstellen. Die Unterschriften unter den Bauvertrag mittels GU sollen möglichst bald erfolgen, damit noch heuer mit dem Bau begonnen werden kann. Ohne den Segen des Forums trau ich mich allerdings dann doch nicht - viele Augen können ja bekanntlich nicht schaden...
Vielen Dank schon mal für eure Bemühungen - bin gespannt, in welche Richtung sich die Diskussion entwickelt...
Bebauungsplan/Einschränkungen
Größe des Grundstücks: 694qm
Hang: leichter Nordhang
Grundflächenzahl: Max. 0,35
Geschossflächenzahl: Max. 0,8
Baufenster, Baulinie und -grenze: Baufenster = blau 16mx16m, Haus muss an die rote Linie gestellt werden (darf sowohl längs als auch quer gestellt werden - muss aber rechtwinklig zur Baulinie stehen);
Randbebauung: 3m, Garage bzw. Carport darf an die Grenze im Norden gebaut werden
Anzahl Stellplatz: 2
Geschossigkeit: 2 Vollgeschosse
Dachform: Satteldach, Dachneigung 18°-22°
Stilrichtung: modern
Ausrichtung: Süden (evtl. auch nach Osten, wenn die Vorteile eines besseren Grundrisses überwiegen)
Maximale Höhen/Begrenzungen: Max. 7,5m Wandhöhe
weitere Vorgaben: Abmessungen Haus laut Bebauungsplan Max. 14m x 10m, rechteckig mit einem Seitenverhältnis von min. 5:4
Anforderungen der Bauherren
Stilrichtung, Dachform, Gebäudetyp: modern, Satteldach 22°, Holzhaus
Keller, Geschosse: kein Keller, 2 Vollgeschosse
Anzahl der Personen, Alter: 3 Personen, 1 weiteres Kind geplant
Raumbedarf im EG: Technikraum, Duschbad, Büro-/Gästezimmer, Garderobe, großer Koch-/Ess-/Wohnbereich
Raumbedarf im OG: 2 Kinderzimmer im Süden, Schlafzimmer, Badezimmer, Ankleide
Büro: Familiennutzung oder Homeoffice? Homeoffice
Schlafgäste pro Jahr: 3-4
offene oder geschlossene Architektur: eher offen
konservativ oder moderne Bauweise: modern
offene Küche, Kochinsel: ja, ja
Anzahl Essplätze: 6-8
Kamin: gerne
Musik/Stereowand: jein
Balkon, Dachterrasse: nein
Garage, Carport: Doppelcarport mit zusätzlichem Abstellraum
Nutzgarten, Treibhaus: später
weitere Wünsche/Besonderheiten/Tagesablauf: Wir möchten keinen direkten Sichtkontakt vom Wohnzimmer in die Küche -> Kamin als Raumteiler; im Technikraum sollen auch Waschmaschine und Trockner stehen können;
Hausentwurf
Von wem stammt die Planung: selbst entworfen anhand eines existierenden Grundrisses
Was gefällt besonders? Warum?: Eigener Zugang vom Schlafzimmer ins Bad (über Ankleide)
Was gefällt nicht? Warum?: Duschbad im EG nicht vom Gästezimmer zugänglich; Aufteilung Badezimmer im OG passt irgendwie nicht zu 100% - Platz am Waschtisch zu klein; Kein Platz für den Fernseher;
Preisschätzung: ca. 400.000€
Persönliches Preislimit fürs Haus, inkl Ausstattung: 450.000€
favorisierte Heiztechnik: Gasbrennwerttherme
Wenn Ihr verzichten müsst, auf welche Details/Ausbauten
-könnt Ihr verzichten: Zugang zum Duschbad im EG vom Gästezimmer aus
-könnt Ihr nicht verzichten: Zugang zum Bad vom Schlafzimmer aus (über Ankleide)
Warum ist der Entwurf so geworden, wie er jetzt ist?
Nach gefühlt 200 gezeichneten Grundrissen ist mir der Plan eines Bauunternehmens in die Hände gefallen, welcher mit wenig Änderungen viele unserer Anforderungen erfüllt.
Was macht ihn in Euren Augen besonders gut oder schlecht? Gut, weil er prinzipiell einfach aufgebaut ist und noch die Möglichkeit zu einem weiteren Zimmer im OG lässt (evtl. eine Art Lese-/Musikecke für später - abgetrennt mit Glas im Sinne eines Wintergartens).
Schlecht, weil es an manchen Ecken halt eben doch nur ein Kompromiss ist - aber das ist beim Hausbau wohl normal, solange das Vermögen endlich ist...
Was ist die wichtigste/grundlegende Frage zum Grundriss in 130 Zeichen zusammengefasst?
Haben wir etwas grundsätzlich falsch gemacht? Würdet Ihr den Wohnraum lieber nach Osten ausrichten? Reichen die Nutzflächen?
Spontan fällt mir auf, dass ihr mit eurem Flur/Windfang nicht glücklich werden werdet. Wie wollte ihr euch zu 4 dort die Schuhe ausziehen???
Gästebad ist wirklich blöd. Aber bei dem Grundriss hätte ich keine Idee das anders zu lösen. Wenn ihr den Flur anders gestaltet, könnte es entspannter werden.
So ein Spielflur hat was, aber ob ihr da lange euren Spaß dran habt ... ich bekomme jetzt schon die Krise, wenn ich durch das Zimmer meines Sohnes muss. Dass auch noch im Flur wird für viel Gefluche und Gehüpfe sorgen.
Dann lieber ein Gästezimmer oben einplanen und unten den Platz für den Flur nehmen. Mit knapp 16 qm sind die Kinderzimmer auch ausreichend groß.
Gästebad ist wirklich blöd. Aber bei dem Grundriss hätte ich keine Idee das anders zu lösen. Wenn ihr den Flur anders gestaltet, könnte es entspannter werden.
So ein Spielflur hat was, aber ob ihr da lange euren Spaß dran habt ... ich bekomme jetzt schon die Krise, wenn ich durch das Zimmer meines Sohnes muss. Dass auch noch im Flur wird für viel Gefluche und Gehüpfe sorgen.
Dann lieber ein Gästezimmer oben einplanen und unten den Platz für den Flur nehmen. Mit knapp 16 qm sind die Kinderzimmer auch ausreichend groß.
J
j.bautsch01.02.18 07:34Ich würde die Türen zur ankleide nach planoben verlegen, so kann der Schrank an die treppenwand und ihr könnt ein Fenster in den Raum setzen, ich finde Tageslicht doch sehr angenehm dann muss natürlich das Bett anders stehen, also auch da das Fenster umplanen.
Netter Anfang. Dennoch würde ich den Plan jetzt entsorgen und noch mal beginnen bzw. gleich den Architekt bitten.
Folgendes Punkte, die mir sofort auffallen:
- Platz unter Treppe sollte als Speisekammer für Küche dienen - falsche Lage,
- Gast und HAR sollten die Plätze tauschen,
- HAR zu knapp, wenn da auch noch Wäsche rein soll
- Ankleide zu eng und vor allem zu dunkel,
- Spielflur riesig im Verhältnis zu den anderen Räumen
- Entfernung WC zu Gast - schon selbst bemängelt
- Sichtachse WZ zu Küche nicht wirklich unterbrochen
- TV - falls gewünscht - steht wo?
Folgendes Punkte, die mir sofort auffallen:
- Platz unter Treppe sollte als Speisekammer für Küche dienen - falsche Lage,
- Gast und HAR sollten die Plätze tauschen,
- HAR zu knapp, wenn da auch noch Wäsche rein soll
- Ankleide zu eng und vor allem zu dunkel,
- Spielflur riesig im Verhältnis zu den anderen Räumen
- Entfernung WC zu Gast - schon selbst bemängelt
- Sichtachse WZ zu Küche nicht wirklich unterbrochen
- TV - falls gewünscht - steht wo?
Bevor ich auf Einzelheiten eingehe, mal diese Einwände:
Windfang kleiner als so manche in Reihenhäusern. Da wird man nicht glücklich -> Stau beim Reinkommen, Stau bei Gästeempfang, Stau beim Kleider verstauen.
1,70 für den TK-Raum, wenn dann da mal die Technik eingezeichnet wird, wird bange eng.
Grundsätzlich hat die Treppe eine falsche Lage, sodass kleine Schlauchzimmer rauskommen (siehe auch OG Ankleide)
Davon mal ab, sind 3,20 oder 3,40 eher zu schmal für ein schönes Essen.
Was unten also zu klein geraten, ist oben zu viel. 14qm Bad wird schon etwas ungemütlich und auch unbequem im Handling -> lange Wege.
Zu den grosszügigen Kinderzimmers gibt es einen Freiraum (ungenutzte Fläche wird dann mal als Spielzone deklariert).
Wie auch immer: grundsätzlich hätte ich beim Betrachten in der zweiten Minute schon gedacht, dass ich das ganze Haus spiegeln würde.
Allerdings ist das alles noch zu unreif -> eine richtige Planung, sich mal hinzusetzen mit seinem aufgeschriebenen Raumprogramm und den Wünschen (es bietet sich ja für den Allraum eher eine L-Form an für den Sichtschutz), sich den Lageplan vorzunehmen und erst mal grob die Ausrichtung von Räumen auf dem Grundstück abzustecken, führt mM nach zu einem besseren Ergebnis.
Windfang kleiner als so manche in Reihenhäusern. Da wird man nicht glücklich -> Stau beim Reinkommen, Stau bei Gästeempfang, Stau beim Kleider verstauen.
1,70 für den TK-Raum, wenn dann da mal die Technik eingezeichnet wird, wird bange eng.
Grundsätzlich hat die Treppe eine falsche Lage, sodass kleine Schlauchzimmer rauskommen (siehe auch OG Ankleide)
Davon mal ab, sind 3,20 oder 3,40 eher zu schmal für ein schönes Essen.
Was unten also zu klein geraten, ist oben zu viel. 14qm Bad wird schon etwas ungemütlich und auch unbequem im Handling -> lange Wege.
Zu den grosszügigen Kinderzimmers gibt es einen Freiraum (ungenutzte Fläche wird dann mal als Spielzone deklariert).
Wie auch immer: grundsätzlich hätte ich beim Betrachten in der zweiten Minute schon gedacht, dass ich das ganze Haus spiegeln würde.
Allerdings ist das alles noch zu unreif -> eine richtige Planung, sich mal hinzusetzen mit seinem aufgeschriebenen Raumprogramm und den Wünschen (es bietet sich ja für den Allraum eher eine L-Form an für den Sichtschutz), sich den Lageplan vorzunehmen und erst mal grob die Ausrichtung von Räumen auf dem Grundstück abzustecken, führt mM nach zu einem besseren Ergebnis.
J
j.bautsch01.02.18 10:12naja 3,20-3,40 sind schon in Ordnung fürs essen. wir haben gerade 2,7 (Mietwohnung), gut das ist schon recht eng mit 90cm Tisch, aber es geht noch, 50-70cm mehr täten gut. 4 Meter wären aber schon eher Luxus, wenns geht ists natürlich schön, ganz klar
Ähnliche Themen