ᐅ Erfahrungsberichte Luftwärmepumpe, Kaminofen, Solaranlage, Geräusche
Erstellt am: 02.09.13 21:12
P
PetriWir möchten Anfang nächsten Jahres ein Einfamilienhaus mit 1 1/2 Etagen, Krüppelwalmdach - Massivhaus bauen.
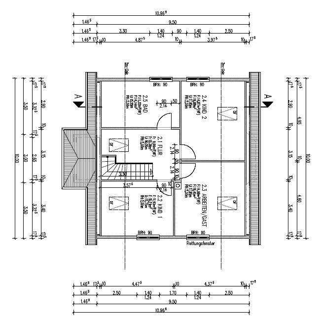
Wir haben nun ein Grundriss, mit dem wir auskommen könnten (im Anhang).
Unser erstes und zweitgrößtes Problem war, dass wir das große Bad (mit Badewanne) im EG haben wollen ebenso unser Schlafzimmer.
Damit erhöht sich die Grundfläche erheblich.
Jetzt meine Fragen, wo ich hoffe ein paar Antworten zu bekommen:
- Hatte jemand evtl. das gleiche Problem mit den beiden Zimmern im EG und welche Lösung wurde gefunden. Oder hat jemand Anregungen zum Grundriss.
- Fußbodenheizung steht fest, aber welche Heizart? Im Moment gucken wir auf luftwärmepumpe, da Erdwärme zu teuer in der Anschaffung ist. Ein Kaminofen steht auch fest sowie eine kleine solaranlage. Kann jemand seine Erfahrung mit Luftwärmepumpe schreiben (Lautstärke, Effizienz)?
Unser Budget ist bei 180.000 €. Wir haben zusätzlich 20.000€ als Nebenkosten eingeplant. Ist das realistisch bei dem Vorhaben? Angebote haben wir schon, allerdings immer das Gefühl nicht ernst genommen zu werden.


Wäre über ein paar Antworten sehr dankbar.
Gruß
Petri


Wir haben nun ein Grundriss, mit dem wir auskommen könnten (im Anhang).
Unser erstes und zweitgrößtes Problem war, dass wir das große Bad (mit Badewanne) im EG haben wollen ebenso unser Schlafzimmer.
Damit erhöht sich die Grundfläche erheblich.
Jetzt meine Fragen, wo ich hoffe ein paar Antworten zu bekommen:
- Hatte jemand evtl. das gleiche Problem mit den beiden Zimmern im EG und welche Lösung wurde gefunden. Oder hat jemand Anregungen zum Grundriss.
- Fußbodenheizung steht fest, aber welche Heizart? Im Moment gucken wir auf luftwärmepumpe, da Erdwärme zu teuer in der Anschaffung ist. Ein Kaminofen steht auch fest sowie eine kleine solaranlage. Kann jemand seine Erfahrung mit Luftwärmepumpe schreiben (Lautstärke, Effizienz)?
Unser Budget ist bei 180.000 €. Wir haben zusätzlich 20.000€ als Nebenkosten eingeplant. Ist das realistisch bei dem Vorhaben? Angebote haben wir schon, allerdings immer das Gefühl nicht ernst genommen zu werden.
Wäre über ein paar Antworten sehr dankbar.
Gruß
Petri
Petri schrieb:
@ Der Da Wieviel müsste man einplanen?20 000 € Baunebenkosten werden nicht reichen, und das Haus wird auch teurer, wenn es Schlüsselfertig sein soll, ohne Eigenleistung. Kamin kostet ne Menge, und die Solaranlage ist auch kein Standardelement, was den Preis sicher nach oben treibt. Ich kann nicht hellsehen, aber ich schätze das Haus auf locker 200-220.000@ nach oben offen, + 35 000 € Baunebenkosten + X
180000 für so ein grosses Haus mit Erkerchen und Gaube und Euren Extra-Wünschen? Das gibt es nicht. Wenn Du nur 10 Minuten mal hier im Forum überflogen hättest, dann weisst Du, wieviel Haus und Hof kostet.
Ist ein Grundstück vorhanden? Mit Bodengutachten? ... Baunebenkosten mal höher schrauben, 20000 sind zu wenig. Hier wird mit 35000 € kalkuliert.
Hat das Grundstück schon Pflaster, Rasen und Bäume? Nein? Dann mal ne Summe x bereitstellen. 10000 € können das schon werden.
Ich denke mir, Euer Budgetvorstellungen sind der Grund, warum Ihr nicht Ernst genommen werdet.
Ist ein Grundstück vorhanden? Mit Bodengutachten? ... Baunebenkosten mal höher schrauben, 20000 sind zu wenig. Hier wird mit 35000 € kalkuliert.
Hat das Grundstück schon Pflaster, Rasen und Bäume? Nein? Dann mal ne Summe x bereitstellen. 10000 € können das schon werden.
Ich denke mir, Euer Budgetvorstellungen sind der Grund, warum Ihr nicht Ernst genommen werdet.
Ähnliche Themen