Hallo liebe Forumsmitglieder.
Wir sind mittlerweile zu viert und wollen uns nun endlich den Traum vom Eigenheim erfüllen. Dafür haben wir bereits ein Grundstück und auch einen GU, der mit uns baut. In den letzten Monaten haben wir also unermüdlich Pläne gewälzt, Informationen gesammelt und sind mittlerweile soweit, dass wir einen genehmigten Bauantrag haben. Die „Rahmendaten“ des Hauses sind also eigentlich schon klar. Da wir nun aber auf die konkrete Freigabe der Detailplanung zugehen, kommen uns doch Zweifel, ob wir nicht zu lange nur „im eigenen Saft“ gebrütet haben.
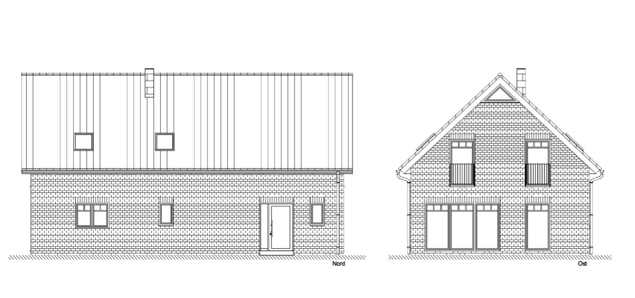
Der Grundriss hat uns einiges Kopfzerbrechen bereitet, da das Grundstück nur 14 Meter breit ist und daher die maximale Breite des Hauses 8 Meter beträgt. Zudem wollten wir gerne einen Kamin in einem möglichst offenen Wohnbereich. Durch große Fenster und damit hoffentlich viel Licht möchten wir eine freundliche Atmosphäre erzeugen. Auf den Screenshots ist die Süd-Seite übrigens oben.
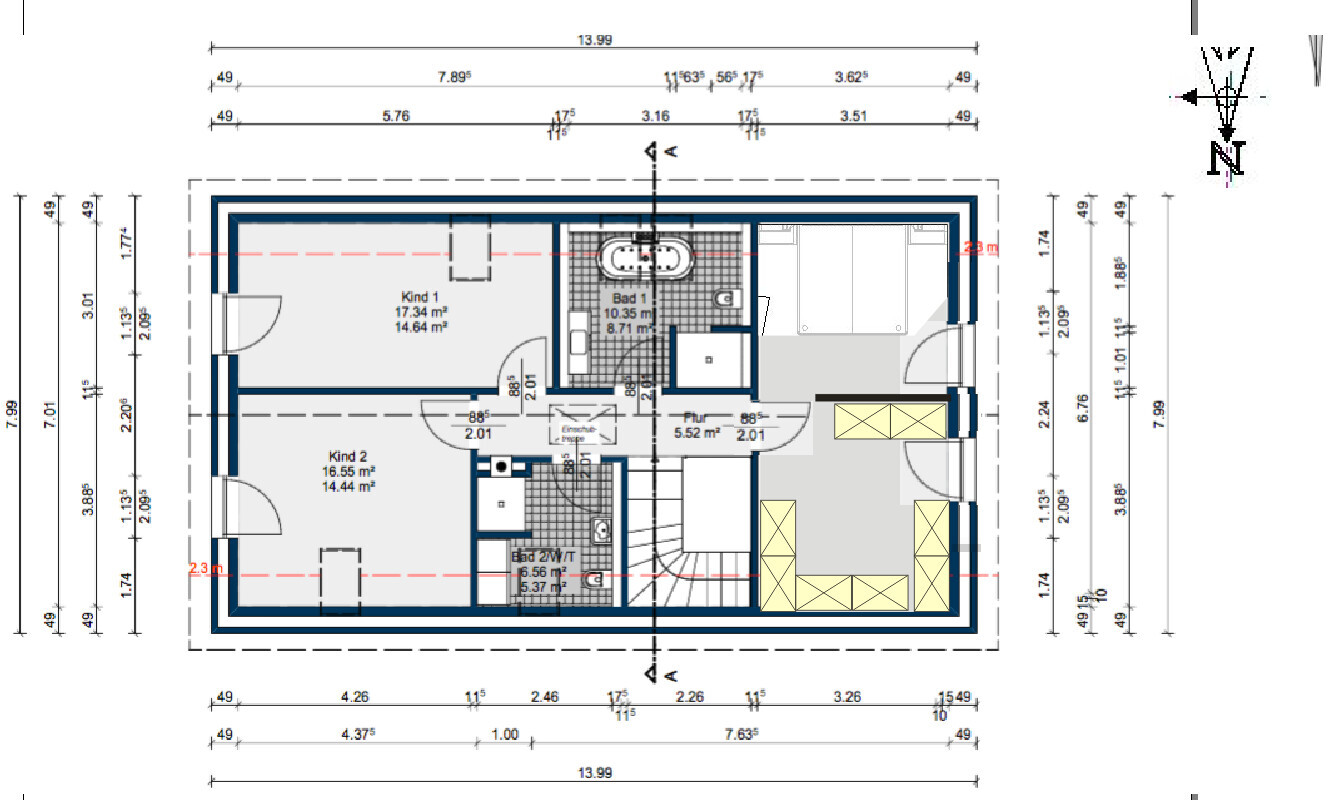
Daraus ist dann der angehängte Grundriss geworden. Eine Herausforderung ist in jedem Fall genügend Stellfläche für Schränke und andere Möbel zu haben. Das scheint nach unseren aktuellen Visualisierungen aber einigermaßen zu passen. Damit das noch etwas besser gelingt, haben wir uns schon dazu entschlossen die Breiten der Fenster auf der Süd-Seite etwas zu reduzieren.
Unsicher sind wir noch bei der „Ecke“ im Arbeitszimmer. In diese könnten wir entweder einen Schreibtisch oder ein Bett stellen, allerdings könnte man dort auch die Wand schließen und über einen Zugang von der Diele eine separate Garderobe erhalten. Ein weiterer Punkt ist das aus unserer Sicht ziemlich große Schlafzimmer – dies soll keine separate Ankleide bekommen, aber als ein großer Raum ist er auch schwierig einzurichten.
Wir würden uns sehr freuen, wenn ihr einmal mit unvoreingenommenem Blick auf den Grundriss schaut und ihn kommentiert.
Vielen Dank dafür schon einmal im Voraus!
Sonja und Simon
Bebauungsplan/Einschränkungen
Größe des Grundstücks: 1000qm
Hang: Nein
Grundflächenzahl: 0,2
Geschossflächenzahl: -
Baufenster, Baulinie und –grenze: Nachbarschaftsbebauung
Randbebauung: Nein
Anzahl Stellplatz: 1
Geschossigkeit: 1 Vollgeschoss
Dachform: Satteldach
Stilrichtung: Klassisch
Ausrichtung: Ost
Maximale Höhen/Begrenzungen: -
weitere Vorgaben: -
Anforderungen der Bauherren
Stilrichtung, Dachform, Gebäudetyp: Klassisches Einfamilienhaus mit Satteldach
Keller, Geschosse: 1 Vollgeschoss
Anzahl der Personen, Alter: 4 (2 Erwachsene, 2 kleine Kinder)
Raumbedarf im EG: Wohnzimmer, Esszimmer, Küche, Hauswirtschaftsraum, Gäste-WC, Arbeits/Gästezimmer
Raumbedarf im OG: Schlafzimmer, 2 Kinderzimmer, Bad
Büro: Familiennutzung oder Homeoffice?: Familiennutzung
Schlafgäste pro Jahr: sehr wenig (5-6)
offene oder geschlossene Architektur: Offen
konservativ oder moderne Bauweise: Konservativ
offene Küche, Kochinsel: ja
Anzahl Essplätze: 6
Kamin: ja
Musik/Stereowand: Nein
Balkon, Dachterrasse: Nein
Garage, Carport: Carport kommt später
Nutzgarten, Treibhaus: Nein
weitere Wünsche/Besonderheiten/Tagesablauf, gern auch Begründungen, warum dieses oder das nicht sein soll: -
Hausentwurf
Von wem stammt die Planung: Planer eines Bauunternehmens
Was gefällt besonders? Warum?: Das offene Wohn-/Esszimmer mit dem Durchgang zum kleinen Arbeitszimmer. Wir planen die Zwischentür meist offen zu lassen, sodass wir den ganzen Tag über Licht in diesen zentralen Räumen haben. Außerdem freuen wir uns darauf beim Kochen nicht mehr wie in unserer jetzigen kleinen Küche abgeschieden vom Rest der Familie zu sein.
Was gefällt nicht? Warum?: -
Preisschätzung lt Architekt/Planer: -
Persönliches Preislimit fürs Haus, inkl Ausstattung: -
favorisierte Heiztechnik: Gas
Wenn Ihr verzichten müsst, auf welche Details/Ausbauten
-könnt Ihr verzichten: ?
-könnt Ihr nicht verzichten: Offenen Bereich mit Küche, Ess-, Wohnzimmer sowie den Kamin
Warum ist der Entwurf so geworden, wie er jetzt ist?
Wir haben lange mit dem Planer und auch alleine zusammengesessen, um unsere verschiedenen Anforderungen unter einen Hut zu bekommen. Er hat sich große Mühe gegeben diese alle in einem Grundriss zu vereinen.
Was ist die wichtigste/grundlegende Frage zum Grundriss in 130 Zeichen zusammengefasst?
Wie würdet ihr Arbeitszimmer und Schlafzimmer planen und fallen euch „grobe Schnitzer“ in unserem Grundriss auf?






Wir sind mittlerweile zu viert und wollen uns nun endlich den Traum vom Eigenheim erfüllen. Dafür haben wir bereits ein Grundstück und auch einen GU, der mit uns baut. In den letzten Monaten haben wir also unermüdlich Pläne gewälzt, Informationen gesammelt und sind mittlerweile soweit, dass wir einen genehmigten Bauantrag haben. Die „Rahmendaten“ des Hauses sind also eigentlich schon klar. Da wir nun aber auf die konkrete Freigabe der Detailplanung zugehen, kommen uns doch Zweifel, ob wir nicht zu lange nur „im eigenen Saft“ gebrütet haben.
Der Grundriss hat uns einiges Kopfzerbrechen bereitet, da das Grundstück nur 14 Meter breit ist und daher die maximale Breite des Hauses 8 Meter beträgt. Zudem wollten wir gerne einen Kamin in einem möglichst offenen Wohnbereich. Durch große Fenster und damit hoffentlich viel Licht möchten wir eine freundliche Atmosphäre erzeugen. Auf den Screenshots ist die Süd-Seite übrigens oben.
Daraus ist dann der angehängte Grundriss geworden. Eine Herausforderung ist in jedem Fall genügend Stellfläche für Schränke und andere Möbel zu haben. Das scheint nach unseren aktuellen Visualisierungen aber einigermaßen zu passen. Damit das noch etwas besser gelingt, haben wir uns schon dazu entschlossen die Breiten der Fenster auf der Süd-Seite etwas zu reduzieren.
Unsicher sind wir noch bei der „Ecke“ im Arbeitszimmer. In diese könnten wir entweder einen Schreibtisch oder ein Bett stellen, allerdings könnte man dort auch die Wand schließen und über einen Zugang von der Diele eine separate Garderobe erhalten. Ein weiterer Punkt ist das aus unserer Sicht ziemlich große Schlafzimmer – dies soll keine separate Ankleide bekommen, aber als ein großer Raum ist er auch schwierig einzurichten.
Wir würden uns sehr freuen, wenn ihr einmal mit unvoreingenommenem Blick auf den Grundriss schaut und ihn kommentiert.
Vielen Dank dafür schon einmal im Voraus!
Sonja und Simon
Bebauungsplan/Einschränkungen
Größe des Grundstücks: 1000qm
Hang: Nein
Grundflächenzahl: 0,2
Geschossflächenzahl: -
Baufenster, Baulinie und –grenze: Nachbarschaftsbebauung
Randbebauung: Nein
Anzahl Stellplatz: 1
Geschossigkeit: 1 Vollgeschoss
Dachform: Satteldach
Stilrichtung: Klassisch
Ausrichtung: Ost
Maximale Höhen/Begrenzungen: -
weitere Vorgaben: -
Anforderungen der Bauherren
Stilrichtung, Dachform, Gebäudetyp: Klassisches Einfamilienhaus mit Satteldach
Keller, Geschosse: 1 Vollgeschoss
Anzahl der Personen, Alter: 4 (2 Erwachsene, 2 kleine Kinder)
Raumbedarf im EG: Wohnzimmer, Esszimmer, Küche, Hauswirtschaftsraum, Gäste-WC, Arbeits/Gästezimmer
Raumbedarf im OG: Schlafzimmer, 2 Kinderzimmer, Bad
Büro: Familiennutzung oder Homeoffice?: Familiennutzung
Schlafgäste pro Jahr: sehr wenig (5-6)
offene oder geschlossene Architektur: Offen
konservativ oder moderne Bauweise: Konservativ
offene Küche, Kochinsel: ja
Anzahl Essplätze: 6
Kamin: ja
Musik/Stereowand: Nein
Balkon, Dachterrasse: Nein
Garage, Carport: Carport kommt später
Nutzgarten, Treibhaus: Nein
weitere Wünsche/Besonderheiten/Tagesablauf, gern auch Begründungen, warum dieses oder das nicht sein soll: -
Hausentwurf
Von wem stammt die Planung: Planer eines Bauunternehmens
Was gefällt besonders? Warum?: Das offene Wohn-/Esszimmer mit dem Durchgang zum kleinen Arbeitszimmer. Wir planen die Zwischentür meist offen zu lassen, sodass wir den ganzen Tag über Licht in diesen zentralen Räumen haben. Außerdem freuen wir uns darauf beim Kochen nicht mehr wie in unserer jetzigen kleinen Küche abgeschieden vom Rest der Familie zu sein.
Was gefällt nicht? Warum?: -
Preisschätzung lt Architekt/Planer: -
Persönliches Preislimit fürs Haus, inkl Ausstattung: -
favorisierte Heiztechnik: Gas
Wenn Ihr verzichten müsst, auf welche Details/Ausbauten
-könnt Ihr verzichten: ?
-könnt Ihr nicht verzichten: Offenen Bereich mit Küche, Ess-, Wohnzimmer sowie den Kamin
Warum ist der Entwurf so geworden, wie er jetzt ist?
Wir haben lange mit dem Planer und auch alleine zusammengesessen, um unsere verschiedenen Anforderungen unter einen Hut zu bekommen. Er hat sich große Mühe gegeben diese alle in einem Grundriss zu vereinen.
Was ist die wichtigste/grundlegende Frage zum Grundriss in 130 Zeichen zusammengefasst?
Wie würdet ihr Arbeitszimmer und Schlafzimmer planen und fallen euch „grobe Schnitzer“ in unserem Grundriss auf?
Hmm, der Grundriss entspricht aber nicht dem letzten Stand der Küchenplanung (anderes Forum 😉 ). Die Fenster im Küchenbereich stimmen so nicht.
Und auch hier merke ich nochmal die 2 Zugänge zum Hauswirtschaftsraum an. Sie klauen sehr viel Stellmöglichkeiten im Hauswirtschaftsraum.
Im OG-Schlafzimmer würde ich die Position der Fenster etwas mehr Richtung Hausmitte ziehen. Das Fenster im EG kann ja angepasst werden. Im OG dann auch den Anschlag ändern. Dann kann ein Bett mit Kopfteil an die planobere Wand und unten den Bereich kann man für Schränke nutzen.

Und auch hier merke ich nochmal die 2 Zugänge zum Hauswirtschaftsraum an. Sie klauen sehr viel Stellmöglichkeiten im Hauswirtschaftsraum.
Im OG-Schlafzimmer würde ich die Position der Fenster etwas mehr Richtung Hausmitte ziehen. Das Fenster im EG kann ja angepasst werden. Im OG dann auch den Anschlag ändern. Dann kann ein Bett mit Kopfteil an die planobere Wand und unten den Bereich kann man für Schränke nutzen.
Mmh,
so ein paar Knackpunkte würden mich ja schon stören:
1. der Weg vom Eingang bis zur Küche gleicht ja einem Eiertanz. Da möchte ich nicht der sein, der den Kühlschrank füllen muss.
2. Die Entwässerung von Bad 1 dürfte dann quer durchs WZ erfolgen oder wie ist da der Plan?
3. Wozu soll die Ecke im Arbeitszimmer dienen? Die hat eine Größe, so dass sie genau zu nichts dient. Die würd ich kappen und dafür im Flur lieber die Garderobe rein planen.
4. Eine schmale Techniktür ist so eine Sache. Wenn erstmal alles drin ist, ok. Aber wehe, der Warmwasserspeicher oder die Heizung muss dann mal getauscht werden. Dann fangt Ihr an die Tür auszubauen und die Wände einzureißen.
5. Eingang und Treppe würden bei mir gefühlt die Plätze tauschen. Schon um schneller mit den Tüten in der Küche zu sein und die Bestands-Garage spricht auch dafür.
6. Die Kinderzimmers sind ok, aber irgendwie schlecht einrichtbar. Entweder man rennt gegen den Schrank, wenn man rein kommt oder das schmale Zimmer wird durch den Schrank noch schmaler. Da würde ich eher weniger Platz aber bessere Möblierbarkeit versuchen. Ist aber Geschmackssache.
7. Kerstins Vorschlag find ich super. Alternativ noch eine Variante mit Megafenster und Platz zum Tanzen:
8. Wieso sind bei 2m Kniestock (geschätzt) an der Seite keine Fenster?
so ein paar Knackpunkte würden mich ja schon stören:
1. der Weg vom Eingang bis zur Küche gleicht ja einem Eiertanz. Da möchte ich nicht der sein, der den Kühlschrank füllen muss.
2. Die Entwässerung von Bad 1 dürfte dann quer durchs WZ erfolgen oder wie ist da der Plan?
3. Wozu soll die Ecke im Arbeitszimmer dienen? Die hat eine Größe, so dass sie genau zu nichts dient. Die würd ich kappen und dafür im Flur lieber die Garderobe rein planen.
4. Eine schmale Techniktür ist so eine Sache. Wenn erstmal alles drin ist, ok. Aber wehe, der Warmwasserspeicher oder die Heizung muss dann mal getauscht werden. Dann fangt Ihr an die Tür auszubauen und die Wände einzureißen.
5. Eingang und Treppe würden bei mir gefühlt die Plätze tauschen. Schon um schneller mit den Tüten in der Küche zu sein und die Bestands-Garage spricht auch dafür.
6. Die Kinderzimmers sind ok, aber irgendwie schlecht einrichtbar. Entweder man rennt gegen den Schrank, wenn man rein kommt oder das schmale Zimmer wird durch den Schrank noch schmaler. Da würde ich eher weniger Platz aber bessere Möblierbarkeit versuchen. Ist aber Geschmackssache.
7. Kerstins Vorschlag find ich super. Alternativ noch eine Variante mit Megafenster und Platz zum Tanzen:
8. Wieso sind bei 2m Kniestock (geschätzt) an der Seite keine Fenster?
Recht spontan bezüglich der Angabe „oben ist Süden“ würde ich das Haus spiegeln.
Mit Foto vom Grundstück müsste ich da für mich allerdings etwas länger sinnieren.
Wie dem auch sei: ich hätte keine Lust, ständig durch die Chillounge zu gegen, wenn ich zur Küche möchte. Würde wohl das WZ mehr in Ecke setzen und die Küche als Durchgang in den Süden nehmen.
Gast durch WZ: Geschmackssache. Ich hätte es auch beinahe gemacht.... Wir haben jetzt das Büro separat, was auch gut so ist, da ich es auch als Sportzimmer benutze und so unabhängiger bin. Ecke dicht machen und als Garderobenkammer nehmen.
Toilette im Kinderbad ist nicht normgerecht. Die muss in die ü2Meterlinie verschoben werden.
Nun ja. Und die Lage der Treppe ist in der Eingangs schmutzzone... oft ist das nicht änderbar, aber ich würde immer zusehen, dass es anders geht
Hier sollte sich sogar eine gerade Treppe anbieten.
Mit Foto vom Grundstück müsste ich da für mich allerdings etwas länger sinnieren.
Wie dem auch sei: ich hätte keine Lust, ständig durch die Chillounge zu gegen, wenn ich zur Küche möchte. Würde wohl das WZ mehr in Ecke setzen und die Küche als Durchgang in den Süden nehmen.
Gast durch WZ: Geschmackssache. Ich hätte es auch beinahe gemacht.... Wir haben jetzt das Büro separat, was auch gut so ist, da ich es auch als Sportzimmer benutze und so unabhängiger bin. Ecke dicht machen und als Garderobenkammer nehmen.
Toilette im Kinderbad ist nicht normgerecht. Die muss in die ü2Meterlinie verschoben werden.
Nun ja. Und die Lage der Treppe ist in der Eingangs schmutzzone... oft ist das nicht änderbar, aber ich würde immer zusehen, dass es anders geht
Hier sollte sich sogar eine gerade Treppe anbieten.
ypg schrieb:
Toilette im Kinderbad ist nicht normgerecht. Die muss in die ü2Meterlinie verschoben werden.Die Linie ist 2,3m - seltsamerweise - hat mich auch verwirrt.ypg schrieb:
Hier sollte sich sogar eine gerade Treppe anbieten.Das würde ich nicht sehen, da das Haus zu schmal ist und im OG dann ein ewig langer breiter Flur entstünde. Es sei denn, Du willst quer?Aber ich sehe eher die Podesttreppe - mal wieder.
Ähnliche Themen