Einfamilienhaus vom Architekt 150m² Verbesserungsvorschläge und Ideen gesucht

4,20 Stern(e) 11 Votes
Zuletzt aktualisiert 18.11.2025
Sie befinden sich auf der Seite 8 der Diskussion zum Thema: Einfamilienhaus vom Architekt 150m² Verbesserungsvorschläge und Ideen gesucht
>> Zum 1. Beitrag <<

D

DimaNDS

Sorry, man. Aber das ist eins der schlechtesten Grundstücke, die ich je hier gesehen habe. Zumindest, wenn man ne 9m Garage braucht. Mal ab von der Zufahrt, hast Du mal überlegt, wie lang Deine Leitungen bis zum Hauswirtschaftsraum werden? Krass!

Da würden mich die einzelnen Küchenschränke erst mal gar nicht tangieren.
Da gebe ich dir Recht, es ist nicht einfach.
Bei der aktuellen Situation hier kann man sich das nicht aussuchen. Auf 24 Grundstücke kamen 1.200 Bewerbungen. Da kann man schon froh sein eins zu bekommen.
Wir müssen nun das beste daraus machen.

Wenn du noch weitere Ideen hast gerne. Finde es toll das Ihr so aktiv dabei seid.
 
kaho674

kaho674

Ja, dachte mir schon, dass die Nachfrage galaktisch sein muss.
Hast Du mal gefragt, was die 25m Leitungen quer durchs Grundstück kosten sollen? Sind die schon einkalkuliert?

Habt Ihr Euch schon bewußt gegen die Südausrichtung mit Garage um die Ecke entschieden?:


2D-Grundriss eines Hauses mit Schlafzimmer, Wohnzimmer, Küche und Bad

Da wäre die Leitungen "nur" um die 15m.
 
D

DimaNDS

Das wäre schon Denkbar. Allerdings müsste ich den Grundriss dann komplett von 0 anfangen und mit Abendsonne ist dann auch eher nicht. Lass mich mal noch ein wenig darüber Nachdenken.
 
kaho674

kaho674

Naja ich würde bei der :
Preisschätzung lt Architekt/Planer: 330T€ Inkl. Außenanlagen, und Küche
mal explizit nach den Leitungen fragen. Vielleicht ist es ja erschwinglich.
Ist das ein GU oder ein Architekt?
 
kbt09

kbt09

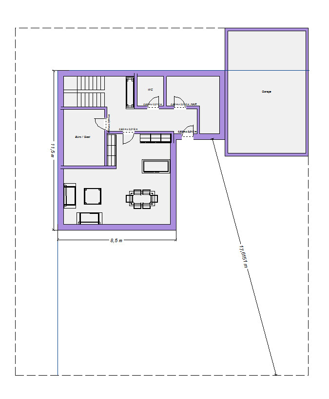
So schlecht finde ich die ursprüngliche Hausposition nicht:

Grundriss eines Gebäudekomplexes: zentraler grauer Gebäudekern, umliegende Baukörper, Maßlinien.


Durch die nördlichen Grundstücke über die Garage auf dem rechten Grundstück kann im Sommer da durchaus noch Nordwest-Abendsonne in den freien Grundstücksbereich kommen.

Nicht von der Hand weisen ist allerdings der Technikraum. Kann es sein, dass die Medien evtl. auch von Osten, also planrechts kommen können?

... und, klären, ob First wirklich nur Ost/West darf
 
Zuletzt bearbeitet:
kaho674

kaho674

Sollte man vielleicht über sowas nachdenken?


Grundriss eines Hauses: Wohnzimmer mit Esstisch und Sofa, Küche, Bad, WC und Garage.

Das ist ja nicht überall gleich aber normalerweise dürfen und sollten Leitungen ja auch nicht überbaut werden. Das würde bedeuten, Du musst noch ein ganzes Stück um's Haus bei Deinem Entwurf. Uff!
Deswegen hier der Versuch, den Anschluss mit an die "Einfahrt" zu bekommen.
 
Zuletzt aktualisiert 18.11.2025
Im Forum Grundrissplanung / Grundstücksplanung gibt es 2536 Themen mit insgesamt 87965 Beiträgen


Ähnliche Themen zu Einfamilienhaus vom Architekt 150m² Verbesserungsvorschläge und Ideen gesucht
Nr.ErgebnisBeiträge
1Leitungen vom Haus in die Garage einführen 14
2Bau Garage auf Grenze geht lt. Architekt nicht. 11
3Gas,- Wasser, Strom,- Telefonleitungen überbauen mit Garage? 13
4Garage: Gestaltungsmöglichkeit des Daches, Erscheinungsbild - Seite 214
5Haus und Garage - Wie am besten auf den Grundstücken platzieren? 67
6Bewerbung für ein Neubaugebiet: Auswahl der Grundstücke - Seite 341
7Garage bündig oder versetzt zum Haus stellen? - Seite 423
8Braucht man LAN Kabel in der Garage? - Seite 12107
9Fehlplanung Bayern - Gefälle zu Haus und Garage hin - statt weg 23
10Abdichtung der Garage mit Betonboden? 21
11Hausplan von Architekt 2 Geschosse mit Keller 18
12Umbau mit Architekt: Anregungen zum Haus-Grundriss gewünscht 21
13Haus, Garage / Carport auf dem Grundstück platzieren 93
14Einfamilienhaus mit Garage am leichten Hang 17
15Einfamilienhaus 172qm mit Garage und Sauna 54
16Beendigung der Zusammenarbeit mit Architekt nach LF4 - Wie weiter? - Seite 532
17Modernes Einfamilienhaus mit Architekt in Süddeutschland 25
18Architekt hat nicht geliefert - wer bleibt auf den Kosten sitzen? - Seite 468
19Einfamilienhaus,Zwei Varianten Grundriss vom Architekt 39
20Grenzbebauung Garage und Schuppen Max. 9 Meter -mehr geht nicht? - Seite 420

Oben