H
heilmaenner29.06.20 19:26Hallo ins Forum. Mein erster Beitrag, lese schon eine Weile mit. Sohn (8 Mo.), Frau und ich (37 und 38) planen unser Eigenheim. Ein Grundstück von 620 qm in einem Neubaugebiet haben wir bereits erworben.
Im Bebauungsplan (Lage in Südhessen) ist nur 1 Vollgeschoss erlaubt, daher haben wir uns für eine Staffelbauweise (75% der EG-Fläche im 1. OG) entschieden. Ich tendiere zu einem Flachdach, meine Frau eher zu einem Walmdach. Eine Photovoltaikanlage soll aufs Dach, ein Batteriespeicher ins Haus. Wird wohl in Richtung KfW-Effizienzhaus 40+ gehen. Ein Keller ist nicht vorgesehen, vor allem aus Kostengründen. Das Bauland ist recht flach, ca 1,5 Meter Gefälle von Ost nach West.
Zum Haus selbst: Offener Wohn-Koch-Essbereich, Speisekammer, Gäste-/Arbeitszimmer, gerade offene Treppe, 2 Kinderzimmer, Elternbereich mit Ankleide. Aus diversen Gründen wird es ein Haus eines Fertighausanbieters, eine Niederlassung der Firma ist vor Ort.
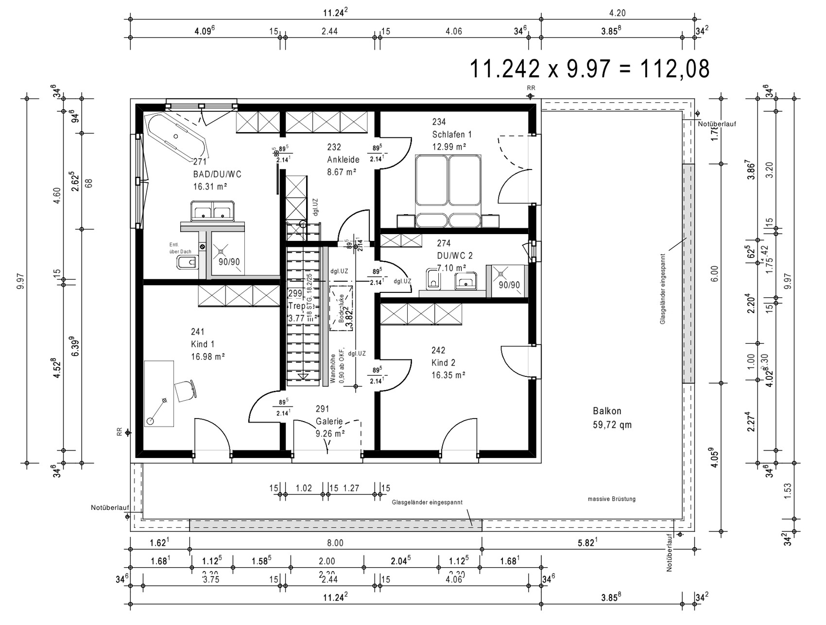
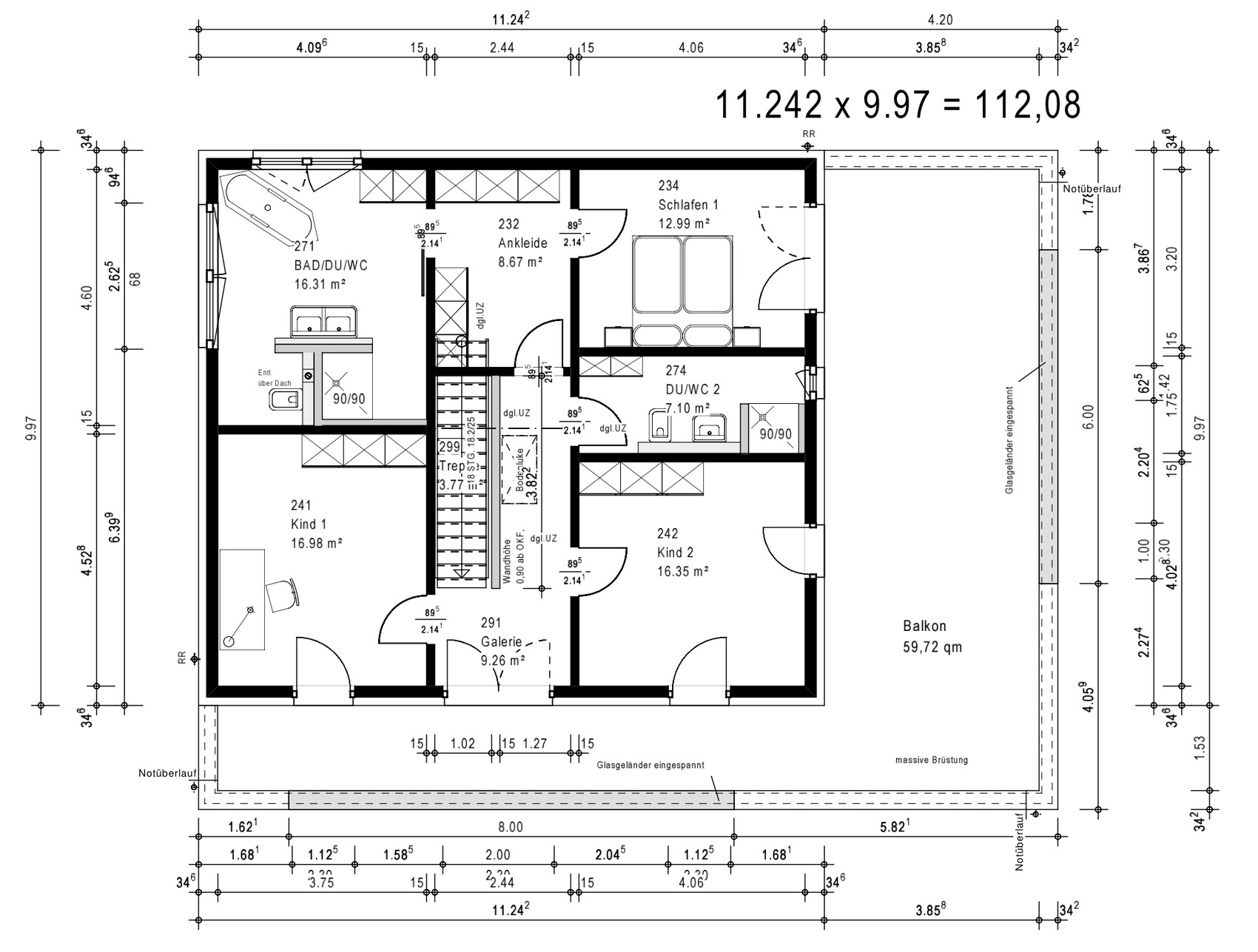
Der Architekt der Firma war bereits tätig und hat einen ersten Entwurf angefertigt, bei dem wir bereits eine Anpassungen haben vornehmen lassen. Den aktuellen Planungsstand seht ihr angefügt. Unsere Schwieirgkeiten liegen noch im Bereich der Küche bzw. in der Westfront: Dort sind Hauswirtschaftsraum und Speisekammer untergebracht, die Küche mit Blick Richtung Straße/Westen/Abendsonne wäre uns lieber, aber wir bekommen das nicht vernünftig untergebracht.
An die nordwestliche Grundstücksgrenze soll eine Doppelgarage 3x6 m plus Hobbywerkstatt 3x3m gesetzt werden ohne Innenwände. Außerdem soll das ganze Haus weiter nach Nordosten verschoben werden, um im Südwesten den meisten Platz für den Garten zu haben.
Meiner Frau und mir fehlt momentan irgendwie eine frische Denke, daher wende ich mich an euch. Über Kritik und Anregungen würden wir uns freuen...



Im Bebauungsplan (Lage in Südhessen) ist nur 1 Vollgeschoss erlaubt, daher haben wir uns für eine Staffelbauweise (75% der EG-Fläche im 1. OG) entschieden. Ich tendiere zu einem Flachdach, meine Frau eher zu einem Walmdach. Eine Photovoltaikanlage soll aufs Dach, ein Batteriespeicher ins Haus. Wird wohl in Richtung KfW-Effizienzhaus 40+ gehen. Ein Keller ist nicht vorgesehen, vor allem aus Kostengründen. Das Bauland ist recht flach, ca 1,5 Meter Gefälle von Ost nach West.
Zum Haus selbst: Offener Wohn-Koch-Essbereich, Speisekammer, Gäste-/Arbeitszimmer, gerade offene Treppe, 2 Kinderzimmer, Elternbereich mit Ankleide. Aus diversen Gründen wird es ein Haus eines Fertighausanbieters, eine Niederlassung der Firma ist vor Ort.
Der Architekt der Firma war bereits tätig und hat einen ersten Entwurf angefertigt, bei dem wir bereits eine Anpassungen haben vornehmen lassen. Den aktuellen Planungsstand seht ihr angefügt. Unsere Schwieirgkeiten liegen noch im Bereich der Küche bzw. in der Westfront: Dort sind Hauswirtschaftsraum und Speisekammer untergebracht, die Küche mit Blick Richtung Straße/Westen/Abendsonne wäre uns lieber, aber wir bekommen das nicht vernünftig untergebracht.
An die nordwestliche Grundstücksgrenze soll eine Doppelgarage 3x6 m plus Hobbywerkstatt 3x3m gesetzt werden ohne Innenwände. Außerdem soll das ganze Haus weiter nach Nordosten verschoben werden, um im Südwesten den meisten Platz für den Garten zu haben.
Meiner Frau und mir fehlt momentan irgendwie eine frische Denke, daher wende ich mich an euch. Über Kritik und Anregungen würden wir uns freuen...
H
heilmaenner29.06.20 19:49Mist, habe den Thread wohl in den falschen Forenbereich inseriert, kann auch gerne verschoben werden.
Hier noch ergänzende Infos:
Bebauungsplan/Einschränkungen
620 qm
Leichtes Gefälle, von Ost nach West 1,5 bis 2 Meter (Vermessung läuft)
Grundflächenzahl 0,4
Geschossflächenzahl 0,4
Feldrandlage
1 Vollgeschoss
Dachform egal
Offene Bauweise, Einzelhaus
Sonst laut Bebauungsplan keine weiteren Vorgaben
Anforderungen der Bauherren
Stilrichtung Richtung Bauhaus oder Stadtvilla
Kein Keller (Kostengründe), 1 Vollgeschoss (EG), 1 Staffelgeschoss (OG)
Anzahl der Personen derzeit 3, evtl. 4. (>1J., 37 und 38J.
Raumbedarf im EG, OG zusammen ca. 200-220 qm
Büro: Familiennutzung bzw. für Gäste
offene oder geschlossene Architektur: offen
konservativ oder moderne Bauweise: modern
offene Küche, Kochinsel ja
Anzahl Essplätze 8-10
Vielleicht Kamin, aber nur Petroleum
Balkon
Doppelgarage mit offener Werkstatt (Mountainbikes)
Nutzgarten, Treibhaus nein
Hausentwurf
Von wem stammt die Planung:
-Planer eines Bauunternehmens
Was gefällt besonders? Warum?
Was gefällt nicht? Die Küchenlage bzw. die Lage von Hauswirtschaftsraum und Speisekammer, die besten Blick nach Westen haben.
Preisschätzung lt Architekt/Planer: 500.000 - 600.000€
Persönliches Preislimit fürs Haus, inkl Ausstattung: 600.000€, das Grundstück ist bereits bezahlt und geht hier nicht in die Kosten mit ein.
favorisierte Heiztechnik: Luft-Wasser-Wärmepumpe oder Luft-luftwärmepumpe
Wenn Ihr verzichten müsst, auf welche Details/Ausbauten
-könnt Ihr verzichten: ?
-könnt Ihr nicht verzichten:?
Warum ist der Entwurf so geworden, wie er jetzt ist? ZB
Aufbauend auf einem Standardentwurf vom Fertighausanbieter, allerdings mit einigen Anbauten.
Was macht ihn in Euren Augen besonders gut oder schlecht?
Was ist die wichtigste/grundlegende Frage zum Grundriss in 130 Zeichen zusammengefasst?
Was machen wir mit der Lage der Küche? Ist das hell genug? Gibt es eine Möglichkeit, die Küche an die westliche Wand (zur Straße) zu bekommen?
Hier noch ergänzende Infos:
Bebauungsplan/Einschränkungen
620 qm
Leichtes Gefälle, von Ost nach West 1,5 bis 2 Meter (Vermessung läuft)
Grundflächenzahl 0,4
Geschossflächenzahl 0,4
Feldrandlage
1 Vollgeschoss
Dachform egal
Offene Bauweise, Einzelhaus
Sonst laut Bebauungsplan keine weiteren Vorgaben
Anforderungen der Bauherren
Stilrichtung Richtung Bauhaus oder Stadtvilla
Kein Keller (Kostengründe), 1 Vollgeschoss (EG), 1 Staffelgeschoss (OG)
Anzahl der Personen derzeit 3, evtl. 4. (>1J., 37 und 38J.
Raumbedarf im EG, OG zusammen ca. 200-220 qm
Büro: Familiennutzung bzw. für Gäste
offene oder geschlossene Architektur: offen
konservativ oder moderne Bauweise: modern
offene Küche, Kochinsel ja
Anzahl Essplätze 8-10
Vielleicht Kamin, aber nur Petroleum
Balkon
Doppelgarage mit offener Werkstatt (Mountainbikes)
Nutzgarten, Treibhaus nein
Hausentwurf
Von wem stammt die Planung:
-Planer eines Bauunternehmens
Was gefällt besonders? Warum?
Was gefällt nicht? Die Küchenlage bzw. die Lage von Hauswirtschaftsraum und Speisekammer, die besten Blick nach Westen haben.
Preisschätzung lt Architekt/Planer: 500.000 - 600.000€
Persönliches Preislimit fürs Haus, inkl Ausstattung: 600.000€, das Grundstück ist bereits bezahlt und geht hier nicht in die Kosten mit ein.
favorisierte Heiztechnik: Luft-Wasser-Wärmepumpe oder Luft-luftwärmepumpe
Wenn Ihr verzichten müsst, auf welche Details/Ausbauten
-könnt Ihr verzichten: ?
-könnt Ihr nicht verzichten:?
Warum ist der Entwurf so geworden, wie er jetzt ist? ZB
Aufbauend auf einem Standardentwurf vom Fertighausanbieter, allerdings mit einigen Anbauten.
Was macht ihn in Euren Augen besonders gut oder schlecht?
Was ist die wichtigste/grundlegende Frage zum Grundriss in 130 Zeichen zusammengefasst?
Was machen wir mit der Lage der Küche? Ist das hell genug? Gibt es eine Möglichkeit, die Küche an die westliche Wand (zur Straße) zu bekommen?
Talblick in den Ort bedeutet: toller Blick.
Speis stört, oder?
In der Kürze werfe ich mal die Idee rein, das Haus zu drehen.
Oder: besser die Nebenräume nach planoben verlegen, auf Symmetrie verzichten, Eingang planlinks (Ecke), Rest ergibt sich bei Planung.
OG finde ich eh nicht rund, EG wäre ansonsten ganz nett. Ich hätte jetzt den Extraflur mit Garderobenbereich/Einbauschrank und Versetzen der Hauswirtschaftsraum-Tür vorgeschlagen, aber ich würde tatsächlich mal entgegen der Symmetrie vorgehen, wie vorgeschlagen.
Speis stört, oder?
In der Kürze werfe ich mal die Idee rein, das Haus zu drehen.
Oder: besser die Nebenräume nach planoben verlegen, auf Symmetrie verzichten, Eingang planlinks (Ecke), Rest ergibt sich bei Planung.
OG finde ich eh nicht rund, EG wäre ansonsten ganz nett. Ich hätte jetzt den Extraflur mit Garderobenbereich/Einbauschrank und Versetzen der Hauswirtschaftsraum-Tür vorgeschlagen, aber ich würde tatsächlich mal entgegen der Symmetrie vorgehen, wie vorgeschlagen.
Versetze den Wohnzimmer-Erker um einen viertel bis halben Meter nach planunten, als Maßnahme zur Verhinderung des Tetris-Looks. Staffel und Walm ist m.E. eine gewöhnungsbedürftige Kombination.
https://www.instagram.com/11antgmxde/
https://www.linkedin.com/company/bauen-jetzt/
ypg schrieb:Wer Talblick hat und sich für Symmetrie überhaupt interessiert, hat m.E. den Schuß nicht gehört.
Talblick in den Ort bedeutet: toller Blick. [...] aber ich würde tatsächlich mal entgegen der Symmetrie vorgehen, wie vorgeschlagen.
https://www.instagram.com/11antgmxde/
https://www.linkedin.com/company/bauen-jetzt/
H
heilmaenner30.06.20 19:42ypg schrieb:
Talblick in den Ort bedeutet: toller Blick.
Speis stört, oder?
In der Kürze werfe ich mal die Idee rein, das Haus zu drehen.
Oder: besser die Nebenräume nach planoben verlegen, auf Symmetrie verzichten, Eingang planlinks (Ecke), Rest ergibt sich bei Planung.
OG finde ich eh nicht rund, EG wäre ansonsten ganz nett. Ich hätte jetzt den Extraflur mit Garderobenbereich/Einbauschrank und Versetzen der Hauswirtschaftsraum-Tür vorgeschlagen, aber ich würde tatsächlich mal entgegen der Symmetrie vorgehen, wie vorgeschlagen.Ja, die Speisekammer stört uns am meisten, da sie irgendwie eine zu gute Lage hat. Aber wenn ich die nach planoben verlege, sind mir die Wege von Garage, Haustür und auch der Küche (die ja dann nach planunten käme) zu weit.Was findest du am OG denn nicht rund? Mit dem OG waren wir nämlich sehr zufrieden, so wie es ist (von noch 2 zusätzlichen Fenstern in jeweils Schlafen 1 planoben und Kind 1 planlinks.
Was ich bisher nicht erwähnt habe: Nördlich des Grundstücks grenzt ein kleiner Friedhof Die Straße planunten ist eine ruhige Spielstraße im Neubaugebiet.
Mit "Talblick" habe ich wohl übertrieben: Ja, es ist der Blick Richtung Altstadt/Innenstadt und auch eine erhöhte Lage bei uns, aber gegenüber wird auch neu gebaut, also wird man vermutlich nur vom Balkon auf der West-/Straßenseite einen unverbauten Ausblick haben.
11ant schrieb:
Versetze den Wohnzimmer-Erker um einen viertel bis halben Meter nach planunten, als Maßnahme zur Verhinderung des Tetris-Looks. Staffel und Walm ist m.E. eine gewöhnungsbedürftige Kombination.
Wer Talblick hat und sich für Symmetrie überhaupt interessiert, hat m.E. den Schuß nicht gehört.Sorry, beim letzten Satz kann ich dir leider nicht folgen. Den WZ-Erker nach unten versetzen würde die Terrasse minimal verkleinern, und vielleicht bräuchten wir noch eine Stütze planobenrechts, oder? Wegen dem Flachdach... ich bearbeite meine Frau schon die ganze Zeit. Ihr geht es zum Teil auch um den Stauraum in Ermangelung eines Kellers... aber so groß kann der Dachboden bei nem recht flachen Walmdach in dieser Form ja auch nicht sein, als dass man da sinnvoll was unterbringen kann.
P
Pinky030130.06.20 21:05Die Küche funktioniert so nicht, der Zeilenabstand ist zu groß. Was ist dieser Kasten planrechts der Insel?
Braucht ihr wirklich 3 Duschen?
Kind 1 sollte noch ein Fenster nach planlinks bekommen.
Soll das im OG wirklich alles Terrasse werden? Wofür? Ich wäre eher für ein begrünten Dach. Drauf laufen oder Wäschegestell aufstellen kann man ja trotzdem.
Der Elternbereich gefällt mir von der Aufteilung (Zugang durch Ankleide, Schlafzimmer kein Durchgangszimmer) gut. Reicht der Schrankplatz in der Ankleide? Schön wäre vielleicht noch ein Fenster planoben im Schlafzimmer, durch das man den Feldblick vom Bett aus genießen kann zusammen mit der aufgehenden Sonne.
Braucht ihr wirklich 3 Duschen?
Kind 1 sollte noch ein Fenster nach planlinks bekommen.
Soll das im OG wirklich alles Terrasse werden? Wofür? Ich wäre eher für ein begrünten Dach. Drauf laufen oder Wäschegestell aufstellen kann man ja trotzdem.
Der Elternbereich gefällt mir von der Aufteilung (Zugang durch Ankleide, Schlafzimmer kein Durchgangszimmer) gut. Reicht der Schrankplatz in der Ankleide? Schön wäre vielleicht noch ein Fenster planoben im Schlafzimmer, durch das man den Feldblick vom Bett aus genießen kann zusammen mit der aufgehenden Sonne.
Ähnliche Themen