Hallo Community,
ich hätte gerne Euer Feedback zu unserem Grundrissentwurf für unser Einfamilienhaus. Wir bauen in Baden-Württemberg.
Unten stehend der ausgefüllte Fragenkatalog sowie die Grundrissentwürfe.
Vielen Dank.
Wir bauen ein KFW40 Holzständerhaus mit Keller (weiße Wanne). Keller ist gedämmt und beheizt.
Bebauungsplan/Einschränkungen
Größe des Grundstücks - 333m² - Flurstück 6146
Hang - ca. 0,7mm Gefälle von Nord nach Süd
Grundflächenzahl - 0,4
Geschossflächenzahl - 0,7
Baufenster, Baulinie und -grenze - siehe Bilder
Randbebauung - Garage/Carport im eingezeichneten Baufenster möglich
Anzahl Stellplatz - 2 Stück - aktuell nur einer eingezeichnet
Geschossigkeit - 1,5
Dachform - Satteldach 40°
Stilrichtung - klassisch Satteldach
Ausrichtung - siehe Bebauungsplan F
Maximale Höhen/Begrenzungen - Trauf 4,50m / First 9,20m
weitere Vorgaben - PV Pflicht, Bepflanzungspflicht
Anforderungen der Bauherren
Stilrichtung, Dachform, Gebäudetyp - Satteldach
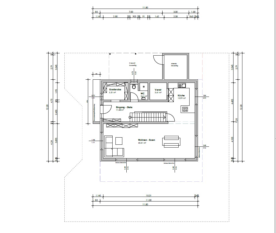
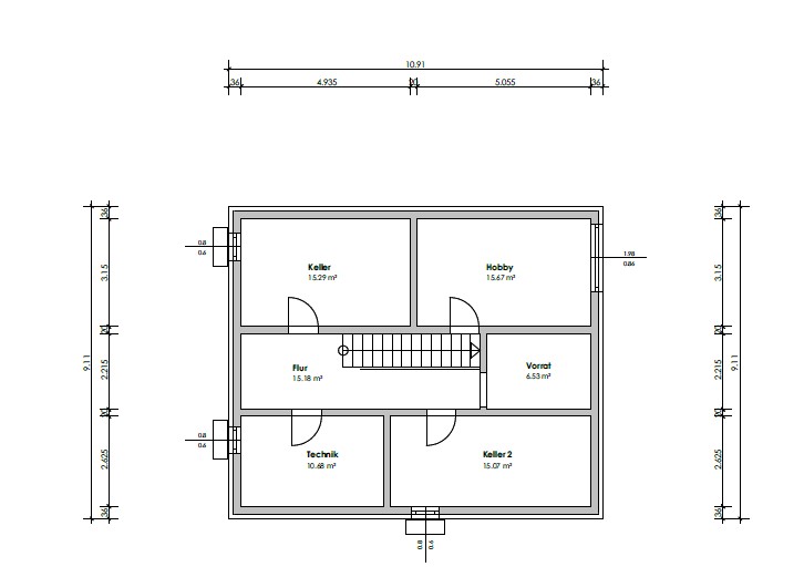
Keller, Geschosse - Keller, EG und OG - EG und OG ca. 140m²
Anzahl der Personen, Alter - 39 / 38 / 9 / 7
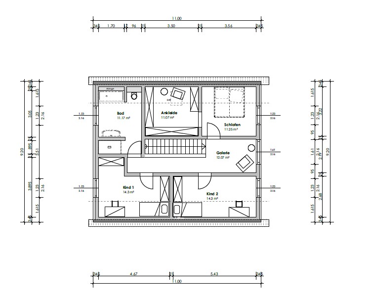
Raumbedarf im EG, OG - Garderobe, Dusch-WC, Speis, Küche, Wohn-, Esszimmer, 2 Kinderzimmer, Elternschlafzimmer, Ankleide, Bad
Büro: Familiennutzung oder Homeoffice? - Home Office im Keller / Fitnessraum im Keller / Werkstatt im Keller
Schlafgäste pro Jahr - nein
offene oder geschlossene Architektur - offen
konservativ oder moderne Bauweise - modern
offene Küche, Kochinsel - Kücheninsel zwischen Küche und Esszimmer geplant, aber ohne Kochfeld!
Anzahl Essplätze - Runder Tisch mit 6 Plätzen
Kamin - nein
Musik/Stereowand - 5.1 Soundanlage plus 77 Zoll Fernseher
Balkon, Dachterrasse - nein
Garage, Carport - Carport
Nutzgarten, Treibhaus - nein
weitere Wünsche/Besonderheiten/Tagesablauf, gern auch Begründungen, warum dieses oder das nicht sein soll
Hausentwurf
1. Entwurf war einen Architektenplanung mit dieser haben wir angefragt und den Grundriss weiter verfeinert
Was gefällt besonders:
- Gerade Treppe
- Großzügigkeit der Wohnzimmer und Anbindung an Terrasse und Außenraum
- Anbindung Carport an Haus überdacht
- Diele und Galerie - mir ist bewusst, dass dies sehr teurer Raum ist - wurde aber mit Absicht gewählt!
Was gefällt nicht:
- Ich habe bedenken, dass der Flur unten zu eng und dunkel wird.
- Kinderzimmer zu schlauchig?
- Ankleide / Schlafzimmer - Aufteilung passt nicht
- DU/WC zu klein
- Technik zu klein
- Schallübertragung aufgrund offenem Wohnkonzept
Preisschätzung laut Architekt/Planer: 675k inkl. PV/Speicher
Persönliches Preislimit fürs Haus, inkl. Ausstattung:: 850-880k
favorisierte Heiztechnik: L-W-Pumpe mit Lüftungsanlage
Wenn Ihr verzichten müsst, auf welche Details/Ausbauten
-könnt Ihr verzichten: Ankleide / Speisekammer
-könnt Ihr nicht verzichten: Keller mit Büro und Hobbyraum
Warum ist der Entwurf so geworden, wie er jetzt ist?
Vorschlag von einem Bauunternehmen der sich recht gut mit unserer initialen Planung deckt.





ich hätte gerne Euer Feedback zu unserem Grundrissentwurf für unser Einfamilienhaus. Wir bauen in Baden-Württemberg.
Unten stehend der ausgefüllte Fragenkatalog sowie die Grundrissentwürfe.
Vielen Dank.
Wir bauen ein KFW40 Holzständerhaus mit Keller (weiße Wanne). Keller ist gedämmt und beheizt.
Bebauungsplan/Einschränkungen
Größe des Grundstücks - 333m² - Flurstück 6146
Hang - ca. 0,7mm Gefälle von Nord nach Süd
Grundflächenzahl - 0,4
Geschossflächenzahl - 0,7
Baufenster, Baulinie und -grenze - siehe Bilder
Randbebauung - Garage/Carport im eingezeichneten Baufenster möglich
Anzahl Stellplatz - 2 Stück - aktuell nur einer eingezeichnet
Geschossigkeit - 1,5
Dachform - Satteldach 40°
Stilrichtung - klassisch Satteldach
Ausrichtung - siehe Bebauungsplan F
Maximale Höhen/Begrenzungen - Trauf 4,50m / First 9,20m
weitere Vorgaben - PV Pflicht, Bepflanzungspflicht
Anforderungen der Bauherren
Stilrichtung, Dachform, Gebäudetyp - Satteldach
Keller, Geschosse - Keller, EG und OG - EG und OG ca. 140m²
Anzahl der Personen, Alter - 39 / 38 / 9 / 7
Raumbedarf im EG, OG - Garderobe, Dusch-WC, Speis, Küche, Wohn-, Esszimmer, 2 Kinderzimmer, Elternschlafzimmer, Ankleide, Bad
Büro: Familiennutzung oder Homeoffice? - Home Office im Keller / Fitnessraum im Keller / Werkstatt im Keller
Schlafgäste pro Jahr - nein
offene oder geschlossene Architektur - offen
konservativ oder moderne Bauweise - modern
offene Küche, Kochinsel - Kücheninsel zwischen Küche und Esszimmer geplant, aber ohne Kochfeld!
Anzahl Essplätze - Runder Tisch mit 6 Plätzen
Kamin - nein
Musik/Stereowand - 5.1 Soundanlage plus 77 Zoll Fernseher
Balkon, Dachterrasse - nein
Garage, Carport - Carport
Nutzgarten, Treibhaus - nein
weitere Wünsche/Besonderheiten/Tagesablauf, gern auch Begründungen, warum dieses oder das nicht sein soll
Hausentwurf
1. Entwurf war einen Architektenplanung mit dieser haben wir angefragt und den Grundriss weiter verfeinert
Was gefällt besonders:
- Gerade Treppe
- Großzügigkeit der Wohnzimmer und Anbindung an Terrasse und Außenraum
- Anbindung Carport an Haus überdacht
- Diele und Galerie - mir ist bewusst, dass dies sehr teurer Raum ist - wurde aber mit Absicht gewählt!
Was gefällt nicht:
- Ich habe bedenken, dass der Flur unten zu eng und dunkel wird.
- Kinderzimmer zu schlauchig?
- Ankleide / Schlafzimmer - Aufteilung passt nicht
- DU/WC zu klein
- Technik zu klein
- Schallübertragung aufgrund offenem Wohnkonzept
Preisschätzung laut Architekt/Planer: 675k inkl. PV/Speicher
Persönliches Preislimit fürs Haus, inkl. Ausstattung:: 850-880k
favorisierte Heiztechnik: L-W-Pumpe mit Lüftungsanlage
Wenn Ihr verzichten müsst, auf welche Details/Ausbauten
-könnt Ihr verzichten: Ankleide / Speisekammer
-könnt Ihr nicht verzichten: Keller mit Büro und Hobbyraum
Warum ist der Entwurf so geworden, wie er jetzt ist?
Vorschlag von einem Bauunternehmen der sich recht gut mit unserer initialen Planung deckt.
Nur zum Verständnis:
- das Haus bekommt den Eingang im Westen,
- von Nord nach Süd gibt es ein Gefälle
von 0,7 mm oder 0,7 Meter?
- Das WC-Fenster liegt im Carport, das kann man natürlich machen.
- Die Kellertreppe führt vom Wohnbereich ab…
Was kommt denn da vom Architekten, und was wurde verfeinert?
Ich mache es kurz: ich finde einiges sehr untauglich, inklusive dem 10 x 4 Meter Raum und der nicht gerade komfortablen Küche, und Lösungen liegen auf der Hand, dazu muss man aber auch kein Fachmann sein.
Und ja, die Kizis sind auch sehr schmal. Die Räume sind nicht geplant, sondern im Haus aneinandergereiht.
- das Haus bekommt den Eingang im Westen,
- von Nord nach Süd gibt es ein Gefälle
Flo86!! schrieb:
Hang - ca. 0,7mm
von 0,7 mm oder 0,7 Meter?
- Das WC-Fenster liegt im Carport, das kann man natürlich machen.
- Die Kellertreppe führt vom Wohnbereich ab…
Flo86!! schrieb:
Entwurf war einen Architektenplanung mit dieser haben wir angefragt und den Grundriss weiter verfeinert
Was kommt denn da vom Architekten, und was wurde verfeinert?
Ich mache es kurz: ich finde einiges sehr untauglich, inklusive dem 10 x 4 Meter Raum und der nicht gerade komfortablen Küche, und Lösungen liegen auf der Hand, dazu muss man aber auch kein Fachmann sein.
Und ja, die Kizis sind auch sehr schmal. Die Räume sind nicht geplant, sondern im Haus aneinandergereiht.
Ja, der Eingang kommt von Westen. Es sind ca. 0,7 Meter, keine mm.
Kellertreppe Abgang ist im Wohnzimmer, kurzer Weg von der Küche in Keller. Treppe nach oben sollte vom Wohnzimmer losgelöst sein. Das war unser Gedanke.
Vom Architekten kommt der Eingangsbereich, die Gerade Treppe, die Galerie.
Was genau findest du alles untauglich, über ein detaillierte gerne auch kritisches Feedback inkl. Lösungsvorschlägen würde ich mich sehr freuen.
Kellertreppe Abgang ist im Wohnzimmer, kurzer Weg von der Küche in Keller. Treppe nach oben sollte vom Wohnzimmer losgelöst sein. Das war unser Gedanke.
Vom Architekten kommt der Eingangsbereich, die Gerade Treppe, die Galerie.
Was genau findest du alles untauglich, über ein detaillierte gerne auch kritisches Feedback inkl. Lösungsvorschlägen würde ich mich sehr freuen.
Rübe1 schrieb:
27.04.26Geplant ist durch die Küchenfront, sprich versteckte Speisekammer.
Statik ist im Angebotspreis berücksichtigt. Du beziehst dich hier auf die 40m2 grossen Wohnessenreich?
Ähnliche Themen