F
freakbetty07.01.20 22:08Hallo zusammen,
uns würde Eure Einschätzung/ Meinungen und Vorschläge zur unserer Planung interessieren.
Wir möchten auf unserem Grundstück mit Südhanglage (Das Baugebiet im östl. Osnabrücker Land ist hier auch aus anderen Threads bekannt) ein Einfamilienhaus für uns 4 Personen schlüsselfertig bauen. GU die man anfragt kommen dann meist mit einem Entwurf der ein aufgefülltes Grundstück mit einen "Standard-Einfamilienhaus" (ohne Hang) darauf vorsieht. Dies möchten wir ungerne machen. Der Hang wird nicht genutzt und aufgrund der Vorgaben wie z.B. Dachneigung (Max 35°) und Traufhöhe (Max 3,5 m) ergibt dies dann Dachschrägen mit viel Raum unterhalb der 2 m Linie.
Wir haben uns dann selber dran gesetzt und einen Entwurf erstellt der aus unserer Sicht die Anforderungen an das Grundstück sowie unsere eigenen Wünsche berücksichtigt..
Nun sind wir jedoch keine Bauprofis und machen uns jetzt Gedanken/ sind unsicher ob dies so gut gelöst ist oder ob man nicht was besser machen kann oder sogar muss. Deshalb hoffen wir auf Eure Unterstützung. Oder gleich zum Architekten?
Bebauungsplan/Einschränkungen
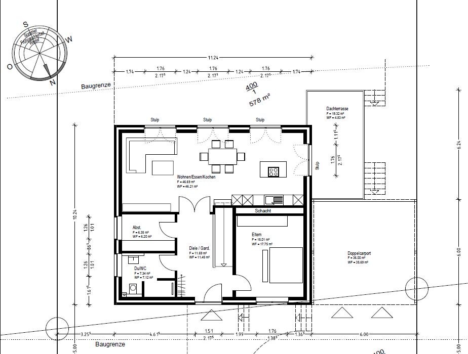
Größe des Grundstücks: 676 m² (20,5 m x ca. 33 m)
Hang: Südhang, ca. 4 m fallend vom Norden (Straße) nach Süden (Garten).
Grundflächenzahl 0,4
Geschossflächenzahl 0,5
Baufenster, Baulinie und -grenze: 3m Grenze im Norden, im Süden 20m zur Kreisstraße
Randbebauung
Anzahl Stellplatz: keine Vorgaben
Geschossigkeit: Max. 2 Vollgeschosse
Dachform: Sattel, Walm und Pult , zwischen 28° und 35° DN
Stilrichtung: -
Ausrichtung: -
Maximale Höhen/Begrenzungen: Traufhöhe maximal 3,50 m ab Oberkante Fertigfußboden EG, maximale Firsthöhe 8,50 m ab Oberkante Fertigfußboden EG
weitere Vorgaben: Lärmpegelbereich IV, Schallschutz für ebenerdige Außenwohnbereiche im Süden
Anforderungen der Bauherren
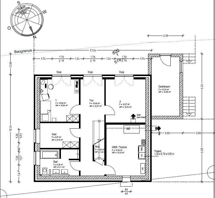
Stilrichtung, Dachform, Gebäudetyp: am liebsten Satteldach, wenn es besser passt auch Walm- oder Pultdach, EG + Wohn UG
Keller, Geschosse: Wohnkeller im UG + EG, DG nicht ausgebaut
Anzahl der Personen, Alter: 4 Personen (39, 37, 9 und 4)
Raumbedarf im EG, OG: Allraum (Wohnen, Essen, Küche), 2 Kinderzimmer, Elternschlafzimmer, Büro/Gästezimmer, Abstellraum. Gedacht waren eigentlich 150 m² Wohnfläche, durch die Eigenplanung ist es nun aber größer geworden
Büro: Familiennutzung oder Homeoffice? Homeoffice
Schlafgäste pro Jahr: 5
offene oder geschlossene Architektur: offen
konservativ oder moderne Bauweise: modern
offene Küche, Kochinsel: unbedingt
Anzahl Essplätze: min. 6
Kamin: nein
Musik/Stereowand: nein
Balkon, Dachterrasse: Balkon ungern, Dachterrasse ergibt sich aktuell wegen ebenerdigen Zugang nach draußen
Garage, Carport: Für zwei PKW
Nutzgarten, Treibhaus: nein
weitere Wünsche/Besonderheiten/Tagesablauf, gern auch Begründungen, warum dieses oder das nicht sein soll
Hausentwurf
Von wem stammt die Planung:
-Planer eines Bauunternehmens hat den Do-it-Youself Entwurf im Programm eingegeben
Was gefällt besonders? Warum? Offener Allraum zum Süden, Wohnen auf Straßenniveau (keine Treppen für Einkäufe, Gäste), die Kinder haben einen "eigenen" Bereich. Im Alter wäre eine Trennung EG / UG denkbar
Was gefällt nicht? Warum? Technik (HAR, Hauswirtschaftsraum) neben Kinderzimmer, relativ große Flurflächen, Hauswirtschaftsraum zu groß, Im Entwurf fehlen ggf. noch ein paar Fenster (z.B. Wohnzimmer Ostseite, Bad EG nach Norden wegen besserer Außenansicht?)
Preisschätzung lt Architekt/Planer: 337000 €
Persönliches Preislimit fürs Haus, inkl Ausstattung: 350000€
favorisierte Heiztechnik: Gas oder Luft-Wasser-Wärmepumpe und Kontrollierte-Wohnraumlüftung
Wenn Ihr verzichten müsst, auf welche Details/Ausbauten
-könnt Ihr verzichten: Geräteraum unter Terrasse, evtl. Aufgeständerte Terrasse oder L-Steine und anfüllen für Terrasse ?
-könnt Ihr nicht verzichten: Kochinsel
Warum ist der Entwurf so geworden, wie er jetzt ist? ZB
Standardentwurf vom Planer?
Entsprechende/Welche Wünsche wurden vom Architekten umgesetzt?
Ein Gemisch aus vielen Beispielen aus div. Magazinen...
Was macht ihn in Euren Augen besonders gut oder schlecht?
Der Entwurf wurde so da wir in bisher Balkon und Terrasse hatten und haben und dann nie den Balkon nutzen. Eine aufgeständerte Terrasse im Süden würde die Zimmer im UG verdunkeln. Daher die Idee mit der Terrasse seitlich. Ein versetzter Bauköper wo z.B. die Dachterrasse auf dem UG im Süden aufbaut würde wahrscheinlich das Budget sprengen.
Im UG wünschen wir uns einen direkten Zugang vom Hauswirtschaftsraum zum Garten ( Wäsche draußen aufhängen etc.) deshalb der Flur bis in den Süden zudem kommt so auch genug Licht in den Flur/Treppenaufgang.
Die Kinderzimmer sollten möglichst gleichberechtigt und min 15 m² groß sein.







uns würde Eure Einschätzung/ Meinungen und Vorschläge zur unserer Planung interessieren.
Wir möchten auf unserem Grundstück mit Südhanglage (Das Baugebiet im östl. Osnabrücker Land ist hier auch aus anderen Threads bekannt) ein Einfamilienhaus für uns 4 Personen schlüsselfertig bauen. GU die man anfragt kommen dann meist mit einem Entwurf der ein aufgefülltes Grundstück mit einen "Standard-Einfamilienhaus" (ohne Hang) darauf vorsieht. Dies möchten wir ungerne machen. Der Hang wird nicht genutzt und aufgrund der Vorgaben wie z.B. Dachneigung (Max 35°) und Traufhöhe (Max 3,5 m) ergibt dies dann Dachschrägen mit viel Raum unterhalb der 2 m Linie.
Wir haben uns dann selber dran gesetzt und einen Entwurf erstellt der aus unserer Sicht die Anforderungen an das Grundstück sowie unsere eigenen Wünsche berücksichtigt..
Nun sind wir jedoch keine Bauprofis und machen uns jetzt Gedanken/ sind unsicher ob dies so gut gelöst ist oder ob man nicht was besser machen kann oder sogar muss. Deshalb hoffen wir auf Eure Unterstützung. Oder gleich zum Architekten?
Bebauungsplan/Einschränkungen
Größe des Grundstücks: 676 m² (20,5 m x ca. 33 m)
Hang: Südhang, ca. 4 m fallend vom Norden (Straße) nach Süden (Garten).
Grundflächenzahl 0,4
Geschossflächenzahl 0,5
Baufenster, Baulinie und -grenze: 3m Grenze im Norden, im Süden 20m zur Kreisstraße
Randbebauung
Anzahl Stellplatz: keine Vorgaben
Geschossigkeit: Max. 2 Vollgeschosse
Dachform: Sattel, Walm und Pult , zwischen 28° und 35° DN
Stilrichtung: -
Ausrichtung: -
Maximale Höhen/Begrenzungen: Traufhöhe maximal 3,50 m ab Oberkante Fertigfußboden EG, maximale Firsthöhe 8,50 m ab Oberkante Fertigfußboden EG
weitere Vorgaben: Lärmpegelbereich IV, Schallschutz für ebenerdige Außenwohnbereiche im Süden
Anforderungen der Bauherren
Stilrichtung, Dachform, Gebäudetyp: am liebsten Satteldach, wenn es besser passt auch Walm- oder Pultdach, EG + Wohn UG
Keller, Geschosse: Wohnkeller im UG + EG, DG nicht ausgebaut
Anzahl der Personen, Alter: 4 Personen (39, 37, 9 und 4)
Raumbedarf im EG, OG: Allraum (Wohnen, Essen, Küche), 2 Kinderzimmer, Elternschlafzimmer, Büro/Gästezimmer, Abstellraum. Gedacht waren eigentlich 150 m² Wohnfläche, durch die Eigenplanung ist es nun aber größer geworden
Büro: Familiennutzung oder Homeoffice? Homeoffice
Schlafgäste pro Jahr: 5
offene oder geschlossene Architektur: offen
konservativ oder moderne Bauweise: modern
offene Küche, Kochinsel: unbedingt
Anzahl Essplätze: min. 6
Kamin: nein
Musik/Stereowand: nein
Balkon, Dachterrasse: Balkon ungern, Dachterrasse ergibt sich aktuell wegen ebenerdigen Zugang nach draußen
Garage, Carport: Für zwei PKW
Nutzgarten, Treibhaus: nein
weitere Wünsche/Besonderheiten/Tagesablauf, gern auch Begründungen, warum dieses oder das nicht sein soll
Hausentwurf
Von wem stammt die Planung:
-Planer eines Bauunternehmens hat den Do-it-Youself Entwurf im Programm eingegeben
Was gefällt besonders? Warum? Offener Allraum zum Süden, Wohnen auf Straßenniveau (keine Treppen für Einkäufe, Gäste), die Kinder haben einen "eigenen" Bereich. Im Alter wäre eine Trennung EG / UG denkbar
Was gefällt nicht? Warum? Technik (HAR, Hauswirtschaftsraum) neben Kinderzimmer, relativ große Flurflächen, Hauswirtschaftsraum zu groß, Im Entwurf fehlen ggf. noch ein paar Fenster (z.B. Wohnzimmer Ostseite, Bad EG nach Norden wegen besserer Außenansicht?)
Preisschätzung lt Architekt/Planer: 337000 €
Persönliches Preislimit fürs Haus, inkl Ausstattung: 350000€
favorisierte Heiztechnik: Gas oder Luft-Wasser-Wärmepumpe und Kontrollierte-Wohnraumlüftung
Wenn Ihr verzichten müsst, auf welche Details/Ausbauten
-könnt Ihr verzichten: Geräteraum unter Terrasse, evtl. Aufgeständerte Terrasse oder L-Steine und anfüllen für Terrasse ?
-könnt Ihr nicht verzichten: Kochinsel
Warum ist der Entwurf so geworden, wie er jetzt ist? ZB
Standardentwurf vom Planer?
Entsprechende/Welche Wünsche wurden vom Architekten umgesetzt?
Ein Gemisch aus vielen Beispielen aus div. Magazinen...
Was macht ihn in Euren Augen besonders gut oder schlecht?
Der Entwurf wurde so da wir in bisher Balkon und Terrasse hatten und haben und dann nie den Balkon nutzen. Eine aufgeständerte Terrasse im Süden würde die Zimmer im UG verdunkeln. Daher die Idee mit der Terrasse seitlich. Ein versetzter Bauköper wo z.B. die Dachterrasse auf dem UG im Süden aufbaut würde wahrscheinlich das Budget sprengen.
Im UG wünschen wir uns einen direkten Zugang vom Hauswirtschaftsraum zum Garten ( Wäsche draußen aufhängen etc.) deshalb der Flur bis in den Süden zudem kommt so auch genug Licht in den Flur/Treppenaufgang.
Die Kinderzimmer sollten möglichst gleichberechtigt und min 15 m² groß sein.
Ein Lob, in der Threaderöffnung, steht alles drin, sogar der Nordpfeil!!
Und wieder sieht man mal wieder, wie man sich mit dem Grundstücksgefälle täuschen kann. Nach dem Foto wäre ich nie auf die Idee gekommen, dass dies 4,00m Gefälle sind. Gut, dass Du die Höhe angegeben hast.
Der Entwurf ist klar und gut!
Habt Ihr mal mit dem Gedanken gespielt die Geschosse zu tauschen, Wohnen unten Schlafen oben? Habt Ihr Sicht oben?
Der Allraum, sieht etwas gedrungen aus, hat aber 46m² und sicherlich Höhe bis unters Dach, oder? Die Kücheninsel wäre für mich zu klein, habt Ihr mal überlegt die Insel zu drehen und zu vergrößern? Ebenso den Esstisch?
Das Sofa steht jetzt von dem Fenster, habt Ihr es mal an die Trennwand zum Abstell gestellt, entzerrt etwas den Allraum?
Benötigt Ihr diesen großen Schacht, Eure Handwerker sind sicherlich froh darüber?
Und wieder sieht man mal wieder, wie man sich mit dem Grundstücksgefälle täuschen kann. Nach dem Foto wäre ich nie auf die Idee gekommen, dass dies 4,00m Gefälle sind. Gut, dass Du die Höhe angegeben hast.
Der Entwurf ist klar und gut!
Habt Ihr mal mit dem Gedanken gespielt die Geschosse zu tauschen, Wohnen unten Schlafen oben? Habt Ihr Sicht oben?
Der Allraum, sieht etwas gedrungen aus, hat aber 46m² und sicherlich Höhe bis unters Dach, oder? Die Kücheninsel wäre für mich zu klein, habt Ihr mal überlegt die Insel zu drehen und zu vergrößern? Ebenso den Esstisch?
Das Sofa steht jetzt von dem Fenster, habt Ihr es mal an die Trennwand zum Abstell gestellt, entzerrt etwas den Allraum?
Benötigt Ihr diesen großen Schacht, Eure Handwerker sind sicherlich froh darüber?
Solveigh schrieb:
Benötigt Ihr diesen großen Schacht,Wozu soll der überhaupt gut sein ?https://www.instagram.com/11antgmxde/
https://www.linkedin.com/company/bauen-jetzt/
F
freakbetty08.01.20 21:01Solveigh schrieb:
Habt Ihr mal mit dem Gedanken gespielt die Geschosse zu tauschen, Wohnen unten Schlafen oben? Habt Ihr Sicht oben?Wohnen unten/ Schlafen oben haben wir verworfen da dann jeder Besuch/ Einkäufe immer eine ganze Etage runter muss. Auch wenn der Zugang zum Garten/Terrasse dann einfacher wäre.Solveigh schrieb:
Der Allraum, sieht etwas gedrungen aus, hat aber 46m² und sicherlich Höhe bis unters Dach, oder? Die Kücheninsel wäre für mich zu klein, habt Ihr mal überlegt die Insel zu drehen und zu vergrößern? Ebenso den Esstisch?Eine offene Höhe bis unter das Dach haben wir nicht. Bisher war geplant eine geschlossene Holzbalkendecke zu verbauen (Haus quasi ein Bungalow mit Keller). Oben wäre dann zusätzlicher (nicht beheizter) Stauraum mit Zugang über eine Bodeneinschubtreppe (im Bereich des Flur EG). Ja die Aufstellung des Sofas, Esstisch,, Insel ist so nicht optimal, aber zum Glück recht einfach zu ändern. Danke für den Hinweis!
Solveigh schrieb:
Benötigt Ihr diesen großen Schacht, Eure Handwerker sind sicherlich froh darüber?Der Schacht war eine Idee der Zeichnerin des GU. Da hatten wir vorher nicht drüber gesprochen. Er soll für Rohrleitungen wie Zuluft, Abluft der Kontrollierte-Wohnraumlüftung, bei Gastherme eines Abgasrohres, Anschlussleitungen Photovoltaik etc. dienen. In der Größe ist er sicherlich nicht notwendig. Aber damit die Wand keinen "Knick" bekommt über die gesamte Breite gezeichnet. Wir haben gedacht evtl. auch einen Abwurfschacht für Wäsche in den Hauswirtschaftsraum zu integrieren.
Auf die Schnelle:
Mir fällt auf, dass man vom Schlafzimmer ins Bad direkt an der Haustür vorbei muss. Das gefällt mir persönlich schon mit unserem Gäste-WC nicht. Bei Euch wird das dann im Adamskostüm ein kleiner Spießrutenlauf.
Küche wäre mir auch zu wenig, Der Esstisch hat kaum Platz.
Mal mal Eure Möbel maßstabsgetreu ein.
ich würde das ganze Haus spiegeln und dann wieder WZ mit Küche tauschen, damit die Proportionen stimmen und die Küche wieder auf der Garage die Terrasse bekommt. Allerdings wird das Terrassenfenster für die optimale Küchrneinrichtung wie auch jetzt stören.
Schade: unten ist es schön luftig und oben dann doch eng.
Mir fällt auf, dass man vom Schlafzimmer ins Bad direkt an der Haustür vorbei muss. Das gefällt mir persönlich schon mit unserem Gäste-WC nicht. Bei Euch wird das dann im Adamskostüm ein kleiner Spießrutenlauf.
Küche wäre mir auch zu wenig, Der Esstisch hat kaum Platz.
Mal mal Eure Möbel maßstabsgetreu ein.
ich würde das ganze Haus spiegeln und dann wieder WZ mit Küche tauschen, damit die Proportionen stimmen und die Küche wieder auf der Garage die Terrasse bekommt. Allerdings wird das Terrassenfenster für die optimale Küchrneinrichtung wie auch jetzt stören.
Schade: unten ist es schön luftig und oben dann doch eng.
Ähnliche Themen